Olga_Flower Опубліковано: 1 липня 2009 Поділитись Опубліковано: 1 липня 2009 Проект фундамента дома во вложении. Там же указаны данные по кубометрам бетона. Место строительства - село Нижняя Дубечня Вышгородского района, ул. Береговая, 26 (начало села). От Киева пол часа езды при отсутствии пробок, 28 км от КП. Фундамент проектировался после геологии и просчитывался конструктором. Для одноэтажного дома с не эксплуатируемым чердаком его достаточно. Заливка будет производиться непосредственно в грунт (песок, который хорошо держит форму и не осыпается), опалубка нужна только на надземную часть. Соответственно, важно выкопать ровные траншеи. Армирования НЕ будет. Подача бетона из миксеров (закажем сами, воспользовавшись данными с БС). Доски для опалубки вообще не проблема - рядом лесопилка, будем брать там. Выгонку коробки будем стартовать через месяц после заливки фундамента (не обманываю, так и будет), поэтому люди добросовестные и порядочные могут рассчитывать на продолжение сотрудничества. На участке есть вода (скважина), электричества нет, и, скорее всего, на этапе работ по фундаменту не будет. Там большие проблемы с мощностями и даже несанкционированное подключение проблемы не решит - из-за перепадов напряжения горят инструменты (со слов соседей). Возможна покупка нами дизельной электростанции, но хотелось бы на этапе фундамента обойтись без этого. Бытовка имеется, но, к сожалению, не для строителей. Мы приезжаем на участок с двумя маленькими детьми и нам важно сохранение чистоты в домике. Строителям придется решать вопрос жилья самостоятельно. Со своей стороны мы готовы закупить пиломатериалы и прочее из бюджетного для постройки строителями себе домика (эта работа оплачена не будет, домик останется на участке), если другим способом вопрос проживания решить будет невозможно. Фотографию участка можно посмотреть в моем альбоме на этом форуме. Оплата работ возможна поэтапно (например, разбить на разметку и копку траншей, опалубку, заливку фундамента), но категорически без предоплаты и только после приемки работ и устранения недочетов. Заключительный платеж будет производиться только после того, как фундамент будет более-менее точно выровнен по уровню (проверим) и будет снята опалубка. Со своей стороны гарантируем полное отсутствие желания обмануть, сэкономить за чужой счет. Нам чужого не надо. Надеемся на взаимность. Проект делал форумчанин Архитектор (Олег Гречух). Думаю, у него можно узнать впечатление о нас как о заказчиках. Жду сюда или в личку предложения с ориентировочными ценами и сроками. Предложения позвонить и договориться без предварительной информации по ценам и срокам рассматриваться не будут. Просьба в ориентировочных ценах учитывать весь объем работ по каждому из перечисленных этапов, чтобы не было такого, что, например, поднос гвоздей до их точки прибивания к доскам опалубки оплачиваться должен отдельно Любителям выпить и поматериться просьба не беспокоиться. Как я уже писала выше, мы приезжать будем с маленькими детьми и хотелось бы видеть на участке нормальных людей. Спасибо, что прочли так многа букаф 1 Посилання на коментар Поділитися на інших сайтах More sharing options...
Sergej Ognevoy Опубліковано: 1 липня 2009 Поділитись Опубліковано: 1 липня 2009 выкопка - 50 грн./куб.м. заливка бетона (с выставкой опалубки)- 200 грн./куб.м. конт.тел. 8-097-171-62-98 Сергей Посилання на коментар Поділитися на інших сайтах More sharing options...
Starper Опубліковано: 1 липня 2009 Поділитись Опубліковано: 1 липня 2009 Армирования НЕ будет. умоляю, проармируйте фундамент !!! Посилання на коментар Поділитися на інших сайтах More sharing options...
Olga_Flower Опубліковано: 1 липня 2009 Автор Поділитись Опубліковано: 1 липня 2009 умоляю, проармируйте фундамент !!! Дом кирпичный в 2 кирпича. Одноэтажный. Грунт очень благополучный (геологию делали с 8-метровыми 4-мя скважинами по углам будущего дома, песок, грунтовые воды низко). Фундамент рассчитывал компетентный конструктор. Проект делал опытный архитектор. Я не вижу смысла не доверять им. Меня заверили, что запас прочности с коэффициентом больше 2-х (точно не помню), т.е. в два раза крепче, чем минимально необходимая несущая способность. Проект сейчас на стадии получения стройпаспорта (будет готов через 3 недели). Архитектор вышгородского района его проверил. Вопросов не возникло. Почему я должна беспокоиться? Посилання на коментар Поділитися на інших сайтах More sharing options...
Starper Опубліковано: 1 липня 2009 Поділитись Опубліковано: 1 липня 2009 Дом кирпичный в 2 кирпича и т.д. Тендеры нужно проводить, по моему мнению (исходя из собственного опыта), не только среди строителей, но и среди конструкторов и архитекторов. Ни разу не сомневаюсь в профессионализме исполнителей Вашего проекта, но прошу: посоветуйтесь еще с несколькими конструкторами. Бетон неармированный не работает ни на разрыв, ни на изгиб, ни на кручение. Стоимость всего армирования около 3000 грн (могу ошибаться). Но спокойствия на всю жизнь. Посилання на коментар Поділитися на інших сайтах More sharing options...
ПАРТИЗАН. Опубліковано: 1 липня 2009 Поділитись Опубліковано: 1 липня 2009 траншеи-50 грн.\м.куб. бетон+опалубка -180 гнр.\м.куб. проблема жилья, електричества - вахтовый автомобиль, своя электростанция. тел.8067-249-47-07. Дмитрий. Посилання на коментар Поділитися на інших сайтах More sharing options...
Slavabudstroy Опубліковано: 1 липня 2009 Поділитись Опубліковано: 1 липня 2009 Что Starper ответил вам верно. В прошлом году мы строили гостиницу на площади Шевченка в лесу, так нас Архитектор уверял что фундамент без арматури нужно заменять толщиной бетона. Так как заказчик економил деньги, арматура была 8 тыс.грн. Но мы выполнили волю Архитектора и заказчика. Думаете что? Мы заливали бетон толщиной 0.80 а высотой 3 метра. Но когда мы залили полностью и прошло две недели то бетон порвало и щели были по 3 и 4 см.Если будет интерестно обьясню все подробно по тел. 8 093 799-99-33 Станислав. Лучше сем раз отмерте один раз отрежте. Фундамент это самое главное в доме. Посилання на коментар Поділитися на інших сайтах More sharing options...
Olga_Flower Опубліковано: 1 липня 2009 Автор Поділитись Опубліковано: 1 липня 2009 Что Starper ответил вам верно. В прошлом году мы строили гостиницу на площади Шевченка в лесу, так нас Архитектор уверял что фундамент без арматури нужно заменять толщиной бетона. Так как заказчик економил деньги, арматура была 8 тыс.грн. Но мы выполнили волю Архитектора и заказчика. Думаете что? Мы заливали бетон толщиной 0.80 а высотой 3 метра. Но когда мы залили полностью и прошло две недели то бетон порвало и щели были по 3 и 4 см.Если будет интерестно обьясню все подробно по тел. 8 093 799-99-33 Станислав. Лучше сем раз отмерте один раз отрежте. Фундамент это самое главное в доме. А сколько может стоить арматура с доставкой + работа по ее вязке в моем случае? Хотя бы порядок цен. То, что Вы пишете Архитектор с большой буквы, Вы имеете в виду форумчанина под ником "Архитектор"? 2 Посилання на коментар Поділитися на інших сайтах More sharing options...
Olga_Flower Опубліковано: 1 липня 2009 Автор Поділитись Опубліковано: 1 липня 2009 проблема жилья, електричества - вахтовый автомобиль, своя электростанция. Уважаю такой капитальный подход! Посилання на коментар Поділитися на інших сайтах More sharing options...
Slavabudstroy Опубліковано: 1 липня 2009 Поділитись Опубліковано: 1 липня 2009 Мне сегодня прислали прайс на арматуру вроди вменяемая 3600тона 12д.Не знаю может есть еще дешевле.Нужно прозванивать.Так как мы не беремся на закупки чтоб не ругатся за рубиль где дешевле.Чтоб заказчик был спокоен что его не обдурят.И нам проще. Станислав. Посилання на коментар Поділитися на інших сайтах More sharing options...
abkiev Опубліковано: 1 липня 2009 Поділитись Опубліковано: 1 липня 2009 Сори за оффтоп! Привет соседям! я тоже в Нижней и тоже вначале села, перед табличкой "Нижня Дубечня" поворот направо и там кооперативы начинаются, вот я там засел Посилання на коментар Поділитися на інших сайтах More sharing options...
Olga_Flower Опубліковано: 1 липня 2009 Автор Поділитись Опубліковано: 1 липня 2009 Сори за оффтоп! Привет соседям! я тоже в Нижней и тоже вначале села, перед табличкой "Нижня Дубечня" поворот направо и там кооперативы начинаются, вот я там засел А к нам сразу за табличкой поворот направо на бетонку, канал проехали, тут и мы ;) Посилання на коментар Поділитися на інших сайтах More sharing options...
Olga_Flower Опубліковано: 2 липня 2009 Автор Поділитись Опубліковано: 2 липня 2009 Я еще раз связалась с архитектором, спросила, может все же имеет смысл перестраховаться и проармировать, и они еще раз вместе с конструктором пересчитали мой фундамент. Говорят, что в моем случае даже достаточно 30 см ширины фундамента, а запроектировано 50 см. Т.е. запас прочности достаточно большой, чтобы крепко спать. Что касается армирования, то оно при благополучном грунте (пучинистость наинизшая из возможных), небольшой нагрузке на фундамент (дом 1-этажный площадью менее 100 м) и выбранном стеновом материале (полнотелый керамический кирпич) особой роли не играет. Точно можно без него. Сказали, что если я хочу перестраховаться, больший смысл будет иметь трамбовка дна траншеи и подсыпка тонкого слоя гравия (1 камаз на весь фундамент) с последующей его проливкой. Я, конечно, проконсультируюсь у еще одного конструктора, тем не менее, смысл им меня дурить? Посилання на коментар Поділитися на інших сайтах More sharing options...
blek Опубліковано: 2 липня 2009 Поділитись Опубліковано: 2 липня 2009 НА счет армирования фундамента - это в любом случае необходимо. По той простой причине : бетон не работает на расстяжение или изгиб, зато отлично принемает нагрузки на сжатие, за счет чего совмесно арматура и бетон выдерживают приличные нагрузки. Если же дать нагрузку только на бетон, при малейшей усадке или неравномерной нагрузке в разных частях здания на конструкцию с бетона по конструкции пойдут трещины. Для одноэтажного здания чтобы спокойно спать киньте туда хотя бы 10-тую арматурку. Если есть желание звоните проконсультируем также могу предложить услуги по возведению фундамента: Примерные расценки: Устройство траншеи- 40грн/м3 Укладка бетона - 200 грн/м3 Укладка бетона с армирование - 380 грн/м3 Посилання на коментар Поділитися на інших сайтах More sharing options...
Olga_Flower Опубліковано: 2 липня 2009 Автор Поділитись Опубліковано: 2 липня 2009 Укладка бетона с армирование - 380 грн/м3 Почти в два раза дороже, чем без армирования... Плюс еще арматура с ее доставкой и разгрузкой... Или разгрузка входит в стоимость? Посилання на коментар Поділитися на інших сайтах More sharing options...
Татьяна5 Опубліковано: 2 липня 2009 Поділитись Опубліковано: 2 липня 2009 Почти в два раза дороже, чем без армирования... Плюс еще арматура с ее доставкой и разгрузкой... Или разгрузка входит в стоимость? Ольга, Вы просите, но ребята дело говорят, сделайте фундамент более узким (зачем там 50см ), но проармируйте. Не там экономите 1 Посилання на коментар Поділитися на інших сайтах More sharing options...
blek Опубліковано: 2 липня 2009 Поділитись Опубліковано: 2 липня 2009 Почти в два раза дороже, чем без армирования... Плюс еще арматура с ее доставкой и разгрузкой... Или разгрузка входит в стоимость? В эту цену входит: Вязка каркаса, устройство его в траншею и заливка бетона с трамбовкой Посилання на коментар Поділитися на інших сайтах More sharing options...
Starper Опубліковано: 2 липня 2009 Поділитись Опубліковано: 2 липня 2009 Почти в два раза дороже, чем без армирования.. На Ваш фундамент достаточно пустить три хлыста снизу и два сверху. Это около 150-180 м.пог. арматуры 12-тки. Вес- около 200 кг. Спросил у своих-стоимость увязки - 600 грн\тонна. Итого-работа по увязке 150 грн делает 1 чел за 2 часа.Стоимость арматуры,как я понял ок 800грн, привезти могут и строители если оплатите бензин, все равно ведь едут на объект. Лить бетон строителям все равно или с арматурой, или без, цена не меняется Посилання на коментар Поділитися на інших сайтах More sharing options...
Olga_Flower Опубліковано: 2 липня 2009 Автор Поділитись Опубліковано: 2 липня 2009 На Ваш фундамент достаточно пустить три хлыста снизу и два сверху. Это около 150-180 м.пог. арматуры 12-тки. Вес- около 200 кг. Спросил у своих-стоимость увязки - 600 грн\тонна. Итого-работа по увязке 150 грн делает 1 чел за 2 часа.Стоимость арматуры,как я понял ок 800грн, привезти могут и строители если оплатите бензин, все равно ведь едут на объект. Лить бетон строителям все равно или с арматурой, или без, цена не меняется Ваше сообщение можно расценивать как коммерческое предложение? Если да, то можно услышать остальные расценки? Если общая стоимость работ с армированием увеличится всего лишь на 1000-1500 грн вместе с материалами, ничего не имею против. Посилання на коментар Поділитися на інших сайтах More sharing options...
Starper Опубліковано: 2 липня 2009 Поділитись Опубліковано: 2 липня 2009 . Каждую неделю езжу на дачу мимо Вашего участка. Могу помочь советом, обсуждением смет строителей и т.д. Оплата - чашка хорошего кофе. Мне так проще, чем брать бюджетный объект. Расскажу, как бороться со строителями, ведь сам борюсь ежедневно со своими балбесами. Хотел ответить в личку, но не знаю как это сделать. Посилання на коментар Поділитися на інших сайтах More sharing options...
Olga_Flower Опубліковано: 3 липня 2009 Автор Поділитись Опубліковано: 3 липня 2009 Каждую неделю езжу на дачу мимо Вашего участка. Могу помочь советом, обсуждением смет строителей и т.д. Оплата - чашка хорошего кофе. Мне так проще, чем брать бюджетный объект. Расскажу, как бороться со строителями, ведь сам борюсь ежедневно со своими балбесами. Хотел ответить в личку, но не знаю как это сделать. Большое спасибо за великодушное предложение. Постараюсь им не злоупотреблять Насчет того, как написать в личку: Есть два наиболее удобных способа. 1) Наводите курсор мыши на ник форумчанина, кликаете мышью, выскакивает меню, в котором вторым пунктом будет "Отправить личное сообщение для .. (ник).." После нажатия на этот пункт появится практически такая же форма, как и когда вы пишете на форум. Только после отправки сообщение публикуется исключительно в личных сообщениях адресата. 2) Зайти в меню "мой кабинет" (находится на зеленой полосе вверху), слева появится длинное меню, в котором есть заголовок "личные сообщения". Выберите команду "Новое сообщение", в список получателей копируете ник того, кому пишете. Дальше все как обычно. Чтобы прочитать личные сообщения, отправленные Вам, нужно заходить либо сразу в "мой кабинет" (личные сообщения всегда появляются верхними в списке), либо нажимать на ссылку "личные сообщения" вверху любой из страниц форума (Там, где пишется "Добро пожаловать, Starper" ) Во втором случае Вам будет показан весь список уже имеющихся сообщений. Для быстрого перехода из папки входящих в исходящие (то, что отправлялось Вами) удобно пользоваться выпадающим списком вверху на серо-голубом фоне. Посилання на коментар Поділитися на інших сайтах More sharing options...
ПАРТИЗАН. Опубліковано: 3 липня 2009 Поділитись Опубліковано: 3 липня 2009 Предлагаю прекратить полемику "надо-ненадо". Однозначно лучше проармировать-спать будете спокойней, не сарай же строите а жилой дом. 200 м. арматуры на Ваш фундамент - с головой. Арматура (наша) с доставкой (нашей) и работой по ней увеличит бюджет Вашего строительства на 1300 грн. Спокойный сон не стоит этих денег. Сроки по выполнению фундаментных работ 4 дня. Посилання на коментар Поділитися на інших сайтах More sharing options...
Olga_Flower Опубліковано: 3 липня 2009 Автор Поділитись Опубліковано: 3 липня 2009 Арматура (наша) с доставкой (нашей) и работой по ней увеличит бюджет Вашего строительства на 1300 грн. Окей, я ж даже не спорю Еще со Starperом согласилась, что такое удорожание на всю стоимость работ по фундаменту действительно несущественно и я не против. Сроки по выполнению фундаментных работ 4 дня. Опа. Мне тут в личку писали сроки 2 недели. Интересно, с чем связана такая оперативность в Вашем случае... Посилання на коментар Поділитися на інших сайтах More sharing options...
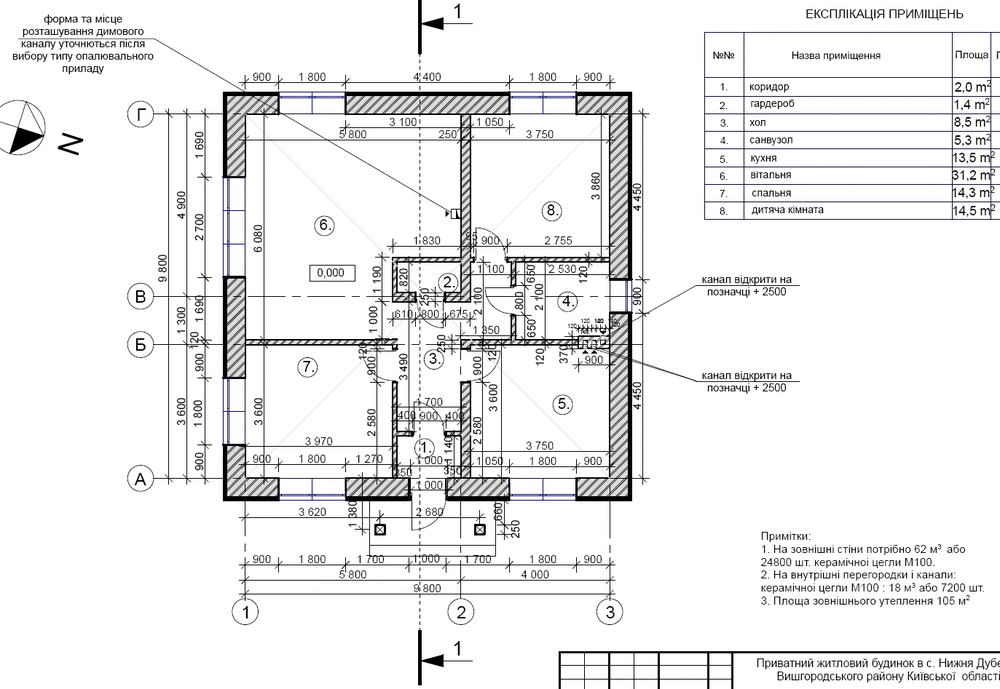
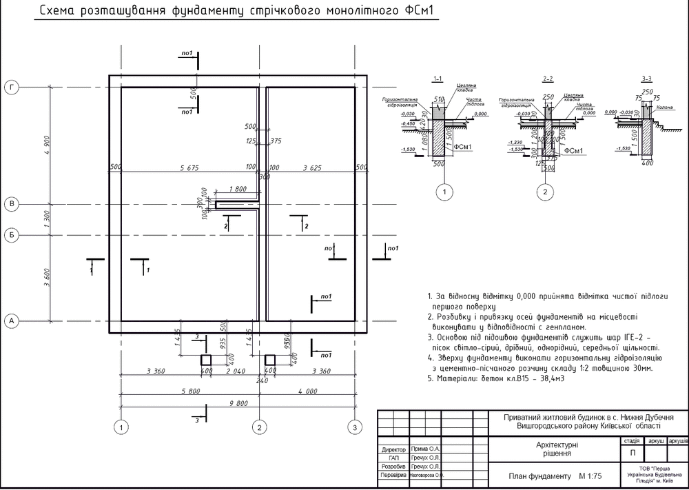
Olga_Flower Опубліковано: 3 липня 2009 Автор Поділитись Опубліковано: 3 липня 2009 Поскольку возникают вопросы в личке касательно всего проекта, выкладываю его сюда (то, что есть в электронном виде, в бумажном имеется полная версия). Посилання на коментар Поділитися на інших сайтах More sharing options...
архітектор Опубліковано: 3 липня 2009 Поділитись Опубліковано: 3 липня 2009 (змінено) НА счет армирования фундамента - это в любом случае необходимо. По той простой причине : бетон не работает на расстяжение или изгиб, зато отлично принемает нагрузки на сжатие, за счет чего совмесно арматура и бетон выдерживают приличные нагрузки. Если же дать нагрузку только на бетон, при малейшей усадке или неравномерной нагрузке в разных частях здания на конструкцию с бетона по конструкции пойдут трещины. Для одноэтажного здания чтобы спокойно спать киньте туда хотя бы 10-тую арматурку. Скажу однозначно сразу: не я проектировал фундамент под гостиницу высотой 3 метра и шириной 80 см без арматуры - это полный бред. Хочу поблагодарить всех здесь присутствующих и написавших свои советы по арматуре. Но скажите пожалуйста, кто из Вас видел геологию заказчика, чтобы давать такие советы? Кто считал нагрузку на фундамент? Кто спросил про стеновые материалы, вес кровли, перекрытия? Кто рассказал про трамбовку траншеи, проливку песка, вибрирование бетона, проверку его качества, кто вообще интересовался маркой бетона в проекте, о увлажнении во время высыхания? Мой ответ - НИКТО! Не буду писать здесь формулы расчета. Но при таких советах расчет конструктора сводиться к нулю. Был совет сделать фундамент уже! А то что ширина кирпичной стены, которая на него опирается имеет 510 мм шириной? Ну и вообще-то, есть еще центральный стояк крыши, который опирается на стену, а потом на часть фундамента. Ну и еще - те кто советовал арматуру, почему не говорите в каком направлении ее ложить? киньте 10- ку - куда кинуть? как кинуть? У меня в руках - знания о проекте и грунте в целом, а не о фрагменте фундамента. Конечно - у меня это работа, потраченное на расчет время, время на оформление чертежей. А у Вас быстрый совет ни к чему не обязывающий, не влекущий ответственности. Для Ольги: Ольга, пожалуйста, обратите внимание на трамбоку и проливку траншеи, засыпку щебня ровным слоем на дно - это подготовка основания - это, конечно нудная работа, которую кубами не измеришь. Пусть строители предложат ступу, которой пройдутся хорошенько по дну траншеи после проливки и засыпки щебнем, и чем больше - тем лучше! А еще - нужно хорошо "проштыковать" бетон - это взять в руки арматурину и в течении получаса ходить вдоль всего монолита (а литься будет в несколько приемов, потому что в одну бетономешалку весь бетон не влезет) - и растрясать бетон движениями вверх-вниз с целью выхода воздуха, уплотнения щебня. Также советую при отгрузке бетона получить транспортную накладную на бетон с указанием марки, времени заливки в миксер. Завод Ковальской сопровождает свой товар обязательным сертификатом качества, где есть гарантия, что этот бетон действительно имее заявленную марку. Армирование предлагают потому, что у нас мало кто из частных заказчиков требует соблюдения технологии и строго контролирует монолитные работы. Армирование - это расчет на то, что основание не подготовят должным образом, не просыпят и не протрамбуют, бетон не проштыкуют, и не провыбрируют (есть такие специальные вибробулавы). Еще будут большие перерывы между подвозкой бетона, а сам бетон не будет соответствовать нужной марке. Это Украина, 21 век. Тем более никто не приедет через день после заливки, чтобы полить фундамент водой, чтобы он сох равномерно, как в земле, так и над ней. На моей стройке я делал это сам, потому что моим строителям было все равно. Конечно - проще перебдеть с арматурой, сделать все по-быстрому, без соблюдения тонкостей технологии, получить деньги и дальше погнали... Змінено 3 липня 2009 користувачем архитектор 1 Посилання на коментар Поділитися на інших сайтах More sharing options...
Рекомендовані повідомлення
Створіть акаунт або увійдіть у нього для коментування
Ви маєте бути користувачем, щоб залишити коментар
Створити акаунт
Зареєструйтеся для отримання акаунта. Це просто!
Зареєструвати акаунтУвійти
Вже зареєстровані? Увійдіть тут.
Увійти зараз