Перейти до публікації
Пошук в
  • Додатково...
Шукати результати, які містять...
Шукати результати в...

Слобожанщина, спроба №1

Михалів

Рекомендовані повідомлення

Всім привіт!

В 2007 було прийнято рішення, що треба вирішувати квартирне питання - ми з дружиною знімали однокімнатну квартиру і в нас народився син. Перше до чого ми звернулись - це пошук квартир але почався ріст цін на нерухомість і купляти однокімнатну за скажені гроші ми не хотіли. Після чого ми звернули увагу на села навколо Харкова і знайшли як ми вважаємо найкращий варіант де і живемо з 2008 року. Була придбана старенька хатка 60-х років та доведена до ладу, зроблено санвузол, заведена вода та газ, виведена каналізація. В подальшому в з*вязку з розширенням родини, було прийнято рішення будувати нову хату і процес почався в 2011 і продовжується зараз.

Маю надію, що моя тема стане до пригоди.

DSC02188.thumb.JPG.ca08b18718e2f68d1cc5eeb8408da005.JPG

Посилання на коментар
Поділитися на інших сайтах

Завдяки цьому форуму було вирішення будуватись з газобетону та зробити УШП але з фінансових міркувань в плиті нема труб.. Було викопано площадку та завезено пісок, закуплено ЕППС. На мій особистий погляд плита це найкращий варіант для малоповерхового будівництва та людей які не є професійними будівельниками. До початку робіт мав нульовий досвід будівництва.

DSC03443.JPG.4e27387d766d02a08a2a11edf7a22c50.JPG

DSC03444.JPG.f218afc65ba7375268bf13d756c32c4f.JPG

DSC03445.JPG.6ff18484f7c8616d649999e52bc986e0.JPG

DSC03449.JPG.b7bae9f198ea233477354ab8bb39ca07.JPG

Посилання на коментар
Поділитися на інших сайтах

Було вибрано газобетон фірми Аерок розміри 200Х600Х500 D400, такий вибір пов*язаний з тим, що не бажаємо проводити додаткові роботи з утеплення. Газобетон було куплено восени і зиму він в палетах простояв на вулиці запакований в заводську плівку. Також було куплено U блокі.

DSC01385.JPG.22e66682364d96ab292e3ea70d3505a9.JPG

DSC01912.JPG.64e076f57fe952cde9dc7f3b9fcb29df.JPG

Посилання на коментар
Поділитися на інших сайтах

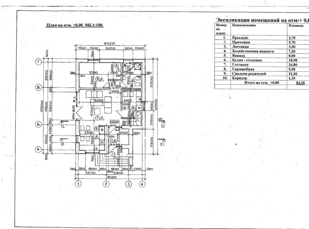
В результаті пошуків було обрано за основу даний варіант - www.projektyzwizja.pl/projekty-domow/z-widokiem, трішки дороблено та підігнано під наші потреби, спальня для нас на першому поверсі та дві спальні для дітей на другому.

img502.thumb.jpg.025f42062799e0aad2519f6188e13641.jpg

img526.thumb.jpg.259c9ac1513bde7efefc0870d7b3b891.jpg

  • Лайк 2
Посилання на коментар
Поділитися на інших сайтах

Вы мало от забора отступили у вас могут быть проблемы потом из соседями. Если вы собираетесь строить ближе чем на 3 м. до забора, надо взять письменное разрешения у соседа, что он не против!
Посилання на коментар
Поділитися на інших сайтах

Хата вже стоїть:), поки проблем з сусідами не було..

Плита, хочу звернути увагу людей які будуються самі не економте на потрібних речах - в мене це бетон фірма "Момот бетон", газобетон та бетононасос. Арматуру в*язав разом з дружиною пластиковими хомутами для електрики, підлога в кімнатах 10 см бетону, в ребрах 30 см, ширина в ребрах 40 см бетону.

DSC05019.JPG.23c8d1a4b7031f04cff97225b574f356.JPG

DSC05022.JPG.2f160a51135af902ff96602780590e44.JPG

IMG_0040.jpg.a10fd7de9706a4196af81baed947981f.jpg

IMG_0044.jpg.9e6ec36e58a37f83b8ebf9e58c68a44e.jpg

IMG_0080.jpg.8dc0962a623782da0ad625b8d525a459.jpg

IMG_0085.jpg.02fe8796b945e71de9e6588cd35786ab.jpg

IMG_0086.jpg.f07e6a4785d7ec441877f57e1ea31e28.jpg

IMG_0089.jpg.a6df1da3fc9068381479e05ab8a532a1.jpg

Змінено користувачем Михалів
Посилання на коментар
Поділитися на інших сайтах

Ширина блоку 500, на даний час взяв би 400 - незручно класти та важкий, внутрішні перегородки ширина 200. Пройоми зроблені по армопоясу, елемент перев*язки внутрішньої та зовнішньої стіни, для вирівнювання блоків використовував спочатку тьорку з крупной фракцієй але в подальшому купив тьорку для пінопласту яка прекрасно підходила для моїх цілей.

На будівництві планомірно використовувалась дитяча праця.

DSC02135.JPG.1c4d88455adac28f53c86cdf56f8bd09.JPG

DSC00367.JPG.01c717f991f17e53188e68498f5eb744.JPG

DSC02884.JPG.a7f6a9608e9d84eaaddc0bca74f91339.JPG

DSC02889.JPG.e83eeda4716603296da4829c841bf28e.JPG

DSC02890.JPG.1f10510a9638bc664eb9e463aa4274a5.JPG

DSC01981.JPG.fc752e40dcc7e9f5f22b713c6f0da384.JPG

DSC02003.JPG.3df7dafcb293c85008084cefd1e66380.JPG

DSC02009.JPG.d35d57e6f803531551f865f9ef2790f8.JPG

DSC02019.JPG.7d3999b2a4b36fe66801b7d0f1726011.JPG

DSC02031.JPG.bcf113882b32c1b178526e8d5e4868de.JPG

DSC02030.JPG.46028f4b40978f78a022d654430b654c.JPG

Посилання на коментар
Поділитися на інших сайтах

Створіть акаунт або увійдіть у нього для коментування

Ви маєте бути користувачем, щоб залишити коментар

Створити акаунт

Зареєструйтеся для отримання акаунта. Це просто!

Зареєструвати акаунт

Увійти

Вже зареєстровані? Увійдіть тут.

Увійти зараз
×
×
  • Створити...