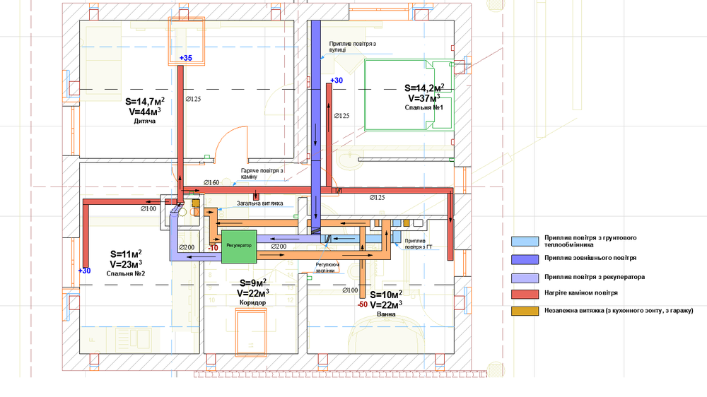
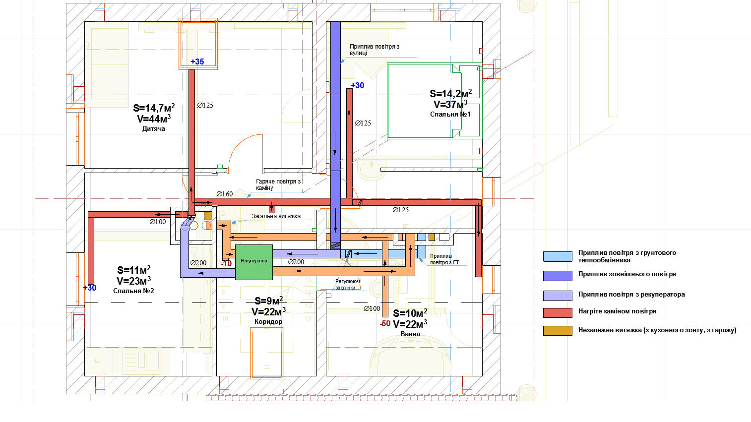
Halvis Опубліковано: 11 серпня 2015 Поділитись Опубліковано: 11 серпня 2015 Всім привіт! Збудовано будинок з газоблоків на фундаменті УШП (один поверх + мансар). Перекриття: дерев'яні балки. Перший поверх буде опалюватись теплими підлогами. На мансардному поверсі ще немає ніякого опалення. Хочу реалізовувати приточно-витяжну вентиляцію з можливістю повітряного опалення мансардного поверху. Останні кілька тижнів думаю над цим. Радий поділитись своїми думками, і почути думки, поради, критику ... спеціалістів стосовно моєї схеми вентиляції та опалення. Перший поверх: Мансардний поверх: Розріз шахти, де буде стояти камінна топка: Відразу кажу, що рекуператор планую придбати не відразу, а з часом, проте намагаюсь все зробити під нього. Приплив повітря влітку і взимку буде проводитись через грунтовий теплообмінник (40% вже прокладено), а в міжсезоння з фасаду. Для цього на схемі поставив дві заслінки. Для нагріву повітря взимку буде використовуватись камінна топка. Схему вентиляції намагався зробити такою, щоб на мансардному поверсі гаряче повітря могло йти по тих самих вентканалах що і притік свіжого повітря; також передбачено можливість підмішування свіжого повітря в нагріте каміном внутрішнє повітря. Якщо дивитись розріз шахти, то можливі такі варіанти роботи: 1) В неопалювальний сезон заслінки 2 і 4 закриті, 1 і 3 відкриті - повітря поступає з рекуператора до приміщень мансардного поверху і до кімнат першого поверху. 2) В опалювальний період, коли потрібно опалювати кімнати і першого і мансардного поверхів, заслінки 2, 4 відкриті, 1, 3 частково відкриті - для підмішування свіжого повітря. 3) Для обігріву ПО тільки мансардного поверху і вентиляції першого поверху (оскільки І поверх буде опалювати ТП) потрібно закрити заслінки 1, 4 і відкрити 2, 3. Планую ще поставити водяний нагрівач на лінії подачі повітря після рекуператора (+225 м3/год). Щоб можна було опалювати мансардний поверх, коли не топиться камін. А тепер питання: 1) Які нюанси в такій схемі, чи буде вона так працювати як я думаю? 2) Як порахувати аеродинамічний опір по притоку? Починати з ПВУ? Додатково рахувати опір грунтового теплообмінника до входу в ПВУ? 3) Чи нормально підібрані діаметри вентканалів? 4) Чи можна установити камінний вентилятор у шахті так, як він схематично зображений ? 5) Де потрібно ставити шумоглушники? 6) Чи потрібно в туалеті ставити додатково вентилятор на витяжку? У випадку коли ПВУ в літні періоди буде вимкнена? 7) Те ж саме стосовно ванни? 8) У мене є син, 4 роки - алергетик, особливо на домашній пил. Тому у решітках притоку повітря для нагріву каміном хочу поставити фільтрувальний метаріал, може якийсь порадите? 9) Чи можна ставити фільтр на нагнітанні гарячого повітря після камінного вентилятора? З якого матеріалу він повинен бути? Також потрібен фільтр для загального притоку перед ПВУ. 1 Посилання на коментар Поділитися на інших сайтах More sharing options...
Mamaluga Опубліковано: 12 серпня 2015 Поділитись Опубліковано: 12 серпня 2015 Всім привіт! А тепер питання: 1) Які нюанси в такій схемі, чи буде вона так працювати як я думаю? 2) Як порахувати аеродинамічний опір по притоку? Починати з ПВУ? Додатково рахувати опір грунтового теплообмінника до входу в ПВУ? 3) Чи нормально підібрані діаметри вентканалів? 4) Чи можна установити камінний вентилятор у шахті так, як він схематично зображений ? 5) Де потрібно ставити шумоглушники? 6) Чи потрібно в туалеті ставити додатково вентилятор на витяжку? У випадку коли ПВУ в літні періоди буде вимкнена? 7) Те ж саме стосовно ванни? 8) У мене є син, 4 роки - алергетик, особливо на домашній пил. Тому у решітках притоку повітря для нагріву каміном хочу поставити фільтрувальний метаріал, може якийсь порадите? 9) Чи можна ставити фільтр на нагнітанні гарячого повітря після камінного вентилятора? З якого матеріалу він повинен бути? Також потрібен фільтр для загального притоку перед ПВУ. Что бросилось в глаза: 1) и ванны нужно по нормам удалять хотя бы 75 кубов а из туалета 50 2) в гостиной бы увеличил бы приток до 150. (как раз будет баланс по этажу +180/-180) 3)а как Вы планируете столкнуть два потока из рекуператора и из камина и нормально их потом раздать, я думаю это невозможно 1 Посилання на коментар Поділитися на інших сайтах More sharing options...
Halvis Опубліковано: 12 серпня 2015 Автор Поділитись Опубліковано: 12 серпня 2015 Что бросилось в глаза: 1) из ванны нужно по нормам удалять хотя бы 75 кубов а из туалета 50 2) в гостиной бы увеличил бы приток до 150. (как раз будет баланс по этажу +180/-180) Можна збільшити, але хіба що в теплу пору року. Взимку будуть більші затрати на підігрів, тому не хочу. 3)а как Вы планируете столкнуть два потока из рекуператора и из камина и нормально их потом раздать, я думаю это невозможно Потрібно, щоб потоки були однакового тиску. Треба поставити датчики тиску: один перед заслінками притоку, інший перед заслінками гарячого повітря, і щоб кожен вентилятор працював на однаковий тиск згідно свого датчика. Це вже автоматизація, яка потягне додаткові витрати. Але я буду використовувати або нагрів, або вентиляцію. Тобто відповідні дросельні заслінки будуть або повністю відкриті або закриті (згідно опису роботи наведеного в першому пості). Стосовно заслінок 3 і 4, які відкривають повітря назустріч один одному Ви швидше за все праві, повітря потрібно змішувати після повороту вліво, а не так як я накреслив. Дякую. Посилання на коментар Поділитися на інших сайтах More sharing options...
Дмитрий Бабенко Опубліковано: 13 серпня 2015 Поділитись Опубліковано: 13 серпня 2015 начните с расчетов: 1. количества тепла 2. количества воздуха для подачи этого тепла. 1 Посилання на коментар Поділитися на інших сайтах More sharing options...
Zurbagan Опубліковано: 15 серпня 2015 Поділитись Опубліковано: 15 серпня 2015 Я бы снимал тепло с камина через промежуточные теплообменники. Т.к. конструкция внутри дома постоянного проживания - на воде. По поводу подачи воздуха на рекуператор нужно смотреть характеристики воздуха, удаляемого из помещения. Иногда фильтра выходят так дорого, что рекуперацию делать бессмысленно. А, ну и объединять (тем более в рекуператор) жилые и санитарные вытяжки нельзя. 1 Посилання на коментар Поділитися на інших сайтах More sharing options...
Halvis Опубліковано: 16 серпня 2015 Автор Поділитись Опубліковано: 16 серпня 2015 ну и объединять (тем более в рекуператор) жилые и санитарные вытяжки нельзя. Тобто витяжку з кухні не можна об'єднувати з ванною/туалетом? Чому тоді на багатьох схематичних фото з рекуператором ці витяжки об'єднані? >>> >>> Посилання на коментар Поділитися на інших сайтах More sharing options...
Дмитрий Бабенко Опубліковано: 17 серпня 2015 Поділитись Опубліковано: 17 серпня 2015 потому что картинки рисуют маркетологи, которые не знакомы с ДБН 2.5.67-2003 1 Посилання на коментар Поділитися на інших сайтах More sharing options...
Halvis Опубліковано: 18 серпня 2015 Автор Поділитись Опубліковано: 18 серпня 2015 потому что картинки рисуют маркетологи, которые не знакомы с ДБН 2.5.67-2003 ОК. Витяжку з туалету робитиму окремо. Проте з ванни якось не хочеться окремої витяжки поза майбутнім рекуператором. Може щось порадите на рахунок фільтрувального матеріалу для вентиляційних решіток перед каміном? Посилання на коментар Поділитися на інших сайтах More sharing options...
Дмитрий Бабенко Опубліковано: 19 серпня 2015 Поділитись Опубліковано: 19 серпня 2015 пораджу про рекуператор для санвузлив, кухонь и т.п. гликолевые последовательно. да, много вентиляторов и калориферов. надо просчитывать. Посилання на коментар Поділитися на інших сайтах More sharing options...
Dmode Опубліковано: 21 серпня 2015 Поділитись Опубліковано: 21 серпня 2015 ОК. Витяжку з туалету робитиму окремо. Проте з ванни якось не хочеться окремої витяжки поза майбутнім рекуператором. Я собі зробив в санвузлах 2 витяжки: одна на рекуператор, друга на вулицю. Можна користуватися окремо, або обидвома. Рекуператори ніби бувають з різними теплообмінниками: з металевими можна витягувати з санвузлів, з паперовими може бути переток запахів. 1 Посилання на коментар Поділитися на інших сайтах More sharing options...
Halvis Опубліковано: 21 серпня 2015 Автор Поділитись Опубліковано: 21 серпня 2015 Недавно натрапив на таку річ: це решітка для каміну разом з вентиляторами. >>> Шукав альтернативу камінному вентилятору. Щось мені не дуже подобається ідея його монтажу в вентиляційну шахту над каміном. По-перше, підвищена температура повітря навколо кам. вентилятора , по-друге, для доступу до нього потрібно робити або додаткову решітку, яка служитиме віконечком щоб до нього добратися, або ще щось. Поляки пропонують на притоці поставити решітку з вентиляторами. Як на мене - непогано, рівень шуму аналогічний з камінним вентилятором, доступ до вентиляторів - без проблем, ціна - значно нижча. Тільки чомусь в характеристиках немає продуктивності вентиляторів, точніше є, але в одиницях CFM. Чому не дати продуктивність в м3/год, не розумію. Хто що скаже з приводу практичності даного девайсу в порівнянні з камінним вентилятором? В Україні на такі решітки не натрапляв. Посилання на коментар Поділитися на інших сайтах More sharing options...
Halvis Опубліковано: 21 серпня 2015 Автор Поділитись Опубліковано: 21 серпня 2015 Я собі зробив в санвузлах 2 витяжки: одна на рекуператор, друга на вулицю. Можна користуватися окремо, або обидвома. Рекуператори ніби бувають з різними теплообмінниками: з металевими можна витягувати з санвузлів, з паперовими може бути переток запахів. Дякую за пораду. Так, напевно, буде найкраще зробити. В моєму випадку є можливість зробити окрему витяжку поза рекуператором з обох санвузлів, але тільки через канал витяжки з гаражу. Тому там думаю поставити канальний вентилятор. Посилання на коментар Поділитися на інших сайтах More sharing options...
Dmode Опубліковано: 21 серпня 2015 Поділитись Опубліковано: 21 серпня 2015 точніше є, але в одиницях CFM www.cqham.ru/airflow.htm Чаще всего значение воздушного потока импортных вентиляторов указывается в CFM (кубический фут в минуту) Пересчитать это значение в «кубометр в час» очень просто, достаточно значение CFM умножить на 1,7. 1 Посилання на коментар Поділитися на інших сайтах More sharing options...
Halvis Опубліковано: 21 серпня 2015 Автор Поділитись Опубліковано: 21 серпня 2015 Отже продуктивність одного вентилятора = 78*1,7 = 132,6 м3/год, а решітки з трьома вентиляторами - майже 400 м3/год, непогано... Коли в характеристиці вентилятора не вказаний статичний тиск, а вказано тільки продуктивність, то мається на увазі продуктивність при нульовому статичному тиску? Добавлено через 11 минут Dmode, Ви в своїй системі вентиляції ставили шумоглушники? Посилання на коментар Поділитися на інших сайтах More sharing options...
Dmode Опубліковано: 21 серпня 2015 Поділитись Опубліковано: 21 серпня 2015 (змінено) А чому на мансардному поверсі приток іде через спальню? Може розглянути його розміщення в коридорі? Бо якщо труба 250мм, то це 0.8м2 поверхні на кожен погонний метр, за якою буде мінусова температура, навіщо в спальні ці тепловтрати, нехай би були в меньш опалюваному коридорі... Добавлено через 1 минуту Dmode, Ви в своїй системі вентиляції ставили шумоглушники? Я ще не купив рекуператора, тому глушники для мене на разі не актуальні. Про них поки взагалі не думав. До речі ось інфо німецького інституту пасивного будинку www.passivhaustagung.de/Passive_House_E/ventilation_06.html Згідно їх стандартів кухня та санвузли витягуються через рекуператор. Ось розріз збудованого в Ганновері пасивного будинку зі схемою вентиляції, з матеріалів конференції по пасивному будівництву з 2006р. (Section from the Passive House estate at Hannover Kronsberg, design by Rasch & Grenz. These row houses have been opened during the field trip of the 10th Conference on Passive Houses, Sunday, May 21st 2006) Також, в прикріпленому PDF опис розділу вентиляції цього проекту. Думаю Вам буде цікаво в ньому розібратись. Там зазначено на схемі де було встановлено шумопоглиначі, з якого матеріалу зроблена система, які були прийняті швидкості повітря в системі, яка величина повітрообміну для кожного приміщення, втрати тиску при різних режимах роботи системи і тд. Правда версія англомовна, але думаю при бажанні розберетесь. passive-vent.pdf Змінено 21 серпня 2015 користувачем Dmode 2 Посилання на коментар Поділитися на інших сайтах More sharing options...
Halvis Опубліковано: 22 серпня 2015 Автор Поділитись Опубліковано: 22 серпня 2015 А чому на мансардному поверсі приток іде через спальню? Може розглянути його розміщення в коридорі? Бо якщо труба 250мм, то це 0.8м2 поверхні на кожен погонний метр, за якою буде мінусова температура, навіщо в спальні ці тепловтрати, нехай би були в меньш опалюваному коридорі... Думав, що Ви мали на увазі, коли писали про теплові втрати в спальній, і зрозумів. Канал вентиляції не буде йти в шарі мінеральної вати утепленого перекриття і не буде зменшувати його товщину, оскільки в моєму випадку так зробити проблемно. Якщо Ви це мали на увазі. Я буду вести канал над утепленим перекриттям спальні. З коридору ближче, але і складніше, бо там потрібно вести трубу по скату даху вниз. з картинки зрозумієте: До речі, чи потрібно утеплювати канал притоку, який проходить через неопалюване горище до майбутнього рекуператора? І ще, можливо Ви цікавились рекуператорами і підкажете, - канали притоку і витяжки в рекуператорі йдуть паралельно чи перехрещуються? В своїй схемі намалював, що перехрещуються. Чи різні виробники по різному? Також, в прикріпленому PDF опис розділу вентиляції цього проекту. Думаю Вам буде цікаво в ньому розібратись. Дуже цікаво. Буду розбиратись, дякую за інформацію. Посилання на коментар Поділитися на інших сайтах More sharing options...
Dmode Опубліковано: 22 серпня 2015 Поділитись Опубліковано: 22 серпня 2015 І ще, можливо Ви цікавились рекуператорами і підкажете, - канали притоку і витяжки в рекуператорі йдуть паралельно чи перехрещуються? В своїй схемі намалював, що перехрещуються. Чи різні виробники по різному? По різному. Ось огляд польского ринку www.wentylacyjny.pl/1035-49-234-rekuperatory--zestawienie-oferty-producentow.html По кожному можна перейти на сторінку виробника і вивчити конструкцію. Добавлено через 4 минуты До речі, чи потрібно утеплювати канал притоку, який проходить через неопалюване горище до майбутнього рекуператора? Наскільки я розумію, утеплювати треба витяжку, яка буде входити в рекуператор з мансардного поверху. Вхід в рекуператор вуличного холодного повітря утеплювати без сенсу, оскільки горище не опалювальне. 1 Посилання на коментар Поділитися на інших сайтах More sharing options...
Halvis Опубліковано: 23 серпня 2015 Автор Поділитись Опубліковано: 23 серпня 2015 По різному. Ось огляд польского ринку Ціни кусаються ... Як варіант, шукав рекуператори на китайському alibaba.com: >>> В переглянутих мною рекуператорах продуктивністю біля 250-300 м3/год діаметри каналів для під'єднання 150 або 160 мм. Чи є сенс підводити і відводити вентканали більшого діаметру, наприклад 200? Думаю по притоку до рекуператора і витяжці після нього можна обмежитись 160мм. При моєму розрахунковому об'ємі повітрообміну в 225 м3/год і діаметрі 160мм, швидкість повітря в каналах буде 3,11 м/с. Але по іншу сторону рекуператора думаю варто перейти на більший діаметр до перших розгалужень, для зменшення шуму і опору. Як гадаєте? Наскільки я розумію, утеплювати треба витяжку, яка буде входити в рекуператор з мансардного поверху. Вхід в рекуператор вуличного холодного повітря утеплювати без сенсу, оскільки горище не опалювальне. Логічно, задав зайве питання. Посилання на коментар Поділитися на інших сайтах More sharing options...
Dmode Опубліковано: 23 серпня 2015 Поділитись Опубліковано: 23 серпня 2015 Ціни кусаються ... Як варіант, шукав рекуператори на китайському alibaba.com: >>> Якщо знайти прийнятний спосіб та ціну доставки, то чому ні. В переглянутих мною рекуператорах продуктивністю біля 250-300 м3/год діаметри каналів для під'єднання 150 або 160 мм. Чи є сенс підводити і відводити вентканали більшого діаметру, наприклад 200? Думаю по притоку до рекуператора і витяжці після нього можна обмежитись 160мм. При моєму розрахунковому об'ємі повітрообміну в 225 м3/год і діаметрі 160мм, швидкість повітря в каналах буде 3,11 м/с. Але по іншу сторону рекуператора думаю варто перейти на більший діаметр до перших розгалужень, для зменшення шуму і опору. Як гадаєте? Прийміть до уваги: 1. Електроспоживання рекуператора від мінімальної до максимальної потужності (режимів роботи) 2. Опір Вашої системи. Для початку, варто би було визначити опір ситсеми, його графік. Та накласти його на графік зміни продуктивності в залежності від опору системи самого рекуператора. Наприклад: ось графік рекуператора AERIS 450 LUXE, з задекларованими показниками ефективності теплообміну в 95%, який видає 450м3 при опорі 200Па, на максимальній потужності. Електроспоживання становить від 19Вт на мінімумі до 245Вт на максимальній потужності. Але чи влаштовує Вас 245Вт цілодобового споживання? Може глянути в сторону параметрів на рівнях потужності наближених до мінімальних? Якщо пробувати примітивно провести лінію на рівні ваших 225м3, видно що таку продуктивність можна досягнути на потужності 50%(132Вт) при опорі 60Па, або при 60%(155Вт) при опорі 150Па. Для того щоб точніше зрозуміти реальну продуктивність, треба накласти графік опору Вашої системи на графік виробника. Для прикладу я наклав подібний графік. З нього ви зможете побачити на яких потужностях, яку продуктивність отримаєте. Тоді і зможете підібрати собі і діаметр системи і сам рекуператор. Бо можливо прийдете до висноку що, варто зменьшити опір системи збільшивши діаметр, і взяти меньш потужний рекуператор. Та простіше буде підібрати саме такий девайс, який дасть потрібну продуктивність при Вашому опорі, при прийнятному електроспоживанні. Щоб порахувати графік опору системи, візміть повітрообмін від 0 до 250м3 з кроком в 10м3 і для кожного значення повітрообміну знайдіть відповідний опір, потім в екселі побудуйте графік. 4 Посилання на коментар Поділитися на інших сайтах More sharing options...
Halvis Опубліковано: 26 серпня 2015 Автор Поділитись Опубліковано: 26 серпня 2015 Щиро дякую. Прийміть до уваги: 1. Електроспоживання рекуператора від мінімальної до максимальної потужності (режимів роботи) 2. Опір Вашої системи. Про електроспоживання рекуператора навіть не задумувався, а все ж варто. Буду рахувати опір системи. Бо можливо прийдете до висновку що, варто зменьшити опір системи збільшивши діаметр, і взяти меньш потужний рекуператор. Вже прийшов до цього висновку, завдячуючи Вашим наочним поясненням. 1 Посилання на коментар Поділитися на інших сайтах More sharing options...
Halvis Опубліковано: 11 вересня 2015 Автор Поділитись Опубліковано: 11 вересня 2015 Підкажіть, будь-ласка, де взяти коефіцієнти місцевих опорів фасонних елементів (відводів, трійників, перехідників) для розрахунку опору системи повітропроводів? Посилання на коментар Поділитися на інших сайтах More sharing options...
Dmode Опубліковано: 11 вересня 2015 Поділитись Опубліковано: 11 вересня 2015 Можливо вам буде цікаво глянути на цю програму, в ній можна розрахувати подібні елементи. www.sibclim.ru/2011/06/10/vent-calc-v2.0.6.2011-programma-dlja.html (ссылка на изображение устарела) 2 Посилання на коментар Поділитися на інших сайтах More sharing options...
Рекомендовані повідомлення
Створіть акаунт або увійдіть у нього для коментування
Ви маєте бути користувачем, щоб залишити коментар
Створити акаунт
Зареєструйтеся для отримання акаунта. Це просто!
Зареєструвати акаунтУвійти
Вже зареєстровані? Увійдіть тут.
Увійти зараз