Olsay Опубліковано: 14 серпня 2015 Поділитись Опубліковано: 14 серпня 2015 Собственно есть участок с существующим на нем цоколем. Есть "сырая" наработка будущего проекта одноэтажника. Покритикуйте. С изменений что будут 100% внесены: 1. Зеркальное расположение дверей в оба с.у.; 2. Объединение кабинета и балкончика в одно общее помещение (назначение пока под вопросом).План2.PDF Посилання на коментар Поділитися на інших сайтах More sharing options...
Olsay Опубліковано: 14 серпня 2015 Автор Поділитись Опубліковано: 14 серпня 2015 Собственно выше доработка вот этого варианта: Так как уже есть полноценный цокольный этаж в нем планируется разместить все технические помещения.План (2).PDF Посилання на коментар Поділитися на інших сайтах More sharing options...
ДОКС Опубліковано: 14 серпня 2015 Поділитись Опубліковано: 14 серпня 2015 Покритикуйте. а що Вас конкретно цікавить? які умови були для проектування? що з ділянкою? де північ? Посилання на коментар Поділитися на інших сайтах More sharing options...
Olsay Опубліковано: 14 серпня 2015 Автор Поділитись Опубліковано: 14 серпня 2015 а що Вас конкретно цікавить? які умови були для проектування? що з ділянкою? де північ? Интересует в первую очередь эргономика планировки помещений. Сильно переигрывать что-то не получится, так как цоколь уже есть и он расположен в конкретном месте на участке и с конкретной ориентацией. Пару фото в очень низком качестве для наглядности (с изначального проекта по которому делался фундамент). Основными условиями было наличие трех спален, при чем хозяйская без смежных стен с другими и много остекления в гостинной, так как там прикольный вид открывается. Посилання на коментар Поділитися на інших сайтах More sharing options...
ДОКС Опубліковано: 14 серпня 2015 Поділитись Опубліковано: 14 серпня 2015 Интересует в первую очередь эргономика планировки помещений. По-перше: дратують люто двері з с/у прямесенько у вітальню - сиджу такий собі на раслабоні, дивлюся якусь соплячу мелодраму на дивані аж раптом прямо за вухами як не пердуни, так водограй торчка. курва весь вечір зламали... навіщо? По-друге: якщо все вже вирішено та цоколь стоїть та краєвид гарний, на шо Вам та критика - будуйте та хай щастить... 2 Посилання на коментар Поділитися на інших сайтах More sharing options...
Olsay Опубліковано: 14 серпня 2015 Автор Поділитись Опубліковано: 14 серпня 2015 По-перше: дратують люто двері з с/у прямесенько у вітальню - сиджу такий собі на раслабоні, дивлюся якусь соплячу мелодраму на дивані аж раптом прямо за вухами як не пердуни, так водограй торчка. курва весь вечір зламали... навіщо? По-друге: якщо все вже вирішено та цоколь стоїть та краєвид гарний, на шо Вам та критика - будуйте та хай щастить... По поводу с.у. полностью согласен. Поэтому склоняюсь к варианту сделать дверь основного с.у. с выходом в хозяйскую спальню, а гостевого дверь к другим спальням. Меня больше волнует не слишком ли "туннельный" коридор получается. А что касается критики, то она всегда полезна ;) На эти планировки смотрю постоянно, уже ничего не вижу, а свежий взгляд может преподнести очень подходящий ракурс оценки существующей планировки, который укажет на явные эксплуатационные косяки Посилання на коментар Поділитися на інших сайтах More sharing options...
ДОКС Опубліковано: 14 серпня 2015 Поділитись Опубліковано: 14 серпня 2015 А что касается критики, то она всегда полезна можливо щось громада і відповість... На эти планировки смотрю постоянно, уже ничего не вижу то я думаю шо як в тому анекдоті треба не "ліжка переставляти, а ... міняти"... ))) все. мовчу. більше не буду)))))) Посилання на коментар Поділитися на інших сайтах More sharing options...
Olsay Опубліковано: 17 серпня 2015 Автор Поділитись Опубліковано: 17 серпня 2015 Кроме небольшого троллинга так никто и не захотел дать свою оценку придуманной планировке Посилання на коментар Поділитися на інших сайтах More sharing options...
Layma Опубліковано: 17 серпня 2015 Поділитись Опубліковано: 17 серпня 2015 а мне нравится планировка. очень даже не плохо. Меня больше волнует не слишком ли "туннельный" коридор получается. это легко визуально скрыть с помощью больших зеркал от пола. 1 Посилання на коментар Поділитися на інших сайтах More sharing options...
Olsay Опубліковано: 20 серпня 2015 Автор Поділитись Опубліковано: 20 серпня 2015 Первые эскизы фасадов. Посилання на коментар Поділитися на інших сайтах More sharing options...
Дядя Гриша Опубліковано: 20 серпня 2015 Поділитись Опубліковано: 20 серпня 2015 Сразу учтите маленький грузовой лифт из гаража в район кухни с соответствующей изоляцией. С сумками подниматься по Вашим лестницам будет тяжко. Не уверен в необходимости гаража для 2-х машин. Может лучше что-то типа бани/сауні Посилання на коментар Поділитися на інших сайтах More sharing options...
jenkins Опубліковано: 21 серпня 2015 Поділитись Опубліковано: 21 серпня 2015 (змінено) Не очень понял,зачем лестница в одноэтажном доме? В гараж? Если в гараж то сомневаюсь в ее рациональности в таком виде. 2санузла точно нужно? Второй санузел возле лестницы немного усложнит коммуникации (трубы), хотя может через подвал можно. Где будет котел, бойлер? Увидел план подвала, вопросы не актуальны. Какое будет перекрытие(крыша)? Точнее куда будет опираться перекрытие над гостинной? Змінено 21 серпня 2015 користувачем jenkins Посилання на коментар Поділитися на інших сайтах More sharing options...
Olsay Опубліковано: 21 серпня 2015 Автор Поділитись Опубліковано: 21 серпня 2015 Не очень понял,зачем лестница в одноэтажном доме? В гараж? Если в гараж то сомневаюсь в ее рациональности в таком виде. 2санузла точно нужно? Второй санузел возле лестницы немного усложнит коммуникации (трубы), хотя может через подвал можно. Где будет котел, бойлер? Увидел план подвала, вопросы не актуальны. Какое будет перекрытие(крыша)? Точнее куда будет опираться перекрытие над гостинной? Ждем конструкторское решение, но вроде, со слов архитектора, ничего сложного) Добавлено через 1 минуту Сразу учтите маленький грузовой лифт из гаража в район кухни с соответствующей изоляцией. С сумками подниматься по Вашим лестницам будет тяжко. Не уверен в необходимости гаража для 2-х машин. Может лучше что-то типа бани/сауні Интересная идея по поводу лифта ;) А что касается гаража, то обустройство цоколя сейчас далеко не на повестке дня. Может и пересмотрим концепцию обустройства помещений. Добавлено через 1 минуту Сразу учтите маленький грузовой лифт из гаража в район кухни с соответствующей изоляцией. С сумками подниматься по Вашим лестницам будет тяжко. Не уверен в необходимости гаража для 2-х машин. Может лучше что-то типа бани/сауні Интересная идея по поводу лифта ;) А что касается гаража, то обустройство цоколя сейчас далеко не на повестке дня. Может и пересмотрим концепцию обустройства помещений. Посилання на коментар Поділитися на інших сайтах More sharing options...
ARCH INNOVATION Опубліковано: 21 серпня 2015 Поділитись Опубліковано: 21 серпня 2015 Первые эскизы фасадов. Очень даже не плохо, немного работы над мелочами и после реализации можно приглашать фотографа из глянца. 1 Посилання на коментар Поділитися на інших сайтах More sharing options...
Olsay Опубліковано: 21 серпня 2015 Автор Поділитись Опубліковано: 21 серпня 2015 Очень даже не плохо, немного работы над мелочами и после реализации можно приглашать фотографа из глянца. О каких мелочах речь идет? Посилання на коментар Поділитися на інших сайтах More sharing options...
ARCH INNOVATION Опубліковано: 21 серпня 2015 Поділитись Опубліковано: 21 серпня 2015 О каких мелочах речь идет? Немного мелочей по фасаду "украшений" и всё тип-топ. Посилання на коментар Поділитися на інших сайтах More sharing options...
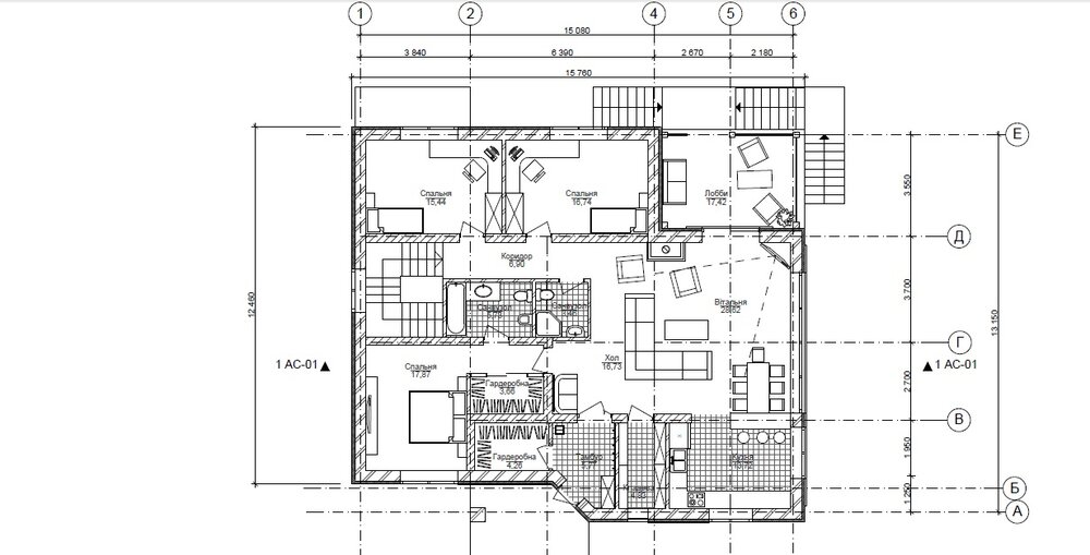
Olsay Опубліковано: 22 серпня 2015 Автор Поділитись Опубліковано: 22 серпня 2015 Собственно и сам утвержденный план. Изначальная идея разместить хозяйскую спальню таким образом, что бы не было смежных стенок с детскими/гостевыми в итоге переросла в концепцию абсолютно приватной и зоны со своей отдельной гардеробной и с.у. Но если с планировкой все более или менее понятно, то чем больше читаю, тем меньше мне нравится идея с плоской кровлей, как по цене, так и по ее эксплуатации в длительной перспективе. Рассматривать обычную четырехскатку не сильно хочется. Думаю над односкатной, но при таком габарите дома ее угол будет просто смешным, что не позволит использовать большинство привычных вариантов кровельного покрытия. Может кто-то подскажет как решить эту дилемму? Посилання на коментар Поділитися на інших сайтах More sharing options...
Музей Опубліковано: 23 серпня 2015 Поділитись Опубліковано: 23 серпня 2015 Может кто-то подскажет как решить эту дилемму? Фальц для односкатки найкраще рішення. Для пласкої покрівлі мембрана ТПО. ПВХ трохи дешевше. Вам подобається с\в, що виходить на вітальню? 1 Посилання на коментар Поділитися на інших сайтах More sharing options...
Рекомендовані повідомлення
Створіть акаунт або увійдіть у нього для коментування
Ви маєте бути користувачем, щоб залишити коментар
Створити акаунт
Зареєструйтеся для отримання акаунта. Це просто!
Зареєструвати акаунтУвійти
Вже зареєстровані? Увійдіть тут.
Увійти зараз