vap79 Опубліковано: 27 серпня 2015 Поділитись Опубліковано: 27 серпня 2015 День добрый Всем, история началась еще в феврале месяце этого года Тогда было принято решение строить дом с прицелом на старость, и пока она еще не наступила проводить в нем летные, зимние каникулы детей и выходные с праздничными дни. 1.) Было принято решение где строимся 2.) Найден примерный проект дома в интернете, (все что находили ни один не нравился по планировке), после долгих поисков, раздумывай остановились на таком варианте "Красивый дом с эркером № V-166-1P" 3.) Поиск архитектора/конструктора для разработки проекта на основе найденного (архитектор был успешно найдет на форуме, большое спасибо Татьяне с пониманием и выдержкой отнеслась к переделкам проекта и т.д., переделки из-за того что желания менялись) 4.) Имея на руках готовый проект были закуплены основные материалы которые могут лежать - ГБ 300мм D400 B2.5 - 63м3 по 765грн - Арматура 8мм, 10мм, 12мм - в общем весе 2.9т по 1420грн - ЕППС 50мм, 45м2 по 50грн/м2 - ЕППС 30мм, 45м2 по 40мгн/м2 - Минвата на чердачное перекрытие, Роклайт 45кг/м3 толщиной 100мм - 140м2 по 28грн/м2 5.) Поиск стройбригады которая будет строить дом, была успешно найдена на форуме по отзывам (отличные ребята, аккуратные, исполнительные и не пьющие, бригадир Сергей) 6.) Покупка участка, перевод под строительство, переоформление, подключение электричества 15кВт и т.д. дальше почти окончательный вариант проекта, убрана дверь с улицы в котельную и убрано окно в санузел на первом этаже и добавлено окно на лестницу. 1 Посилання на коментар Поділитися на інших сайтах More sharing options...
ARCH INNOVATION Опубліковано: 27 серпня 2015 Поділитись Опубліковано: 27 серпня 2015 Как по мне, эркер абсолютно бесполезная вещь. Посилання на коментар Поділитися на інших сайтах More sharing options...
S1LENCE Опубліковано: 27 серпня 2015 Поділитись Опубліковано: 27 серпня 2015 Якась арматура нереально дешева... Посилання на коментар Поділитися на інших сайтах More sharing options...
Игореха Опубліковано: 27 серпня 2015 Поділитись Опубліковано: 27 серпня 2015 В целом планировка не плоха. Но, очень не хватает подсобных помещений. Подумайте над этим ;) 1 Посилання на коментар Поділитися на інших сайтах More sharing options...
vap79 Опубліковано: 27 серпня 2015 Автор Поділитись Опубліковано: 27 серпня 2015 Эркер, красивая штука если вписывается в дизайн Подсобное помещение одно, это бойлерная/котельная, остальные подсобные помещения будут в гараже отдельно стоящем. Да сорри, нолик забыл дописать, арматура вышла по 14200грн/1т. Еще было куплено 10м3 пиломатериалов по 1400грн/1м3. Все материалы покупались февраль-начало марта. Посилання на коментар Поділитися на інших сайтах More sharing options...
Игореха Опубліковано: 28 серпня 2015 Поділитись Опубліковано: 28 серпня 2015 Эркер, красивая штука если вписывается в дизайн Подсобное помещение одно, это бойлерная/котельная, остальные подсобные помещения будут в гараже отдельно стоящем. . Я вижу план. Котельная не совсем подходит в качестве подсобного помещения. Ни одного гардероба. Ни у входа, ни у спален, ни у кухни. Не думаю. что верхнюю одежду и обувь очень удобно будет оставлять в гараже. И если в малых спальнях вы поставили атавистические шкафы, которые только мест о занимают и в без того маленьких спаленках, то в большой спальне даже шкафа нет. Да его там и ставить особо негде. Будуту ходить в соседнюю спальню раздеваться? ;) ))) 3 Посилання на коментар Поділитися на інших сайтах More sharing options...
teonit Опубліковано: 28 серпня 2015 Поділитись Опубліковано: 28 серпня 2015 Ни одного гардероба. И столов тоже нет - ни рабочих/компьютерных, ни макияжных. Спальные только для сна подходят. В одной из спален шкаф стоит вдоль наружной стены - не самое удачное решение, можно получить "подарок" в виде плесени. Посилання на коментар Поділитися на інших сайтах More sharing options...
vap79 Опубліковано: 28 серпня 2015 Автор Поділитись Опубліковано: 28 серпня 2015 Зачем нужны гардеробные? не рационально используется место! Шкафа небольшого в комнате достаточно с головой, сезонная одежда помещается в тамбуре в шкафу. Да и комнаты 10м2 с головой, обычно в спальнях спять и там много очень места не нужно, вот гостиная с кухней побольше нужны. Прошло 4 месяца, за это время перевелась земля с ОСГ под застройку, переоформлена, получен адрес участка и т.д. Приехала строй бригада со своим вагончиком, инструментами, мешалками, опалубкой и т.д. Огородили участок, собрали хоз помещение, летний душ и WC. Вырыт котлован, и залита лента фундамента, фундаментные стены с трамбовкой грунта в цоколе. п.с. что-то картинки не добавляются 2 Посилання на коментар Поділитися на інших сайтах More sharing options...
S1LENCE Опубліковано: 28 серпня 2015 Поділитись Опубліковано: 28 серпня 2015 п.с. что-то картинки не добавляются Можливо, розмір файлів завеликий? 1 Посилання на коментар Поділитися на інших сайтах More sharing options...
vap79 Опубліковано: 28 серпня 2015 Автор Поділитись Опубліковано: 28 серпня 2015 За 5 дней проведен следующий этап робот. 1.) Утеплен фундамент по периметру (кроме террасы) ЕППС 80мм. 2.) Заложены трубы под канализацию, подвод наружного воздуха для камина, трубы под силовой кабель, воду и т.д. 3.) Залита ЖБ плита чернового пола. 28.07.2014 - фундамент полностью готов для возведения коробки дома. Итоги по фундаменту с черновым полом: - Арматура 1.6т - Бетона разного 38м3 - ЕППС 45м2 - Канализационные трубы с коленами примерно 15м, труба ПВХ 63мм около 30м. Материалы на фундамент с черновым полом - 66 100 грн Работа 29 600 грн. Правда по фундаменту можно было на 40% потратить меньше, за счет изменения конструкции: фундаментные стены 20см а не 50см, лента 60см а не 90-120см, так как нагрузка раскидывается на плиту чернового пола. 2 Посилання на коментар Поділитися на інших сайтах More sharing options...
vap79 Опубліковано: 28 серпня 2015 Автор Поділитись Опубліковано: 28 серпня 2015 Начали класть коробку дома, пирог стены: - Газобетон D400 B2.5 - 300мм - Базальная вата 45кг/м3 - 100мм - Воздушный зазор 30-60мм - Лицевой кирпич - 120мм (пол кирпича) Газобетон на клей, строители молодцы швы у них 2-3мм, активно используют терку, внутренная часть стены ровная. Лицевой кирпич на раствор с черным красителем (железоокислый пигмент по сравнению с сажей отличная вещь), геометрические размеры кирпича гуляют до 3мм, но Сергей молодец, ложит отлично, на весь периметр стены только в одном месте будет вставка кирпича 8см и то под окнами, чтобы не так было заметно. 1 Посилання на коментар Поділитися на інших сайтах More sharing options...
mspacer Опубліковано: 28 серпня 2015 Поділитись Опубліковано: 28 серпня 2015 2.) Найден примерный проект дома в интернете, (все что находили ни один не нравился по планировке), после долгих поисков, раздумывай остановились на таком варианте "Красивый дом с эркером № V-166-1P" Как грится - просто и со вкусом. Главное рационально и ничего лишнего, особенно непомерной величины коридоры. Есть местная лесопилка. Если сроки не жмут и цена имеет значение - можно пользоваться. Удачи и поменьше незапланированных расходов. З.Ы. С некоторого времени я сторонник отдельных котелен. Особенно с ТТ. И котельня (с возможностью расширения доп оборудования) и подсобное с электро генератом. Подумайте над отопительной каминной топкой с разводкой воздушных каналов. Пока внутренние стены еще в процессе. Населенны пункт требует некоторой энергоавтономности. Место Посилання на коментар Поділитися на інших сайтах More sharing options...
vap79 Опубліковано: 28 серпня 2015 Автор Поділитись Опубліковано: 28 серпня 2015 С некоторого времени я сторонник отдельных котелен. Особенно с ТТ. И котельня (с возможностью расширения доп оборудования) и подсобное с электро генератом. Подумайте над отопительной каминной топкой с разводкой воздушных каналов. Пока внутренние стены еще в процессе. Населенны пункт требует некоторой энергоавтономности. Место В котельной будет только Электро-котел, гидро-аккамулятор, управление теплым полом. Газа не будет, он не нужен, а ТТ и Генератор с аккумуляторной будет в гараже в отдельном помещении. Камин запроектирован, дымоход и каналы для воздушной разводки заложены (1 этаж и 2 этаж). Посилання на коментар Поділитися на інших сайтах More sharing options...
vap79 Опубліковано: 28 серпня 2015 Автор Поділитись Опубліковано: 28 серпня 2015 Первый этаж из ГБ уже выгнан, подготовлена опалубка для заливки монолита. С лицевым первая неприятность, была неделя нежаркая, из-за росы на лицевом кирпиче выступила соль слегка, которая смывается простой водой легко, в жару такого эффекта не было. Раствор: песок речной, цемент каменецк-подольский Д0, пигмент железоокислый, химия никакая не применяется. 2 Посилання на коментар Поділитися на інших сайтах More sharing options...
Yulia_novy Опубліковано: 28 серпня 2015 Поділитись Опубліковано: 28 серпня 2015 Зачем нужны гардеробные? не рационально используется место! Рискну все же попытаться переубедить Вас. Дело, конечно, хозяйское. Но лучше бы сделать больше хоз.помещений. Или хотя бы предусмотреть возможность быстрой и бюджетной переделки. Вы жили когда-нибудь в частном доме больше месяца подряд? И не летом, а в холодное время года? Не только гардеробные, но и всякие кладовки, хоз. помещения, подсобки - это громаднейшее преимущество дома перед квартирой. В доме пользуешься гораздо бОльшим количеством вещей по сравнению с квартирой. Причем активно пользуешься - в сарай/ гараж не набегаешься. Значит, все это вАлом будет лежать в вашей красивой гостиной, кухне, столовой, на лестнице... Подумайте еще, почитайте форум. Здесь очень много общих тем о планировках, о подсобках. И очень много сожалений, что мало сделали подсобных помещений в свое время. А эркер - это красиво! у меня эркер тоже - не пожалела ни разу. И, действительно, можно оригинально обыграть его. Удачи! 4 Посилання на коментар Поділитися на інших сайтах More sharing options...
vap79 Опубліковано: 28 серпня 2015 Автор Поділитись Опубліковано: 28 серпня 2015 Рискну все же попытаться переубедить Вас. Дело, конечно, хозяйское. Но лучше бы сделать больше хоз.помещений. Или хотя бы предусмотреть возможность быстрой и бюджетной переделки. Вы жили когда-нибудь в частном доме больше месяца подряд? И не летом, а в холодное время года? Не только гардеробные, но и всякие кладовки, хоз. помещения, подсобки - это громаднейшее преимущество дома перед квартирой. В доме пользуешься гораздо бОльшим количеством вещей по сравнению с квартирой. Причем активно пользуешься - в сарай/ гараж не набегаешься. Значит, все это вАлом будет лежать в вашей красивой гостиной, кухне, столовой, на лестнице... Подумайте еще, почитайте форум. Здесь очень много общих тем о планировках, о подсобках. И очень много сожалений, что мало сделали подсобных помещений в свое время. А эркер - это красиво! у меня эркер тоже - не пожалела ни разу. И, действительно, можно оригинально обыграть его. Удачи! Жил, я вырос в таком доме! Мини подсобное помещение есть под лестницей, нижний пролет, доступ с котельной. Потом как раз в подсобках все лежит валом на полках и т.д. и по практике редко используется, зачем для этого выделять площадь и еще ее обогревать (дом то обогревается) ? А мелочевка разная будет на кухне в ящиках/шкафах, удобно, под рукой (то что часто используется именно в доме, в грамотно спроектированную мебель влазит очень много всего, и потом мебель можно переставить/переделать что дешевле по сравнению со стенами). п.с. под гардеробную оставлена возможность на втором этаже, за счет комнаты с эркером, размером 1х3м примерно, размера хватит с головой 1 Посилання на коментар Поділитися на інших сайтах More sharing options...
acexnone Опубліковано: 28 серпня 2015 Поділитись Опубліковано: 28 серпня 2015 Начали класть коробку дома, пирог стены: - Газобетон D400 B2.5 - 300мм - Базальная вата 45кг/м3 - 100мм - Воздушный зазор 30-60мм - Лицевой кирпич - 120мм (пол кирпича) А перевязку между основной стеной и облицовочным кирпичом не делаете? Посилання на коментар Поділитися на інших сайтах More sharing options...
vap79 Опубліковано: 28 серпня 2015 Автор Поділитись Опубліковано: 28 серпня 2015 А перевязку между основной стеной и облицовочным кирпичом не делаете? Делаю, Z образные связи с нержавейки/оцинковки проволоки 4 мм. 1 Посилання на коментар Поділитися на інших сайтах More sharing options...
vap79 Опубліковано: 29 серпня 2015 Автор Поділитись Опубліковано: 29 серпня 2015 Залит монолитное перекрытие между 1-м и 2-м этажом. Протестировал смывку для высолов и маслянистых разводов от пигмента для раствора. Смывка работает отлично (слева необработанный образец, справа после обработки)! Посилання на коментар Поділитися на інших сайтах More sharing options...
acexnone Опубліковано: 31 серпня 2015 Поділитись Опубліковано: 31 серпня 2015 Делаю, Z образные связи с нержавейки/оцинковки проволоки 4 мм. Спасибо за ответ, я у себя перевязывал базальтовой арматурой. У меня практически такие же стены, токо вместо газоблока - керамический блок 2НФ. А еще такой вопрос - планируете ли делать вертикальный температурный шов-разрыв в облицовочной кладке? Посилання на коментар Поділитися на інших сайтах More sharing options...
vap79 Опубліковано: 31 серпня 2015 Автор Поділитись Опубліковано: 31 серпня 2015 Спасибо за ответ, я у себя перевязывал базальтовой арматурой. У меня практически такие же стены, токо вместо газоблока - керамический блок 2НФ. А еще такой вопрос - планируете ли делать вертикальный температурный шов-разрыв в облицовочной кладке? Нет, температурного шва не делаю. Посилання на коментар Поділитися на інших сайтах More sharing options...
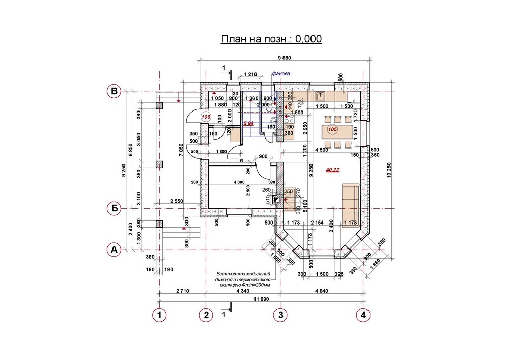
vap79 Опубліковано: 7 вересня 2015 Автор Поділитись Опубліковано: 7 вересня 2015 Выгнали стены второго этажа, устанавливают опалубку на монолит, чердачное перекрытие будет монолитное, не будет трещин по потолку и т.д. в отличие от деревянных балок, плюс пожаробезопасность выше. Что-то не нравилось в планировке второго этажа, переделал по другому. Первая картинка, то что было, вторая что стало. Коричневый прямоугольник это люк выход на чердак. 1 Посилання на коментар Поділитися на інших сайтах More sharing options...
jay2004 Опубліковано: 8 вересня 2015 Поділитись Опубліковано: 8 вересня 2015 Хочу делать похожий проэкт и пирог стены. Если, не затруднит - пишите бюджеты общие... Посилання на коментар Поділитися на інших сайтах More sharing options...
mspacer Опубліковано: 9 вересня 2015 Поділитись Опубліковано: 9 вересня 2015 Что-то не нравилось в планировке второго этажа, переделал по другому. В принципе не плохо. В получившиеся "ниши" удобно становятся кровати и при входе в комнату не будет открываться широкая панорама на них. Особенно на не застеленные детские Посилання на коментар Поділитися на інших сайтах More sharing options...
vap79 Опубліковано: 15 вересня 2015 Автор Поділитись Опубліковано: 15 вересня 2015 Продолжение работ, выставляется опалубка на 2-м этаже, сделан первый пролет лестницы, и наконец-то установил опору и подвели электрику (через 4 месяца после заключения договора) ! Теперь болит голова, какой использовать кабель для прокладки в землю к дому. Мощность 15кВт 3-Фазы, 4 жилы меди по 4мм, как трудяги с РЕС сказали или лучше 4 жилы меди по 6мм, или же 4 жилы алюминий по 16мм сечения. Потом кабель бронированный или в ПЕТ трубу не бронированный. Общая длина 60м, от столба к щитку в доме. Посилання на коментар Поділитися на інших сайтах More sharing options...
Рекомендовані повідомлення
Створіть акаунт або увійдіть у нього для коментування
Ви маєте бути користувачем, щоб залишити коментар
Створити акаунт
Зареєструйтеся для отримання акаунта. Це просто!
Зареєструвати акаунтУвійти
Вже зареєстровані? Увійдіть тут.
Увійти зараз