Зигзаг Удачи Опубліковано: 30 липня 2009 Поділитись Опубліковано: 30 липня 2009 Согласно росийского проекта необходимо делать гидроизоляцию фундамента начиная с подбетонки.... а есть ли в этом необходимость? может с позиции здравого смысла достаточно проложить слой чего-то типа Бикроэласт ХПП на бетонные блоки перед колодцевой кладкой и потом сделать обмазочную гидроизоляцию изнутри и снаружи по кирпичу? Что бетоным блокам и монолитному поясу сделается в земле на глубине 1 метр.... УГВ больше 2 метров. Посилання на коментар Поділитися на інших сайтах More sharing options...
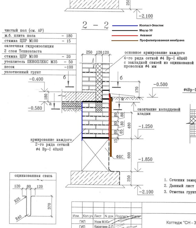
Propeller Опубліковано: 10 серпня 2009 Поділитись Опубліковано: 10 серпня 2009 Кирпич под землей нужно надежно закрыть. 1. Между кирпичом и ФБС проложить или битумно-полимерный рубероид либо Мауэр (ссылка устарела). 2. Изнутри нанести Изопаст-Эластик (29 кг + 1,5 кг цемента) или Гипредесмо ПБ-2К. Предварительно затереть межкирпичные швы раствором. 3. Снаружи накладку нанести АКВАМАТ (ссылка устарела) затереть межкирпичные швы раствором и закрыть 4. Прикрепить профилированную мембрану (ссылка устарела). Зачем снаружи и внутри разные типы гидроизоляции? Изнутри все понятно. Желательно, чтобы наружная гидроизоляция подземной кирпичной стена должна давать ей дышать и проветривать её. Пункты 3 и 4 это обеспечат. АКВАМАТ дышит. Профилированная мембрана делает 8 -ми милимметровый воздушный зазор между собой и стеной. Это позволяет обеспечить микровентиляцию подземной кирпичной кладки. 1 Посилання на коментар Поділитися на інших сайтах More sharing options...
Propeller Опубліковано: 10 серпня 2009 Поділитись Опубліковано: 10 серпня 2009 Забыл! У Вас там проэктировщик очень намутил с гидроизоляцией пола. чистый пол плита 180 мм стяжка 15 мм гидроизоляция стяжка 20 мм ЭППС песок грунт Попробуйте так : чистый пол плита 180 мм пленка полиэтиленовая ЭППС песок (гранотсев) 140 мм грунт Посилання на коментар Поділитися на інших сайтах More sharing options...
BeeKeeper Опубліковано: 11 серпня 2009 Поділитись Опубліковано: 11 серпня 2009 Залил ленточный фундамент 60х40 см на глубине 165 см. Дальше планирую выгнать стены цокольного этажа из термоблоков. В фирме, где собираюсь покупать термоблоки, сказали, что могут быть проблемы с гидроизоляцией подземной части цокольного этажа (125 см ниже нулевой отметки). Т.к. на пенопласт наносить гидроизоляцию практически невозможно, то необходимо будет параллельно со стеной из термоблоков ложить кирпичную кладку в полкирпича единственно для того, чтобы на этот кирпич наплавить нормально гидроизоляцию. Я как-то засомневался в необходимости такой кладки. Может кто посоветовать какую-либо альтернативу кирпичной кладке. Или это единственный выход в моем случае. Посилання на коментар Поділитися на інших сайтах More sharing options...
Gitan Опубліковано: 11 серпня 2009 Поділитись Опубліковано: 11 серпня 2009 Залил ленточный фундамент 60х40 см на глубине 165 см. Дальше планирую выгнать стены цокольного этажа из термоблоков. В фирме, где собираюсь покупать термоблоки, сказали, что могут быть проблемы с гидроизоляцией подземной части цокольного этажа (125 см ниже нулевой отметки). Т.к. на пенопласт наносить гидроизоляцию практически невозможно, то необходимо будет параллельно со стеной из термоблоков ложить кирпичную кладку в полкирпича единственно для того, чтобы на этот кирпич наплавить нормально гидроизоляцию. Я как-то засомневался в необходимости такой кладки. Может кто посоветовать какую-либо альтернативу кирпичной кладке. Или это единственный выход в моем случае. А что у вас с УГВ? На какой глубине? Если низко, закройте подземную часть полимерной мембраной и все. Посилання на коментар Поділитися на інших сайтах More sharing options...
Propeller Опубліковано: 11 серпня 2009 Поділитись Опубліковано: 11 серпня 2009 Можно наносить прямо на пенопласт гидроизоляцию. При этом она эластичная и не рвется при продавливании пенопласта. Называется Гипердесмо ПБ-2К (ссылка устарела) А наносится он как на вложенном рисунке. Синие линии - это путь проникновения воды в помещение. Посилання на коментар Поділитися на інших сайтах More sharing options...
BeeKeeper Опубліковано: 11 серпня 2009 Поділитись Опубліковано: 11 серпня 2009 А что у вас с УГВ? На какой глубине? Если низко, закройте подземную часть полимерной мембраной и все. УГВ низко. Грунт - песок. Посилання на коментар Поділитися на інших сайтах More sharing options...
Propeller Опубліковано: 12 серпня 2009 Поділитись Опубліковано: 12 серпня 2009 Если события будут развиваться по оптимистическому сценарию, то дренажной мембраны вполне достаточно. Если по пессимистическому, то нужна обмазка. Пессимистический сценарий - это когда после нескольких лет жизни в доме в вашем регионе изменится УГВ. Кое где под Киевом , к примеру, это имеет место быть. Посилання на коментар Поділитися на інших сайтах More sharing options...
Igor_M Опубліковано: 12 серпня 2009 Поділитись Опубліковано: 12 серпня 2009 Если по пессимистическому, то нужна обмазка. Лучше пере-, чем недо... Я бы обмазку сделал... Посилання на коментар Поділитися на інших сайтах More sharing options...
Зигзаг Удачи Опубліковано: 12 серпня 2009 Автор Поділитись Опубліковано: 12 серпня 2009 Забыл! У Вас там проэктировщик очень намутил с гидроизоляцией пола. чистый пол плита 180 мм пленка полиэтиленовая ЭППС песок (гранотсев) 140 мм грунт Какую пленку лучше взять? Швы при укладке чем-то проклеивать? Посилання на коментар Поділитися на інших сайтах More sharing options...
Igor_M Опубліковано: 14 серпня 2009 Поділитись Опубліковано: 14 серпня 2009 Какую пленку лучше взять? Швы при укладке чем-то проклеивать? Если проектировщик "намутил" по вашему мнению, то нужно пойти к нему и попросить (потребовать) обоснование такого "пирога" пола... 180 мм плита ж/б насколько я понял? какое там армирование? Потому как если вы просто пленку постелите на эппс, а потом будете сетку арматурную укладывать, то от вашей пленки одни лохмоться останутся... Поэтому проектировщик и написал вам поверх гидроизоляции стяжку ЦПР 15мм - я думаю, что как раз для защиты гидроизоляции... Поскольку у вас УГВ низкий, то я думаю, можно оклеечную гидроизоляцию заменить пленкой (плотной и без швов - наверняка есть нужного размера - посмотрите в Эпицентре в отделе для садоводов... для теплиц, что ли...). И я думаю, что в таком вариантк стяжка ЦПР поверх утеплителя не нужна... Посилання на коментар Поділитися на інших сайтах More sharing options...
Igor_M Опубліковано: 14 серпня 2009 Поділитись Опубліковано: 14 серпня 2009 Согласно росийского проекта необходимо делать гидроизоляцию фундамента начиная с подбетонки.... а есть ли в этом необходимость? может с позиции здравого смысла достаточно проложить слой чего-то типа Бикроэласт ХПП на бетонные блоки перед колодцевой кладкой и потом сделать обмазочную гидроизоляцию изнутри и снаружи по кирпичу? Что бетоным блокам и монолитному поясу сделается в земле на глубине 1 метр.... УГВ больше 2 метров. И еще меня смущает то, что по сути дела ж/б плита пола в такой схеме является НЕ ПОЛОМ ПО ГРУНТУ, а монолитным перекрытием... ... т.е. со временем грунт под ней "просядет", появится воздушный зазор... Мое мнение - или делать нормальный пол по грунту (тогда плита 180мм НЕ потребуется... и немного другой "пирог" будет), или делать монолитное перекрытие, но оставлять воздушный зазор под ней и продухи в цоколе для вентиляции... ... я бы сделал лучше пол по грунту в вашем случае... Посилання на коментар Поділитися на інших сайтах More sharing options...
Propeller Опубліковано: 14 серпня 2009 Поділитись Опубліковано: 14 серпня 2009 Какую пленку лучше взять? Швы при укладке чем-то проклеивать? Да самую простую полиєтиленовую пленку. Её задача не гидроизоляция , а удержать в свежем растворе (стяжка) соотношение всех компонентов без изменеия. Через неплотности в плитах утеплителя может уйти из раствра немного водички с цементом. Делайте нахлест сантиметров 20 и склеивать ничего не нужно. А гидроизоляция от капиллярного подсоса - єто подсіпка щебнем и песком, ну и...ЭППС ессесьна. Посилання на коментар Поділитися на інших сайтах More sharing options...
Зигзаг Удачи Опубліковано: 16 серпня 2009 Автор Поділитись Опубліковано: 16 серпня 2009 Если проектировщик "намутил" по вашему мнению, то нужно пойти к нему и попросить (потребовать) обоснование такого "пирога" пола... 180 мм плита ж/б насколько я понял? какое там армирование? Потому как если вы просто пленку постелите на эппс, а потом будете сетку арматурную укладывать, то от вашей пленки одни лохмоться останутся... Поэтому проектировщик и написал вам поверх гидроизоляции стяжку ЦПР 15мм - я думаю, что как раз для защиты гидроизоляции... Поскольку у вас УГВ низкий, то я думаю, можно оклеечную гидроизоляцию заменить пленкой (плотной и без швов - наверняка есть нужного размера - посмотрите в Эпицентре в отделе для садоводов... для теплиц, что ли...). И я думаю, что в таком вариантк стяжка ЦПР поверх утеплителя не нужна... Мое ИМХО: Дело в том, что проектировщик - российская компания, притом не из широкоизвестных, которые продают свои проекты сотнями-тысячами с соответствующей поддержкой, а небольшой(сравнительно) застройщик который построил несколько котеджных городков и потом уже решил поторговать разработанными проектами Поэтому после пары попыток позадавать вопросы я решил разбираться со всеми нюансами самостоятельно... P.S. Особенно умилила купленная за 300 дол смета к проекту, состоящая из 2,5 страничек... Посилання на коментар Поділитися на інших сайтах More sharing options...
Igor_M Опубліковано: 17 серпня 2009 Поділитись Опубліковано: 17 серпня 2009 Поэтому после пары попыток позадавать вопросы я решил разбираться со всеми нюансами самостоятельно... P.S. Особенно умилила купленная за 300 дол смета к проекту, состоящая из 2,5 страничек... Ну так что вы решили? Будете делать пол по грунту или монолитную плиту перекрытия сооружать? От этого пирог зависит в первую очередь... Вот тут про пол по грунту www.stroimdom.com.ua/forum/showthread.php?t=20912 300 долл... что-то злые они сильно... Посилання на коментар Поділитися на інших сайтах More sharing options...
Зигзаг Удачи Опубліковано: 18 серпня 2009 Автор Поділитись Опубліковано: 18 серпня 2009 Ну так что вы решили? Будете делать пол по грунту или монолитную плиту перекрытия сооружать? От этого пирог зависит в первую очередь... Вот тут про пол по грунту www.stroimdom.com.ua/forum/showthread.php?t=20912 300 долл... что-то злые они сильно... Буду делать монолитную плиту согласно проекта - дом большой - 24х14 метров и судя по конструкции эта плита играет роль не только пола первого этажа, но и несущей конструкции.... поэтому решил в этом вопросе не упрощать Посилання на коментар Поділитися на інших сайтах More sharing options...
Igor_M Опубліковано: 20 серпня 2009 Поділитись Опубліковано: 20 серпня 2009 Буду делать монолитную плиту согласно проекта - дом большой - 24х14 метров и судя по конструкции эта плита играет роль не только пола первого этажа, но и несущей конструкции.... поэтому решил в этом вопросе не упрощать Ну если так по проекту, значит так тому и быть... "Привязку" на местности сделали? В типовых проектах обычно указываютя - для каких условий он разработан (грунты, глубина промерзания, уровень грунтовых вод и т.п...) Если у вас схожие условия, то можно строить смело... если есть малейшие сомнения, лучше поговорить со специалистами - конструкторами... Посилання на коментар Поділитися на інших сайтах More sharing options...
Рекомендовані повідомлення
Створіть акаунт або увійдіть у нього для коментування
Ви маєте бути користувачем, щоб залишити коментар
Створити акаунт
Зареєструйтеся для отримання акаунта. Це просто!
Зареєструвати акаунтУвійти
Вже зареєстровані? Увійдіть тут.
Увійти зараз