atupoko19 Опубліковано: 2 лютого 2022 Поділитись Опубліковано: 2 лютого 2022 Посилання на коментар Поділитися на інших сайтах More sharing options...
gid_8462 Опубліковано: 7 лютого 2022 Поділитись Опубліковано: 7 лютого 2022 В 30.01.2022 в 13:42, goga777 сказал: Спасибо за фидбек. Лично мне известно 4 человека, которые взяли планировку и построили дома из данной темы. Дійсно, відбувся зворотний зв'язок. Звичайно, я не взяв готові планування, адже кожна ділянка має свій контекст, а замовник готує свою індивідуальну програму, але деякі принципи і прийоми із задоволенням запозичив, що явно пішло на користь проекту... 1 Посилання на коментар Поділитися на інших сайтах More sharing options...
tansss Опубліковано: 7 лютого 2022 Поділитись Опубліковано: 7 лютого 2022 55 минут назад, gid_8462 сказал: що явно пішло на користь проекту... Так а где картинки и возможно фото реализации? Или я что то пропустил? Посилання на коментар Поділитися на інших сайтах More sharing options...
gid_8462 Опубліковано: 11 лютого 2022 Поділитись Опубліковано: 11 лютого 2022 В 07.02.2022 в 15:04, tansss сказал: Так а где картинки и возможно фото реализации? Или я что то пропустил? Наразі - тільки проєкт. Замовник проти публікації. Посилання на коментар Поділитися на інших сайтах More sharing options...
tansss Опубліковано: 8 серпня 2022 Поділитись Опубліковано: 8 серпня 2022 https://www.google.com/search?sxsrf=ALiCzsYy4sM5HUniZw52NGiziunvT_U23g:1659985930585&source=univ&tbm=isch&q=проект+узкого+дома+8х12&fir=oNwuvAOjZQXpxM%2CRBUOIkSGv3CwwM%2C_%3BCdbgkDBuPNDk-M%2CRBUOIkSGv3CwwM%2C_%3Bc-JMUnlke-k8PM%2CRNdY1DrfDXsqpM%2C_%3B2187Nul5uO6w_M%2CgoWXIanSAdO8pM%2C_%3BXXNvsWG99Jam6M%2CRNdY1DrfDXsqpM%2C_%3BveLjAQB4RKYbPM%2CRBUOIkSGv3CwwM%2C_%3BfpEfy4Q9BK7gyM%2C7NVOxLKqr7S-DM%2C_%3BxJu-cq3NwFwWeM%2CZ4AKJopa5d4DIM%2C_%3BtOf_QZH1Y0S4FM%2C1szrQ5lD62VOqM%2C_%3BkVdXeV8tmaMBoM%2CPu43Lxbx4jL8AM%2C_%3Bom6EfTpGAModnM%2CRBUOIkSGv3CwwM%2C_%3Bs8rNleshkOYEmM%2CgoWXIanSAdO8pM%2C_%3ByG1c0nIL_1MY5M%2CZ4AKJopa5d4DIM%2C_%3BchB2X2vwmYr3NM%2CBY50hA-aL6JQMM%2C_&usg=AI4_-kTK8FlAkllqE4QfHgcPlrtk_Ku_fw&sa=X&ved=2ahUKEwil4OW9-bf5AhWntYsKHbHGDSMQ7Al6BAgGEAg&biw=1600&bih=757&dpr=1#imgrc=CFDIGnDoqWAYwM У фиников симпатические домики ... например fin.house/proektyi-domov/proekt-omatalo-klassik/ Посилання на коментар Поділитися на інших сайтах More sharing options...
goga777 Опубліковано: 31 серпня 2022 Автор Поділитись Опубліковано: 31 серпня 2022 (змінено) Немножко свеженького. Также прошу делать посты ПО ТЕМЕ пожалуйста Спойлер Змінено 31 серпня 2022 користувачем goga777 1 Посилання на коментар Поділитися на інших сайтах More sharing options...
goga777 Опубліковано: 10 вересня 2022 Автор Поділитись Опубліковано: 10 вересня 2022 4 спальни 1 Посилання на коментар Поділитися на інших сайтах More sharing options...
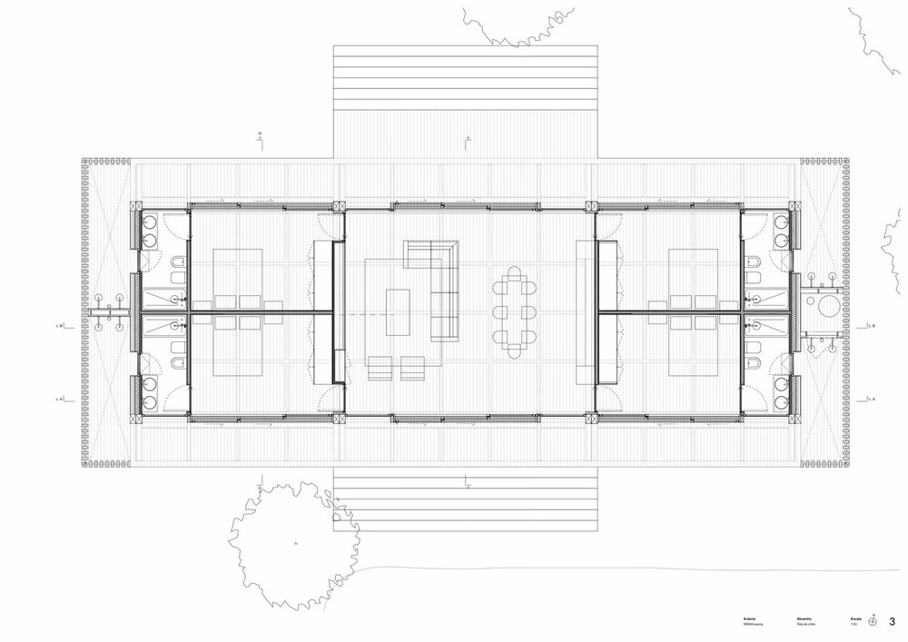
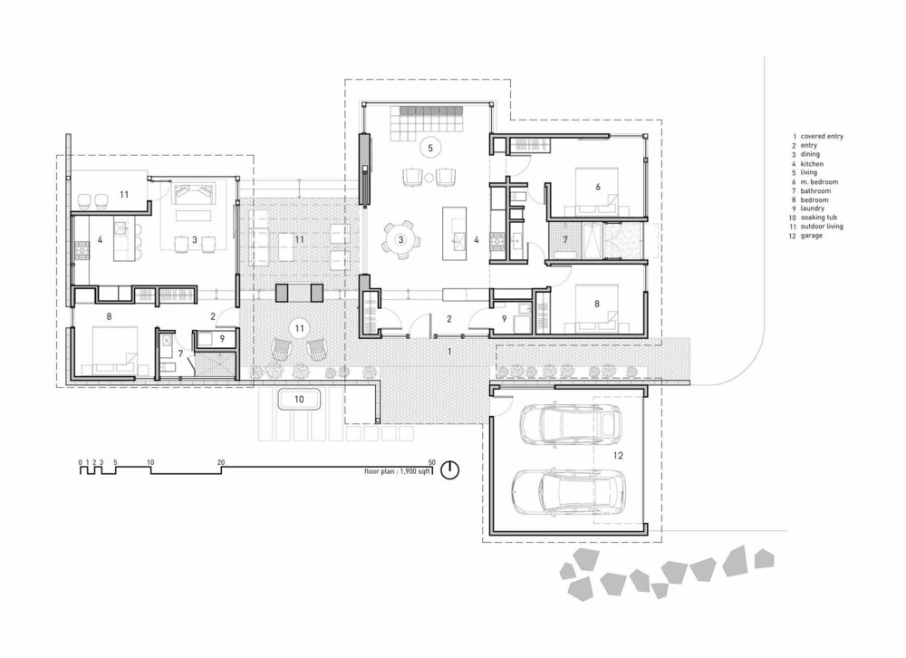
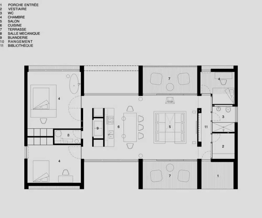
goga777 Опубліковано: 15 вересня 2022 Автор Поділитись Опубліковано: 15 вересня 2022 Красивое 4 Посилання на коментар Поділитися на інших сайтах More sharing options...
goga777 Опубліковано: 23 вересня 2022 Автор Поділитись Опубліковано: 23 вересня 2022 (змінено) Гарно....але є багато питань Спойлер Змінено 23 вересня 2022 користувачем goga777 Посилання на коментар Поділитися на інших сайтах More sharing options...
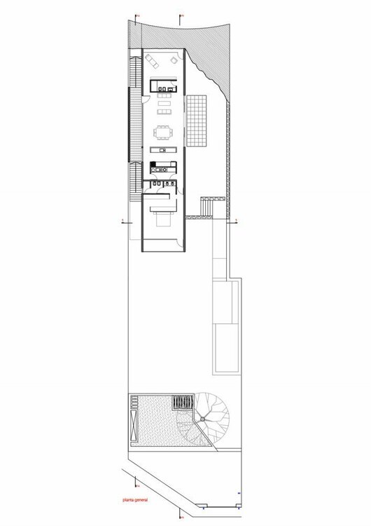
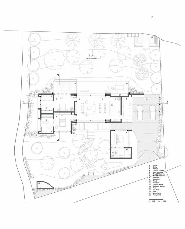
goga777 Опубліковано: 29 жовтня 2022 Автор Поділитись Опубліковано: 29 жовтня 2022 (змінено) один проект-два домика Спойлер Змінено 29 жовтня 2022 користувачем goga777 2 Посилання на коментар Поділитися на інших сайтах More sharing options...
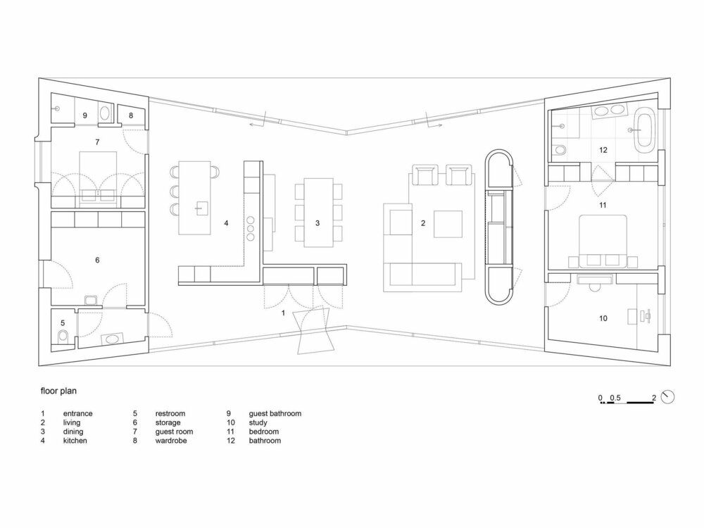
goga777 Опубліковано: 1 грудня 2022 Автор Поділитись Опубліковано: 1 грудня 2022 (змінено) Простенько и оригинально Спойлер Змінено 1 грудня 2022 користувачем goga777 2 Посилання на коментар Поділитися на інших сайтах More sharing options...
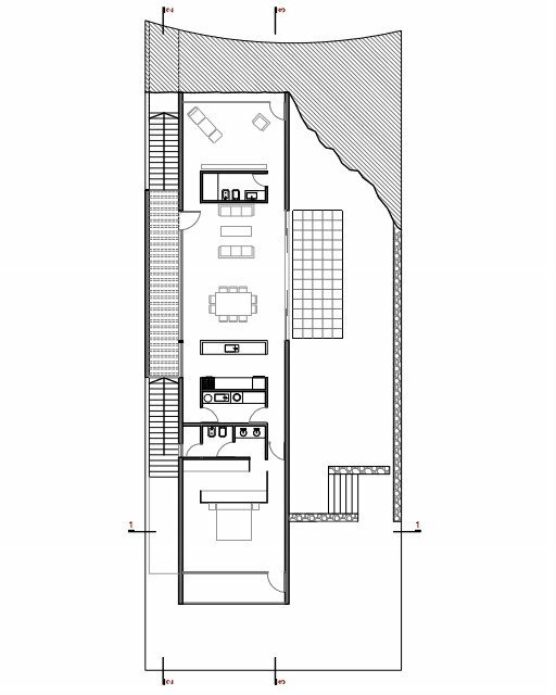
goga777 Опубліковано: 1 грудня 2022 Автор Поділитись Опубліковано: 1 грудня 2022 (змінено) еще парочка изображений Змінено 1 грудня 2022 користувачем goga777 Посилання на коментар Поділитися на інших сайтах More sharing options...
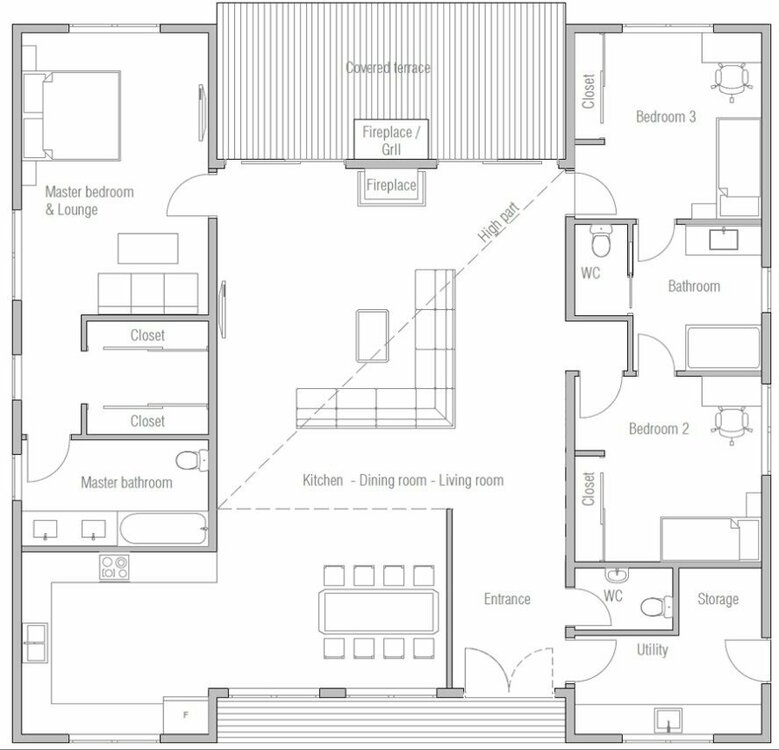
goga777 Опубліковано: 27 березня 2023 Автор Поділитись Опубліковано: 27 березня 2023 Простенько та функціональненько 3 Посилання на коментар Поділитися на інших сайтах More sharing options...
Harmonia Опубліковано: 9 квітня 2023 Поділитись Опубліковано: 9 квітня 2023 Доброго дня! Автор ,теми,як що все вірно розумію - Ви архітектор. І мені дуже подобається ,Ваше бачення і Ваш смак!) Хтіла би запитати/з оріентуватися,по таких питаннях . Чи робите Ви проект? - ,як що замовник ,вже має свій ескіз ,свого дому- своє планування,саме таке ,яке підходить саме нам. І потрібно ,цей ескіз/планування ,перетворити у справжній проект,який включає все необхідне.Я так розумію,це має бути дешевше,чим повністю з нуля?) Бо як раз друге питання - скільки буде коштувати ,такий проект ,саме у Вас ? 1 1 Посилання на коментар Поділитися на інших сайтах More sharing options...
Harmonia Опубліковано: 9 квітня 2023 Поділитись Опубліковано: 9 квітня 2023 Автор теми, я вибачаюсь!!!💐..я просто подумала ,що Ви архітектор... Модератори теми,будь-ласка,видаліть тоді мої 2 останні дописи тут! Дякую! 1 Посилання на коментар Поділитися на інших сайтах More sharing options...
goga777 Опубліковано: 14 квітня 2023 Автор Поділитись Опубліковано: 14 квітня 2023 Шановні, прошу звернути увагу Продається ідеальна ділянка для будівництва одноповерхового будинку. Всі сусіди забудовані (одноповерхові), кутова, в тупіку, рівна. Огорожена з 3х сторін (крім фасаду, фасад 40 метрів). Коттеджне містечко Рябинки, Малютянка, огорожений масив, шлагбауми, дороги, світло 12,8 квт на ділянці (договір рєс), дитячий майданчик, освітлення території. Поряд величезне озеро, ліс, дуже спокійно. Координати - 50.281031,30.251973 30 000 доларів 067 506 36 11, Тетяна Посилання на коментар Поділитися на інших сайтах More sharing options...
goga777 Опубліковано: 14 квітня 2023 Автор Поділитись Опубліковано: 14 квітня 2023 В 09.04.2023 в 12:36, Harmonia сказал: Доброго дня! Автор ,теми,як що все вірно розумію - Ви архітектор. І мені дуже подобається ,Ваше бачення і Ваш смак!) спасибі велике, але я не архітектор . Можете взяти будь-який проєкт з моєї теми і віддати архітектору та втілити його в життя. Потім опублікуйте результат. 1 Посилання на коментар Поділитися на інших сайтах More sharing options...
apren Опубліковано: 1 травня 2023 Поділитись Опубліковано: 1 травня 2023 Увлекающие проекты... только, как бы это сказать... для жизни на необитаемом острове, а не среди вандалов. И в панорамное остекление будещь видеть в наших условиях не первозданный ландшафт, а, скорее всего, забор соседа из профнастила и ничего более. Плюс собственную поленницу размером с дом. 1 Посилання на коментар Поділитися на інших сайтах More sharing options...
goga777 Опубліковано: 3 травня 2023 Автор Поділитись Опубліковано: 3 травня 2023 (змінено) розкішно Змінено 3 травня 2023 користувачем goga777 Посилання на коментар Поділитися на інших сайтах More sharing options...
Harmonia Опубліковано: 3 травня 2023 Поділитись Опубліковано: 3 травня 2023 Ваааай Це неееймооовірна краса!!! Такі проекти ( і подібні) - це витвір мистецтва !!! Прийшло на думку) - краса на криші Світу ) 1 Посилання на коментар Поділитися на інших сайтах More sharing options...
gid_8462 Опубліковано: 5 травня 2023 Поділитись Опубліковано: 5 травня 2023 Коректний бруталізм. Потужно... 1 Посилання на коментар Поділитися на інших сайтах More sharing options...
goga777 Опубліковано: 25 грудня 2023 Автор Поділитись Опубліковано: 25 грудня 2023 5 Посилання на коментар Поділитися на інших сайтах More sharing options...
goga777 Опубліковано: 25 грудня 2023 Автор Поділитись Опубліковано: 25 грудня 2023 1 Посилання на коментар Поділитися на інших сайтах More sharing options...
Andrey1901 Опубліковано: 25 грудня 2023 Поділитись Опубліковано: 25 грудня 2023 Пришла весна, пора косить крышу 1 Посилання на коментар Поділитися на інших сайтах More sharing options...
goga777 Опубліковано: 31 грудня 2023 Автор Поділитись Опубліковано: 31 грудня 2023 1 Посилання на коментар Поділитися на інших сайтах More sharing options...
Рекомендовані повідомлення
Створіть акаунт або увійдіть у нього для коментування
Ви маєте бути користувачем, щоб залишити коментар
Створити акаунт
Зареєструйтеся для отримання акаунта. Це просто!
Зареєструвати акаунтУвійти
Вже зареєстровані? Увійдіть тут.
Увійти зараз