adeliveis Опубліковано: 22 березня 2016 Автор Поділитись Опубліковано: 22 березня 2016 ИМХО правильнее рисовать сразу с мебелью. Есть и с мебелью. Этот немного упростила, т.к пытаюсь сделать эскиз для строй паспорта. 1 Посилання на коментар Поділитися на інших сайтах More sharing options...
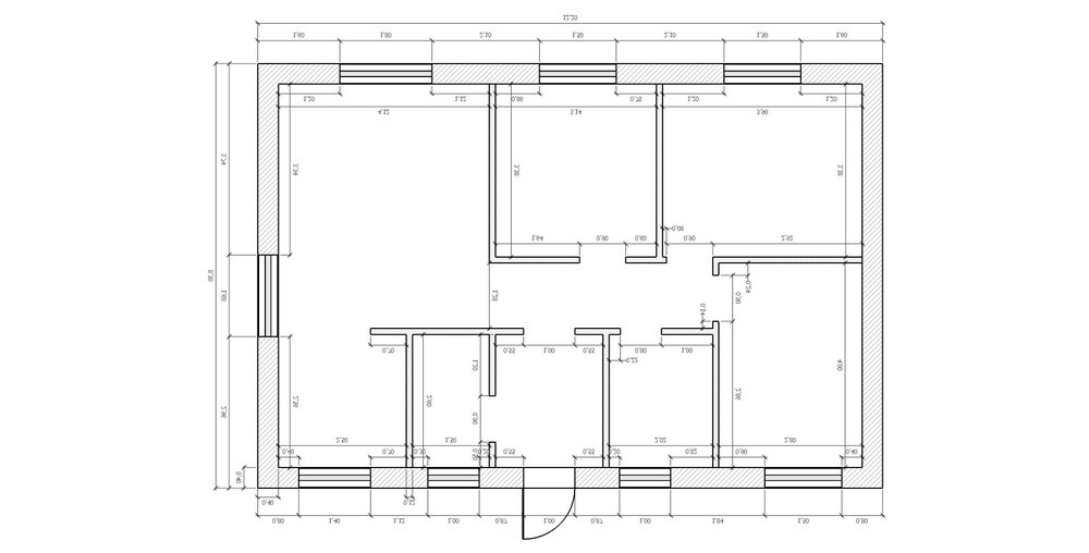
Татьяна5 Опубліковано: 22 березня 2016 Поділитись Опубліковано: 22 березня 2016 Есть и с мебелью. Этот немного упростила, т.к пытаюсь сделать эскиз для строй паспорта. Критиковать можно? Если Вы в Киеве обитаете - приезжайте в гости, покажу живьем "Пергольный домик" (см план с размерами в аттачменте) Нарисуйте свой дом с планом и поймете, что мебель там не расставляется, увы, а двухстворчатое окно и рядом двери не становятся в стенку, так как им не хватит размера стены Важно - такого типа проект заточен под фермы (если хотите двухскатку) или надо ставить вальмовую кровлю 2 Посилання на коментар Поділитися на інших сайтах More sharing options...
abelor Опубліковано: 22 березня 2016 Поділитись Опубліковано: 22 березня 2016 Категорически против формулировки:"И мне все равно вписывается он в Архитектуру этой деревни или нет". Ужас!!! В порядочной стране без архитектора на своем участке и дерево снести нельзя, да что там дерево, куст сирени пересадить, если на этот куст каждый день любуется пожилая соседка. А архитектор, после того как хозяин куста объявит о своих намерениях, обязан это с его пожилой соседкой согласовать. Да, народ Гондураса отдыхает, куда ему до народа Украины с его "прагненням до свободи". Бред, полный бред. Тут не только в запой пора уходить, тут уже надо куда-то сматываться из этого общественного устройства. Вы знаете вкусы у всех разные. И то что кажется вам красивым, не обязательно должно понравится другим. Легко говорить - " живите в квартире" тогда, когда она есть. А когда негде жить, когда не откого ждать наследства и т.д., может для многих решением есть построить себе домик. Понимаю что это тоже большие затраты, но влаживать можно постепенно, много работы можно и самим сделать. Тут на форуме куча примеров, когда люди самостоятельно построили свой дом. Я тоже 13 лет назад очень умной была, когда предлагали участок 12 соток под Одессой за 300 дол, говорила что жить в деревне не буду. Через пару лет этот участок стоил от 50 тысяч дол. Сейчас появилась возможность взять кусочек земли, и хочется построить именно свой домик. Тот который будет нравится мне и моим родным. И мне все равно вписывается он в Архитектуру этой деревни или нет. А знаете, обычно когда каждый день хочется напиться, это не дом виноват, это к врачу надо.... и причем срочно. Посилання на коментар Поділитися на інших сайтах More sharing options...
Татьяна5 Опубліковано: 22 березня 2016 Поділитись Опубліковано: 22 березня 2016 Для начала, "смотайтесь" из данной темы. Или корону снимите. Откровенно надоело. Никто не приуменьшает роли гуру-архитектора, но всему своё место и условия. 4 Посилання на коментар Поділитися на інших сайтах More sharing options...
vadimv Опубліковано: 23 березня 2016 Поділитись Опубліковано: 23 березня 2016 Категорически против"Критикуешь - предлагай!" (с) Или вам нечего ТС предложить? 1 Посилання на коментар Поділитися на інших сайтах More sharing options...
adeliveis Опубліковано: 23 березня 2016 Автор Поділитись Опубліковано: 23 березня 2016 Критиковать можно? Если Вы в Киеве обитаете - приезжайте в гости, покажу живьем "Пергольный домик" (см план с размерами в аттачменте) Нарисуйте свой дом с планом и поймете, что мебель там не расставляется, увы, а двухстворчатое окно и рядом двери не становятся в стенку, так как им не хватит размера стены Важно - такого типа проект заточен под фермы (если хотите двухскатку) или надо ставить вальмовую кровлю Даже нужно критиковать. Очень рада видеть Вас в своей теме. Читала вашу не отрываясь от монитора. Влюблена в ваши домики. Жаль, но живу в Одессе, до Киева далековато. Жила бы ближе с удовольствием приехала бы посмотрела ваши домики. Спасибо что подкорректировали мои наброски. На счет двери мы еще решаем какая там будет, думали вообще там поставить самую обычную дверь. Поэтому и надеялась что влезет вместе с окном. Дом планируем на участке расставить так, что вход будет с востока - это и есть въезд с улицы (ширина 17 метров), две спальни будут с южной стороны и третья с западной и кусок гостиной где будет дверь. Кухня и и еще одна сторона гостиной остается с северной стороны. Поэтому думала всунуть окно и дверь на одной стенке, чтобы с севера не было окон. Длина участка около 30 метров, со стороны двора оставим 12 метров, дом около 8 и остается 10 метров для террасы и пару деревьев. На счет крыши, у меня сосед прораб по кровле с большим опытом у него уточняли на счет сложностей по поводу перекрытия этого дома. Сказал что возможно сделать двухскатную. Думаю и в Одессе возможно найти готовые конструкции при большом желании. Муж работает на автокране, установить их будет без проблем. Если вы не против возьму ваш план за основу. Добавлено через 12 минут Категорически против формулировки:"И мне все равно вписывается он в Архитектуру этой деревни или нет". Ужас!!! В порядочной стране без архитектора на своем участке и дерево снести нельзя, да что там дерево, куст сирени пересадить, если на этот куст каждый день любуется пожилая соседка. А архитектор, после того как хозяин куста объявит о своих намерениях, обязан это с его пожилой соседкой согласовать. Да, народ Гондураса отдыхает, куда ему до народа Украины с его "прагненням до свободи". Бред, полный бред. Тут не только в запой пора уходить, тут уже надо куда-то сматываться из этого общественного устройства. Ну так и сматывайтесь. Кто вас держит? У меня есть много знакомых, которым так же, как и вам не нравится эта страна и ее жители. Знаете что они сделали? Смотались туда где как им кажется, очень сильно нравится. Причем молча. Вот таких людей уважаю, а не тех кто кричит "Страна плохая". Так как большая часть студентов получает образование, то очень много умных специалистов у нас. Найти самого лучшего не проблема, но самые лучшие и денег стоят. НЕТ у меня лишних денег, НЕТ. Покажите пожалуйста ваш домик- там где вы живете. Думаю там просто все идеально, и с соседями все согласовано. 2 Посилання на коментар Поділитися на інших сайтах More sharing options...
vadimv Опубліковано: 23 березня 2016 Поділитись Опубліковано: 23 березня 2016 две спальни будут с южной стороны и третья с западной и кусок гостиной где будет дверь. Кухня и и еще одна сторона гостиной остается с северной стороныА почему не хотите, как в оригинале - спальни с северной стороны с окнами на восток и запад, а с юга - гостиная? Посилання на коментар Поділитися на інших сайтах More sharing options...
adeliveis Опубліковано: 23 березня 2016 Автор Поділитись Опубліковано: 23 березня 2016 А почему не хотите, как в оригинале - спальни с северной стороны с окнами на восток и запад, а с юга - гостиная? Не хочется чтобы зимой было холодно в спальнях. У нас вокруг участка огороды соседей, поэтому нет никаких строений, думаю будет ветерочек хороший. Хотя если будет много "за" за такое решение, то можно рассмотреть и этот вариант. Посилання на коментар Поділитися на інших сайтах More sharing options...
vadimv Опубліковано: 23 березня 2016 Поділитись Опубліковано: 23 березня 2016 Не хочется чтобы зимой было холодно в спальнях.Если стена сделана качественно и из нормального материала, то от стены холода не будет (у нас в одной детской 5 м северной стены - там не холоднее, чем в комнате с южной стороны). А окна в проекте на восток и запад (на север я бы и сам не делал). если будет много "за" за такое решение, то можно рассмотреть и этот вариант.1. Зимой обычно не хватает солнечного света, поэтому хорошо, когда в гостиной есть окно на юг - именно там собирается и проводит много времени вся семья. 2. Это же окно освещает коридор. Без него он будет темным. 3. Спальни вообще лучше не делать с окнами на юг - летом очень жарко (особенно у вас, в Одессе). Лучше окна на восток/запад. 1 Посилання на коментар Поділитися на інших сайтах More sharing options...
adeliveis Опубліковано: 23 березня 2016 Автор Поділитись Опубліковано: 23 березня 2016 Если стена сделана качественно и из нормального материала, то от стены холода не будет. А окна в проекте на восток и запад (на север я бы и сам не делал). 1. Зимой обычно не хватает солнечного света, поэтому хорошо, когда в гостиной есть окно на юг - именно там собирается и проводит много времени вся семья. 2. Это же окно освещает коридор. Без него он будет темным. 3. Спальни вообще лучше не делать с окнами на юг - летом очень жарко (особенно у вас, в Одессе). Лучше окна на восток/запад. По Татьяниному эскизу если спальни будут с северной стороны, то вход у меня с огорода получается. На счет окон с юга, тоже задумываюсь что может быть жарко в спальнях. Мне сейчас очень важно определится с пятном застройки для строй паспорта. Думаю что возьмем размеры с эскиза Тани. Подскажите плиз, кто в какой программе создает эти эскизы. Посилання на коментар Поділитися на інших сайтах More sharing options...
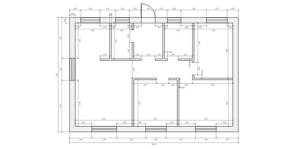
vadimv Опубліковано: 23 березня 2016 Поділитись Опубліковано: 23 березня 2016 Подскажите плиз, кто в какой программе создает эти эскизы.ArchiCAD По Татьяниному эскизу если спальни будут с северной стороны, то вход у меня с огорода получается.Его нужно просто перевернуть: 1 Посилання на коментар Поділитися на інших сайтах More sharing options...
adeliveis Опубліковано: 23 березня 2016 Автор Поділитись Опубліковано: 23 березня 2016 ArchiCAD Его нужно просто перевернуть: Спасибо за перевернутый эскиз. Скачала вчера Архикад, но не посмотрела что он для 64-битной системы, а у меня стоит 32-битная. Для своей системы не нашла. Надо будет сегодня заняться поиском более старой версии, т.к. новые все практически для 64-бит. Не хочется винду переустанавливать для одной программы.:D Посилання на коментар Поділитися на інших сайтах More sharing options...
vadimv Опубліковано: 23 березня 2016 Поділитись Опубліковано: 23 березня 2016 Скачала вчера Архикад, но не посмотрела что он для 64-битной системы, а у меня стоит 32-битная. Для своей системы не нашла. Надо будет сегодня заняться поиском более старой версии, т.к. новые все практически для 64-бит. Не хочется винду переустанавливать для одной программы.:DЯ себе вообще скачал версию, не требующую установки. Один файл, он запускается и сразу можно рисовать. Для 32-битной системы. 1 Посилання на коментар Поділитися на інших сайтах More sharing options...
adeliveis Опубліковано: 23 березня 2016 Автор Поділитись Опубліковано: 23 березня 2016 Я себе вообще скачал версию, не требующую установки. Один файл, он запускается и сразу можно рисовать. Для 32-битной системы. Можно ссылку в личку? Или может файлик на почту adeliveis@ukr.net , если есть возможность. Посилання на коментар Поділитися на інших сайтах More sharing options...
abelor Опубліковано: 23 березня 2016 Поділитись Опубліковано: 23 березня 2016 Я не работаю "в стол". Когда заключаю контракт с заказчиком, то там есть пункт: интеллектуальная собственность МОЯ, но распоряжаться я ею могу с оговоркой, если на это соглашается заказчик. Поэтому проекты показать НЕ ИМЕЮ ПРАВА(согласно контракта). А вот готовые дома киевляне, если есть желание, могут посмотреть. Некоторые хорошо видны из-за заборов и деревьев. Итак:ул. Замковецкая, 54-ж; ул. Цымбалов Яр, 66;ул. Глазунова, 10; ул. Чаплыгина, 10;ул. Червонофлотская, 44; Стратегический переулок, 13; ул. Мистецька, 5-а; ул. Бродовская, 90-б; ул. Купянская, 9-а. "Критикуешь - предлагай!" (с) Или вам нечего ТС предложить? Посилання на коментар Поділитися на інших сайтах More sharing options...
vadimv Опубліковано: 23 березня 2016 Поділитись Опубліковано: 23 березня 2016 (змінено) Можно ссылку в личку? Или может файлик на почту adeliveis@ukr.net , если есть возможность.Отправил ссылку почтой (личка не работает), сам файл не поместится - 800 с чем-то мегабайт. Змінено 23 березня 2016 користувачем vadimv 1 Посилання на коментар Поділитися на інших сайтах More sharing options...
abelor Опубліковано: 23 березня 2016 Поділитись Опубліковано: 23 березня 2016 Уважаемый форумчанин, не там экономите. Грамотный проект от СПЕЦИАЛИСТОВ( геодезист, геолог,архитектор, конструктор, специалисты по инженерным сетям(отопление и вентиляция, газоснабжение, водопровод и канализация, электроснабжение и слабые токи) - вот первый шаг к существенной экономии денег в процессе создания недвижимости. А заниматься самодеятельностью в этом непростом даже для специалистов деле - пустая трата собственного времени, которое Вы могли бы потратить на совершенствование в собственной профессии или на отдых. Кроме того, занятие не своим делом, в котором плохо ориентируешься, плохо влияет на здоровье. ...НЕТ у меня лишних денег, НЕТ. 1 Посилання на коментар Поділитися на інших сайтах More sharing options...
adeliveis Опубліковано: 23 березня 2016 Автор Поділитись Опубліковано: 23 березня 2016 Уважаемый форумчанин, не там экономите. Грамотный проект от СПЕЦИАЛИСТОВ( геодезист, геолог,архитектор, конструктор, специалисты по инженерным сетям(отопление и вентиляция, газоснабжение, водопровод и канализация, электроснабжение и слабые токи) - вот первый шаг к существенной экономии денег в процессе создания недвижимости. А заниматься самодеятельностью в этом непростом даже для специалистов деле - пустая трата собственного времени, которое Вы могли бы потратить на совершенствование в собственной профессии или на отдых. Кроме того, занятие не своим делом, в котором плохо ориентируешься, плохо влияет на здоровье. Обязательно прислушаюсь к вашему мнению. Добавлено через 30 секунд Отправил сслыку почтой (личка не работает), сам файл не поместится - 800 с чем-то мегабайт. Спасибо. Получила. Посилання на коментар Поділитися на інших сайтах More sharing options...
vadimv Опубліковано: 23 березня 2016 Поділитись Опубліковано: 23 березня 2016 Грамотный проект от СПЕЦИАЛИСТОВ( геодезист, геолог,архитектор, конструктор, специалисты по инженерным сетям(отопление и вентиляция, газоснабжение, водопровод и канализация, электроснабжение и слабые токи) - вот первый шаг к существенной экономии денег в процессе создания недвижимости. А заниматься самодеятельностью в этом непростом даже для специалистов деле - пустая трата собственного времениПоддержу насчет того, что ПРОЕКТ таки лучше заказать у специалистов. А вот ПЛАНИРОВКУ изначально должен для себя выстрадать сам заказчик. Иначе ему такого нарисуют, что потом всю оставшуюся жизнь в этом мучиться и локти кусать. Перед походом к архитектору лучше потратить неделю(месяц) своего времени и самому нарисовать эскиз. ИМХО, конечно. ЗЫ: я так понял, от вас даже эскиза никакого не будет. 1 Посилання на коментар Поділитися на інших сайтах More sharing options...
abelor Опубліковано: 23 березня 2016 Поділитись Опубліковано: 23 березня 2016 Послушайте. Нельзя делать сначала планировку, а потом фасады, а потом думать как это все привязать на участок. ВСЕ ДЕЛАЕТСЯ ОДНОВРЕМЕННО В ГОЛОВЕ АРХИТЕКТОРА. Плюс, еще в голове держится информация о конструкциях данного строения и оптимальное размещение инженерных сетей. Не имея специального образования и ДОСТАТОЧНОЙ ПРАКТИКИ эту задачу можно не решить, хотя допускаю, что попадаются еще талантливые от природы уникумы. Поэтому от заказчика требуются определенные исходные данные и первые из них, это геодезия участка(а после утвержденного эскиза и геология под пятно застройки, особенно если есть цокольный этаж или подвал), задание на проектирование дома и карточка согласования конструкций дома и... ФУНКЦИОНАЛЬНО-ПРОСТРАНСТВЕННАЯ СХЕМА СВОЕГО БУДУЩЕГО ДОМА. Как это все оформить я своим заказчикам объясняю. Без специалистов - сложно. Вот и приходят будущие новоселы, помучившись некоторое время, к выбору польской "квартиры на земле". Поддержу насчет того, что ПРОЕКТ таки лучше заказать у специалистов. А вот ПЛАНИРОВКУ изначально должен для себя выстрадать сам заказчик. Иначе ему такого нарисуют, что потом всю оставшуюся жизнь в этом мучиться и локти кусать. Перед походом к архитектору лучше потратить неделю(месяц) своего времени и самому нарисовать эскиз. ИМХО, конечно. ЗЫ: я так понял, от вас даже эскиза никакого не будет. 1 Посилання на коментар Поділитися на інших сайтах More sharing options...
vadimv Опубліковано: 24 березня 2016 Поділитись Опубліковано: 24 березня 2016 Нельзя делать сначала планировку, а потом фасады, а потом думать как это все привязать на участок. ВСЕ ДЕЛАЕТСЯ ОДНОВРЕМЕННО В ГОЛОВЕ АРХИТЕКТОРА. Плюс, еще в голове держится информация о конструкциях данного строения и оптимальное размещение инженерных сетей. Не имея специального образования и ДОСТАТОЧНОЙ ПРАКТИКИ эту задачу можно не решитьТак многие архитекторы и не могут эту задачу решить, судя по тем планировкам, которые регулярно появляются на этом форуме. Из одной темы в другую постоянно кочуют лестницы с забежными ступенями, балконы, эркеры, окна спален на север, длинные темные коридоры и дымоходы поперек крыши. Поэтому и приходтся заказчикам самим вникать во все эти тонкости. от заказчика требуются определенные исходные данные и первые из них, это геодезия участка(а после утвержденного эскиза и геология под пятно застройки, особенно если есть цокольный этаж или подвал), задание на проектирование дома и карточка согласования конструкций дома и... ФУНКЦИОНАЛЬНО-ПРОСТРАНСТВЕННАЯ СХЕМА СВОЕГО БУДУЩЕГО ДОМА.А разве не этим мы в этой теме занимаемся? Пытаемся составить эту самую функционально-пространственную схему дома, которая требуется от заказчика? 1 Посилання на коментар Поділитися на інших сайтах More sharing options...
захар 1977 Опубліковано: 25 березня 2016 Поділитись Опубліковано: 25 березня 2016 Уважаемый форумчанин, не там экономите. Грамотный проект от СПЕЦИАЛИСТОВ( геодезист, геолог,архитектор, конструктор, специалисты по инженерным сетям(отопление и вентиляция, газоснабжение, водопровод и канализация, электроснабжение и слабые токи) - вот первый шаг к существенной экономии денег в процессе создания недвижимости. А заниматься самодеятельностью в этом непростом даже для специалистов деле - пустая трата собственного времени, которое Вы могли бы потратить на совершенствование в собственной профессии или на отдых. Кроме того, занятие не своим делом, в котором плохо ориентируешься, плохо влияет на здоровье. Риторика ваших дописів не змінюється. Вже весь форум знає, що Ви архітектор з 30 річним стажем, що БП треба взагалі заборонити, а забудовникам заборонити навіть пукнути без кваліфікованого архітектора. 2 Посилання на коментар Поділитися на інших сайтах More sharing options...
abelor Опубліковано: 25 березня 2016 Поділитись Опубліковано: 25 березня 2016 Абсолютно в точку. Вот все жду, что понимание проблемы перейдет в ее воплощение. Индивидуальные жилые дома должны строиться ПО ПРОЕКТУ АРХИТЕКТОРА и с разрешения МЕСТНОЙ ВЛАСТИ. Всякие там ГАСКи, БТИ и уж тем более такое уродливое явление, как "будівельний паспорт" должны быть отправлены В ТОПКУ УГАСАЮЩЕГО "СОВКА". Уверена, что так и будет. Риторика ваших дописів не змінюється. Вже весь форум знає, що Ви архітектор з 30 річним стажем, що БП треба взагалі заборонити, а забудовникам заборонити навіть пукнути без кваліфікованого архітектора. 1 Посилання на коментар Поділитися на інших сайтах More sharing options...
vadimv Опубліковано: 25 березня 2016 Поділитись Опубліковано: 25 березня 2016 Вот все жду, что понимание проблемы перейдет в ее воплощение. Индивидуальные жилые дома должны строиться ПО ПРОЕКТУ АРХИТЕКТОРА и с разрешения МЕСТНОЙ ВЛАСТИ.А я помню такое время, как раз в разгар угасающего совка (при Горбачеве) строили мы дачу. Ткнули нам в зубы типовой проект и сказали "Строить только так!". И стоят на том массиве инкубаторские домики ровными рядами. А поодинокие выпедренцы, строившие не по проекту, еще несколько лет не крыли шифером крышу, потому что она была не по уставу и правление решало - снести только ее или весь домик. Посилання на коментар Поділитися на інших сайтах More sharing options...
захар 1977 Опубліковано: 25 березня 2016 Поділитись Опубліковано: 25 березня 2016 Абсолютно в точку. Вот все жду, что понимание проблемы перейдет в ее воплощение. Индивидуальные жилые дома должны строиться ПО ПРОЕКТУ АРХИТЕКТОРА и с разрешения МЕСТНОЙ ВЛАСТИ. Всякие там ГАСКи, БТИ и уж тем более такое уродливое явление, как "будівельний паспорт" должны быть отправлены В ТОПКУ УГАСАЮЩЕГО "СОВКА". Уверена, что так и будет. Роботи не вистарчає? Може вже покажете нарешті хоч один приклад вашої плідної роботи за 30 років? Чи соромно? 1 Посилання на коментар Поділитися на інших сайтах More sharing options...
Рекомендовані повідомлення
Створіть акаунт або увійдіть у нього для коментування
Ви маєте бути користувачем, щоб залишити коментар
Створити акаунт
Зареєструйтеся для отримання акаунта. Це просто!
Зареєструвати акаунтУвійти
Вже зареєстровані? Увійдіть тут.
Увійти зараз