Сергейч07 Опубліковано: 14 травня 2016 Поділитись Опубліковано: 14 травня 2016 Уважаемые форумчани кто силен в вентиляции под кровельного пространства подскажите где правильно размещать кровельные аэраторы ктв ?? Есть ли какая то норматива? Посилання на коментар Поділитися на інших сайтах More sharing options...
Nikolay Опубліковано: 18 травня 2016 Поділитись Опубліковано: 18 травня 2016 1. суммарная площадь сечения отверстий аэраторов должна составлять 1/500 от площади крыши 2. располагать в наиболее верхних точках скатов 3. избегать "застойных зон" 4. не забывать о том, что преградой вентиляции может быть вентканал-дымарь, мансардное окно, парапет и т.п. соответственно нужно ставить аэратор до преграды и выше неё 5. устанавливая аэратор как элемент оттока воздуха, нельзя забывать, что он не будет работать без притока воздуха. как правило это вентиляционный зазор в карнизной части крыши. Посилання на коментар Поділитися на інших сайтах More sharing options...
kvug Опубліковано: 18 травня 2016 Поділитись Опубліковано: 18 травня 2016 Добрый день! Если можно, то план или вид кровли сверху. У Вас должен быть по проекту. Отмечу Вам точками. Посилання на коментар Поділитися на інших сайтах More sharing options...
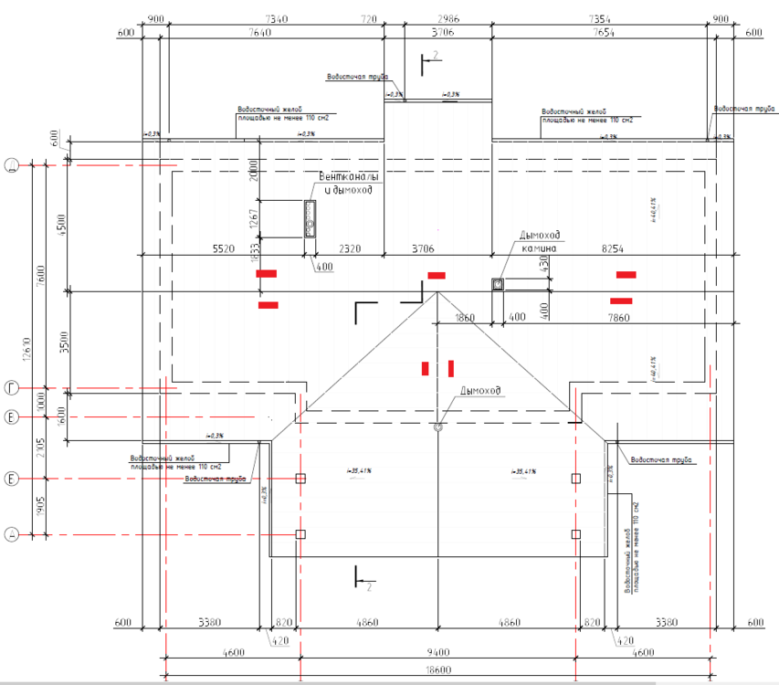
Сергейч07 Опубліковано: 24 травня 2016 Автор Поділитись Опубліковано: 24 травня 2016 Добрый день! Если можно, то план или вид кровли сверху. У Вас должен быть по проекту. Отмечу Вам точками. Д день! СБросил Вам на почту Посилання на коментар Поділитися на інших сайтах More sharing options...
kevlar Опубліковано: 10 серпня 2016 Поділитись Опубліковано: 10 серпня 2016 (змінено) Здравствуйте. Дабы не плодить тем. Хочу устроить вент конек. Крыша в два ската, мансарда, битумная черепица, скат 6,5м. Основной вопрос! Какие слои/слой кровли вообще-то вентилируется, и как устраивается приток с карниза. Спасибо Змінено 10 серпня 2016 користувачем kevlar Посилання на коментар Поділитися на інших сайтах More sharing options...
eam Опубліковано: 11 серпня 2016 Поділитись Опубліковано: 11 серпня 2016 1. суммарная площадь сечения отверстий аэраторов должна составлять 1/500 от площади крыши 2. располагать в наиболее верхних точках скатов 3. избегать "застойных зон" 4. не забывать о том, что преградой вентиляции может быть вентканал-дымарь, мансардное окно, парапет и т.п. соответственно нужно ставить аэратор до преграды и выше неё 5. устанавливая аэратор как элемент оттока воздуха, нельзя забывать, что он не будет работать без притока воздуха. как правило это вентиляционный зазор в карнизной части крыши. Добрый день! Если можно, то план или вид кровли сверху. У Вас должен быть по проекту. Отмечу Вам точками. А подскажите такое расоположение/количество нормальное? Посилання на коментар Поділитися на інших сайтах More sharing options...
Nikolay Опубліковано: 11 серпня 2016 Поділитись Опубліковано: 11 серпня 2016 А подскажите такое расоположение/количество нормальное? а какая площадь сечения вент отверстия одного аэратора? Добавлено через 1 минуту Хочу устроить вент конек. Крыша в два ската, мансарда, битумная черепица, скат 6,5м. Основной вопрос! Какие слои/слой кровли вообще-то вентилируется, и как устраивается приток с карниза. Этот вопрос достаточно полно раскрывается в любом ближайшем мануале по укладке кровли из БЧ. Там принципов знать не обязательно. Достаточно повторить нарисованное Посилання на коментар Поділитися на інших сайтах More sharing options...
eam Опубліковано: 11 серпня 2016 Поділитись Опубліковано: 11 серпня 2016 а какая площадь сечения вент отверстия одного аэратора? Да я без понятия Думал может вы знаете площадь у стандартных вильповских аэраторов (еще не покупал, но скорее всего будут именно они). Посилання на коментар Поділитися на інших сайтах More sharing options...
Nikolay Опубліковано: 11 серпня 2016 Поділитись Опубліковано: 11 серпня 2016 Да я без понятия Думал может вы знаете площадь у стандартных вильповских аэраторов (еще не покупал, но скорее всего будут именно они). Сделайте лучше вентконёк Дополнительно потратитесь на бруски, капельник, вентсетку, доп. работы но на выходе получите примерно те же затраты но куда бОльшую эффективность. Ну и ИМХО, аккуратнее выглядит Посилання на коментар Поділитися на інших сайтах More sharing options...
eam Опубліковано: 12 серпня 2016 Поділитись Опубліковано: 12 серпня 2016 Сделайте лучше вентконёк Дополнительно потратитесь на бруски, капельник, вентсетку, доп. работы но на выходе получите примерно те же затраты но куда бОльшую эффективность. Ну и ИМХО, аккуратнее выглядит Не, вентконек не хочу. По отзывам в него может задувать снег. Посилання на коментар Поділитися на інших сайтах More sharing options...
Nikolay Опубліковано: 12 серпня 2016 Поділитись Опубліковано: 12 серпня 2016 По отзывам в него может задувать снег. во первых, просим в студию факты в какой конёк задуло и почему. проблема в изделии или неправильном его применении? во вторых: снег+ветер - такая зараза, что найдут себе дорогу в самых немыслимых местах. нет такого аэратора, который на 100% имеет защиту от задувания. и вильпе тут не исключение. потому у них и в каждом комплекте идёт доп. крепёж для мембраны. равно как и нет такого кровельного материала, который на 100% защищён от задувания. в тот же вентзазор в карнизе тоже может задуть. и что теперь? для того и придумана подкровельная гидроизоляция Посилання на коментар Поділитися на інших сайтах More sharing options...
1sd1 Опубліковано: 27 вересня 2016 Поділитись Опубліковано: 27 вересня 2016 Сделайте лучше вентконёк Дополнительно потратитесь на бруски, капельник, вентсетку, доп. работы но на выходе получите примерно те же затраты но куда бОльшую эффективность. Ну и ИМХО, аккуратнее выглядит Сделал себе по такому же принципу, только конёк поставил металлический. Посилання на коментар Поділитися на інших сайтах More sharing options...
alaross Опубліковано: 28 вересня 2016 Поділитись Опубліковано: 28 вересня 2016 Сделайте лучше вентконёк ... куда бОльшую эффективность. Ну и ИМХО, аккуратнее выглядит Чем лучше и по какому критерию Вы оцениваете эффективность? Посилання на коментар Поділитися на інших сайтах More sharing options...
Nikolay Опубліковано: 28 вересня 2016 Поділитись Опубліковано: 28 вересня 2016 Чем лучше и по какому критерию Вы оцениваете эффективность? 1. лучше, чем расставленные точечно аэраторы, как это хотел сделать автор топика, с точки зрения эффективности: более равномерное распределение зоны оттока вентиляции, минимизация "застойных зон" 2. эстетичнее Посилання на коментар Поділитися на інших сайтах More sharing options...
alaross Опубліковано: 28 вересня 2016 Поділитись Опубліковано: 28 вересня 2016 1. с точки зрения эффективности: более равномерное распределение зоны оттока вентиляции, минимизация "застойных зон" С этим согласен, но не в нашем климате. Вы упускаете самый важный параметр - поток воздуха проходящего через канал. На Украине необходимо минимизировать поток воздуха до оптимального по климатической зоне, а не интенсифицировать вентиляцию подкровельного пространства за счет прогона выпускного вентиляционного канала вдоль всего конька крыши. Вы также указали норму 1/500, которая как минимум в 4 раза превышает допустимую в ЕС. 1. суммарная площадь сечения отверстий аэраторов должна составлять 1/500 от площади крыши К сожалению, в странах Северной Европы, Германии, Польше, России, Белоруссии и Украине необходимо исходить из нормы 1/2000-1/4000. И если на крыше использовать вентиляционный конек, то его длину и надо рассчитывать исходя из этой нормы. Тогда будет обеспечена достаточная вентиляция для охлаждения крыши летом и исключено выхолаживание крыши зимой. Также удастся избежать избыточного увлажнения теплоизоляции вследствие прохождения потока влажного воздуха в осенне-зимний период. Мне кажется точечные вентили типа КТВ или вот такие коньковые PIPE-CONE, адаптируемые под имеющийся уклон крыши, также отличное решение. Посилання на коментар Поділитися на інших сайтах More sharing options...
Nikolay Опубліковано: 28 вересня 2016 Поділитись Опубліковано: 28 вересня 2016 На Украине необходимо минимизировать поток воздуха до оптимального по климатической зоне, а не интенсифицировать вентиляцию подкровельного пространства за счет прогона выпускного вентиляционного канала вдоль всего конька крыши. А на основании чего такой вывод? Есть под рукой норма/табличка/мануал? Добавлено через 1 минуту К сожалению, в странах Северной Европы, Германии, Польше, России, Белоруссии и Украине необходимо исходить из нормы 1/2000-1/4000. А исходя из чего Вас такие цифры? Посилання на коментар Поділитися на інших сайтах More sharing options...
Vitaliy_Goy Опубліковано: 12 жовтня 2016 Поділитись Опубліковано: 12 жовтня 2016 во первых, просим в студию факты в какой конёк задуло и почему. проблема в изделии или неправильном его применении? во вторых: снег+ветер - такая зараза, что найдут себе дорогу в самых немыслимых местах. нет такого аэратора, который на 100% имеет защиту от задувания. и вильпе тут не исключение. потому у них и в каждом комплекте идёт доп. крепёж для мембраны. равно как и нет такого кровельного материала, который на 100% защищён от задувания. в тот же вентзазор в карнизе тоже может задуть. и что теперь? для того и придумана подкровельная гидроизоляция Факт на фото - тех. помещение установлен вент. конек! Что бы не было глупых вопросов: пароизоляция с проклейкой по периметру юта, утепление 250мм (ROCKMIN плотность 26кг) 100-100-50мм, тайвик софт, вент. зазор не меньше 50мм + так же приток, доска пазгребень 32мм, подкладочный и сверху катепал фокси + вентиляция (приток, отток). Посилання на коментар Поділитися на інших сайтах More sharing options...
Vitaliy_Goy Опубліковано: 12 жовтня 2016 Поділитись Опубліковано: 12 жовтня 2016 1. суммарная площадь сечения отверстий аэраторов должна составлять 1/500 от площади крыши 1. Подскажите, на крышу 216 м.кв. и длинной по коньку 9 метров, сколько нужно коньковых аэраторов? .... Посилання на коментар Поділитися на інших сайтах More sharing options...
Nikolay Опубліковано: 12 жовтня 2016 Поділитись Опубліковано: 12 жовтня 2016 1. Подскажите, на крышу 216 м.кв. и длинной по коньку 9 метров, сколько нужно коньковых аэраторов? Каких конкретно? Модель, суммарное сечение вентиляции и т.п.? Посилання на коментар Поділитися на інших сайтах More sharing options...
Vitaliy_Goy Опубліковано: 12 жовтня 2016 Поділитись Опубліковано: 12 жовтня 2016 Каких конкретно? Модель, суммарное сечение вентиляции и т.п.? Предложите изготовителя. Квадратура 216м.кв., конек 9 метров, приток не меньше 5см с карнизных свесов, угол 29-30 градусов. Посилання на коментар Поділитися на інших сайтах More sharing options...
sly Опубліковано: 12 жовтня 2016 Поділитись Опубліковано: 12 жовтня 2016 раз нашел темку, тоже задав вопросик. крыша вальмовая, 206 метров, угол 25 градусов... Если ставить вильповские KTV - то сколько штук? я подумываю 5. На южной стороне ставить не буду вообще, по 2 шт на больших скатах и 1 шт на северной стороне. Но покатался посмотрел на дома - многие ставят вообще по 1 шт... Я правильно понимаю, что через них будет отток? как реализовать приток воздуха? Посилання на коментар Поділитися на інших сайтах More sharing options...
Vitaliy_Goy Опубліковано: 13 жовтня 2016 Поділитись Опубліковано: 13 жовтня 2016 раз нашел темку, тоже задав вопросик. крыша вальмовая, 206 метров, угол 25 градусов... Если ставить вильповские KTV - то сколько штук? я подумываю 5. На южной стороне ставить не буду вообще, по 2 шт на больших скатах и 1 шт на северной стороне. Но покатался посмотрел на дома - многие ставят вообще по 1 шт... Я правильно понимаю, что через них будет отток? как реализовать приток воздуха? Не меньше 4х и не дальше 3м друг от друга по коньку. Если бы план кровли, можно сказать точнее Приток с под карнизного свеса. 1 Посилання на коментар Поділитися на інших сайтах More sharing options...
DEN24 Опубліковано: 13 жовтня 2016 Поділитись Опубліковано: 13 жовтня 2016 На южной стороне ставить не буду вообще, А почему??? Посилання на коментар Поділитися на інших сайтах More sharing options...
Nikolay Опубліковано: 13 жовтня 2016 Поділитись Опубліковано: 13 жовтня 2016 Предложите изготовителя. Я не продавец вентконьков. Ничего предложить не могу. Могу помочь проверить на соответствие конкретного элемента конкретному случаю. Но не более. Судя по вашей подписи, вы сами что-то можете предложить, и даже помочь подобрать, но почему-то просите сделать это других. Троллинг? Посилання на коментар Поділитися на інших сайтах More sharing options...
DEN24 Опубліковано: 13 жовтня 2016 Поділитись Опубліковано: 13 жовтня 2016 Приток с под карнизного свеса. Очень не удачная схема реализации вентиляции подкровельного пространства. Если Воздух проходит как указано в данной схеме, то в узле мауэрлата не мостик холода а мостищще... Если утеплить правильно и закольцевать утеплитель в узле мауэрлата, то приток воздуха в районе карнизного свеса отсутствует и все перфорации в софите как мертвому припарка. Приток воздуха осуществляется в утепленной или частично утепленной кровле в узле капельника между контррейками над гидроизоляцией. Посилання на коментар Поділитися на інших сайтах More sharing options...
Рекомендовані повідомлення
Створіть акаунт або увійдіть у нього для коментування
Ви маєте бути користувачем, щоб залишити коментар
Створити акаунт
Зареєструйтеся для отримання акаунта. Це просто!
Зареєструвати акаунтУвійти
Вже зареєстровані? Увійдіть тут.
Увійти зараз