Аня767676 Опубліковано: 31 травня 2016 Автор Поділитись Опубліковано: 31 травня 2016 Но больше волнует вопрос, а как вы будите к микроволновке на холодильнике добираться ? стремянка? Или это телевизор ? но тоже шея будет болеть если долго смотреть Я думаю холодильник взять низкий, например, 140 см, или даже ниже. На одну меня продуктов много не надо, плюс я вегетарианец, то есть должна уложиться. Микроволновкой я тоже не пользуюсь, но закладываю ее в проект, на случай, если буду сдавать квартиру. В таком случае, надеюсь, жилец новый вместит все свои продукты в низкий холодильник. Добавлено через 53 минуты А еще, как вариант, можно убрать карго (он, кстати, недешевый и, как по мне, вообще удобен только в нижней тумбе, а не в верхней - и это с моим ростом 173), вместо карго можно поставить стандартную тумбу, и затем сразу - холодильник. Освободившегося места между холодильником и стенкой справа должно быть достаточно, чтобы хранить там в вертикальном положении гладильную доску и раскладывающуюся сушилку для белья. Если захочется бОльшей эстетики, этот кусочек можно оформить как очень узкий, глубокий и высокий пенал, с фасадами как в остальной кухне (будет дороже, поскольку нестандартный размер, но не мега дорого, поскольку конструкция несложная). Отличная мысль хранить там сушку для белья и гладильную доску! Правда, действительно хочется закрыть это все пеналом...Подумаю. Пока что нарисовала там тумбу, чтобы планировать пока что место. Добавлено через 2 минуты Обновила план и роезтки, и щее попробовала проставить расстояния, где ставить розетки...Может, у кого-то есть замечания. Озадачена вот чем,: на какой высоте делать розетку или вывод под силовой кабель для бойлера... Посилання на коментар Поділитися на інших сайтах More sharing options...
Holmes Опубліковано: 1 червня 2016 Поділитись Опубліковано: 1 червня 2016 Отличная мысль хранить там сушку для белья и гладильную доску! Правда, действительно хочется закрыть это все пеналом...Подумаю. Пылесос, гладильная доска, швабра, борд и даже сейф - под все это гораздо удобнее в шкафу-купе предусмотреть ниши по размерам Озадачена вот чем,: на какой высоте делать розетку или вывод под силовой кабель для бойлера... а тебе точно нужен бойлер? может в новом доме нет проблем с горячей водой? Я думаю, нужно выбрать бойлер, все расчитать, выводы сделать, но пока может и не вешать? что говорят жильцы и комендант насчет горячей воды? насчет электричества под бойлер: +/- 1м это не очень важно, в одной своей кваритире я не делал розетку под бойлер - а просто вынес провод и стены, его ж подключать один раз. Розетка не обязательна 1 Посилання на коментар Поділитися на інших сайтах More sharing options...
Holmes Опубліковано: 1 червня 2016 Поділитись Опубліковано: 1 червня 2016 Такой диван планируешь на кухне? Вопрос: удобно ли на них сидеть за столом? Размеры тут: www.taburetka.ua/info/p326_divan-uglovoi-tehas.html 1 Посилання на коментар Поділитися на інших сайтах More sharing options...
Аня767676 Опубліковано: 1 червня 2016 Автор Поділитись Опубліковано: 1 червня 2016 Пылесос, гладильная доска, швабра, борд и даже сейф - под все это гораздо удобнее в шкафу-купе предусмотреть ниши по размерам а тебе точно нужен бойлер? может в новом доме нет проблем с горячей водой? Я думаю, нужно выбрать бойлер, все расчитать, выводы сделать, но пока может и не вешать? что говорят жильцы и комендант насчет горячей воды? насчет электричества под бойлер: +/- 1м это не очень важно, в одной своей кваритире я не делал розетку под бойлер - а просто вынес провод и стены, его ж подключать один раз. Розетка не обязательна Звучит разумно. Пообщаюсь с жильцами. А трубы подводить под бойлер тоже на всякий случай, да? Не пойму, насколько сложно будет его доустановить уже когда ремонт будет сделан. Добавлено через 1 минуту Такой диван планируешь на кухне? Вопрос: удобно ли на них сидеть за столом? Размеры тут: www.taburetka.ua/info/p326_divan-uglovoi-tehas.html Спасибо за предложение! Какой-то он маркий на вид. Я поищу примеры и покажу. Посилання на коментар Поділитися на інших сайтах More sharing options...
mib Опубліковано: 1 червня 2016 Поділитись Опубліковано: 1 червня 2016 насколько сложно будет его доустановить уже когда ремонт будет сделан. Лучше поставить сразу не такие и большие деньги... я когда делал ремонт как то про него забыл в итоге сейчас что бы установить бойлер нужно разбирать стену так как трубы все в ней... 1 Посилання на коментар Поділитися на інших сайтах More sharing options...
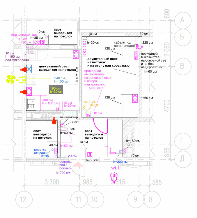
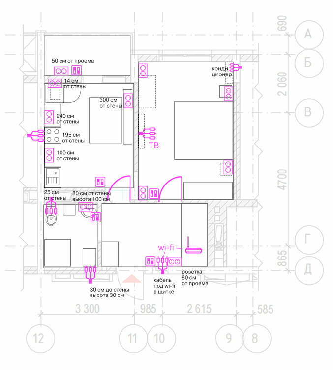
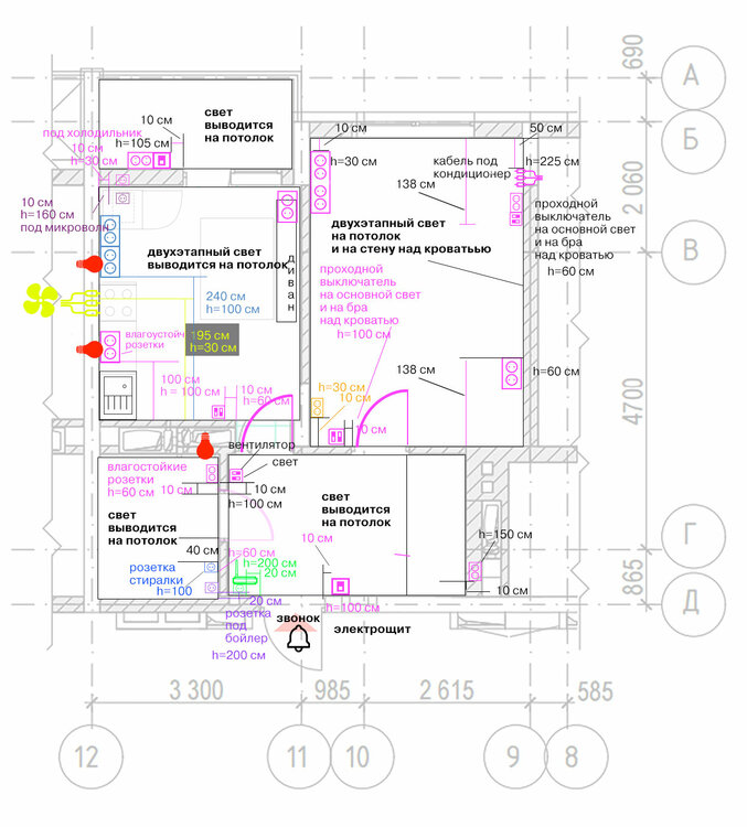
Аня767676 Опубліковано: 4 червня 2016 Автор Поділитись Опубліковано: 4 червня 2016 Сегодня встречаюсь с электриком. Подготовила такой вот план и комментарии по электрике, может, кто-то исправит или дополнит? Прихожая роутер ставлю в шкаф, под него розетка на высоте 2 метра. КАбель под роутер вводится из общего коридора там, где обозначен роутер. Не забыть сфотографировать схему проводки, чтобы при установке вай фая не повредили проводку. Под розетко для роутера, на высоте 150 см, еще две розетки, у меня в шкафу купе будут полочки там, можно будет как-то использовать розетки. Освещение в коридлре одноэтапное. Санузел РОзетка под стиральную машину на высоте 30 см от пола. Над ней сдвоенная розетка на высоте метр от пола. Возможно, на стиралке будет стоять корзина для белья или висеть тумба с ящичками, розетки нужно будет оставить доступными. Справа от входа выключатель основного света, выключатель света над зеркалом, и выключатель вентиляции. Над унитазом (возможно) будет висеть бойлер. Под него кабель на высоте 2 метра (посоветуюсь насчет высоты с электриком). Спальня Проходной выключатель - возле входа и возле кровати. Двойной выключатель, чтобы можно было управлять и общим светом, и бра над кроватью. Телевизор в спальне решила не делать. Под кондиционер подведу кабель на высоте 30 см от потолка и спрячу его в коробочку, потом, возможно, доставлю кондиционер. Вместе с электриком убедиться, что магистраль кондиционер будет прокладываться не атм, где будут провода под кондиционер. РОзетки возле кровати сдвоенные, с каждой стороны на высоте 70 см, они будут на тумбами. Розетка в углу где потом, возможно, будет стол, на высоте 30 см от пола. Про Кухня Над рабочими поверхностями розетки на высоте 1 метр от пола. Выход силового кабеля для электроплитки на уровне 30 см от пола. Розетка под холодильник на уровне 30 см от пола и под микроволновку там же на высоте 160 см. В другом углу, возле дивана, сдвоенная розетка на высоте 30 см от пола. Выключатель света двухэтапный. Для втяжки на кухню ничего на надо предусматривать? Посудомоечной машины не будет. Балкон Слева от входа одноэтапный выключатель света и сдвоенная розетка ( в тройной рамочке) Не забыть сказать электрику, что вся фурнитура будет качественая, schneider и аналоги, и что все розетки надо делать с заземлениями. А также сказать, что лампочик будут светодиодные Посилання на коментар Поділитися на інших сайтах More sharing options...
etest Опубліковано: 4 червня 2016 Поділитись Опубліковано: 4 червня 2016 Если можно, то поменяйте мойку и плиту местами. 1 Посилання на коментар Поділитися на інших сайтах More sharing options...
JFK Опубліковано: 4 червня 2016 Поділитись Опубліковано: 4 червня 2016 Не забыть сказать электрику, что вся фурнитура будет качественая, schneider и аналоги, и что все розетки надо делать с заземлениями. А также сказать, что лампочик будут светодиодные А зачем Вам заземление в комнате? Заземляйте только ванную и кухню. Может и ошибаюсь, но кажется где то встречал требование по розетке для стиралки, что она должна быть легкодоступна. Возле зеркала в ванной розетки не будет? Добавьте на кухне, на рабочую поверхность. ПС. Открытие дверей условно нарисовано? Зачем кухню и комнату в прихожую открывать? Добавлено через 1 минуту У Вас в квартиру одна фаза заходит или три? Если три, то к плите обязательно три подведите. 1 Посилання на коментар Поділитися на інших сайтах More sharing options...
Аня767676 Опубліковано: 4 червня 2016 Автор Поділитись Опубліковано: 4 червня 2016 А зачем Вам заземление в комнате? Заземляйте только ванную и кухню. мне электрики показали, что вся проводка заземлена (извиняюсь, если неправильно изъясняюсь). Они показали, как к щитку идут три провода. Может и ошибаюсь, но кажется где то встречал требование по розетке для стиралки, что она должна быть легкодоступна. что вы имеете в виду? чтоб можно было выдернуть из розетк шнур? в таком случае подлезть можно будет. Возле зеркала в ванной розетки не будет? по другую сторону от входа, над стриалкой, двойная розетка, для фена или бритвы...шнур придется тянуть чуть дальше тому, кто наводит красоту перед зеркалом, зато так ведь безопасней? Добавьте на кухне, на рабочую поверхность. по четыре розетки на каждую рабочую поверхность? я просто подумала...ну что там - электрочайник, может кофеварка, в крайнем случае комбайн и блендер..четыре всего... или что-то забыла? ПС. Открытие дверей условно нарисовано? Зачем кухню и комнату в прихожую открывать? это для безопасности....двери должны открываться вовне, чтоб при форс мажоре в приступе паники открыть..понимаю, что критерий сомнительный, но явных причин нарушить не вижу...или я чего-то не замечаю? У Вас в квартиру одна фаза заходит или три? Если три, то к плите обязательно три подведите. вот не знаю...видела, что три провода идут к щитку, как писала выше...попробую как-то узнать.. спасибо за советы! Добавлено через 10 минут Если можно, то поменяйте мойку и плиту местами. спасибо за совет, а можете обїяснить почему? Добавлено через 2 минуты Еще электрики сказали, что раз я не ставлю духовку, а только электрическую варочную поверхность, то мне не нужно тянуть силовой кабель, а достаточно поставить отдельную розетку, но на один контур. Я присмотрела варочную поверхность Zanussi ZEI 5680 FB. Ее мощность 6600 Вт. Как думаете, тянуть ли силовой кабель? Добавлено через 5 минут Очень долго пыталась понять, какая информация нужна от провайдера, чтобы я точно знала, что можно будет поставить роутер в шкаф-купе сбоку. Так и не поняла. В итоге, договорилась на завтра с провайдером провести в кваритру интернет, но договор заморозить на пару месяцев, пока делаю ремонт. Тому, кто будет проводить интернет, уже обїясню свой вопрос и он мне надюсь, все объяснит. А потому уде приступят электрики. Посилання на коментар Поділитися на інших сайтах More sharing options...
Аня767676 Опубліковано: 4 червня 2016 Автор Поділитись Опубліковано: 4 червня 2016 Мне нравится вот такое освещение в кухне над рабочей поверхностью. Кто-то пользуется таким? В кухне планирую точечные светильники в натяжжном потолке, и электрики говорят, их хватит...Подсветка ленгтой ЛЕД мне почему-то не нравится. Что скажете? Посилання на коментар Поділитися на інших сайтах More sharing options...
Аня767676 Опубліковано: 4 червня 2016 Автор Поділитись Опубліковано: 4 червня 2016 Хочу в ванную такое зеркало со светом над ним, и электрики сказали, что не нужно отдельный выключатель выводить, просто будет выключатель над самим зеркалом..Так и правда делают? Посилання на коментар Поділитися на інших сайтах More sharing options...
JFK Опубліковано: 4 червня 2016 Поділитись Опубліковано: 4 червня 2016 Дверь наружу из ванной/туалета я понимаю, потому как если плохо станет то дверью некуда будет двигать а эвакуация из квартиры??? Розетка для фена/бритвы на другой стене это не удобно, поставьте розетки влагозащищенные. У Вас уже в комнату три провода заведено или Вам электрики будут проводить? 1 Посилання на коментар Поділитися на інших сайтах More sharing options...
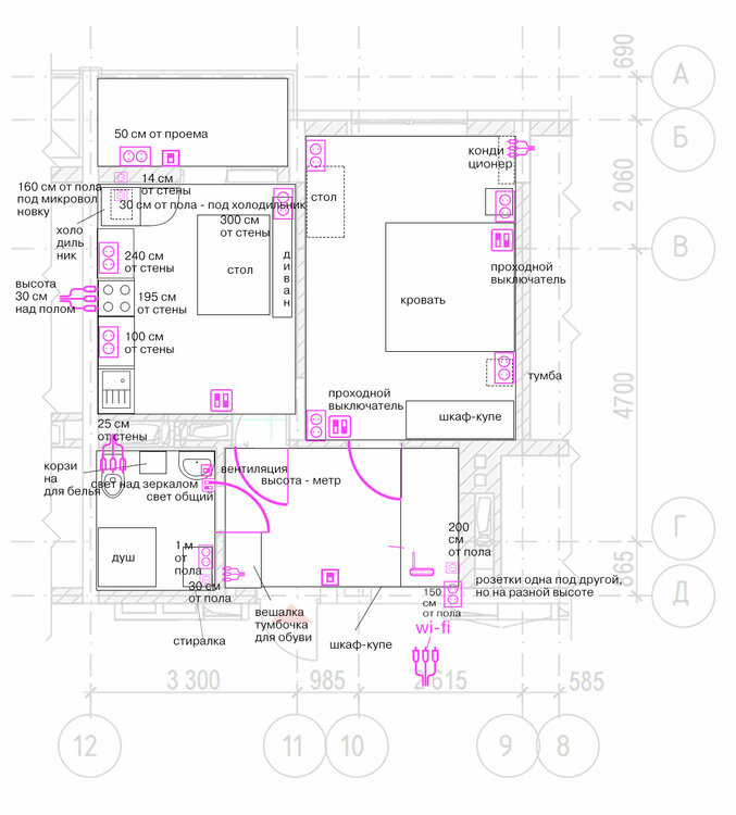
Аня767676 Опубліковано: 4 червня 2016 Автор Поділитись Опубліковано: 4 червня 2016 Дверь наружу из ванной/туалета я понимаю, потому как если плохо станет то дверью некуда будет двигать а эвакуация из квартиры??? логично. а вы советуете в другую сторону двери открывтаь из кухни и спальни? Розетка для фена/бритвы на другой стене это не удобно, поставьте розетки влагозащищенные. отлтичная мысль. У Вас уже в комнату три провода заведено или Вам электрики будут проводить? не заведено в комнату, только до щитка. нарисовала план с размерами розеток, уже завтра думаю отправлять электрикам. бойлер переставила над стиралкой, чтобы никто не ударился об него, вставая с унитаза может, у кого-то есть замечания по расположению выключателей и розеток? красным указано дополнительное освещение, как я показывала выше над умывальником, и над рабочими поверхностями кухни. Спасибо большое за комментарии! Посилання на коментар Поділитися на інших сайтах More sharing options...
mib Опубліковано: 4 червня 2016 Поділитись Опубліковано: 4 червня 2016 это для безопасности....двери должны открываться вовне, чтоб при форс мажоре в приступе паники открыть..понимаю, что критерий сомнительный, но явных причин нарушить не вижу...или я чего-то не замечаю? можно кого то зашибить кто будет проходить мимо в момент открытия дверей например выходя из душа... Вы скорее всего слышали противопожарные правила для входных дверей и применили их для межкомнатных. Но в санузле действительно лучше что бы двери открывались наружу так как помещение повышенной травмо опасности Посилання на коментар Поділитися на інших сайтах More sharing options...
JFK Опубліковано: 4 червня 2016 Поділитись Опубліковано: 4 червня 2016 логично. а вы советуете в другую сторону двери открывтаь из кухни и спальни? А Вам в другую сторону не удобнее? Если проводки в комнату нет, то зачем туда тащить тройной провод, если там можно положить двойной. Что электрики там "землить" собрались? Телевизор? Посилання на коментар Поділитися на інших сайтах More sharing options...
mib Опубліковано: 4 червня 2016 Поділитись Опубліковано: 4 червня 2016 Если проводки в комнату нет, то зачем туда тащить тройной провод, если там можно положить двойной. Что электрики там "землить" собрались? Телевизор? Экономии будет три рубля а что там будет завтра никто не знает так что ВВГ нг 3х2.5 на розетки и 3х1.5 на освещение 1 Посилання на коментар Поділитися на інших сайтах More sharing options...
JFK Опубліковано: 4 червня 2016 Поділитись Опубліковано: 4 червня 2016 Экономии будет три рубля а что там будет завтра никто не знает так что ВВГ нг 3х2.5 на розетки и 3х1.5 на освещение и что же там может быть завтра, просто интересно? 1 Посилання на коментар Поділитися на інших сайтах More sharing options...
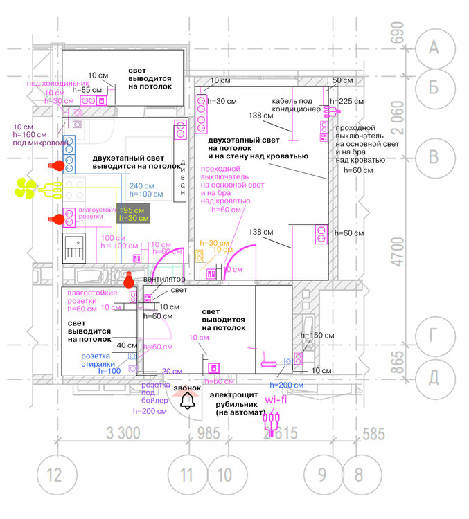
RapidX Опубліковано: 4 червня 2016 Поділитись Опубліковано: 4 червня 2016 Розетки с контуром заземления - все до единой! Легкодоступная розетка для стиральной машины это всмысле вилку можно выдернуть не двигая стиральную машину. Во всяком случае на стиральную машину должен идти отдельный автомат, чтобы можно было ее обесточить. Щит в квартире - сделайте рубильник (именно рубильник, а не автомат), чтобы в случае форс мажора (возгорание, задымление) сразу обесточить всю квартиру. Реле напряжения - обязательно. Кухня - электрочайник, кофеварка, блендер, комбайн, мультиварка, хлебопечь... Перечислять можно долго, подумайте. Варочная поверхность 6600 Ватт это 30А. Это обязательная прокладка кабеля сечением минимум 6 мм2. И спецрозетка или прямое соединение. От провайдера информации никакой не нужно. Он затянет в квартиру кабель (витая пара) и кабель это должен быть там где будет стоять роутер. Возле роутера должны быть кабеля, которые пойдут к компьютерным розеткам в комнаты (если планируете). Если в квартире только ноутбуки, планшеты и смартфоны то решайте сами. Им хватит и wi-fi. Да на этих зеркалах есть маленький выключатель. А можно поставить обыкновенный рядом с розетками и не тянуть руку каждый раз. Добавлено через 9 минут и что же там может быть завтра, просто интересно? Завтра там может быть обыкновенный системный блок стационарного компьютера, в обыкновенном китайском металлическом корпусе, который требует контур заземления. 1 Посилання на коментар Поділитися на інших сайтах More sharing options...
mib Опубліковано: 4 червня 2016 Поділитись Опубліковано: 4 червня 2016 и что же там может быть завтра, просто интересно? один из ответов выше Посилання на коментар Поділитися на інших сайтах More sharing options...
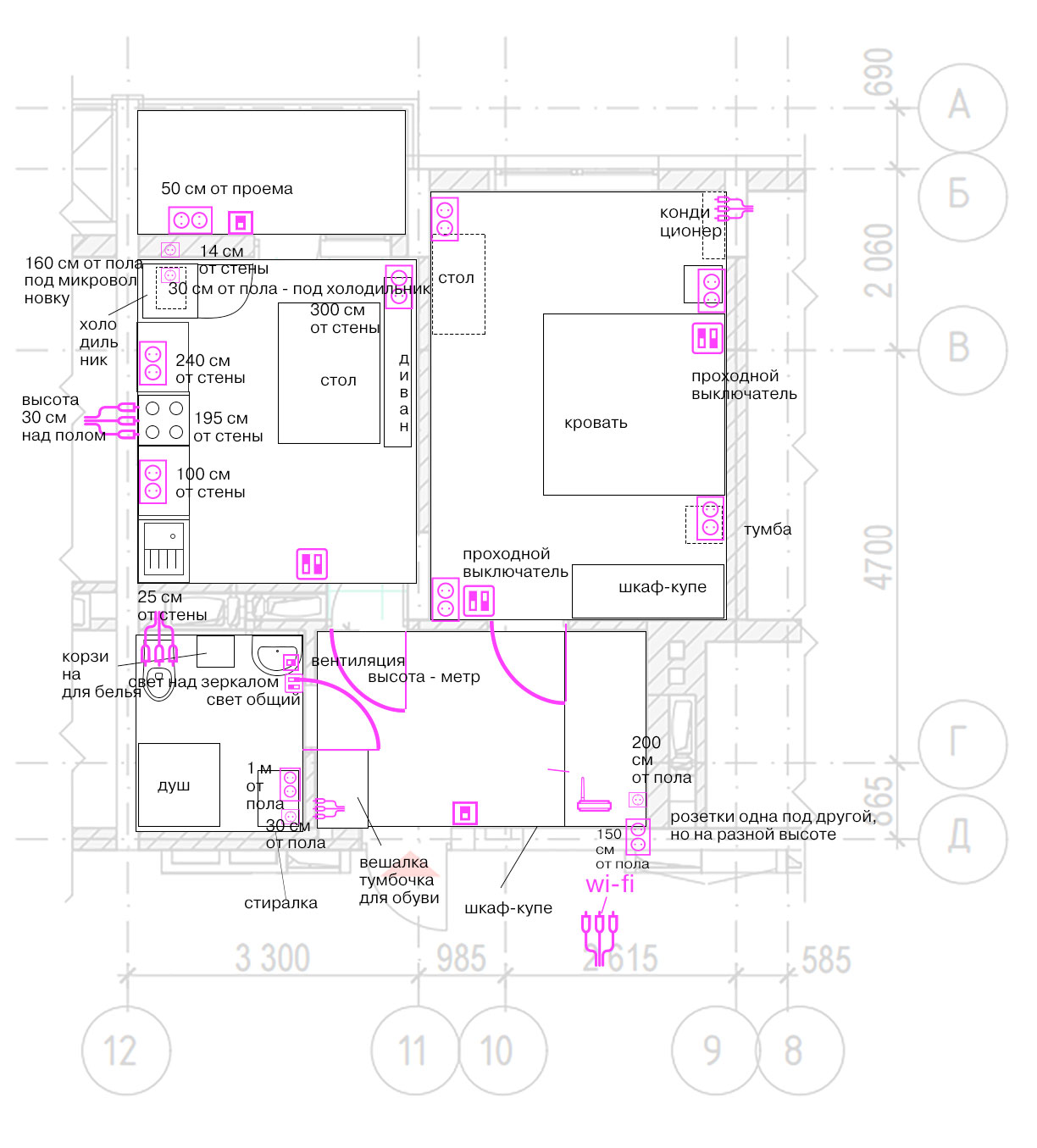
Аня767676 Опубліковано: 5 червня 2016 Автор Поділитись Опубліковано: 5 червня 2016 Передвинула розетку стиральой машинки выше, теперь она метр от пола. В ванной нет стяжки, то е сть пол поднимется, поэтому взяла чуть с запасом....Не уверена, что правильно так, розетка будет над машинкой и к ней будет идти провод по стене.... Для выключателей ставила высоту 60 см, просто померяла, где мне удобно рукой....Так ведь норм? Посилання на коментар Поділитися на інших сайтах More sharing options...
RapidX Опубліковано: 5 червня 2016 Поділитись Опубліковано: 5 червня 2016 Выключатель 60 см от чистого пола? Какой у вас рост? Это очень низко. Мужчине ростом 180 см уже придется наклоняться. В среднем 90-100 см устанавливаются выключатели. Другое дело розетки - тут уж как удобно. Посилання на коментар Поділитися на інших сайтах More sharing options...
Holmes Опубліковано: 5 червня 2016 Поділитись Опубліковано: 5 червня 2016 Двери. У меня двери межкомнатные открываются и внутрь и наружу. пожалуй, этими правилами безопасности можно принебречь, они скорее для офиса. Делай так, как удобней. Автоматы. Послушай как предложат электрики и посоветуйся с нами. Заодно и с толщиной проводов решим. Потому что если на автомате только светодиодное освещение, то зачем тянуть толстый кабель? Будь готова - электрикам за него не платить же, они даже не считают сечение, а заказывают тебе потолще, их нужно проверять. Впрочем, так всегда в стройке. Мастер не считает, в просто закладывает избыточный запас прочности (за твой счёт) Плита. Кабель должен быть толстый, нужно посчитать. Но, пардон, 6 кв. мм для 30 А (с этой цифрой согласен) мне кажется много. Вот таблица расчета, если считать по ней, то вроде 2,5 кв. мм. Так? www.meanders.ru/sechenie.shtml Заземление. Все заземляется, если даже будет в приборе замыкание на корпус, тебя не ударит. Высота выключателей. Я себе загуглить стандартную и делал её. Около 90, точно не помню. Делай стандартную, это удобно. Рубильник не нужен. На ввод ставится тройной автомат это и есть рубильник тебе. О каком реле писали? Есть хорошая тема УЗО, но я себе не ставил. ru.m.wikipedia.org/wiki/%D0%A3%D1%81%D1%82%D1%80%D0%BE%D0%B9%D1%81%D1%82%D0%B2%D0%BE_%D0%B7%D0%B0%D1%89%D0%B8%D1%82%D0%BD%D0%BE%D0%B3%D0%BE_%D0%BE%D1%82%D0%BA%D0%BB%D1%8E%D1%87%D0%B5%D0%BD%D0%B8%D1%8F Кто-то ставил себе? 1 Посилання на коментар Поділитися на інших сайтах More sharing options...
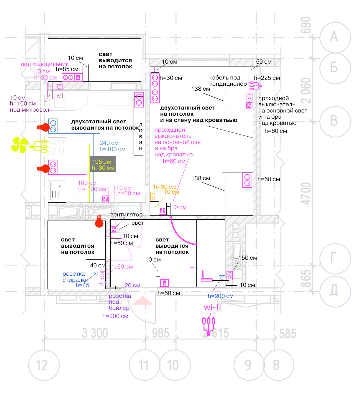
Аня767676 Опубліковано: 5 червня 2016 Автор Поділитись Опубліковано: 5 червня 2016 Выключатель 60 см от чистого пола? Какой у вас рост? Это очень низко. Мужчине ростом 180 см уже придется наклоняться. В среднем 90-100 см устанавливаются выключатели. Другое дело розетки - тут уж как удобно. У меня рост 175 см. Правильно советуете, исправила на 100 см, на баклоне 105, там пол поднимется. Сегодня стартовали работы! Приходил мастер, затянул шнур для интернета. Сперва я хотела ставить роутер в шкаф-купе, но мастер отсоветовал. Сказал, особенно если двери зерклаьные, может непредсказуемо искажаться сигнал. В итоге я решила, что слева от входа у меня будет вешалка для одежды, а наверху полочка, и на этой полочке стоять будет роутер. Мастер завел кабель и оставил несколько метров про запас. Электрики уже проштробят стену и скроют кабель. Договор с провайдером я заключила, но заморозила, когда сделаю ремонт, то активирую его и тогда начну платить Посилання на коментар Поділитися на інших сайтах More sharing options...
Vitaliy67 Опубліковано: 5 червня 2016 Поділитись Опубліковано: 5 червня 2016 Можно я влезу с советом. Отбейте около входной двери так называемую нулевую точку по высоте. Или уровень чистого пола. И все работы делайте от этой точки. От неё будут работать электрики,сантехники, мебельщики. В общем все. Вам так будет спокойнее. 1 Посилання на коментар Поділитися на інших сайтах More sharing options...
Аня767676 Опубліковано: 5 червня 2016 Автор Поділитись Опубліковано: 5 червня 2016 Можно я влезу с советом. Отбейте около входной двери так называемую нулевую точку по высоте. Или уровень чистого пола. И все работы делайте от этой точки. От неё будут работать электрики,сантехники, мебельщики. В общем все. Вам так будет спокойнее. Спасибо за совет! А как это, отбить? Посилання на коментар Поділитися на інших сайтах More sharing options...
Рекомендовані повідомлення
Створіть акаунт або увійдіть у нього для коментування
Ви маєте бути користувачем, щоб залишити коментар
Створити акаунт
Зареєструйтеся для отримання акаунта. Це просто!
Зареєструвати акаунтУвійти
Вже зареєстровані? Увійдіть тут.
Увійти зараз