Перейти до публікації
Пошук в
  • Додатково...
Шукати результати, які містять...
Шукати результати в...

садовий будиночок з пасивним сонячним опаленням (Стіна Тромба)

sergeyslobodyanyuk

Рекомендовані повідомлення

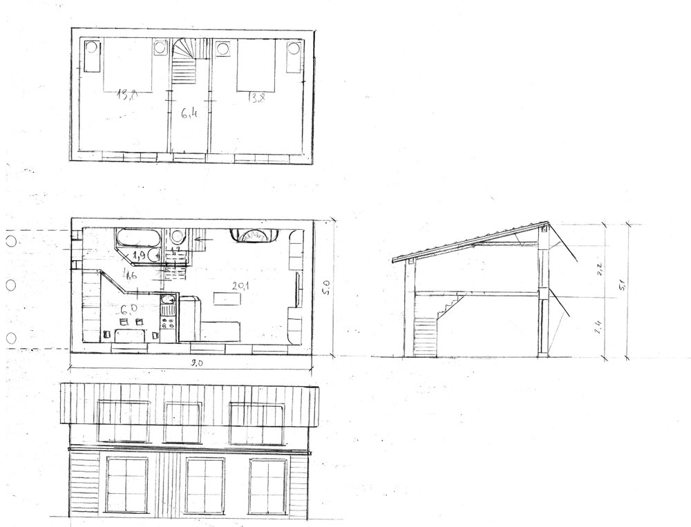
Добрий день вельмишановні форумчани. Набрався сміливості викласти на обговорення свій проект садового(дачного) будиночку з пасивним сонячним опаленням на основі "Стіни Тромба". Планую побудувати одноповерховий будинок з мансардою: Загальна площа 67,8 м.кв. житлова 47,7 м.кв. І поверх Зал-20,7 м.кв., кухня 6,0 м.кв., коридор+ тамбур- 4,6 м.кв. ванна- 1,9 м.кв., туалет-1,2 м.кв.

ІІ поверх (мансардний) 2 спальні ро 13,8 м.кв., коридор-6,4 м.кв.

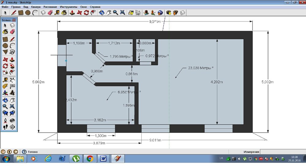
Розміри будинку 5х9. Орієнтація довшої сторони з заходу на схід, на південну сторону будинку винесені всі вікна, вхід з західної сторони. Також з західної сторони планується навіс для машини. Західна, північна, східна сторона без вікон (можливо тільки біля вхідних дверей будуть вузенькі вертикальні вікна або склоблоки для освітлення коридору-тамбуру). Криша односкатна, нижчою стороною на ПН з кутом десь біля 45 гр. З південної сторони плануються сонячно захистні козирьки над вікнами для захисту від "літнього" сонця. Усі стіни з південної сторони планується обладнати як повітряні сонячні колектори за принципом "стіни Тромба". Південна стіна плануєтся будуватись з шлакоблоку (з заповненням пустот) в "кірпіч" тобто близько 40 см., остальні стіни з ракушечника "в пів кірпіча"- близко 25 см. та обкладанням зсередини саманом 15-20 см. Зовнішнє утеплення ЗХ, ПН, СХ стін планується пінопластом 5 см. 30 плотності. Південна стіна та підлога І поверху повинна виконувати функцію теплоакумулятора. Буду надіятись що сонячне "опалення" покриє до 60% потреб на опалення в осіньо-зимовий- весняний період. На всякий випадок планую побудувати камін з повітряними теплопроводами. Хотілось би тепловий насос повітря-повітря (але на сьогоднішній день лише мрія). На цей час залитий лише фундамент (на рівні землі) без цоколя. Цоколь буду зводити весною з гранітного бута.

Не "затюкайте" зовсім сильно, щоб не пропало бажання будувати. Але буду радий почути корисні поради, особливо тих людей що знайомі з будівництвом на власному досвіді- на кшталт "які були зроблені помилки і які б не повторив знову..."

02.thumb.jpg.47f6c2d36e9692711d202057263f4946.jpg

Змінено користувачем sergeyslobodyanyuk
  • Лайк 2
Посилання на коментар
Поділитися на інших сайтах

не знаю характеристики вашего пирога стен в виде шлакоблока и самана, но наверное смотрел бы в сторону 40см ГБ 400 + 15см Минвата.... раз уж слово пасивность употребляется. в виде теплоакумулятора можно подумать например УШП какоенить.

 

ТеплоРасчет.рф/?rid=20161028155051qaAsHjh

 

 

ну и в крышу 40см.

  • Лайк 1
Посилання на коментар
Поділитися на інших сайтах

День добрый.

После строительства ряда частных домов по разным технологиям, остановился на следующей, - деревянный каркас + теплосберегающие панели.

В этом году построили такой дом с четкой ориентацией по сторонам света и с учетом "высоты" солнца в летний и зимний периоды для максимального использования солнечной энергии. Стоимость коробки дома 116 м2 с не требующими отделки внутренними и внешними стенами - 16 к евро.

WP_20161007_15_38_14_Pro.thumb.jpg.5c080de0a4b637b274f03250193614f4.jpg

WP_20161012_15_24_51_Pro.thumb.jpg.f7bcffa26f7591cdeb791d7597bea4c8.jpg

2067910287_5.thumb.jpg.5ab60cb00ecaad3a19d02019d5d3f4f9.jpg

1462557784_1..thumb.jpg.48c37f03c98ed6eb7500870ce7844f3c.jpg

Посилання на коментар
Поділитися на інших сайтах

остановился на следующей, - деревянный каркас + теплосберегающие панели.

 

R какой? по стенам и по кровле.

 

не требующими отделки внутренними и внешними стенами - 16 к евро.

 

не увидел отделку внутреннюю. фото покажите. ;)

  • Лайк 1
Посилання на коментар
Поділитися на інших сайтах

не знаю характеристики вашего пирога стен в виде шлакоблока и самана, но наверное смотрел бы в сторону 40см ГБ 400 + 15см Минвата.... раз уж слово пасивность употребляется. в виде теплоакумулятора можно подумать например УШП какоенить.

 

ТеплоРасчет.рф/?rid=20161028155051qaAsHjh

 

 

ну и в крышу 40см.

 

ГБ я так понимаю газоблок, что обозначает 400 ? что такое УШП ? Пенопласт дешевый утеплитель, если получится купить что нибудь дороже хотелось бы пеностекло на стены а минвату только на потолок... если кто то уже использовал ПС поделитесь магазином и ценой...

На " пасивный дом" сильно и не претендую, хочется использовать халявную энергию солнца, воздушный солнечный коллектор сделать намного проще чем "водяной", а использовать стену как теплоакумулятор считаю гениальной идеей гн. Тромба.

 

Добавлено через 3 минуты

дом с четкой ориентацией по сторонам света и с учетом "высоты" солнца в летний

и зимний периоды для максимального использования солнечной энергии

 

об ЭТОМ пожалуйста поподробнее...

Змінено користувачем sergeyslobodyanyuk
  • Лайк 1
Посилання на коментар
Поділитися на інших сайтах

  • 3 тижні потому...

Ідея використання сонячного обігріву для опалення будинку не нова, так ще в 1985 р в журналі №12 "Наука и жизнь" була опублікована стаття та проект А.Семенова "Солнечный дом. Жилище с солнечным теплоснабжением для центрального района европейской части РСФСР" Цей проект в багатьох деталях нагадує мій, нажаль я знайшов його вже пізніше. Дуже простий та в одночас продуманий :good:

Далі цитую:

А.Семенов "Наука и жизнь" №12 1985 г.

 

В последнее десятилетие резко возрос интерес к использованию солнечной энергии для отопления жилых и общественных зданий. Перспектива обеспечить частичное, а в отдельных случаях и полное теплоснабжение весьма заманчива, и это побуждает к развитию теоретических и экспериментальных работ. Сегодня во многих странах построены сотни опытных зданий различного назначения с солнечным отоплением, серийно выпускаются комплекты бытовых гелиосистем, служащих для обогрева жилища и иных хозяйственных нужд.

В нашей стране в соответствии с долгосрочной энергетической программой предусматривается всемерное использование возобновляющихся источников энергии, в том

числе солнечной. Климатические условия наших южных республик позволяют применять гелиотеплоснабженне на территориях,

расположенных южнее 45—50° с. ш. В этих районах успешно эксплуатируется немалое число гелиоустановок (см., например, № 10,

1982 г.). Однако большая часть территории СССР расположена севернее, где солнечная, радиация не столь интенсивна. Достаточно

ли ее для отопления жилых домов?

Вот цифры, иллюстрирующие возможность использования солнечной энергии в районах Нечерноземья: среднее (за год) значение суммарной солнечной радиации, поступающей в сутки на 20 м2 горизонтальной поверхности, составляет 50—60 кВт • час. Это соответствует затратам энергии на отопление дома площадью 60 м2.

Значительный опыт использования солнечной энергии в умеренных широтах накоплен скандинавскими странами. Разработаны проектные предложения для Аляски и севера Канады. Природно-климатические условия этих регионов сопоставимы с условиями средней полосы РСФСР.

В Московском архитектурном институте в течение ряда лет ведутся разработки но использованию солнечной энергии для отопления зданий. В 1982 году был осуществлен проектный эксперимент, в котором рассматривалась возможность сочетания гелиосистемы с небольшим сезонно обитаемым жилым домом. Эскизный проект такого дома для

Центрального района Европейской части РСФСР представлен на 6—7 стр. цветной вкладки. В проекте не предусматривалась детальная проработка отдельных конструктивных элементов и узлов. Однако некоторые идеи можно осуществить в практическом ЭНЕРГОСБЕРЕГАЮЩИЕ ТЕХНОЛОГИИ строительстве, увязав их с действующими на сегодняшний день нормативами.

Рассмотрим главные особенности проекта, и прежде всего гелиосистемы.

Анализ отечественного и зарубежного опыта проектирования «солнечных» домов показал, что для условий эксплуатации сезонно обитаемого жилища средней полосы наиболее подходящей является воздушная система теплоснабжения. Воздух нагревается в солнечном коллекторе и по воздуховодам подается в помещение. Удобства применения воздушного теплоносителя по сравнению с жидкостным очевидны: нет опасности, что система замерзнет, нет нужды в трубах

и кранах, отсюда простота и дешевизна, возможность изготовления гелиосистемы своими силами. Проигрыш — невысокая теплоемкость воздуха.

В части расположения солнечного коллектора на доме предпочтение отдается вертикальному варианту. Он много проще в строительстве и дальнейшем обслуживании. По сравнению с наклонным коллектором (например, занимающим часть крыши) не требуется уплотнения от воды, отпадает проблема снеговой нагрузки, с вертикальных стекол легко смыть пыль и т. д. Плоский коллектор, помимо прямой солнечной радиации, воспринимает рассеянную и отраженную радиацию — в пасмурную погоду, при легкой облачности, словом, в тех условиях,

какие мы реально имеем в средней полосе. Он не создает высокопотенциальной теплоты, как концентрирующий коллектор, но для конвекционного отопления этого и не требуется, здесь достаточно иметь низкопотенциальную теплоту. По проекту солнечный коллектор располагается на фасаде, ориентированном на юг (допустимо отклонение до 30° на восток или на запад). Его площадь составляет 21 квадратный метр.

Конструктивно коллектор представляет собой ряд застекленных вертикальных коробов, внутренняя поверхность которых зачернена матовой краской, не дающей запаха при нагреве. Ширина короба около 60 см (определяется шириной стекла, чтобы его не нужно было резать), высота 10—12 см. Вертикальные перегородки между коробами

изготовляются из деревянного бруска, набитого на стену дома. Остекление выполняется обычным образом, в верхней горячей

части коллектора для уменьшения теплопотерь ставятся двойные стекла. Воздуховоды изготавливаются из досок, фанеры или оргалита (металл и пластмасса нежелательны).

Неравномерность солнечной радиации в течение дня, а также желание обогревать (См. 6—7 стр. цветн. вкладки) дом ночью и в пасмурный день диктует необходимость устройства теплового аккумулятора. Днем оп накапливает тепловую энергию, а ночью отдает. Для работы с воздушным коллектором наиболее рациональным считается гравийно-галечный аккумулятор. Он дешев, прост в строительстве. Гравийную засыпку можно разместить в теплоизолированной заглубленной цокольной части дома. Теплый воздух нагнетается в аккумулятор с помощью маломощного оконного вентилятора. Для дома, показанного на проекте, объем засыпки составляет от 3 до 6 м3. Разброс определяется качеством исполнения элементов гелиосистемы, теплоизоляцией, а также режимом солнечной радиации в каждой конкретной местности.

Система солнечного теплоснабжения дома работает в трех режимах: отопление от коллектора, аккумулирование тепловой энергии

и отопление от аккумулятора.

В холодные солнечные дни нагретый в коллекторе воздух поднимается и через отверстия у потолка поступает в помещения. Циркуляция воздуха идет за счет естественной конвекции. В ясные теплые дни горячий воздух забирается из верхней зоны

коллектора и с помощью вентилятора прокачивается через гравий, заряжая тепловой аккумулятор. Для ночного отопления и на

случай пасмурной погоды воздух из помещения прогоняется через аккумулятор и возвращается в комнаты подогретый. Бак горячей воды, расположенный в остекленном теплоизолированном отсеке теплицы над

душевой, нагревается непосредственно солнечными лучами.

Понятно, что в средней полосе гелиосистема лишь частично обеспечивает потребности отопления. Расчеты показывают, что

сезонная экономия топлива за счет комплексного использования солнечной энергии может достигать 50%.

Теперь о самом доме. Он одноэтажный, с мансардой, имеет плоскую односкатную крышу. Дом сблокирован с теплицей и навесом для автомашины. Блокировка выгодна тем, что за счет дорожек экономится и без того небольшая площадь участка (плюс труд и материалы на их устройство), сокращается хождение — из дома попадаешь сразу в теплицу, общая стена дома и теплицы уменьшает теплопотери.

В дождливый день под навесом для автомашины, как на открытой террасе, могут играть дети, в прохладную ветреную погоду

можно перейти в теплицу, где оборудуется небольшой зеленый уголок для отдыха. Навес дополнительно защищает северную стену дома от ветра и переохлаждения.

Крыша дома выбрана односкатной не случайно. В доме с вертикальным солнечным коллектором нужно, чтобы южный фасад имел наибольшую площадь. Тогда на нем можно разместить коллектор и благоприятно ориентировать окна в комнатах —

для средней полосы на юг и на восток. Плоская крыша со скатом на север отвечает этим требованиям. Она также предохраняет стены от продувания ветрами северного направления, создает благоприятную для работы коллектора ветровую тень на южном фасаде. Односкатная крыша максимально проста конструктивно, дешева, дает возможность иметь удобное мансардное помещение с хорошим использованием его объема.

Дом имеет два входа — с улицы и из теплицы. Из входной двери вы попадаете в прихожую, в ней размещен стенной шкаф и небольшая кладовка. Из прихожей вход в гостиную, в кухню и на второй этаж. Гостиная отделена легкой складывающейся перегородкой от столовой — при желании их можно объединить в одно помещение. В кухне устанавливается все необходимое оборудование — плита, мойка, холодильник, рабочий стол. Из кухни есть дверь в столовую.

На втором этаже помещаются две спальни и два стенных шкафа. В подвале находятся тепловой аккумулятор и предусмотрено место для котельной на твердом топливе, питающей горячей водой батареи центрального отопления.

Теплица включает в себя не только земельную площадь для растений, но и некоторые хозяйственные элементы — некий прообраз традиционного для деревни крытого двора, только с застекленной крышей. Северная сторона защищена хозблоком, состоящим из летней кухни, душевой, туалета и кладовой. Стеклянные стены и крышу

теплицы желательно дополнить с внутренней стороны полиэтиленовой пленкой с воздушной прослойкой в 10 см. Такой прием

в 2 раза сокращает теплопотери, не дает образовываться конденсату и практически не ослабляет солнечную радиацию.

Особенностью проекта является возможность многоцелевого использования помещений. Под навесом для автомашины оборудуется открытая мастерская для ремонта садового инвентаря, плотницких и других хозяйственных работ, зимняя кухня летом становится жилой комнатой, теплица одновременно выполняет функции террасы. Небольшие изменения в планировке дома и размещении гелиосистемы позволяют приспособить жилище к особенностям местности.

1472537119_2-.thumb.jpg.30f5c880e8e3fb4b18fd9ce9e90cdccf.jpg

696319532_-.jpg.5d18861d462fce35828906b4dc478a20.jpg

11840019_-(2).thumb.jpg.d00e89d77ab80df1d0ebf2527446e3f1.jpg

1618798182_-(4).jpg.d78f0b218c6362483240ed3499eb8351.jpg

1968038164_-(3).thumb.jpg.e1f8e0d3b0a77005c99eea42780853e7.jpg

477398055_-(5).thumb.jpg.fcb85e5edc1de7cb3b5a4a16870cb2b6.jpg

1835525692_-(2)-.thumb.jpg.55384419047362d0e1f2008924810624.jpg

1943616287_-(2)--.thumb.jpg.7821bc384f4c2425c8315feaafac62d7.jpg

752896108_2-(2).thumb.jpg.07848bc011560f058440bda9d7b7b211.jpg

11143300_1.thumb.jpg.052f2c7ffe635816ddf85a5e9ce5c731.jpg

1794578940_2.thumb.jpg.24dead3a30e27b03a2c2a49fd05fcd6a.jpg

  • Лайк 4
Посилання на коментар
Поділитися на інших сайтах

література по темі: "Солнечный дом. Естественное освещение в планировке и строительстве Автор: Йожеф Косо" (нажаль PDF файл не прикріплюється)

koso-solnechnyj-dom.jpg.49761cf37e4cd38adf3638fa6ebe4428.jpg

Посилання на коментар
Поділитися на інших сайтах

За допомогою проги google SketchUp спробував візуалізувати свій майбутній "сонячний будиночок", не судіть дуже строго, я не архітектор, а тільки учусь...:flag1:

836292683_.thumb.jpg.a8d2549e7561c705292db2da45049b45.jpg

1258534341_.thumb.jpg.ba39e7daaf2124cb9f7534a24da193b2.jpg

585047215_.thumb.jpg.d494d87f8d3e02dbbc6e520f81a3b367.jpg

1316570070_.thumb.jpg.f6f0d9f6d0b735218768898032a16aa9.jpg

1949671296_.thumb.jpg.cf7968708b51600cf285be1b9063d078.jpg

1945193972_.thumb.jpg.08112369de8db8e0105cab6ebbd87ebc.jpg

  • Лайк 1
Посилання на коментар
Поділитися на інших сайтах

план 1-го та 2-го(мансардного) поверхів, вид зверху:

1463164789_1.thumb.jpg.cf91919516207f198f77fd7eafb3a04d.jpg

679245935_2.thumb.jpg.370cfead371b73ba48f483fae931db83.jpg

  • Лайк 1
Посилання на коментар
Поділитися на інших сайтах

Географічні координати Запоріжжя Запоріжжя (Україна) Координати: Широта: 47 ° 49 'північної широти Довгота: 35 ° 10' східної довготи

Середній місячний рівень сонячної радіації (сонячна постійна) в містах України (кВтг / m2 / день)

Середній показник за останні 22 роки (За даними NASA) Запоріжжя

Січ Лют Бер Кві Тра Чер Лип Сер Вер Жов Лис Гру Сер.

1,21 2,00 2,91 4,20 5,62 5,72 5,88 5,18 3,87 2,44 1,25 0,95 3,44

 

Найменший кут сонця (день зимового рівнодення) 22.12.

Висота над горизонтом (градуси):= 16°

кут сонячного колектору (90° до променів сонця) 74°

 

Найбільший кут сонця (день літнього рівнодення) 22.06.

Висота над горизонтом (градуси):= 58°

кут сонячного колектору (90° до променів сонця) 32°

 

Кут сонця (день весняного/осіннього рівнодення)21.03./23.09

Висота над горизонтом (градуси):= 38°

кут сонячного колектору (90° до променів сонця) 52°

  • Лайк 1
Посилання на коментар
Поділитися на інших сайтах

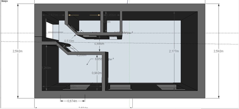
І поверх в ізометричному вигляді: отвори для вхідних дверей, для вікон (3 вікна на схід 1,3 х 1,6),висота вікон від підлоги 0,7 м., також в внутрішніх стінах кухні та ванної заплановані проєми для горизонтальних вузеньких вікон під стелею- для природного освітлення коридору та ванни . На ІІ поверх (мансардний) сходи запроектовані з ЗАЛу над туалетом, думаю полога стеля в туалеті не буде заважати облаштуванню "трону".... Зал та кухня примикають до східної "теплої стіни". Тамбур, ванна та туалет служать буфером від північної холодної стіни. На північній стіні зали планується побудувати камін.

1096846021_1.thumb.png.8c07b22738271483d8961e24e450b89e.png

2006924219_1.thumb.jpg.3fa9d0357e130ea1828beb9f20b35fc2.jpg

1382024784_1.thumb.jpg.dbfa84c45e44b7331680b822e4132819.jpg

1526487987_1.thumb.jpg.1f8b0a58c0aab971ffe97367c6411963.jpg

983430969_1.thumb.jpg.312a68a975ab0c1065334ead4cc001e2.jpg

322862301_.thumb.jpg.517b586ecf3e571d3dac4013a9328c4c.jpg

Змінено користувачем sergeyslobodyanyuk
  • Лайк 1
Посилання на коментар
Поділитися на інших сайтах

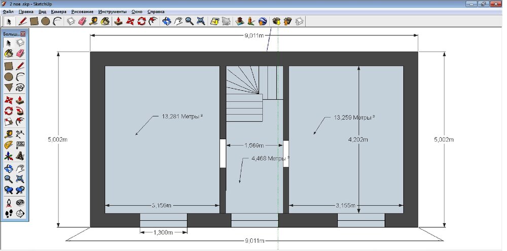
ІІ-й поверх (мансардний) в ізометричному вигляді: 2 спальні з східними вікнами від полу до стелі шириною 1,3 м. Висота стелі 2,2 м., зменшується до північної стіни до 1 м. В коридорі з півночі сходи, 2 дверей 80х180, частина коридору від східної стіни без полу- буде виконувати функцію атриуму "другого світла" для кращої циркуляції теплого повітря по будинку (над ним планується настельний вентилятор)...

1541312264_2.thumb.jpg.bf5657cbea206e487cc065513f541804.jpg

61581281_2.thumb.jpg.49fd37df0470ebd2105928f56c4ccccf.jpg

192662594_2.thumb.jpg.aa26a0d413ac9b2b005e9e9e4e9d6fc6.jpg

1053413917_2.thumb.jpg.d3bc75c581a4253de1a76b878476fa37.jpg

1543431195_.thumb.jpg.69e38818c30df097b23e3345086ce787.jpg

Змінено користувачем sergeyslobodyanyuk
Посилання на коментар
Поділитися на інших сайтах

ІІ-й поверх (мансардний) в ізометричному вигляді: 2 спальні з східними вікнами від полу до стелі шириною 1,3 м. Висота стелі 2,2 м., зменшується до північної стіни до 1 м. В коридорі з півночі сходи, 2 дверей 80х180, частина коридору від східної стіни без полу- буде виконувати функцію атриуму "другого світла" для кращої циркуляції теплого повітря по будинку (над ним планується настельний вентилятор)...

для вікон (3 вікна на схід 1,3 х 1,6)

 

примикають до східної "теплої стіни"

 

2 спальні з східними вікнами

 

частина коридору від східної стіни

Мається на увазі південна (южная) стіна, пробачте за розсіянність...думаю про одне... пишу інше. (не знаю як відредактувати)

Посилання на коментар
Поділитися на інших сайтах

  • 3 тижні потому...
Практично доведено, що кількість сонячної радіації, що приходить на вертикальну поверхню, орієнтовану на південь взимку, ранньою весною і пізньою осінню , незрівнянно більше, ніж на горизонтальну, а влітку трохи менше кількості сонячної радіації, що приходить на вертикальні поверхні орієнтовані на схід і на захід energy2020.ru/energy_russia/about/news/news5637.php

8e5faa0a0eaf7c2ccbba9a52a1465fbf.jpg.753c9ffc07961ad917b226049c07e16e.jpg

912138dda35e1e1bce6a50165bd37a7a.jpg.b4ebfd823c19c1636dcd676302d250a9.jpg

Typ_3_Schnitt.thumb.jpg.9e55b043b6727928ba86a70148632eca.jpg

  • Лайк 2
Посилання на коментар
Поділитися на інших сайтах

За допомогою онлай калькулятора розрахунку сонячної інсоляціїї solar-house.ucoz.com/index/raschet_on_line/0-18 зробив розрахунки для свого сонячного колектору площею 35 м.кв. в м.Запоріжжя орієнтованого на південь з вертикальним кутом (90*), а також для кута 32* (90* до кута сонця влітку), 52* (90* до кута сонця весною та осінню), та 74* (90* до кута сонця взимку)

кВт

январь февраль март апрель май июнь июль август сентябрь октябрь ноябрь декабрь

0

32 22,31 27,51 33,26 34,54 35,36 34,47 34,38 33,46 33,42 29,47 26,15 21,41

52 26,05 30,42 33,71 33,83 33,46 31,8 32,04 32,58 33,94 31,59 29,75 25,41

74 27,05 30,25 30,54 29,54 27,68 25,31 25,92 28,07 30,52 29,21 29,71 26,73

90 25,56 27,79 26,11 24,49 21,32 18,37 19,32 22,8 25,65 26,11 26,96 25,48

СИ Исходные данные - Результаты расчёта (90).pdf

СИ Исходные данные - Результаты расчёта (74).pdf

СИ Исходные данные - Результаты расчёта (52).pdf

СИ Исходные данные - Результаты расчёта (32).pdf

IU_Rezultaty_rascheta.thumb.jpg.1c96d425c718af4ed5b2d06393fe88cc.jpg

962094008_.jpg.775f4b40de7cf004c08f19b66819eadb.jpg

  • Лайк 2
Посилання на коментар
Поділитися на інших сайтах

За результатами розрахунків зробив висновок, що сонячний коллектор для зимового використання краще облаштувати під кутом 74° (90° до кута соня в весняний та осінній період), таким чином не буде надлишку сонячної радіації влітку, по максимуму сонячний колектор буде "працювати" в березні, квітні, вересні, листопаді, також досить добре буде корисна дія в грудні, січні лютому....

Накреслив декілька варіантів похилого сонячного коллектору, прибудованого до південної стіни (яка служить теплоаккумулятором) на малюнках кут десь біля 80°, виходить пристроєна оранжерея, також збільшуються площа сонячного колектору .

1. засклено тільки "глухі стіни" південної стіни, проєми між вікнами відкриті- перевага в тому що можливо будуть затінені вікна від ранкового та західного сонця влітку...

2. засклено повністю вся південна стіна та бокові трикутники "теплиці", найбільша площа сонячного колектору...

3. засклена повністю вся південна стіна за винятком проємів перед вікнами на 2-му поверсі , площа сонячного колектору трохи менша, але зовнішній вигляд будинку мені подобається найбільше...

1948512643_.thumb.jpg.008a1dfc6a8752239b2375ecdd2efe20.jpg

1874627580_.thumb.jpg.786bee4f930171e65d1d56fade0fb950.jpg

1248138399_.thumb.jpg.6e2e6a006ced1ea11a96db5784df575e.jpg

623694706_.thumb.jpg.2af7b3b8cf43bfa8fcb3448d05a367db.jpg

837092550_2.thumb.jpg.f14f4dfa17d04560943c724462c17c52.jpg

1103557864_.thumb.jpg.f092ad034fcdaaa3a0e6fd2c65c45754.jpg

192264345_2.thumb.jpg.b77d885ea115ac87a16b734d7aca0408.jpg

Змінено користувачем sergeyslobodyanyuk
орфографія...
  • Лайк 1
Посилання на коментар
Поділитися на інших сайтах

Проста ідея обігріву будівлі, була запропонована і запатентована Едвартом Морзе, ще в далекому 1881 році. Повністю реалізована французьким інженером Феліксом Тромбе в 1960 році. Сенс у використанні сонячної енергії, точніше ультрафіолетового випромінювання видимого спектру. Зовні стіни, товщиною у пів цегли, на відстані від 100 мм встановлюється багатокамерний склопакет, через який безперешкодно проходить ультрафіолетове випромінювання з короткою довжиною хвилі. Випромінювання поглинається цегляною стіною, а випромінюється нею у вигляді довгохвильового інфрачервоного випромінювання, такі хвилі не проходять склопакет, в результаті все тепло потрапляє всередину будівлі. Таку конструкцію стіни необхідно розміщувати з сонячної сторони, стіну фарбують в темний колір для кращого поглинання ультрафіолету. Протягом дня стіна нагрівається, а вночі віддає тепло в приміщення.

m9f49c1e.thumb.png.2513c435e9cc3faeff3fcddeea3ecf7d.png

Trombe.jpeg.ce9d4f36ea266e5b57f19ee05bd1fcc0.jpeg

stena_tromba3.jpg.f28962bbbd14f9ac74cf1410fa9727a2.jpg

  • Лайк 2
Посилання на коментар
Поділитися на інших сайтах

Стіни Тромба - система отримання тепла від непрямого нагріву поверхні сонячними променями. Умовно, позитивний ефект нагрівання досягається комбінуванням властивостей теплопровідності скла і поглинання його термальною масою. Як правило, стіна Тромба є, заскленою поверхнею фасаду будинку, забарвлену в темний колір, здатної поглинати якомога більше тепла і утримувати його в собі. За рахунок певної відстані між стіною (термальною масою) і склом, виникає повітряна пастка, що уловлює сонячну радіацію. Причому відстань від скла до стіни може варіюватися від декількох сантиметрів до декількох метрів, представляючи собою оранжереї, тераси, теплиці, прилеглі до будинку. Прогрів стіни товщиною в 40 см займає близько 8-10 годин, це означає, що тепло буде передаватися в приміщення, коли це більш необхідні всього, в кінці світлового дня.mydome.in.ua/tromb-wall

Класичну схему Тромба можна доповнити вентиляційними отворами в нижній і верхній частині стіни. Це дозволить контролювати переміщення теплого повітря від нагрітої стіни, використовуючи природну конвекцію. Перекривши верхні отвори, можна запобігти зворотний відтік тепла вночі.

Вентильована і не вентильована стіна Тромба і Мішеля:

Вентилювання стін ймовірно розвинулося від Фелікса Тромба, який використав вентиляційні труби в його першій стіні, яка потребувала вентиляційних труб, бо була надто товста (0,6 м.) для того, щоб тепло передавалося через неї безпосередньо.

Деякі дослідники вважають, що колись популярні, вентильовані стіни Тромба показали свою неефективність. Сучасні варіанти стін Тромба (після 1990 року) зазвичай не вентильовані.

Вентиляційні труби не тільки працюють погано, але вони мають тенденцію забиватися пилом, комахами та іншими небажаними об'єктами.

Залежність ідеальної товщини стіни (по ККД ) до гранично досяжної сонячної складової опалення%, для бетону - товщина буде 1 фут (30 см) 70% частка Сонця в опаленні максимальна.

41-676x518.jpg.c24af575d4057dc92f14dcc89ec1bb76.jpg

21-676x527.jpg.b3ad7095ef778a37a3296bf472ec7b3d.jpg

1208953549_12(1).jpg.2d2695f825525ed1bda13c939f6e4272.jpg

Змінено користувачем sergeyslobodyanyuk
правка.... правки
Посилання на коментар
Поділитися на інших сайтах

Режими роботи пасивної системи сонячного теплопостачання з використанням стіни Тромба

Зимовий період (опалення)

1. Сонячний день штора піднята, клапани відкриті, фото (а-днем). Нагрівається стіна Тромба через скляну перегородку і нагріває повітря, що знаходиться в прошарку між скляною перегородкою і стіною.

Теплота надходить в приміщення від нагрітої стіни і нагрітого в прошарку повітря, циркулюючого через прошарок і приміщення під впливом гравітаційних сил, викликаних різницею щільності повітря при різних температурах (природна циркуляція).

2. Ніч, вечір або похмурий день. Штора опущена, клапани закриті, фото (б- вечером, ночью и пасмурным днем).

Тепловідтоки в зовнішнє середовище значно скорочуються. Температура в приміщенні підтримується за рахунок надходження теплоти від масивної стіни, що накопичила цю теплоту від сонячного випромінювання.

 

Літній період (охолодження)

1. Сонячний день- штора опущена, нижні клапани відкриті, верхні - закриті, фото (в-днем). штора оберігає нагрів масивної стіни від сонячного випромінювання. Зовнішнє повітря надходить в приміщення з затіненого боку будинку і виходить через прошарок між скляною перегородкою і стіною в навколишнє середовище.

2. Ніч, вечір або похмурий день. Штора піднята, нижні клапани відкриті, верхні - закриті, фото (г-вечером, ночью и пасмурным днем). Зовнішнє повітря надходить в приміщення з протилежного боку будинку і виходить в навколишнє середовище через прошарок між скляною перегородкою і масивною стіною. Стіна охолоджується в результаті конвективного теплообміну з повітрям, що проходить через прошарок, і за рахунок відтоку теплоти випромінюванням в навколишнє середовище. Охолоджена стіна в денний час підтримує необхідний температурний режим в приміщенні.

Малюнок. Схеми роботи удосконаленої пасивної сонячної системи теплопостачання: а, б - взимку; в, г - влітку; 1 - штора; 2 - верхній клапан; 3 - скляна перегородка; 4 - прошарок; 5 - масивна стіна; 6 - нижній клапан

fondrst.ru/content/CGDJ/%D0%A1%D1%82%D0%B5%D0%BD%D0%B0_%D0%A2%D1%80%D0%BE%D0%BC%D0%B1%D0%B0_-_%D1%87%D1%82%D0%BE_%D1%8D%D1%82%D0%BE_

1887272705_.jpg.529e1bb24235c5a9143c8e024c205b6c.jpg

448423785_.jpg.49c4ca38a717421d9458ae02c603ca9e.jpg

1102486992_).jpg.5de5663b5a3f30d4e4c448aea0e2614c.jpg

690804089_.jpg.52f4cd6f560aaba75d5ceb2995587aa8.jpg

Змінено користувачем sergeyslobodyanyuk
редактування
Посилання на коментар
Поділитися на інших сайтах

у вас получается "стена тромба" будет на растоянии 4м от остекления?

якщо зробити кут нахилу 74° то найбільша відстань на рівні землі до стіни буде 1,4 м.

1728843215_.thumb.jpg.e721da2f03687f41d4627b83dbf706f3.jpg

Посилання на коментар
Поділитися на інших сайтах

У порівнянні з системою без циркуляції теплоносія система Тромбу-Мішеля має істотні переваги: Внутрішній повітря прогрівається більш рівномірно і нагрів його починається вже в ранні ранкові години. Представляється можливим забезпечити циркуляцію внутрішнього повітря в приміщеннях, безпосередньо не примикають до геліонагрівача.

Схема будівлі із закритою системою Тромбу-Мішеля з теплополинаючим екраном; 1 - скління; 2 - стіна будівлі; 3 - циркуляційні канали; 4 - тепло - приймальний екран.

image122.jpg.f725f6c15f37efbb7dda9a5ba7625ae7.jpg

Посилання на коментар
Поділитися на інших сайтах

Схема системи сонячного опалення з одним демпфером.

У запропонованій системі присутній лише нижній демпфер, що запобігає зворотний потік холодного повітря в нічний час. Необхідності в установці верхнього демпфера немає. Для підвищення ефективності системи сонячного опалення можна змонтувати вентилятор і термостат.

Дана система була запропонована Д.Делані в 2005 році. www.mensh.ru/shema-sistemy-solnechogo-otopleni .. Схема системи сонячного опалення: 1 - абсорбер (вертикальні жалюзі); 2 - демпфер (заслінка з пластикової плівки); 3 - гальковий теплоаккумулятор (я думаю також можна застосувавати бетонну стіну).

cllctr-beside-str-1.gif.01e541f3a21f6fa0425024842cf2694f.gif

Посилання на коментар
Поділитися на інших сайтах

Створіть акаунт або увійдіть у нього для коментування

Ви маєте бути користувачем, щоб залишити коментар

Створити акаунт

Зареєструйтеся для отримання акаунта. Це просто!

Зареєструвати акаунт

Увійти

Вже зареєстровані? Увійдіть тут.

Увійти зараз
×
×
  • Створити...