Alex_san Опубліковано: 27 вересня 2017 Автор Поділитись Опубліковано: 27 вересня 2017 Замечаю, что пишу в теме все реже. Это потому, что самые зрелищные работы по постройке дома завершены и сейчас на стройке обычная рутина (а мне хочется радовать читателя чем-то эдаким ) За прошедшие два месяца мы завершили работы по внутренней отделке стен (в проходных помещениях под покраску, в спальных - под обои (нашему человеку с обоюшками уютней и теплее)). Сознательно отказался от сравнительно быстрой машинной штукатурки по двум причинам: 1. Психологически тяжело осознавать то, что у тебя на стенах лежит 1-2-3 сантиметра гипса. 2. Отштукатуренные таким толстым слоем стены из ППС могут сохнуть 2-3-4 месяца в летний период, т.е. был риск возникновения грибка. В итоге черновой слой штукатурки (Knauf HP Start) составил до 7мм (на стенах из ППС этот слой высыхал почти месяц), чистовой: до 3 мм (Knauf HP Finish (под обои), Satengips (под покраску, потолок)). перед чистовой отделкой был смонтирован от отшпатлеван потолок (из стенового гипсокартона, благо все условия позволяли сделать это) под покраску. Выглядит всё это примерно так: [/url] К сожалению, на собственном опыте довелось проверить правдивость аксиомы "родственников и друзей на работу не нанимать". Несмотря на то, что я, вообщем-то, неконфликтный человек, старающийся всегда находить общий язык с людьми, с приглашённым на гипсокартонные и отделочные работы свояком его, увы, найти не удалось. Поначалу пришлось терпеть его выпады в мою сторону при малейшей просьбе с моей стороны (как-то "давай в этой комнате на чистовую под покраску, а не под обои, пока ещё не поздно", или "этот провод из потолка, пожалуйста, отодвинь на 60 см от стены"). Затем пошли беспричинные претензии, а потом и вовсе, - скандалы. Это шокировало меня, ведь этого человека я знал, как порядочного. В итоге все закончилось объяснением ему его же места на стройке и обещанием выгнать его к такой-то матери при малейшем конфликте. Сейчас доделывает мелочи и, хвала Аллаху, наконец-то уматывает со стройки. К сожалению, работы по укладке плитки не удалось начать тогда, когда задумывал. По независящим от него обстоятельствам плиточник, с которым был уговор, не смог начать работу и мне пришлось искать другого мастера. В минувший четверг он приступил к укладке плитки: А мы с отцом в это время закончили с обустройством правильного заземления, прокладкой проводки в хоз. помещения и переключением ввода в дом с времянки на вводной автомат. Заземление выглядит так: В землю забита труба (внешний диаметр 21мм, толщина 3,2мм) длиной 3,5м в количестве 3шт. К ней приварена квадратная арматура 16мм (видно на фото). Всё это безобразие между собой сварено такой же 16мм арматурой. Думаю, лет на двадцать хватит 4 Посилання на коментар Поділитися на інших сайтах More sharing options...
Gitan Опубліковано: 27 вересня 2017 Поділитись Опубліковано: 27 вересня 2017 Думаю, лет на двадцать хватит А потом что? Посилання на коментар Поділитися на інших сайтах More sharing options...
Alex_san Опубліковано: 27 вересня 2017 Автор Поділитись Опубліковано: 27 вересня 2017 А потом что? А потом, если сгниёт труба, - придется забить новую, потратив день на обустройство новой системы заземления. Хотя, советская стальная труба с толщиной стенки 3,2мм сгниёт не скоро. Посилання на коментар Поділитися на інших сайтах More sharing options...
StNick Опубліковано: 27 вересня 2017 Поділитись Опубліковано: 27 вересня 2017 какое сопротивление вышло? Посилання на коментар Поділитися на інших сайтах More sharing options...
Alex_san Опубліковано: 27 вересня 2017 Автор Поділитись Опубліковано: 27 вересня 2017 какое сопротивление вышло? Менее 2 Ом. Проводник 16mm2, медь. Схема заземления - ТТ (хотелось получить независимость от возможных повреждений линии питания в плане безопасности). Вводное УЗО на дом 300мА, остальные - 30мА. Посилання на коментар Поділитися на інших сайтах More sharing options...
klakson Опубліковано: 27 вересня 2017 Поділитись Опубліковано: 27 вересня 2017 Добрый день Очень нравится Ваш проект - но пытаюсь скорректировать как бы под свои потребности. Сейчас,когда комнаты и коридоры обрели свои размеры и обьемы , не хотелось бы что-то исправить ? Посилання на коментар Поділитися на інших сайтах More sharing options...
Alex_san Опубліковано: 27 вересня 2017 Автор Поділитись Опубліковано: 27 вересня 2017 Добрый день Очень нравится Ваш проект - но пытаюсь скорректировать как бы под свои потребности. Сейчас,когда комнаты и коридоры обрели свои размеры и обьемы , не хотелось бы что-то исправить ? Добрый вечер. Откровенно говоря, каждый новый человек, заходящий в дом и осмысливающий суть моей концепции, предлагал различные варианты улучшения его под себя. Кому-то мешал тамбур, - предлагалось его упразднить, создав огромное пространство, кому-то хотелось его просто уменьшить, а кому-то - застеклить террасу, сделав из неё веранду. И лишь мне, да бригадиру, построившему этот дом, все казалось на своих местах, - менять ничего не хотелось. Расположение по сторонам света для меня идеально. Осмысливая всю концепцию внутреннего пространства минимум раз в неделю, понимаю, что ни дать, ни взять, - меня и членов моей семьи устраивает все. Возможно, Вы бы выразили свои пожелания относительно моего проекта, а я бы попробовал пояснить, стоит ли совершать ту, или иную переделку. 3 Посилання на коментар Поділитися на інших сайтах More sharing options...
klakson Опубліковано: 28 вересня 2017 Поділитись Опубліковано: 28 вересня 2017 Возможно, Вы бы выразили свои пожелания относительно моего проекта, а я бы попробовал пояснить, стоит ли совершать ту, или иную переделку.добрый день не было времени разбираться с программой - поэтому своими силами на скорую руку приблизительно показал переделки во первых -жене необходима кладовка, попытался перенести входную группу. во вторых - ликвидировал комнату отдыха 1+2 , уменьшил проходной коридор и за счет этого немного увеличил детские спальни и санузел. выделил место под камин в гостинной и для барбекю на террасе хозяйская спальня с санузлом и гардеробной идеальнейшая !! - отличное решение Посилання на коментар Поділитися на інших сайтах More sharing options...
vadimv Опубліковано: 28 вересня 2017 Поділитись Опубліковано: 28 вересня 2017 во первых -жене необходима кладовка, попытался перенести входную группу. во вторых - ликвидировал комнату отдыха 1+2 , уменьшил проходной коридор и за счет этого немного увеличил детские спальни и санузел. выделил место под камин в гостинной и для барбекю на террасеГде-то я уже видел что-то похожее. Посилання на коментар Поділитися на інших сайтах More sharing options...
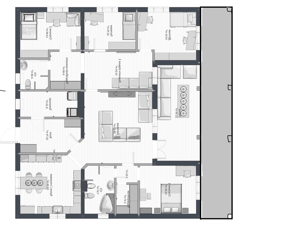
Alex_san Опубліковано: 30 вересня 2017 Автор Поділитись Опубліковано: 30 вересня 2017 во первых -жене необходима кладовка, попытался перенести входную группу. Выглядит неплохо, только вот проход на кухню очень сужен, - я бы сделал стену в кладовку симметрично стене с\у, со скосом под 45 градусов. Сейчас уже вижу, что ширина прохода должна быть не менее 1,2м (а лучше 1,4м и более). во вторых - ликвидировал комнату отдыха 1+2 , уменьшил проходной коридор и за счет этого немного увеличил детские спальни и санузел. с\у хорош, коридор, в принципе, неплохо. Смотря с точки зрения уже построенного дома, вижу, что такой вариант имеет место быть. выделил место под камин в гостинной Хорошее место, если нужен камин, то лучшего и не придумать. для барбекю на террасе аналогично - отличное место, я сам бы делал там, но у меня в наличии хоз.постройка с отдельной кухней хозяйская спальня с санузлом и гардеробной идеальнейшая !! - отличное решение Спасибо на добром слове, это примерно десятый вариант из возможных. Но от гардероба в итоге отказался, - встроенный шкаф-купе во всю стену гораздо практичнее, а спальня - визуально гораздо больше. Единственное, что немного режет глаз, - довольно узкая бойлерная. Уже чем 2,4м делать её нет никакого смысла нет. 1 Посилання на коментар Поділитися на інших сайтах More sharing options...
klakson Опубліковано: 1 жовтня 2017 Поділитись Опубліковано: 1 жовтня 2017 Но от гардероба в итоге отказался, - встроенный шкаф-купе во всю стену гораздо практичнее, а спальня - визуально гораздо больше.добрый день то есть гардеробную - как отдельное помещение убрали и сделали больше спальню с шкафом купе ? а как выглядит тот маленький коридорчик что отделял спальню от с/узла ? он мне очень нравиться как буферная зона , может фото есть ? Единственное, что немного режет глаз, - довольно узкая бойлерная. Уже чем 2,4м делать её нет никакого смысла нет.пока это общий ход мыслей- стены мы еще подвигаем !! спасибо за верное направление мыслей по планировке !!! Посилання на коментар Поділитися на інших сайтах More sharing options...
Alex_san Опубліковано: 1 жовтня 2017 Автор Поділитись Опубліковано: 1 жовтня 2017 то есть гардеробную - как отдельное помещение убрали и сделали больше спальню с шкафом купе ? а как выглядит тот маленький коридорчик что отделял спальню от с/узла ? он мне очень нравиться как буферная зона , может фото есть ? Окончательная планировка во вложении (квадратики - споты, кружки - основной свет). Фото пока ни о чем не скажет, т.к. шкаф будет встроенный (еще не дошли до этого этапа), глубиной 70см от стены до дверей с\у и над ними. Т.е. коридорчик в с\у будет, но длиной всего 70см. пока это общий ход мыслей- стены мы еще подвигаем !! Хороший ход мыслей, - если нужны три спальни, то лучше придумать сложно. Могу посоветовать рассмотреть вариант не глухой стены между гостиной и коридором в спальные, а ниши с проходами слева и справа (без дверей). Но это только в том случае, если семья имеет общий ритм жизни (т.е. в ночное время все спят). 1 Посилання на коментар Поділитися на інших сайтах More sharing options...
Alex_san Опубліковано: 1 жовтня 2017 Автор Поділитись Опубліковано: 1 жовтня 2017 Не везет мне с мастерами. Не успел я распрощаться со своим штукатуром-гипсокартонщиком, как плиточник начал выкидывать фортеля. Не закончив работу по укладке, он потребовал деньги, агрументируя это тем, что он предупреждал заранее "на пятницу мне нужны деньги". На мой резонный вопрос; а работу ты сделал на пятницу?, - последовала истерика, перемежающаяся матом в мой адрес. И это все от человека, который по итогу трехчасового общения (перед принятием на работу) показался мне адекватным. В общем, с плиточником я прощаюсь в понедельник (обещал закончить начатое). В итоге, решили с отцом продолжить укладку плитки своими руками, благо система выравнивания углов делает этот процесс гораздо менее трудоемким и доступным даже новичку. По крайней мере до "заморозки" объекта на зимний период будем обходиться своими силами. Посилання на коментар Поділитися на інших сайтах More sharing options...
klakson Опубліковано: 1 жовтня 2017 Поділитись Опубліковано: 1 жовтня 2017 а не возникало желания продлить свес крыши над террасой вперед и сделав выходы из спальни и детской / там где сейчас окна / завязать это все в одну большую террасу ? Посилання на коментар Поділитися на інших сайтах More sharing options...
Alex_san Опубліковано: 1 жовтня 2017 Автор Поділитись Опубліковано: 1 жовтня 2017 а не возникало желания продлить свес крыши над террасой вперед и сделав выходы из спальни и детской / там где сейчас окна / завязать это все в одну большую террасу ? [ATTACH]585267[/ATTACH] Подобная идея была в самом начале. Но мы понимали, что это лишнее. Общего выхода на и так немаленькую террасу достаточно. Хотя, кому-то это решение покажется оптимальным. Посилання на коментар Поділитися на інших сайтах More sharing options...
klakson Опубліковано: 3 листопада 2017 Поділитись Опубліковано: 3 листопада 2017 добрый день как продвигается Ваша стройка ? месяц нет сообщений Посилання на коментар Поділитися на інших сайтах More sharing options...
Alex_san Опубліковано: 23 листопада 2017 Автор Поділитись Опубліковано: 23 листопада 2017 добрый день как продвигается Ваша стройка ? месяц нет сообщений Добрый день. Прошу прощения за столь позднее реагирование - все свободное время провожу на объекте, в последнее время появилось желание сделать многие вещи своими руками. Итак, по работам. В связи с тем, что шпатлевку стен нам немного затянули по срокам, было принято решение перенести чистовую отделку стен и потолка на весну. Благо, срочности нет, а, потому, проводить мокрые работы (покраска, оклейка обоями) зимой не очень правильно. Сейчас своими силами в свободное время делается то, что возможно сделать; отец занимается укладкой плитки, а я - благоустройством территории (подсыпка дорожек для последующего бетонирования и укладки термообработанной брекчии из лабрадорита, общее планирование территории под деревья/кустарник/траву), - участок ниже дороги, поднимаем на 15-20см (по отмостке дома). Буквально на этих выходных закончили плитку в котельной, больше всего мороки с подрезкой, - много труб и различных отверстий (на фото еще не уложен весь пол, также видны нестыковки между фото панорамы): [/url] Было решено не укладывать плитку до потолка, - у меня это вызывает дискомфорт. Потому, сверху стены подготовлены под покраску. За минувшие пару месяцев завезли ~60т земли с отсевом и щебнем крупной фракции на подсыпку дорожек, а также порядка 120т обычного грунта и около 90т шикарной лесной земли. Вобщем, для меня работы хватит надолго :D Из всего этого изобилия уже израсходован практически весь отсев (~55т) и около 60т обычного грунта. На прошлой неделе двор выглядел так (сегодня отсева уже нет, а въезд отсыпан): Завтра планируем начать разметку гостиной под укладку напольной плитки 60*60см. 3 Посилання на коментар Поділитися на інших сайтах More sharing options...
Alex_san Опубліковано: 25 листопада 2017 Автор Поділитись Опубліковано: 25 листопада 2017 Итак, вчера измерили перпендикуляры, разложили плитку и, убедившись в том, что стены более-менее параллельны\перпендикулярны, установили нивелир, отбили горизонтали в углах и по центрам, а уж потом стали измерять; я с линейкой ходил из стороны в сторону, а отец глядел в подзорную трубу. В итоге, было установлено; перепад высот по всей площади двух комнат составляет порядка 3мм (напомню, - это т.н. черновая стяжка; бетон со щебнем, считаю, что это очень неплохой результат) - от этого и отталкивались при натяжении флуоресцентной лески. Затем, "под леску", начали укладку плитки. Напомню, раскладка выглядит так: [/url] По центру ромб из светлой плитки и фриза. Раскладку начали с центра помещения, дабы ориентироваться на "парадные" стены (т.е. те, где более всего будут видны неровности укладки): Сегодня мы с отцом продолжили укладку: Объем, который успели выложить за два дня: И хоть производитель этой плитки (ректификат) клянется в том, что она вся одного размера, разница есть; светлая на 0,5мм больше темной по всем сторонам, от чего при укладке светлой плитки с фризой пришлось использовать крестики на 0,5мм уже. Конечно, без шва эта плитка смотрится шикарно - эдакий состаренный полированный бетон. Но, во-первых, на теплые полы ложить плитку без шва я не рискну в любом случае, и, во вторых, АТЕМ - есть АТЕМ; хоть плитка и не из дешевых, но некая вогнутость (на 0,2-0,5мм) или выпуклость по лицу на некоторых плитках присутствует. Потому, кладем на крестики 1 и 1,5мм. Завтра, пока есть азарт, продолжим укладку (вернее, продолжит отец, а я, подготовив для него основание пола, уйду заниматься земляными работами). P.S. Увы, на фото невозможно передать то, как выглядит плитка (особенно темная); она получается какой-то невыразительной, тогда как в живую, - вылитый полированный декоративный бетон. 4 Посилання на коментар Поділитися на інших сайтах More sharing options...
Vitaliy67 Опубліковано: 25 листопада 2017 Поділитись Опубліковано: 25 листопада 2017 Она может и одного размера. Только каждом размере есть несколько калибров. Посмотрите маркировку на коробках. Да и одном и том же калибре размер плюс-минус 2мм. Осюда и рекомендация минимального шва 2мм. И это у всех производителей. А что бы выпуклость-вогнутость исправить применяется СВП (система выравнивания плитки) . Помогает реально. По крайней мере при переходе от плитки к плитке рука не царапается об её торцы. 1 Посилання на коментар Поділитися на інших сайтах More sharing options...
Alex_san Опубліковано: 25 листопада 2017 Автор Поділитись Опубліковано: 25 листопада 2017 Она может и одного размера. Только каждом размере есть несколько калибров. Посмотрите маркировку на коробках. Да и одном и том же калибре размер плюс-минус 2мм. Осюда и рекомендация минимального шва 2мм. И это у всех производителей. А что бы выпуклость-вогнутость исправить применяется СВП (система выравнивания плитки) . Помогает реально. По крайней мере при переходе от плитки к плитке рука не царапается об её торцы. Ещё раз - это ректификат, т.е. плитка, предназначенная для укладки без шва. Калибров тут нет и быть не может. С СВП знаком (две сотни клиньев и две сотни Т-образок лежит), вот только не помогает она тогда, когда плитка вогнута или выгнута. Тут или в углу, или по центру будет неровность (хоть и мизерная, доли миллиметра). Не может СВП выгнуть керамогранит толщиной 1см, увы. Но мы не жалуемся, пляшем при определении размера шва от имеющихся размеров темной и светлой плиток. Посилання на коментар Поділитися на інших сайтах More sharing options...
Vitaliy67 Опубліковано: 25 листопада 2017 Поділитись Опубліковано: 25 листопада 2017 Ну пусть будет по Вашему. Калибров нет. СВП не помогает. Посилання на коментар Поділитися на інших сайтах More sharing options...
Alex_san Опубліковано: 25 листопада 2017 Автор Поділитись Опубліковано: 25 листопада 2017 Ну пусть будет по Вашему. Калибров нет. СВП не помогает. Завтра ещё раз посмотрю пачки. Ну и попробуем СВП. Увы, на 16*100см керамограните вогнутости плитки СВП практически не выравнивал Посилання на коментар Поділитися на інших сайтах More sharing options...
Vitaliy67 Опубліковано: 25 листопада 2017 Поділитись Опубліковано: 25 листопада 2017 Там смысл СВП зафиксировать плитку так, что бы при проводке рукой Вы не чувствовали переходов. При просто укладке (без фиксации) стукнули в одном месте, поднялось другое. Да и клей даёт приличую усадку. И не жалейте зажимы Штуки три на сторону. Как минимум. И затягивать инструментом. Рукой совсем не то. 1 Посилання на коментар Поділитися на інших сайтах More sharing options...
Alex_san Опубліковано: 13 грудня 2017 Автор Поділитись Опубліковано: 13 грудня 2017 В последнее время пишу не очень часто, т.к. в свободное от основной работы время мы с отцом заняты обустройством нового дома, а именно укладкой плитки. На сегодняшний день укладка участка гостиная-кухня-холл практически завершена, осталось подрезать и уложить лишь несколько плиток и можно переходить к следующей комнате. Но, больше фото, меньше слов. Гостиная... [/url] ...плавно переходящая в кухню И холл: В районе размещения гардеробного шкафа решили сэкономить немного плитки и положить обрезки (видно на последнем фото). В остальном - никакой халтуры Увы, фото не передают того простора, который открывается при укладке на пол плитки большого размера по всей площади, без переходов и порогов. 4 Посилання на коментар Поділитися на інших сайтах More sharing options...
Татьяна5 Опубліковано: 13 грудня 2017 Поділитись Опубліковано: 13 грудня 2017 Если у Вас ТП везде - делайте разрывы по плитке в дверях. Иначе оно в итоге таки может треснуть 1 Посилання на коментар Поділитися на інших сайтах More sharing options...
Рекомендовані повідомлення
Створіть акаунт або увійдіть у нього для коментування
Ви маєте бути користувачем, щоб залишити коментар
Створити акаунт
Зареєструйтеся для отримання акаунта. Це просто!
Зареєструвати акаунтУвійти
Вже зареєстровані? Увійдіть тут.
Увійти зараз