igorjk Опубліковано: 1 серпня 2017 Поділитись Опубліковано: 1 серпня 2017 Последний вариант не канает! К потребителям кухни кабель 2,5 кв, судя по мощности, а автомат защиты на него 32А! Посилання на коментар Поділитися на інших сайтах More sharing options...
profeMaster Опубліковано: 1 серпня 2017 Поділитись Опубліковано: 1 серпня 2017 Ну по нагрузке 4,0 кВт не стыковки не вижу: 4000/220=18,18А - медь 2,5 мм проходит. насколько помню, при прокладке в пучках и с учетом превышения температуры уже не проходит. Посилання на коментар Поділитися на інших сайтах More sharing options...
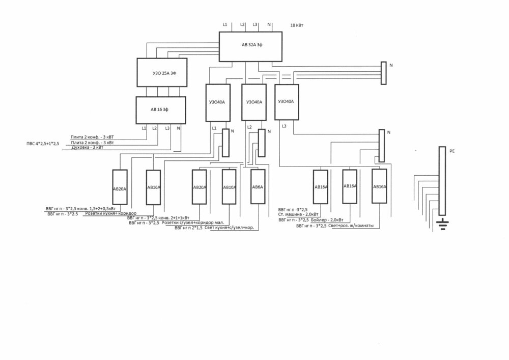
Vl@d Опубліковано: 1 серпня 2017 Автор Поділитись Опубліковано: 1 серпня 2017 Пучков не будет. Линии будут сходится только возле щитка. Так все таки, применение трехфазного УЗО по такой схеме допустимо или нет. Нагрузка будет не равномерная. Посилання на коментар Поділитися на інших сайтах More sharing options...
profeMaster Опубліковано: 1 серпня 2017 Поділитись Опубліковано: 1 серпня 2017 Линии будут сходится только возле щитка это и есть пучок! Добавлено через 1 минуту Так все таки, применение трехфазного УЗО по такой схеме допустимо или нет. Нагрузка будет не равномерная. не вижу проблемы. Посилання на коментар Поділитися на інших сайтах More sharing options...
Vl@d Опубліковано: 1 серпня 2017 Автор Поділитись Опубліковано: 1 серпня 2017 это и есть пучок! С пучком разберемся. Ну а в общем, такой щиток собирать можно? Посилання на коментар Поділитися на інших сайтах More sharing options...
profeMaster Опубліковано: 1 серпня 2017 Поділитись Опубліковано: 1 серпня 2017 Ну а в общем, такой щиток собирать можно? нет, у вас на свет 2-х проводка заложена, а нужно 3-х. Посилання на коментар Поділитися на інших сайтах More sharing options...
igorjk Опубліковано: 1 серпня 2017 Поділитись Опубліковано: 1 серпня 2017 С пучком разберемся. Ну а в общем, такой щиток собирать можно? Можно! Только при утечке в одной из линий оборудования кухни питание отключится во вех трех, и поиск неисправности будет затруднен. А пока к вам доберется электрик, вы будете без плиты и духовки. Этот вариант нужно учитывать! Есть еще непонятка - накой вы линии освещения заводили на УЗО? 1 Посилання на коментар Поділитися на інших сайтах More sharing options...
Vl@d Опубліковано: 1 серпня 2017 Автор Поділитись Опубліковано: 1 серпня 2017 Ну если только в этом проблема, то это хорошо. В двух комнатах уже сделан ремонт, и поменять нет возможности. 1 Посилання на коментар Поділитися на інших сайтах More sharing options...
Vl@d Опубліковано: 1 серпня 2017 Автор Поділитись Опубліковано: 1 серпня 2017 Можно! Только при утечке в одной из линий оборудования кухни питание отключится во вех трех, и поиск неисправности будет затруднен. А пока к вам доберется электрик, вы будете без плиты и духовки. Этот вариант нужно учитывать!Буду отключать потребители по очереди (отверткой). Добавлено через 8 минут Есть еще непонятка - накой вы линии освещения заводили на УЗО?Поскольку освещение без PE, то если по пяни кто-то залезет в цоколь лампочки или вырвет выключатель, получит щелчек по лбу, но не смертельный. Кроме того, в одной из комнат розетки и освещение сидят на одной линии. Посилання на коментар Поділитися на інших сайтах More sharing options...
igorjk Опубліковано: 1 серпня 2017 Поділитись Опубліковано: 1 серпня 2017 (змінено) Поскольку освещение без PE, то если по пяни кто-то залезет в цоколь лампочки или вырвет выключатель, получит щелчек по лбу, но не смертельный. Кроме того, в одной из комнат розетки и освещение сидят на одной линии. АГА, водочкой балуемся! Кто ж кроме вас туда полезет? Ну это лирическое отступление. А так, все в норме, можно собирать. А если кто то полезет в цоколь лампочки, я так понимаю на табуретке, то "земли" под ногами, а следовательно и утечки не будет. В подобном случае даже УЗО не поможет! И это тоже нужно учитывать!!! Змінено 1 серпня 2017 користувачем igorjk Посилання на коментар Поділитися на інших сайтах More sharing options...
Vl@d Опубліковано: 1 серпня 2017 Автор Поділитись Опубліковано: 1 серпня 2017 Всем участвующим в обсуждении большое СПАСИБО!!! 1 Посилання на коментар Поділитися на інших сайтах More sharing options...
profeMaster Опубліковано: 1 серпня 2017 Поділитись Опубліковано: 1 серпня 2017 большое пожалуйста. у меня кнопка "Спасибо" исчезла. Неужто всё? Посилання на коментар Поділитися на інших сайтах More sharing options...
igorjk Опубліковано: 1 серпня 2017 Поділитись Опубліковано: 1 серпня 2017 И вам спасибо за тему! Желаю всем чтобы электричество было безопасным! Посилання на коментар Поділитися на інших сайтах More sharing options...
InSAn Опубліковано: 1 серпня 2017 Поділитись Опубліковано: 1 серпня 2017 А чем это грозит? В мокрых помещениях ставится УЗО на 10мА. В остальных - 30мА, чтобы не допустить ложных срабатываний. Добавлено через 31 секунду На схеме для варочной поверхности ПВС 5х4. Есть ПВС 4х2,5+1х2,5. Его можно применить? Нельзя. Потому что ПВС. 1 Посилання на коментар Поділитися на інших сайтах More sharing options...
profeMaster Опубліковано: 1 серпня 2017 Поділитись Опубліковано: 1 серпня 2017 Нельзя. Потому что ПВС.если в стену прятать - то да, нельзя. Посилання на коментар Поділитися на інших сайтах More sharing options...
InSAn Опубліковано: 1 серпня 2017 Поділитись Опубліковано: 1 серпня 2017 посоветую 3-х фазное узо взять по номиналу вводного автомата - 32 А, чтобы не гадать, чем его защищать. УЗО 40А при автомате 32А защищать не нужно - автомат не даст проскочить более 32А для УЗО, которое максимально выдерживает 40А. Посилання на коментар Поділитися на інших сайтах More sharing options...
profeMaster Опубліковано: 1 серпня 2017 Поділитись Опубліковано: 1 серпня 2017 УЗО 40А при автомате 32А защищать не нужно я о 25 А узо 1 Посилання на коментар Поділитися на інших сайтах More sharing options...
InSAn Опубліковано: 1 серпня 2017 Поділитись Опубліковано: 1 серпня 2017 Рассматриваю плиту + духовку как один трехфазный потребитель. А они будут работать со сдвигом фаз? Нет. Поэтому толщина N и PE - в сумме трех толщин фазных проводников. Добавлено через 50 секунд Ну по нагрузке 4,0 кВт не стыковки не вижу: 4000/220=18,18А - медь 2,5 мм проходит. Автоматы защищают не приборы, а кабеля. 1 Посилання на коментар Поділитися на інших сайтах More sharing options...
Vl@d Опубліковано: 1 серпня 2017 Автор Поділитись Опубліковано: 1 серпня 2017 А если в гофре? Посилання на коментар Поділитися на інших сайтах More sharing options...
InSAn Опубліковано: 1 серпня 2017 Поділитись Опубліковано: 1 серпня 2017 А если в гофре? Да хоть в трубе: ПВС - это провод для присоединения к стационарной проводке. Максимум, на что он годится - это провод от плиты к розетке. Посилання на коментар Поділитися на інших сайтах More sharing options...
profeMaster Опубліковано: 1 серпня 2017 Поділитись Опубліковано: 1 серпня 2017 А они будут работать со сдвигом фаз? Нет. Поэтому толщина N и PE - в сумме трех толщин фазных проводников. а схему подключения вы видели? Чего решили, что там не разные фазы? Посилання на коментар Поділитися на інших сайтах More sharing options...
InSAn Опубліковано: 1 серпня 2017 Поділитись Опубліковано: 1 серпня 2017 а схему подключения вы видели? Чего решили, что там не разные фазы? Тады да 1 Посилання на коментар Поділитися на інших сайтах More sharing options...
Vl@d Опубліковано: 1 серпня 2017 Автор Поділитись Опубліковано: 1 серпня 2017 Автоматы защищают не приборы, а кабеля. По Вашему АВ20А ВВГ 3*2,5 не защитит? Посилання на коментар Поділитися на інших сайтах More sharing options...
InSAn Опубліковано: 1 серпня 2017 Поділитись Опубліковано: 1 серпня 2017 По Вашему АВ20А ВВГ 3*2,5 не защитит? Кабель? Да. А розетку? К тому же ранее звучал АВ25А на кабель 2,5мм:вижу на схеме провода 2.5 мм2 и автомат 25 А. Дальше сильно не вникал.Вот его - точно не защитит. Посилання на коментар Поділитися на інших сайтах More sharing options...
Vl@d Опубліковано: 1 серпня 2017 Автор Поділитись Опубліковано: 1 серпня 2017 Кабель? Да. А розетку? К тому же ранее звучал АВ25А на кабель 2,5мм: А чего ее защищать? Максимальная мощность одного конвектора 2,0 кВт. Качественная розетка на 16А не выдержит такую нагрузку? Вы не внимательно смотрели крайний вариант схемы. Посилання на коментар Поділитися на інших сайтах More sharing options...
Рекомендовані повідомлення
Створіть акаунт або увійдіть у нього для коментування
Ви маєте бути користувачем, щоб залишити коментар
Створити акаунт
Зареєструйтеся для отримання акаунта. Це просто!
Зареєструвати акаунтУвійти
Вже зареєстровані? Увійдіть тут.
Увійти зараз