bomberman Опубліковано: 18 лютого 2011 Поділитись Опубліковано: 18 лютого 2011 ну низззя, так низя значит будем здесь монолит делать. Вид сверху такой: Эти панели уже заготовлены (те которые на "правую" часть перекрытия еще нет). Теперь другой вопрос, как лучше: "одним" куском (как нарисовано), или 1,5 метровой панелью разбить на два поменьше (отдельно лестничная площадка, отдельно 30см полосочка над входной группой) Посилання на коментар Поділитися на інших сайтах More sharing options...
Golos Опубліковано: 18 лютого 2011 Поділитись Опубліковано: 18 лютого 2011 ну низззя, так низя сделаем значит монолит. Вид сверху такой Эти панели уже заготовлены (те которые на "правую" часть перекрытия еще нет). Теперь другой вопрос, как лучше: "одним" куском (как нарисовано), или 1,5 метровой панелью разбить на два поменьше (отдельно лестничная площадка, отдельно 30см полосочка над входной группой) Лейте вместе. Посилання на коментар Поділитися на інших сайтах More sharing options...
bomberman Опубліковано: 18 лютого 2011 Поділитись Опубліковано: 18 лютого 2011 В каждой плите перекрытия есть опорный участок - по короткой стороне. Он армируется не так, как центральный участок. В железобетоне бетон работает на сжатие, арматура - на растяжение. Если мне не изменяет память, в плите перекрытия рабочая арматура в пролете плиты лежит внизу (в сечении), а на опорных участках - вверху (там вообще каркас, помоему). Поэтому опираться плиты должны на опрных участках, а в середине плиты ее нельзя опирать - луснет. OMG.. только до меня дошла суть написанного.. и содеянного дело в том, что сделали небольшой подвал под котельной (или погреб, меньше 3х4), и его перекрыл 2мя панелями немного длиннее, чем надо было (нужны были панели 38, а их только под заказ, долго, впопыхах взял 42 - типа все равно внутри дома ниже 0, засыпется)..В итоге жопа?! Посилання на коментар Поділитися на інших сайтах More sharing options...
Golos Опубліковано: 18 лютого 2011 Поділитись Опубліковано: 18 лютого 2011 OMG.. только до меня дошла суть написанного.. и содеянного дело в том, что сделали небольшой подвал под котельной (или погреб, меньше 3х4), и его перекрыл 2мя панелями немного длиннее, чем надо было (нужны были панели 38, а их только под заказ, долго, впопыхах взял 42 - типа все равно внутри дома ниже 0, засыпется)..В итоге жопа?! Зачеканьте (забейте раствором пустоты) на глубину опирания и не должно луснуть. 1 Посилання на коментар Поділитися на інших сайтах More sharing options...
bomberman Опубліковано: 19 лютого 2011 Поділитись Опубліковано: 19 лютого 2011 спасибо за советы. еще вопрос - можно ли укладывать панели на 3 точки? одна сторона полностью ложится на стену, а вторая - почти на половину ширины панели (дальше эркер). будет ли так держаться? Посилання на коментар Поділитися на інших сайтах More sharing options...
Golos Опубліковано: 19 лютого 2011 Поділитись Опубліковано: 19 лютого 2011 спасибо за советы. еще вопрос - можно ли укладывать панели на 3 точки? одна сторона полностью ложится на стену, а вторая - почти на половину ширины панели (дальше эркер). будет ли так держаться? Извините, не совсем понял из описания. Вообще плиты перекрытия выпускаются по способу опирания трёх видов: с опиранием на 2,3 или 4 стороны. Они по-разному армируются на заводе-изготовителе. И этих правил надо придерживаться. Вот цитата из Гост: 1.2. Основные параметры и размеры 1.2.1. Плиты подразделяют на типы: 1ПК — толщиной 220 мм с круглыми пустотами диаметром 159 мм. предназначенные для опирания по двум сторонам; 1ПКТ — то же, для опирания по трем сторонам; 1ПКК — то же, для опирания по четырем сторонам; 2ПК — толщиной 220 мм с круглыми пустотами диаметром 140 мм, предназначенные для опирания по двум сторонам; 2ПКТ — то же, для опирания по трем сторонам; 2ПКК ( то же для опирания по четырем сторонам; 2 Посилання на коментар Поділитися на інших сайтах More sharing options...
bomberman Опубліковано: 19 лютого 2011 Поділитись Опубліковано: 19 лютого 2011 (змінено) Вообще плиты перекрытия выпускаются по способу опирания трёх видов: с опиранием на 2,3 или 4 стороны. в таком случае, можно ли плиту опирать на 1,5 стороны? т.е. одна сторона полностью, вторая (противоположная)) на половину,так что один угол свисает. Если так ложить допускается, то в каком соотношении угол может висеть? Змінено 19 лютого 2011 користувачем bomberman Посилання на коментар Поділитися на інших сайтах More sharing options...
Golos Опубліковано: 19 лютого 2011 Поділитись Опубліковано: 19 лютого 2011 в таком случае, можно ли плиту опирать на 1,5 стороны? т.е. одна сторона полностью, вторая (противоположная)) на половину,так что один угол свисает. Если так ложить допускается, то в каком соотношении угол может висеть? Я фигею тихо... Кто Вам проектировал? Нельзя так опирать, там поперечной арматуры вообще нет. Лопнет плита - 90% даю. 1 Посилання на коментар Поділитися на інших сайтах More sharing options...
bomberman Опубліковано: 19 лютого 2011 Поділитись Опубліковано: 19 лютого 2011 никто и не проектировал. т.е. проект есть, но только архитектура Посилання на коментар Поділитися на інших сайтах More sharing options...
Golos Опубліковано: 19 лютого 2011 Поділитись Опубліковано: 19 лютого 2011 никто и не проектировал. т.е. проект есть, но только архитектура Так архитектор не зная какое будет перекрытие не может ни разрезы показать, ни высоты... Посилання на коментар Поділитися на інших сайтах More sharing options...
bomberman Опубліковано: 20 лютого 2011 Поділитись Опубліковано: 20 лютого 2011 (змінено) сразу планировалось перекрытие панелями, видимо поэтому показал и высоты, и разрезы. В общем, проект уже согласован и разрешение на строительство дано Сейчас стоит вопрос расположения панелей, чтоб заготовить. Вот и разбираюсь, как можно ложить панели, как нельзя.. В принципе пока все ясно - ложить только и только на две опоры, шаг вправо-влево - растрел ) Еще вопрос - можно ли отрезать у плиты угол и таким образом перекрыть эркер? спасибо Змінено 20 лютого 2011 користувачем bomberman Посилання на коментар Поділитися на інших сайтах More sharing options...
Golos Опубліковано: 20 лютого 2011 Поділитись Опубліковано: 20 лютого 2011 Еще вопрос - можно ли отрезать у плиты угол и таким образом перекрыть эркер? спасибо В принципе можно. Но я этого не говорил Зачеканьте только и заанкерите (в пустоты вставьте арматуру и завяжите с поясом или в кладку, пустоты забейте раствором). Посилання на коментар Поділитися на інших сайтах More sharing options...
lastandr Опубліковано: 20 лютого 2011 Поділитись Опубліковано: 20 лютого 2011 Еще вопрос - можно ли отрезать у плиты угол и таким образом перекрыть эркер? спасибо В принципе ДБН не допускает какого -либо изменения заводской конструкции ЖБИ,но на практике такие углы режут сплошь и рядом,даже в высотках(я тоже пару раз участвовал в таком безобразии) Единственное,может эту панель можно сместить в в левый(верхний)угол,чтоб не делать там монолитный участок?Но это надо смотреть всю раскладку плит... 1 Посилання на коментар Поділитися на інших сайтах More sharing options...
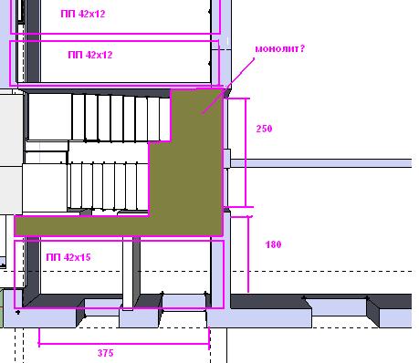
bomberman Опубліковано: 27 лютого 2011 Поділитись Опубліковано: 27 лютого 2011 (змінено) Единственное,может эту панель можно сместить в в левый(верхний)угол,чтоб не делать там монолитный участок?Но это надо смотреть всю раскладку плит... немного не понятно куда переместить угол плиты..( вот практически вся раскладка плит. Остальная часть более-менее ясна, а по этой есть вопросы. №1 - длинна пролета с эркером - 5,82. Видел панели 6,0 (маловато - меньше 10см опирания) и сразу 6,3 (много). Какие лучше брать? Или 61-62 под заказ? №2 - монолит? что можно сделать, чтобы как можно меньшей кровью перекрыть этот участок? #3 - по какому принципу выбрать панели - меньше штук, но пошире, или больше, но поуже? Змінено 27 лютого 2011 користувачем bomberman сменил схему Посилання на коментар Поділитися на інших сайтах More sharing options...
alyak Опубліковано: 27 лютого 2011 Поділитись Опубліковано: 27 лютого 2011 Позвоните на завод , поинтересуйтесь , я узнал что можно заказать плиты четко под эркер когда уже уложил все плиты . Не все заводы делают , но есть и делают . Посилання на коментар Поділитися на інших сайтах More sharing options...
bomberman Опубліковано: 27 лютого 2011 Поділитись Опубліковано: 27 лютого 2011 спасибо. а по какому принципу они изготавливают панели? в смысле выезжают ли на замер или просто размеры задать? с экономической стороны, выгоднее или нет такую панель заказать?? Посилання на коментар Поділитися на інших сайтах More sharing options...
alyak Опубліковано: 27 лютого 2011 Поділитись Опубліковано: 27 лютого 2011 спасибо. а по какому принципу они изготавливают панели? в смысле выезжают ли на замер или просто размеры задать? с экономической стороны, выгоднее или нет такую панель заказать?? я не спрашивал почем , просто этот этап можно бы было закончить быстрее . Чтоб подлить нужно связать арматурой с основной плитой , выставить опалубку снизу и с боков , вручную натаскать компонентов на бетон . Общее итого = куча возни . Посилання на коментар Поділитися на інших сайтах More sharing options...
lastandr Опубліковано: 27 лютого 2011 Поділитись Опубліковано: 27 лютого 2011 немного не понятно куда переместить угол плиты..( вот практически вся раскладка плит. Остальная часть более-менее ясна, а по этой есть вопросы. №1 - длинна пролета с эркером - 5,82. Видел панели 6,0 (маловато - меньше 10см опирания) и сразу 6,3 (много). Какие лучше брать? Или 61-62 под заказ? №2 - монолит? что можно сделать, чтобы как можно меньшей кровью перекрыть этот участок? #3 - по какому принципу выбрать панели - меньше штук, но пошире, или больше, но поуже? Да,конечно,при такой раскладке плит их можно и не двигать,на эркер уложить такую плиту,при этом получится 2 монолитных участка. А можно попробовать и такой вариант ,придвинув эту плиту вплотную к соседней,тогда будет один монолитный участок Монолитный вариант тоже вполне осуществим,правда придется ставить опалубку,вязать арматурную сетку,изготавливать и заливать бетон,но тем не менее этот вариант может оказаться самым экономичным. Панели подбирают с непосредственно под перекрываемую площадь,при этом более широкие панели стоят меньше узких в пересчете на 1м2. 1 Посилання на коментар Поділитися на інших сайтах More sharing options...
InSAn Опубліковано: 28 лютого 2011 Поділитись Опубліковано: 28 лютого 2011 более широкие панели стоят меньше узких в пересчете на 1м2. Ошибочное мнение. Для перекрытия одинакового проема нужно 4-ре 1,5-метровых или 5-ть 1,2-метровых: ПК 54-12-8 - 5 * 1143.6 = 5718,0 ПК 54-15-8 - 4 * 1525.2 = 6100,8 еще: ПК 62-12-8 - 5 * 1314 = 6570,0 ПК 62-15-8 - 4 * 1752 = 7008,0 т.е. с точностью наоборот - широкие панели стоят дороже узких в пересчете на 1м2. 1 Посилання на коментар Поділитися на інших сайтах More sharing options...
lastandr Опубліковано: 28 лютого 2011 Поділитись Опубліковано: 28 лютого 2011 (змінено) Странно,раньше всегда так было,может ошибки на сайте Ковальской(стоимость 1-метровых и 1.2-метровых одинакова?),хотя если брать метровые плиты,то все сходится: Для перекрытия одинакового проема нужно 4-ре 1,5-метровых или 5-ть 1,2-метровых или 6шт. 1-метровых: ПК 54-12-8 - 5 * 1143.6 = 5718,0 ПК 54-15-8 - 4 * 1525.2 = 6100,8 ПК 54-10-8 - 6 х 1143.6 = 6861.6 еще: ПК 62-12-8 - 5 * 1314 = 6570,0 ПК 62-15-8 - 4 * 1752 = 7008,0 ПК 62-10-8 - 6 х 1314 = 7884.0 Плюс допрасходы на оплату перевозки и укладки более узких плит(кран и рабочие)... PS Посмотрел цены других производителей - чем уже,тем дороже 1м2... Змінено 28 лютого 2011 користувачем lastandr дополнение Посилання на коментар Поділитися на інших сайтах More sharing options...
Igor_M Опубліковано: 28 лютого 2011 Автор Поділитись Опубліковано: 28 лютого 2011 немного не понятно куда переместить угол плиты..( вот практически вся раскладка плит. Остальная часть более-менее ясна, а по этой есть вопросы. №1 - длинна пролета с эркером - 5,82. Видел панели 6,0 (маловато - меньше 10см опирания) и сразу 6,3 (много). Какие лучше брать? Или 61-62 под заказ? №2 - монолит? что можно сделать, чтобы как можно меньшей кровью перекрыть этот участок? #3 - по какому принципу выбрать панели - меньше штук, но пошире, или больше, но поуже? Если еще не заливали армопояс под плиты перекрытия, то можно было бы замонолитить балку, которая была бы продолжением правой стенки и "упиралась" бы в эркер. На эту балку можно положить ДВЕ плиты 1м шириной, а оставшийся участок - замонолитить... Выступающую на потолке балку можно было бы обыграть - зашить гипсокартоном весь эркер (такой себе опуск потолка вниз) и там вмонтировать точечные светильники... Это бы позволитло "выделить" эркер из общего постранства и главное - решить вопрос с перекрытием... НО... нужен конструктивный расчет... и думаю, что должно получиться! Посилання на коментар Поділитися на інших сайтах More sharing options...
lastandr Опубліковано: 28 лютого 2011 Поділитись Опубліковано: 28 лютого 2011 Если еще не заливали армопояс под плиты перекрытия, то можно было бы замонолитить балку, которая была бы продолжением правой стенки и "упиралась" бы в эркер. На эту балку можно положить ДВЕ плиты 1м шириной, а оставшийся участок - замонолитить... Выполняли такое проектное решение при реконструкции жилого дома,балка была сварена из двух 24-х швеллеров,на нее опирались 4 6-ти метровых панели,снизу обшили деревом,получилось очень не плохо.Единственный момент,не стоит балку наглухо замоноличивать,просто в стенах делаются бетонные вставки,в которые устанавливаются закладные пластины,а к ним уже приваривается балка по бокам,но не с торца! Посилання на коментар Поділитися на інших сайтах More sharing options...
bomberman Опубліковано: 11 травня 2011 Поділитись Опубліковано: 11 травня 2011 дабы не плодить кучу тем по укладке панелей сюда еще один вопрос когда можно "нагружать" уложенные панели? хотим перекрыть панелями и сразу же на них положить несколько поддонов газоблока, чтоб не вызывать лишний раз кран. Можно ли так делать или необходимо подождать день-два-неделю, чтоб панели уляглись\выстояли? Посилання на коментар Поділитися на інших сайтах More sharing options...
Golos Опубліковано: 11 травня 2011 Поділитись Опубліковано: 11 травня 2011 дабы не плодить кучу тем по укладке панелей сюда еще один вопрос когда можно "нагружать" уложенные панели? хотим перекрыть панелями и сразу же на них положить несколько поддонов газоблока, чтоб не вызывать лишний раз кран. Можно ли так делать или необходимо подождать день-два-неделю, чтоб панели уляглись\выстояли? Подождите сутки чтобы раствор полностью взялся и грузите. Посилання на коментар Поділитися на інших сайтах More sharing options...
Igor_M Опубліковано: 11 травня 2011 Автор Поділитись Опубліковано: 11 травня 2011 Подождите сутки чтобы раствор полностью взялся и грузите. Уже не помню, но я когда так делал, то тут диспут был - куда ставить - посередине плиты или на край? И у меня еще умельцы умудрились ДВЕ паллеты кирпича одну на одну поставить... Посилання на коментар Поділитися на інших сайтах More sharing options...
Рекомендовані повідомлення
Створіть акаунт або увійдіть у нього для коментування
Ви маєте бути користувачем, щоб залишити коментар
Створити акаунт
Зареєструйтеся для отримання акаунта. Це просто!
Зареєструвати акаунтУвійти
Вже зареєстровані? Увійдіть тут.
Увійти зараз