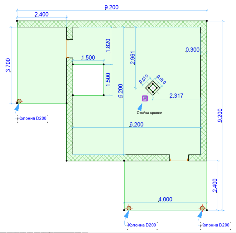
Interceptor Опубліковано: 8 вересня 2017 Поділитись Опубліковано: 8 вересня 2017 (змінено) Прошу совета по запасу прочности плиты перекрытия для установки трубы дымохода из кирпича. Исходные данные: * плита перекрытия (зеленая на схеме): монолитная 200 мм толщиной; - армирована 12 мм в два слоя: -- нижний - клетка 150*100 мм, --верхний - клетка 200*150 мм; * бетон от Ковальской из миксера М300 В25; * плита опирается на несущие стены и в двух шейках - на продолжение несущей стены и три колонны диаметром 200 мм из азбесто-цементной трубы, залитые бетоном и армированыые внутри + привязаны арматурой к плите; * фактически имеем квадрат с максимальным пролетом 6.2 м ; * есть отверстие под лестничный проем 1.5*1.5 м; * отверстие под дымоход 270*270 мм; * стены: газоблок D500 300 мм толщиной. * высота стен первого этажа - 3 метра; * на втором этаже перестенки общей длиной 15.5 м.п. из газоблока 120 мм, высотой 2.2 м - 2.7 м макс. (мансарда, высота стен плавающая); * дымоходная труба: - кирпич рядовой полнотелый квадратом 510*510 мм; - высота примерно 3,3 м (45 рядов по 6 шт в ряду) +-; -- далее над кровлей - кирпич клинкерный или ручной формовки; -- примерно 15 рядов. ИТОГО: высота кирпичной трубы приблизительно 4,6 м, общее количество кирпичей - 350..360 штук. * в 0.5-0.8 м возле дымохода будет стойка поддерживающая стропильную систему кровли; ************************ На первом этаже планируются кирпичные перестенки , но пока они отсутствуют. Изначально планировался камин с трубой от первого этажа от самого камина, но потом переигралась концепция и камин был заменен на каминофен, откуда начало дымохода перенеслось на второй этаж, то бишь без опоры под плитой перекрытия. Главный вопрос таков: не много ли для такой плиты кирпича будет давить на нее так сосредоточенно? Змінено 8 вересня 2017 користувачем Interceptor Добавил картинки Посилання на коментар Поділитися на інших сайтах More sharing options...
Технология Строительства Опубліковано: 9 вересня 2017 Поділитись Опубліковано: 9 вересня 2017 лавный вопрос таков: не много ли для такой плиты кирпича будет давить на нее так сосредоточенно? Нет, там все нормально можно на крайний случай усилить в месте где будет труба из кирпича стоять. Или вообще перейти на панели 8.9 или 9.0 м длинной. Если позволяют заезды. 1 Посилання на коментар Поділитися на інших сайтах More sharing options...
Interceptor Опубліковано: 9 вересня 2017 Автор Поділитись Опубліковано: 9 вересня 2017 Спасибо! Усилить можно пока только снизу на первом этаже - доставить кирпичные перестенки в полкирпича 120 мм под самую плиту (см. картинку) На панели перейти уже не получится,- конструкция готова как описано выше и ждет продолжения банкета. На подходе как раз установка крыши и докладка дымохода...Вот как раз напрягал этот момент, все-таки 360 кирпичей - это 1300+ кг давящие на 0.26 кв.м. Посилання на коментар Поділитися на інших сайтах More sharing options...
Interceptor Опубліковано: 9 вересня 2017 Автор Поділитись Опубліковано: 9 вересня 2017 Возьмите полегче кирпичи,и ничего не нужно укреплять,влазить в доп-расходы и головная боль. Эти около 400кг. и габариты меньше 40х40см. www.stroimdom.com.ua/forum/showthread.php?t=215582 Штука несомненно интересная, согласен; но есть пара-тройка нюансов: * уже выложена 2.2 м труба из чернового кирпича (это поправимо и устранимо))) ); * на выходе хочется увидеть трубу в стиле баварской кладки, по типу такого +-: ...а это все-равно доп.расходы на кирпич и работу (предлагаемые кольца Grand не удовлетворяют это условие, если я внимательно изучил материал)... * есть желание отвести теплый воздух в комнаты по пути дымохода (печь - каминофен с гильзой-нержавейкой 130 мм); * решить вопрос нужно срочно, практически "на вчера")) Посилання на коментар Поділитися на інших сайтах More sharing options...
trianom Опубліковано: 14 вересня 2017 Поділитись Опубліковано: 14 вересня 2017 Заинтересовала меня работа плиты в данном случае - прикинул в расчетном комплексе Лира: при максимально допустимом прогибе 6200/200=31 мм имеем прогиб до 3 мм (см. вложение), да и по армированию в принципе все нормально. Так что можете опирать на плиту дымовую трубу из полнотелого керамического кирпича+стойку крыши. 1 Посилання на коментар Поділитися на інших сайтах More sharing options...
Interceptor Опубліковано: 16 вересня 2017 Автор Поділитись Опубліковано: 16 вересня 2017 Заинтересовала меня работа плиты в данном случае - прикинул в расчетном комплексе Лира: при максимально допустимом прогибе 6200/200=31 мм имеем прогиб до 3 мм (см. вложение), да и по армированию в принципе все нормально. Так что можете опирать на плиту дымовую трубу из полнотелого керамического кирпича+стойку крыши. Отличная информация, благодарствую! По крыше новая вводная пришла: стойка отменяется, по этому еще легче на душЕ стало ))) Посилання на коментар Поділитися на інших сайтах More sharing options...
Рекомендовані повідомлення
Створіть акаунт або увійдіть у нього для коментування
Ви маєте бути користувачем, щоб залишити коментар
Створити акаунт
Зареєструйтеся для отримання акаунта. Це просто!
Зареєструвати акаунтУвійти
Вже зареєстровані? Увійдіть тут.
Увійти зараз