balcheg Опубліковано: 15 вересня 2017 Поділитись Опубліковано: 15 вересня 2017 (змінено) Доброго времени суток, уважаемые форумчане. Форум - это площадка для общения и высказывания своего мнения по разным темам. Вот сегодня обращаюсь к вам и прошу вашего мнения по вот какому вопросу ... Немного о ситуации: Мы с моей семьей, которая состоит из 2х взрослых человек и маленького годовалого сынишки, на текущий момент снимаем квартиру. Периодически, раз в пару лет, хозяева квартиры значительно повышают квартплату или просят выселиться, потому что квартиру планируют продавать ... Каждый раз идет стрес поиска новой квартиры и тяжелый переезд. Раньше было легче, а с сыном стало накладнее - вещей больше, для ребенка стрес. Поняли, что прожить всю жизнь в таком ритме не хочется ... Наследство нам оставить некому, надеяться на чудо тоже глупо. Решили потихоньку откладывать копеечку (уже немного скопили, еще немного предстоит скопить) и построить дом для жизни. Хотим построить дом для жизни без лишних понтов и в условиях ограниченного бюджета. Большой дом нам тоже не нужен, нужно ровно столько, чтоб было комфортно жить для 3-4 человек. Бюджет, комфорт, уют - примерно в таком ключе мы хотим жить в будущем. У нас есть земельный участок, который мы купили недорого 10 соток земли и еще столько же в аренде у государства. И под эти хотелки / условия мы начали присматриваться к проектам ... Опасаясь примкнуть к числу тех людей, которые ввязываются в стройку и в итоге не тянут его достроить до конца, оказываясь и без дома, и без денег, я отказался от не самого дорогого проекта Муратора: www.proekty-muratordom.com/proekt_ukromnyi,127,0,0.htm?c=54&page=3 Ранее настойчиво хотели 2 этажа / мансарду, но пришли к выводу, что и одноэтажный вполне нормальным будет, особенно в дальней перспективе когда-то будут внуки к деду приезжать, да и сама старость подкрадется незаметно ... Сейчас смотрю больше в сторону проектов компании Z500: z500.com.ua/projekt/z7.html и такого: z500.com.ua/projekt/z8.html Прошу подсказать ваши идеи по минусам ... что в этих проектах плохого / хорошего? Участок мой легко вместит оба этих дома. Искал специально двухскатную крышу, чтоб было менее дорого. Стоит так же добавить, что строить будем не самостоятельно, а обращаться к услугам специалистов, так как самостоятельно построенный дом, я убежден, будет для меня опасным Руки у меня на это не стоят )) Сколько в среднем может обойтись строительство такого дома? Может кто подскажет другие подобные удачные проекты? П.С. Меньше 80 квадратов я не рассматриваю. Буду рад любому слову ... доброму и неочень Змінено 15 вересня 2017 користувачем balcheg Некорректная ссылка Посилання на коментар Поділитися на інших сайтах More sharing options...
vadimv Опубліковано: 15 вересня 2017 Поділитись Опубліковано: 15 вересня 2017 Из перечисленного я бы выбрал Z7. Только добавил бы окно в гостиной в зоне обеденного стола. Искал специально двухскатную крышу, чтоб было менее дорого.Там вроде бы для двускатной крыши понадобятся фермы. Плюс там хоть и написано "Маленький и недорогой одноэтажный дом с двускатной крышей", но реально можно и меньше (дешевле). И при этом с большими размерами спален. 1 Посилання на коментар Поділитися на інших сайтах More sharing options...
balcheg Опубліковано: 15 вересня 2017 Автор Поділитись Опубліковано: 15 вересня 2017 Плюс там хоть и написано "Маленький и недорогой одноэтажный дом с двускатной крышей", но реально можно и меньше (дешевле). И при этом с большими размерами спален. Какой бы проект Вы бы выбрали или посоветовали бы? Посилання на коментар Поділитися на інших сайтах More sharing options...
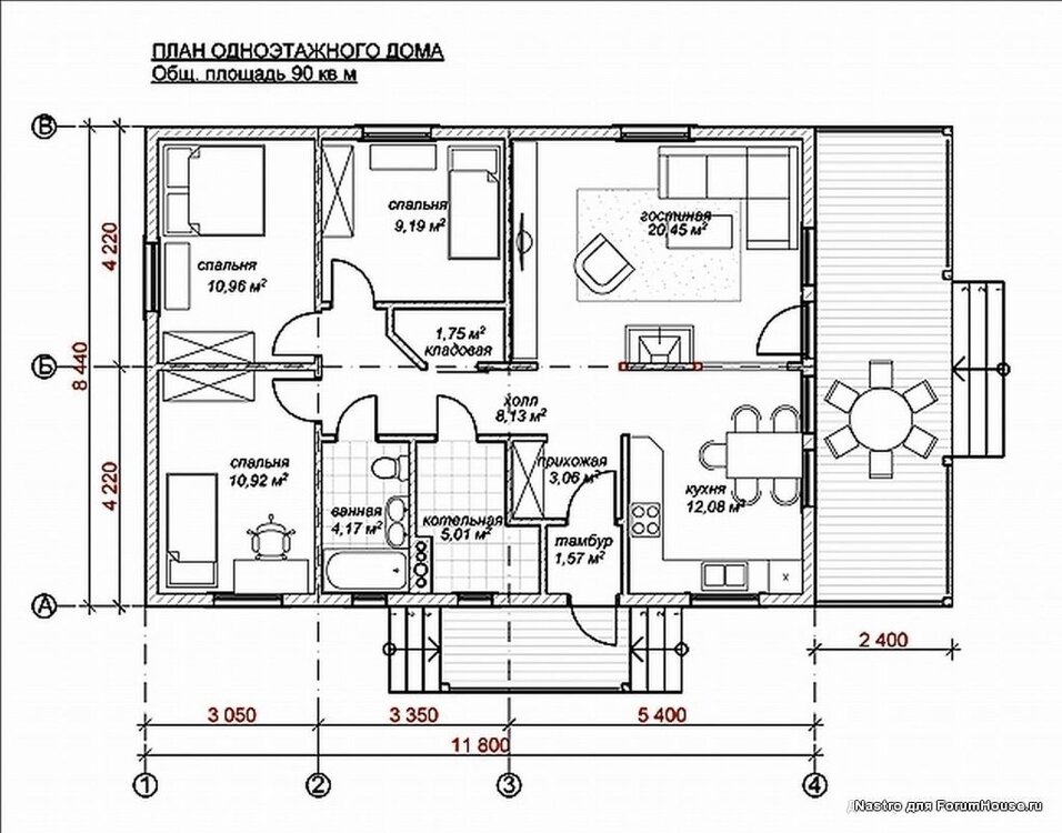
vadimv Опубліковано: 15 вересня 2017 Поділитись Опубліковано: 15 вересня 2017 Какой бы проект Вы бы выбрали или посоветовали бы?Из готовых - Z7 или его адаптацию в исполнении Татьяны5. www.stroimdom.com.ua/forum/showpost.php?p=3528208&postcount=22 А для себя (в случае семьи 2+2) строил бы что-то из этого: 2 Посилання на коментар Поділитися на інших сайтах More sharing options...
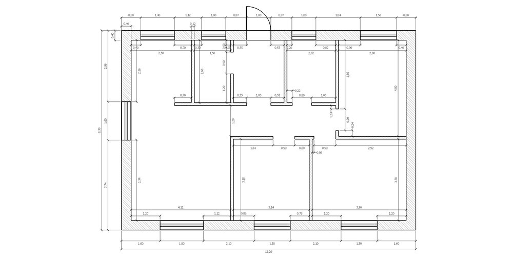
vadimv Опубліковано: 15 вересня 2017 Поділитись Опубліковано: 15 вересня 2017 А в случае 2+1 еще меньше: 2 Посилання на коментар Поділитися на інших сайтах More sharing options...
balcheg Опубліковано: 15 вересня 2017 Автор Поділитись Опубліковано: 15 вересня 2017 Спасибо большое, Вадим! Пока больше склоняюсь к Z7. А что с фермами под двухскатную крышу? Насколько читал форум, то это незначительное удорожание, а по надежности - лучше. Разве нет? Посилання на коментар Поділитися на інших сайтах More sharing options...
Татьяна5 Опубліковано: 15 вересня 2017 Поділитись Опубліковано: 15 вересня 2017 Пока больше склоняюсь к Z7. имхо - оч хороший и понятный проект то это незначительное удорожание, а по надежности - лучше. Разве нет? так и есть 2 Посилання на коментар Поділитися на інших сайтах More sharing options...
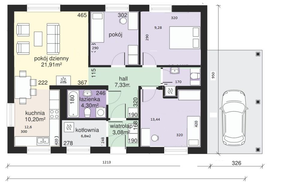
dmitriylaser Опубліковано: 15 вересня 2017 Поділитись Опубліковано: 15 вересня 2017 Пока больше склоняюсь к Z7. А что с фермами под двухскатную крышу? Сейчас на меня набросятся любители ферм но: Никто не пишет что с фермами чердак превращается в непроходимый лабиринт и хламосборник там уже не устроишь. Да и дороже это существенно. Если бюджет поджимает смотрите в сторону планировки с центральной несущей стеной. брошу еще и Вам свою интерпритацию z-7 правда здесь из расчета под вальмовую крышу. Но можно поигратся и сделать с внутренней несущей стеной под двускатку. Из плюсов-все вентканалы и дымоходы в одном стояке + каморка на кухне.ИМХО 2 Посилання на коментар Поділитися на інших сайтах More sharing options...
Татьяна5 Опубліковано: 15 вересня 2017 Поділитись Опубліковано: 15 вересня 2017 Сейчас на меня набросятся любители ферм но: Никто не пишет что с фермами чердак превращается в непроходимый лабиринт и хламосборник там уже не устроишь. Да и дороже это существенно. Если бюджет поджимает смотрите в сторону планировки с центральной несущей стеной. брошу еще и Вам свою интерпритацию z-7 правда здесь из расчета под вальмовую крышу. Но можно поигратся и сделать с внутренней несущей стеной под двускатку. Из плюсов-все вентканалы и дымоходы в одном стояке + каморка на кухне.ИМХО Наверное, потому, что нечего на чердаке хламу делать . По крайней мере, в моем доме (у меня - фермы). Для вещей есть сарай, мастерская или гаражик, пхать коробки - ну такое. Посилання на коментар Поділитися на інших сайтах More sharing options...
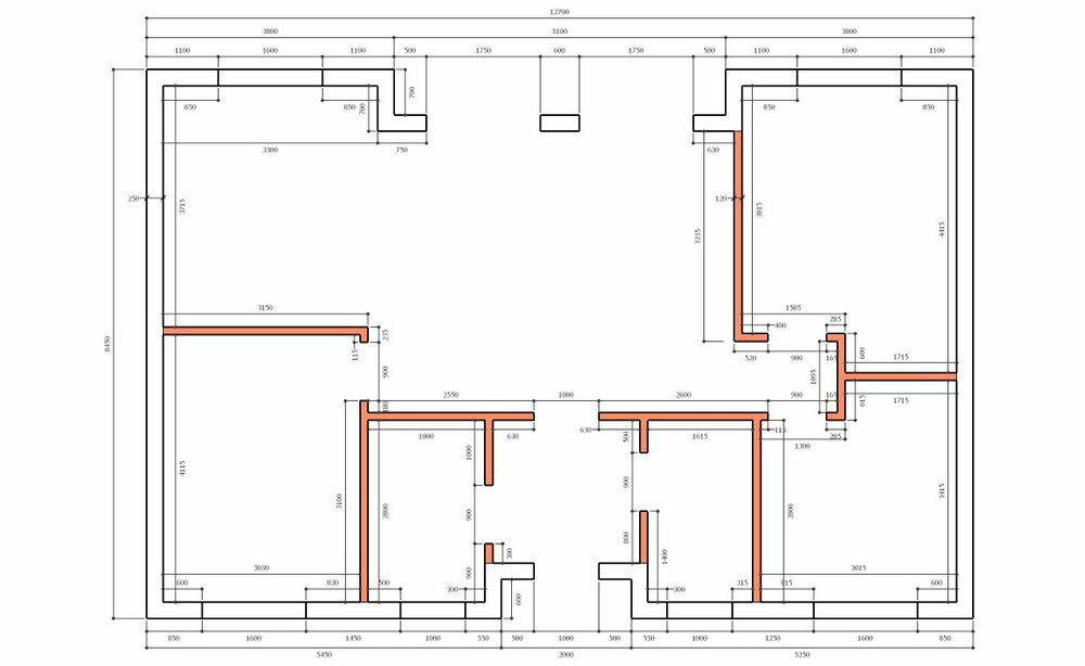
dmitriylaser Опубліковано: 15 вересня 2017 Поділитись Опубліковано: 15 вересня 2017 Вот нашел у себя еще несколько подобных планировок. Да кстати сразу бросайте схему участка с указанием сторон света иначе все эта дискуссия может оказаться бесперспективной тратой сил и времени. 1 Посилання на коментар Поділитися на інших сайтах More sharing options...
balcheg Опубліковано: 15 вересня 2017 Автор Поділитись Опубліковано: 15 вересня 2017 Вот нашел у себя еще несколько подобных планировок. Да кстати сразу бросайте схему участка с указанием сторон света иначе все эта дискуссия может оказаться бесперспективной тратой сил и времени. Последняя планировка достаточно интересная. Это какой проект или хэнд мейд? Я как совсем профан в строительстве рассматриваю проект, как некий элемент контроля строителей ... Чтоб не навешали на уши Бог весть что ... Посилання на коментар Поділитися на інших сайтах More sharing options...
mc407 Опубліковано: 15 вересня 2017 Поділитись Опубліковано: 15 вересня 2017 Вот такой домик 100м2 (дом +терраса=435 000 грн) 1-1.pdf 2-1.pdf 3-1.pdf 1 Посилання на коментар Поділитися на інших сайтах More sharing options...
dmitriylaser Опубліковано: 15 вересня 2017 Поділитись Опубліковано: 15 вересня 2017 Последняя планировка достаточно интересная. Это какой проект или хэнд мейд? типичный поляк с ТМВ водяной знак на картинке или например здесь...www.extradom.pl/projekt-domu-decyma-2-BSA2035 1 Посилання на коментар Поділитися на інших сайтах More sharing options...
Кафоля Опубліковано: 15 вересня 2017 Поділитись Опубліковано: 15 вересня 2017 Татьяна5 правильно пишет,нечего устраивать бардак на чердаке. Построил z7 в стандарном исполнении+окно в гостинной добавил. Отдельное спасибо Татьяне,пример стройки "черепашек" очень помог Да,в проекте меня всё устраивает(исходя уже из готового дома),тоже были опасения при выборе проекта. 1 Посилання на коментар Поділитися на інших сайтах More sharing options...
balcheg Опубліковано: 15 вересня 2017 Автор Поділитись Опубліковано: 15 вересня 2017 типичный поляк с ТМВ водяной знак на картинке или например здесь...www.extradom.pl/projekt-domu-decyma-2-BSA2035 Вы правы www.tmv.com.ua/proekty-domov-Decyma+2 Подумаю и над этим вариантом. Правда он выглядит менее бюджетным Добавлено через 1 минуту Вот такой домик 100м2 (дом +терраса=435 000 грн) Это Вы все работы сами проводили и когда была стройка? при каком курсе? Посилання на коментар Поділитися на інших сайтах More sharing options...
mc407 Опубліковано: 15 вересня 2017 Поділитись Опубліковано: 15 вересня 2017 Это Вы все работы сами проводили и когда была стройка? при каком курсе? цена актуальна, 3 дома построенных Посилання на коментар Поділитися на інших сайтах More sharing options...
vadimv Опубліковано: 16 вересня 2017 Поділитись Опубліковано: 16 вересня 2017 (змінено) Подумаю и над этим вариантом. Правда он выглядит менее бюджетным ИМХО, он вообще не выглядит бюджетным. Если опасаетесь "примкнуть к числу тех людей, которые ввязываются в стройку и в итоге не тянут его достроить до конца, оказываясь и без дома, и без денег", то лучше от оригинального Z7 в дебри усложнения и удорожания далеко не отходить. А еще лучше идти в сторону упрощения и уменьшения хотелок. И еще тут правильно заметили, что нужен план участка и ориентация по сторонам света. Т.к. если фасад с юга, то Z7 и не подойдет. Змінено 16 вересня 2017 користувачем vadimv 1 Посилання на коментар Поділитися на інших сайтах More sharing options...
baldegor Опубліковано: 16 вересня 2017 Поділитись Опубліковано: 16 вересня 2017 Почему с односкатной крышей варианты не рассматриваются? Посилання на коментар Поділитися на інших сайтах More sharing options...
balcheg Опубліковано: 16 вересня 2017 Автор Поділитись Опубліковано: 16 вересня 2017 Почему с односкатной крышей варианты не рассматриваются? Я такого не говорил )) рассматриваю все варианты .. я в поиске )) Добавлено через 23 минуты ИМХО, он вообще не выглядит бюджетным. Если опасаетесь "примкнуть к числу тех людей, которые ввязываются в стройку и в итоге не тянут его достроить до конца, оказываясь и без дома, и без денег", то лучше от оригинального Z7 в дебри усложнения и удорожания далеко не отходить. А еще лучше идти в сторону упрощения и уменьшения хотелок. И еще тут правильно заметили, что нужен план участка и ориентация по сторонам света. Т.к. если фасад с юга, то Z7 и не подойдет. А чего не подойдет? Вроде по солнцу напряга не будет .. чисто из интереса спрашиваю Посилання на коментар Поділитися на інших сайтах More sharing options...
vadimv Опубліковано: 17 вересня 2017 Поділитись Опубліковано: 17 вересня 2017 (змінено) Почему с односкатной крышей варианты не рассматриваются?ИМХО, односкатная крыша является рациональным решением для относительно узких строений, метров так на 4-6. Нарисуйте односкатку на 10-12 метрах и вы увидите, какой высоты стену нужно шуровать для получения нужного уклона. А это лишний материал и работа. Которых не нужно при двускатке. А чего не подойдет? Вроде по солнцу напряга не будет .. Ну как жеж - если вход с юга, получается кухня на юг (не очень хорошо), а на север гостиная и две спальни (очень нехорошо). И полное отсутствие света с востока и запада (утром и вечером). Так а у вас фасад с какой стороны? Змінено 17 вересня 2017 користувачем vadimv 2 Посилання на коментар Поділитися на інших сайтах More sharing options...
balcheg Опубліковано: 17 вересня 2017 Автор Поділитись Опубліковано: 17 вересня 2017 ИМХО, односкатная крыша является рациональным решением для относительно узких строений, метров так на 4-6. Нарисуйте односкатку на 10-12 метрах и вы увидите, какой высоты стену нужно шуровать для получения нужного уклона. А это лишний материал и работа. Которых не нужно при двускатке. Ну как жеж - если вход с юга, получается кухня на юг (не очень хорошо), а на север гостиная и две спальни (очень нехорошо). И полное отсутствие света с востока и запада (утром и вечером). Так а у вас фасад с какой стороны? Ну получается на юго-западе. Приложил схему, должно быть понятно. Посилання на коментар Поділитися на інших сайтах More sharing options...
vadimv Опубліковано: 17 вересня 2017 Поділитись Опубліковано: 17 вересня 2017 Ну получается на юго-западе.Да, вариант не самый лучший - получается, что самая теплая и солнечная сторона выходит на улицу. Плюс участок узковат. Если поставить на нем Z7, то в гостиной и спальнях с северо-восточной стороны солнце будет только летом с утра. А на кухне будет жарить после обеда. Посилання на коментар Поділитися на інших сайтах More sharing options...
baldegor Опубліковано: 17 вересня 2017 Поділитись Опубліковано: 17 вересня 2017 ИМХО, односкатная крыша является рациональным решением для относительно узких строений, метров так на 4-6. Нарисуйте односкатку на 10-12 метрах и вы увидите, какой высоты стену нужно шуровать для получения нужного уклона. А это лишний материал и работа. Которых не нужно при двускатке. Совершенно верно! Но 6м х 12м самый оптимальный,как по мне,не большой бюджетный вариант с односкаткой. Если,конечно же,участок позволяет правильно расположить дом такого типа. Посилання на коментар Поділитися на інших сайтах More sharing options...
balcheg Опубліковано: 17 вересня 2017 Автор Поділитись Опубліковано: 17 вересня 2017 Да, вариант не самый лучший - получается, что самая теплая и солнечная сторона выходит на улицу. Плюс участок узковат. Если поставить на нем Z7, то в гостиной и спальнях с северо-восточной стороны солнце будет только летом с утра. А на кухне будет жарить после обеда. Плохо .. а я уже ж определился Прийдется поискать, что-то другое. А почему для Z7учаток узковат? 8 метров как никак ваканных остается. Посилання на коментар Поділитися на інших сайтах More sharing options...
Татьяна5 Опубліковано: 17 вересня 2017 Поділитись Опубліковано: 17 вересня 2017 На мой субъективный взгляд, эти домики (которые я уже построила), - удачные, как небольшие и функциональные. Они не дорогие в постройке (не путать с дешевыми) и заточены на кровельные фермы Посилання на коментар Поділитися на інших сайтах More sharing options...
Рекомендовані повідомлення
Створіть акаунт або увійдіть у нього для коментування
Ви маєте бути користувачем, щоб залишити коментар
Створити акаунт
Зареєструйтеся для отримання акаунта. Це просто!
Зареєструвати акаунтУвійти
Вже зареєстровані? Увійдіть тут.
Увійти зараз