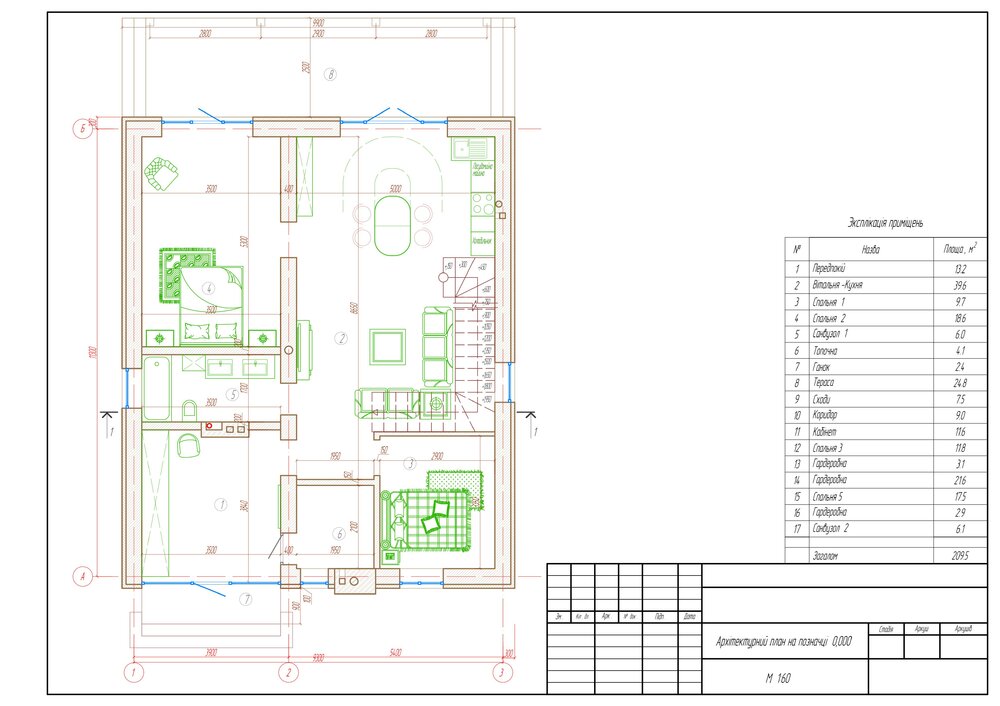
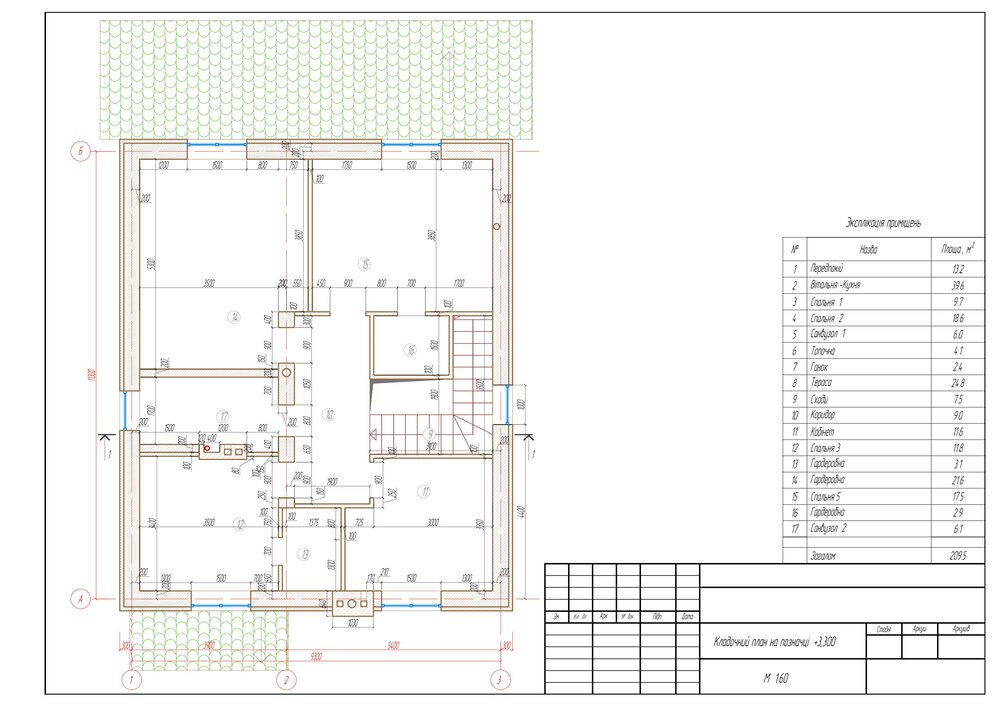
Kymsan Опубліковано: 11 жовтня 2017 Поділитись Опубліковано: 11 жовтня 2017 Коллеги, кто уже живет и пользуется различными видами вентиляций. У друга дом, хочет вентиляцию сделать.. Обратился к фирмам - все за рекуператор, с разводкой по всем комнатам и помещениям. Сумма вышла...не тянет. Да и вопрос, нужнолди так вообще. Комнаты можно проветрить всегда, или в окна поставить мини приток. И ьез вытяек оболйтись. А вот кухня, санузлы. 1. Котельная точно, тянуть выше кровли с естественной вентиляцией - будет газ.котел. Котельная 4 кв.м. ,потолок 2,80см, газкотел турбо. Достаточно ли 13х13см. вент.канал. 2. С кухни - две вытяжки. Однанад плитой, вторая общая. Обязательно ли тянуть выше кровли, или можно протянуть трубу 125 в стене на высоту 2,40м. под мауерлат и выйти на улицу - поставить клапана, а в кухне вентиляторы. чтобы не проходить кровлю и не делать двухметровый канал выше крыши. Канал будет в наружной стене((( Но разрешат ли газовщики так, ведь уже не будет естественной, только проинудительный отток. 3. Ванная - 2 отдельных канала, потянем выше кровли. Вместе с каминным дымоходом заодно. Планировка есть в приложении. Может кто знает, подскажите как правильнее. Посилання на коментар Поділитися на інших сайтах More sharing options...
Kymsan Опубліковано: 11 жовтня 2017 Автор Поділитись Опубліковано: 11 жовтня 2017 или же не заморачяиваться с кухней. гнать канал выше кровли и будет естественная выточная вентиляция. при желании можно поставить вентилятор с обратным клапаном. и не играться в игры с принудительной. все же газ.плита в кухне. Добавлено через 33 минуты еще как вариант была мысль. вытяжки с кухни горизонтальными каналами 125мм трубой под потолком протянуть в сторону камина и единым большим каналом выходить выше кровли. длина горизонтальных каналов - 6 метров тогда получается. Потянет ли естественно, или только принудительно. во-первых стена внутренняя. выше кровли буквально 1 метр дымоход. и можно наверное не утеплять снаружи. Смущает, вентканал из кухни в наружной стене - мало то го. что поднять до 2,5 метров придется, так еще и утеплять наверняка. Посилання на коментар Поділитися на інших сайтах More sharing options...
SON Опубліковано: 11 жовтня 2017 Поділитись Опубліковано: 11 жовтня 2017 Достаточно ли 13х13см. вент.канал. Да. К кирпичным каналам 1/2*1/2 кирпича у газовщиков вопросов не возникает. Но разрешат ли газовщики так, ведь уже не будет естественной, только проинудительный отток. Не разрешат. За деньги могут закрыть глаза, потом доить всю дорогу. длина горизонтальных каналов - 6 метров тогда получается. Потянет ли естественно, или только принудительно. Дурная затея. Смущает, вентканал из кухни в наружной стене - мало то го. что поднять до 2,5 метров придется, так еще и утеплять наверняка. В чем проблема утеплить ? Посилання на коментар Поділитися на інших сайтах More sharing options...
Kymsan Опубліковано: 11 жовтня 2017 Автор Поділитись Опубліковано: 11 жовтня 2017 значит выгнать кирпичный вентаканал, утеплить 50 мм ватой, и обшить металопрофилем? Пусть будет естественная выточная вентиляция. Мне кажется, меньше автоматики в системе - тем она надежней. Может не такая комфортная, как с рекуператором. Но во всех квартирах рабочая, если проветривать помещения. Посилання на коментар Поділитися на інших сайтах More sharing options...
SON Опубліковано: 11 жовтня 2017 Поділитись Опубліковано: 11 жовтня 2017 значит выгнать кирпичный вентаканал, утеплить 50 мм ватой, и обшить металопрофилем? Лучше утеплить ЭППСом, поверх поклеить клинкерную плиточку "под кирпич". Смотрится гораздо лучше чем труба обшитая профнастилом. Но во всех квартирах рабочая, если проветривать помещения. Несмотря на капитализм и доступность технологий 99% жилья имеют естественную вентиляцию. :D 1 Посилання на коментар Поділитися на інших сайтах More sharing options...
Рекомендовані повідомлення
Створіть акаунт або увійдіть у нього для коментування
Ви маєте бути користувачем, щоб залишити коментар
Створити акаунт
Зареєструйтеся для отримання акаунта. Це просто!
Зареєструвати акаунтУвійти
Вже зареєстровані? Увійдіть тут.
Увійти зараз