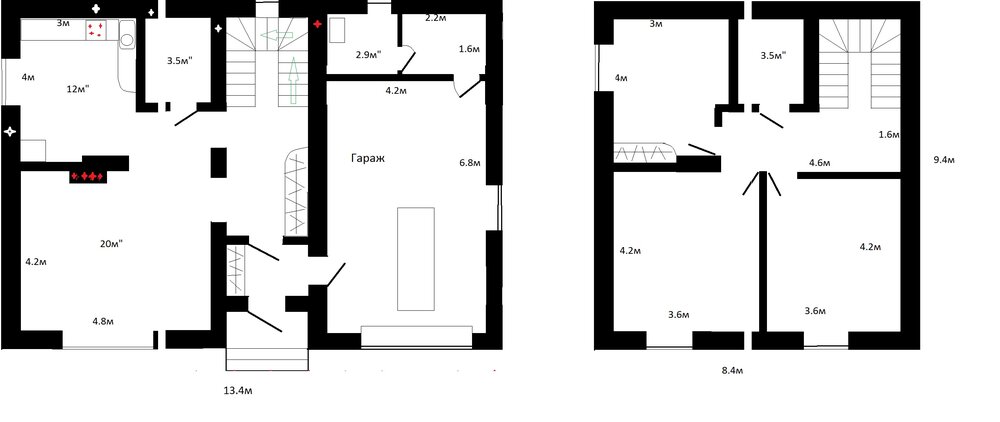
RUBRUM Опубліковано: 14 жовтня 2017 Поділитись Опубліковано: 14 жовтня 2017 Как лучше сделать фундамент, собираюсь строиться и возник вопрос как сделать фундамент. Регион Одесская область, почва глина, размеры дома 13.4 на 9.4 метра из них дом в два этажа 8.4 на 9.4 и сбоку 5 на 9.4 гараж. Так вот под гаражом хочу сделать подвал, можно ли фундамент под гаражом сделать глубиной 2.1-2.2м а под домом вдвое меньше то есть получится ступеньчатый. Не пойдут трещины между домом и гаражом из за разной глубины ленты и нагрузок от дома и гаража? Делать полный подвал под всем дорого и не нужна такая площадь. Что подскажете. Посилання на коментар Поділитися на інших сайтах More sharing options...
Andrei constructor Опубліковано: 15 жовтня 2017 Поділитись Опубліковано: 15 жовтня 2017 Делать полный подвал под всем дорого и не нужна такая площадь. Для чего нужен подвал? его назначение? Добавлено через 3 минуты Имхо не стоит возводить двухэтажный дом без 1-й спальни на 1-м этаже. 2 Посилання на коментар Поділитися на інших сайтах More sharing options...
ИльЯ С Опубліковано: 15 жовтня 2017 Поділитись Опубліковано: 15 жовтня 2017 Как лучше сделать фундамент, собираюсь строиться и возник вопрос как сделать фундамент. Регион Одесская область, почва глина, размеры дома 13.4 на 9.4 метра из них дом в два этажа 8.4 на 9.4 и сбоку 5 на 9.4 гараж. Так вот под гаражом хочу сделать подвал, можно ли фундамент под гаражом сделать глубиной 2.1-2.2м а под домом вдвое меньше то есть получится ступеньчатый. Не пойдут трещины между домом и гаражом из за разной глубины ленты и нагрузок от дома и гаража? Делать полный подвал под всем дорого и не нужна такая площадь. Что подскажете. Грунты суглинок 2го типа проссадочности на вид можно это отличить. Посилання на коментар Поділитися на інших сайтах More sharing options...
RUBRUM Опубліковано: 15 жовтня 2017 Автор Поділитись Опубліковано: 15 жовтня 2017 Для чего нужен подвал? его назначение? Лишнее хозпомещение под гаражом ни когда не помешает, банки, закрутки, сменную резину диски хранить. Думаю залить плиту на 2 метровой глубине и поднять стены подвала фбсками, пол гаража из плит перекрытия. Ну и сам дом строить на плитном фундаменте тоже, только плита уже без подвала и на 100-150мм эппс утеплителе. Плиту дома стыковать с гаражом через деформационный шов ( к примеру 50мм эппс подойдет?) Как такой вариант? Посилання на коментар Поділитися на інших сайтах More sharing options...
SergeyNikolaevich Опубліковано: 15 жовтня 2017 Поділитись Опубліковано: 15 жовтня 2017 Только результаты геологии скажут можно ли. По сути на глубине подвала может быть совсем другой грунт, с другой просадочной характеристикой и влажности. Если же грунт один и тот же, то нет никаких проблем, что под подвал что под дом у вас будет фундамент ниже глубины промерзания. Посилання на коментар Поділитися на інших сайтах More sharing options...
RUBRUM Опубліковано: 15 жовтня 2017 Автор Поділитись Опубліковано: 15 жовтня 2017 Грунт глина твердая , делал у себя на участке колодец для ввода воды, копал экскаватор на 2 метра. Все сухо, у соседей подвал вроде тоже без проблем. После 80 ковша 6 метровую траншею засыпать было весело. Колодец выложил квадратный из красного кирпича . Посилання на коментар Поділитися на інших сайтах More sharing options...
Andrei constructor Опубліковано: 15 жовтня 2017 Поділитись Опубліковано: 15 жовтня 2017 Лишнее хозпомещение под гаражом ни когда не помешает, банки, закрутки, сменную резину диски хранить. Тогда такого, моей конструкции, вполне вам хватит: gidproekt.com/proekt-pogreba-vosmerka-pogreb-iz-zhb-kolec.html Сейчас его возводим в Харькове. Этот вариант даст возможность сэкономить много денег. На сэкономленные лучше расширьте дом. Посилання на коментар Поділитися на інших сайтах More sharing options...
SergeyNikolaevich Опубліковано: 15 жовтня 2017 Поділитись Опубліковано: 15 жовтня 2017 Грунт глина твердая , делал у себя на участке колодец для ввода воды, копал экскаватор на 2 метра. Все сухо, у соседей подвал вроде тоже без проблем. После 80 ковша 6 метровую траншею засыпать было весело. Колодец выложил квадратный из красного кирпича . ну так то визуально можно отличить, но все же пусть хотя бы один керн сделают для геологического изыскания. Потому что может быть какой то из слоев более рыхлый и тогда на нем будет больше просадка чем на другом. Оно вам надо на этапе выстроенной коробки? Геология это так дешево по сравнению с возможным риском поиметь трещину в доме. Посилання на коментар Поділитися на інших сайтах More sharing options...
trianom Опубліковано: 17 жовтня 2017 Поділитись Опубліковано: 17 жовтня 2017 (змінено) Думаю залить плиту на 2 метровой глубине и поднять стены подвала фбсками, пол гаража из плит перекрытия. Ну и сам дом строить на плитном фундаменте тоже, только плита уже без подвала и на 100-150мм эппс утеплителе. Плиту дома стыковать с гаражом через деформационный шов ( к примеру 50мм эппс подойдет?) Как такой вариант? Имхо, вариант не очень, так как основная часть дома (два этажа как никак) будет передавать на основание фундаментов бОльшие нагрузки по сравнению с нагрузками от гаража и при этом подошва фундамента будет залегать выше по сравнению с подошвой фундамента подвала. По-хорошему осадочный деформационный шов в данном случае потребует устройство пары параллельных стен между гаражом и домом. Чтобы избежать этого в таких случаях обычно перепад по глубине заложения фундамента решают устройством в ленточном (монолитном или из сборных фундаментных блоков) фундаменте уступов. Ну или же стены подвала делать монолитными железобетонными и фундаментную плиту под основной дом жестко заделывать (анкеровкой арматурных выпусков из стены в плиту) в общую фундаментную стену с гаражем. Также полагаю (особенно если основание фундаментов сложено не просадочными глинистыми грунтами - Одесская губерния к сожалению частенько "радует" своих застройщиков просадочными грунтами), что вариант устройства плитных монолитных фундаментов будет дороже варианта с ленточным фундаментом и полами по грунту. Змінено 17 жовтня 2017 користувачем trianom Посилання на коментар Поділитися на інших сайтах More sharing options...
ИльЯ С Опубліковано: 18 жовтня 2017 Поділитись Опубліковано: 18 жовтня 2017 Для чего нужен подвал? его назначение? Добавлено через 3 минуты Имхо не стоит возводить двухэтажный дом без 1-й спальни на 1-м этаже. По всей видимости ТС предусматривает бассейн .Так как пишут ,что грунты глина.Читая всю тему понимаю ,что это все же не глина ,а суглинок. Посилання на коментар Поділитися на інших сайтах More sharing options...
SergeyNikolaevich Опубліковано: 18 жовтня 2017 Поділитись Опубліковано: 18 жовтня 2017 Трудно понять для чего именно ТС нужен тот подвал, но если для него нет никакой конструктивной целесообразности, то я горячо рекомендую подвал не делать вообще: 1) это дорого (котлован, вывоз грунта, обустройство и подача раствора и материалов, гидроизоляция, утепление(?)) 2) все равно это неполноценное помещение 3) возможные проблемы в эксплуатации в будущем Мне свой подвал пришлось делать из за плохой геологии. Но если бы не она, то я бы лучше еще один этаж сверху построил чем подвал 1 Посилання на коментар Поділитися на інших сайтах More sharing options...
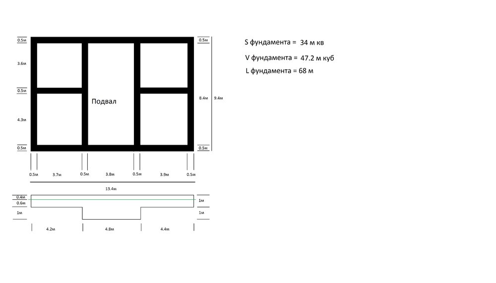
RUBRUM Опубліковано: 24 жовтня 2017 Автор Поділитись Опубліковано: 24 жовтня 2017 Добрый вечер. Созрел новый план фундамента, знатоки оцените и раскритикуйте. Подвал будет в центре дома примерно на 1/3 площади глубина примерно 2 метра, под прихожей и санузлом. С права и лева фундамент обычная лента то есть котлован в 3 раза примерно меньше площади дома, заглубление примерно 60-80 см цоколь 40-50 см плюс плиты 22см, по периметру буду засыпать чтоб не много поднять дом. Чистовой пол тогда выйдет 40 см где то. Вопрос следующий можно ли сделать подошву фундамента ступенькой как на рисунке? Дома на склонах строят, но там ступени делают не более 30 см что б дом не повело, мой учачток ровный , все эти движения ради частичного подвала. И какой вариант подошвы правильный где угол 90 или 45 градусов? Посилання на коментар Поділитися на інших сайтах More sharing options...
bondmaster Опубліковано: 27 жовтня 2017 Поділитись Опубліковано: 27 жовтня 2017 Добрый вечер. Созрел новый план фундамента, знатоки оцените и раскритикуйте. Подвал будет в центре дома примерно на 1/3 площади глубина примерно 2 метра, под прихожей и санузлом. С права и лева фундамент обычная лента то есть котлован в 3 раза примерно меньше площади дома, заглубление примерно 60-80 см цоколь 40-50 см плюс плиты 22см, по периметру буду засыпать чтоб не много поднять дом. Чистовой пол тогда выйдет 40 см где то. Вопрос следующий можно ли сделать подошву фундамента ступенькой как на рисунке? Дома на склонах строят, но там ступени делают не более 30 см что б дом не повело, мой учачток ровный , все эти движения ради частичного подвала. И какой вариант подошвы правильный где угол 90 или 45 градусов? я бы сделал так: 1. Залил ленточный фундамент (а лучше сплошной под весь гараж с армировкой в 2 сетки, все зависит от финансов) под гараж 60*30 (ширина*высота/каркас с 4 продольными прутами снизу и сверху + поперечки) 2. Смонтировал 1 или 2 ряда фундаментных блоков четверки в зависимости от желаемой высоты подвала 3. Засыпать пазухи вокруг блоков по периметру, хорошо протрамбовать и пролить (но перед этим сделать хорошую гидроизоляцию на битумной основе) 4. Залить по блокам монолитный пояс вместе с фундаментом под основную часть дома 5. Смонтировать ещё 2 ряда фундаментных блоков уже по всем стенам Посилання на коментар Поділитися на інших сайтах More sharing options...
Vanski Опубліковано: 28 жовтня 2017 Поділитись Опубліковано: 28 жовтня 2017 знатоки оцените и раскритикуйте Я не знаток, но у меня ступенчатый фундамент построен. 1. Чтобы оценить грунт необходимо гораздо глубже двух метров смотреть. 2. На рисунке непонятно это подошва или стена фундамента 50см, допускаю что стена, кто считал фундамент Вам??? 3. Если ступенчатый то только монолит правильный угол 90 (моё субьективное). Вот например снимут немного больше грунта в углу, подсыпят, протрамбуют плохо или вообще никак, а осенью водичка, грунт уплотнится (дренажа н предусмотрено, не так ли?). Бац, в стене трещинка, вертикальная. 4. Если немаловажен финансовый аспект, а грунт как озера в Африке (сухой), рассмотрите вариант погреба под гаражом. Посилання на коментар Поділитися на інших сайтах More sharing options...
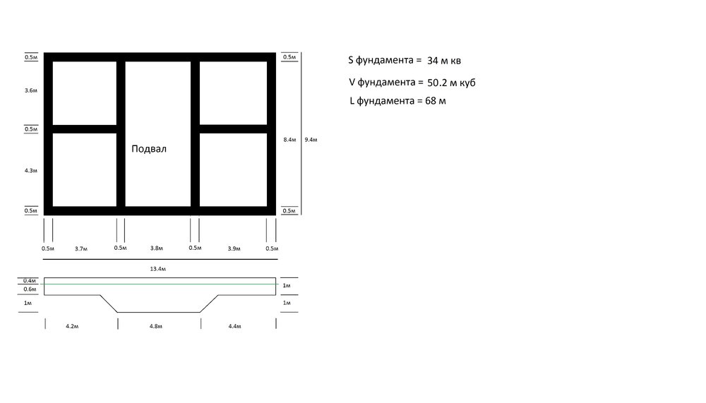
RUBRUM Опубліковано: 28 жовтня 2017 Автор Поділитись Опубліковано: 28 жовтня 2017 bondmaster Тоже продумываю этот вариант, залить сплошную подошву без ступеней шириной 60 см и по ней 2 ряда блоков 40см шириной. Получится Т образная перевернутая лента. Половину помещений засыплю и перекрою плитами, а вот как лучше организовать заливку пола в подвале и его гидроизоляцию? Примыкание к подошве ленты? И еще хочу узнать получается во втором ряду четыре ФБСки выпирают за фундамент 40-50 см По ним будет армопояс 40см , можно ли единым целым залить крыльцо со ступенями выходящее из армопояса и с частичным опиранием на две фбски ? Посилання на коментар Поділитися на інших сайтах More sharing options...
RUBRUM Опубліковано: 13 листопада 2017 Автор Поділитись Опубліковано: 13 листопада 2017 Залил наконец фундаментную подушку, ширина 80 см х высота 30 см , армирование 4 нитки ф12 низ и 4 нитки ф12 верх. Фундамент будет т образный , вопрос нужно ли раскатывать рулонную горизонтальную изоляцию под нижний ряд блоков ФБС по ленте? Армопояс гаража получается ш образным думаю заложить метровые куски арматуры под верхний ряд блоков ( под домом на 1 ряд выше) и вязать к выпускам армопояс гаража. периметр дома армопояс замкнутый. Посоветуйте хорошую вертикальную изоляцию для ФБСок. Посилання на коментар Поділитися на інших сайтах More sharing options...
Рекомендовані повідомлення
Створіть акаунт або увійдіть у нього для коментування
Ви маєте бути користувачем, щоб залишити коментар
Створити акаунт
Зареєструйтеся для отримання акаунта. Це просто!
Зареєструвати акаунтУвійти
Вже зареєстровані? Увійдіть тут.
Увійти зараз