Anyska Опубліковано: 17 березня 2018 Поділитись Опубліковано: 17 березня 2018 Допоможіть, будь ласка! Купили однокімнатну квартиру у забудовника в будинку, який ще будується! Подивились по кресленню і зрозуміли, що можна зробити з однієї кімнати дві, шляхом поставлення перегородки та вікна. Звернулись до забудовника - він відмовляється це робити, без об'єктивних на те причин. Звернулись до архітектора проекту, який в свою чергу сказав що це можливо, але назвав суму в пів вартості усієї квартири! Як можна вийти з цієї ситуації? Невже нема, чітко визначених законом цін на внесення змін до плану, і архітектор має право називати ціни які йому впали з неба? Можливо є ще якісь варіанти добитись омріяного та внесення змін до плану квартири? Поділіться будь ласка порадами та особистим досвідом Посилання на коментар Поділитися на інших сайтах More sharing options...
Музей Опубліковано: 17 березня 2018 Поділитись Опубліковано: 17 березня 2018 Допоможіть, будь ласка! Купили однокімнатну квартиру у забудовника в будинку, який ще будується! Поди.. Можливо є ще якісь варіанти добитись омріяного та внесення змін до плану квартири? Поділіться будь ласка порадами та особистим досвідом Покажіть Ваш план. 1 Посилання на коментар Поділитися на інших сайтах More sharing options...
apxitektop.s Опубліковано: 19 березня 2018 Поділитись Опубліковано: 19 березня 2018 Звернулись до архітектора проекту, який в свою чергу сказав що це можливо, але назвав суму в пів вартості усієї квартири! Як можна вийти з цієї ситуації? Невже нема, чітко визначених законом цін на внесення змін до плану, і архітектор має право називати ціни які йому впали з неба? Можливо є ще якісь варіанти добитись омріяного та внесення змін до плану квартири? Поділіться будь ласка порадами та особистим досвідом щодо перегородок, то вам дозвіл на то від забудовника не є потрібним, але вже на етапі здачі будинка в експлуатацію, архітектор назвав вам ціну, шоб ви відстали, бо вносити корективи в проект, то ще той геморой, а от стосовно зміни вікон, їх площі і т.д, варто переглянути свої побажання, все то є можливим відносно, але потрібен проект, та купа узгоджень і точно не на цьому етапі, коли будівлю ще не здано, а забудовник вам відмовив, з вікном дійсно проблема. Перепланування і пропрацювання інтер'єру, звісно не коштує як пів вашої квартири, хіба що вона вам обійшлась в 5 тис. уе ), але й та ціна вже є великою , хіба як ви хотіли б все з ліпнини і т.д, чи інші складні елементи у розробці інтерєру. Стосовно зміни вікон, то давайте розглянемо такий приклад, якби всі сусіди ваші в тому будинку, хотіли б, щоб вікна були в тому місці, і тої форми, яку вони хочуть ), то той би фасад був схожий на суцільний жах. Посилання на коментар Поділитися на інших сайтах More sharing options...
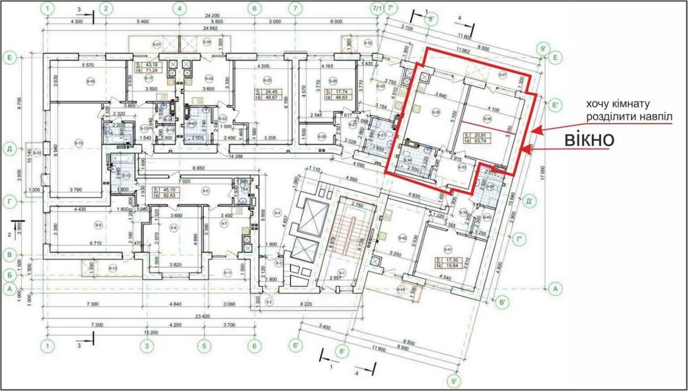
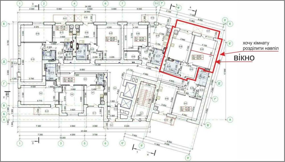
Anyska Опубліковано: 26 березня 2018 Автор Поділитись Опубліковано: 26 березня 2018 Перегляньте, будь ласка, план Посилання на коментар Поділитися на інших сайтах More sharing options...
Anyska Опубліковано: 26 березня 2018 Автор Поділитись Опубліковано: 26 березня 2018 (змінено) щодо перегородок, то вам дозвіл на то від забудовника не є потрібним, але вже на етапі здачі будинка в експлуатацію, архітектор назвав вам ціну, шоб ви відстали, бо вносити корективи в проект, то ще той геморой, а от стосовно зміни вікон, їх площі і т.д, варто переглянути свої побажання, все то є можливим відносно, але потрібен проект, та купа узгоджень і точно не на цьому етапі, коли будівлю ще не здано, а забудовник вам відмовив, з вікном дійсно проблема. Перепланування і пропрацювання інтер'єру, звісно не коштує як пів вашої квартири, хіба що вона вам обійшлась в 5 тис. уе ), але й та ціна вже є великою , хіба як ви хотіли б все з ліпнини і т.д, чи інші складні елементи у розробці інтерєру. Стосовно зміни вікон, то давайте розглянемо такий приклад, якби всі сусіди ваші в тому будинку, хотіли б, щоб вікна були в тому місці, і тої форми, яку вони хочуть ), то той би фасад був схожий на суцільний жах. проблема в наступному, що наскільки мені відомо, виправте мене якщо я помиляюсь, зміни які я хочу внести до проекту своєї квартири, найлегше (для мене, звичайно) зробити саме зараз, на етапі коли ще будинок не побудований і з легкістю можна зробити то вікно і перегородку, а після здачі, це буде коштувати в рази дорожче і в рази тяжче! Скидаю Вам план, для перегляду. Дякую) Змінено 26 березня 2018 користувачем Anyska Посилання на коментар Поділитися на інших сайтах More sharing options...
apxitektop.s Опубліковано: 26 березня 2018 Поділитись Опубліковано: 26 березня 2018 проблема в наступному, що наскільки мені відомо, виправте мене якщо я помиляюсь, зміни які я хочу внести до проекту своєї квартири, найлегше (для мене, звичайно) зробити саме зараз, на етапі коли ще будинок не побудований і з легкістю можна зробити то вікно і перегородку, а після здачі, це буде коштувати в рази дорожче і в рази тяжче! Скидаю Вам план, для перегляду. Проект було погоджено і надано дозвіл на будівництво, ви хочете внести зміни в існуючий проект на цьому етапі, поставити те вікно - тягне за собою купу проблем із узгодженнями, а тому вам замовник то ніколи не погодить. Окрім того я бачу, що то торцева стіна блоксекції, можливо у забудовника є план "Черга будівництва 2", і можливо до вашої блоксекції буде прибудова в тій черзі, в цілому, якщо ви не прокурор, суддя,або ними не є ваші близькі родичи, то вам не затвердять ті зміни щодо вікна на цей момент, можливо у майбутньому і лише після здачі будинку в експлуатацію - розробкою проекту і його погодженням... Посилання на коментар Поділитися на інших сайтах More sharing options...
Igorias Опубліковано: 26 березня 2018 Поділитись Опубліковано: 26 березня 2018 Це капітальна стіна, тому легко і просто вікно там не зробиш. Особливо на нижніх поверхах. До того ж мешканці нервуються коли хтось на 1 поверсі починає робити отвори в капітальній стіні. Заради одного клієнта ніхто не буде перейматися змінами до проекту. До того ж ви точно впевнені, що вам потрібна кімната 9 м. кв.? Законодавець приміщення в 9 м.кв. взагалі не вважає за житлове. Якщо дуже потрібне, то розгляньте можливість зміщення інснуючої перегородки за рахунок зменшення кухні та влаштування додаткової перегородки вздовж жилової кімнати та поділом існуючого вікна на 2 кімнати. Посилання на коментар Поділитися на інших сайтах More sharing options...
Anyska Опубліковано: 27 березня 2018 Автор Поділитись Опубліковано: 27 березня 2018 Проект було погоджено і надано дозвіл на будівництво, ви хочете внести зміни в існуючий проект на цьому етапі, поставити те вікно - тягне за собою купу проблем із узгодженнями, а тому вам замовник то ніколи не погодить. Окрім того я бачу, що то торцева стіна блоксекції, можливо у забудовника є план "Черга будівництва 2", і можливо до вашої блоксекції буде прибудова в тій черзі, в цілому, якщо ви не прокурор, суддя,або ними не є ваші близькі родичи, то вам не затвердять ті зміни щодо вікна на цей момент, можливо у майбутньому і лише після здачі будинку в експлуатацію - розробкою проекту і його погодженням... Прибудови до нашої секції точно не буде, тому що вона і є прибудовою вже до існуючого чотирьох підїздного будинку. На другому фото з планом видно, де той будинок межує з моїм підїздом. Мій підїзд приєднаний до того будинку, але виходить трохи вперед, і якраз моя квартира і виходить вперед, відповідно вона навіть не торкається до будинку. Добавлено через 9 минут Це капітальна стіна, тому легко і просто вікно там не зробиш. Особливо на нижніх поверхах. До того ж мешканці нервуються коли хтось на 1 поверсі починає робити отвори в капітальній стіні. Заради одного клієнта ніхто не буде перейматися змінами до проекту. До того ж ви точно впевнені, що вам потрібна кімната 9 м. кв.? Законодавець приміщення в 9 м.кв. взагалі не вважає за житлове. Якщо дуже потрібне, то розгляньте можливість зміщення інснуючої перегородки за рахунок зменшення кухні та влаштування додаткової перегородки вздовж жилової кімнати та поділом існуючого вікна на 2 кімнати. У нас квартира на 9-му поверсі 12-ти поверхового будинку. Я впевнена, що мені потрібна та кімната, іншого виходу я не бачу, як на мене, краще 2 маленькі кімнатки чим одна велика. Ваш варіант я також розглядала, але я не впевнена що це буде гарно і зручно, бо тоді кухня і кімнати будуть дуже довгі і вузькі... Можливо ви підкажете, скільки буде коштувати приблизно зробити там вікно після здачі будинку в експлуатацію? або ж скільки буде коштувати Ваш варіант перепланування? Посилання на коментар Поділитися на інших сайтах More sharing options...
Рекомендовані повідомлення
Створіть акаунт або увійдіть у нього для коментування
Ви маєте бути користувачем, щоб залишити коментар
Створити акаунт
Зареєструйтеся для отримання акаунта. Це просто!
Зареєструвати акаунтУвійти
Вже зареєстровані? Увійдіть тут.
Увійти зараз