Tanuuusha Опубліковано: 26 липня 2018 Поділитись Опубліковано: 26 липня 2018 Наконец наступил момент в моей жизни, когда я могу позволить себе начать строить дом мечты. Долго выбирала из огромного разнообразия идей, проектов, стилей и т.д. Остановилась на проекте с применением технологий энергоэффективности и ориентации дома на юг большими панорамными окнами. Участок выбирала долго, нашла как раз такой, у которого южная сторона свободна от застроек и выходит в лес. Но у него есть один ньюанс : когда-то на этом месте было русло реки, после постройки дамбы 60 лет назад район застроился , но присутствуют высокие грунтовые воды. Так как я не строитель, то даже имея на руках проект, мне сложно понять по проекту ли мой прораб строит, и не нарушает ли технологию. Хочу попробовать вести мою первую в жизни тему на форуме и надеюсь, что добрые люди, которые считают себя специалистами заинтересуются моей темой 6 Посилання на коментар Поділитися на інших сайтах More sharing options...
Tanuuusha Опубліковано: 26 липня 2018 Автор Поділитись Опубліковано: 26 липня 2018 Таким мне достался участок. Местные жители щедро сносили свой мусор. Для анализа грунта выкопали яму глубиной 2,5 метра. Результат малехо напугал. Подозреваю, что обнаружили плавун. было принято решение строить дом с применением монолитного плитного фундамента Посилання на коментар Поділитися на інших сайтах More sharing options...
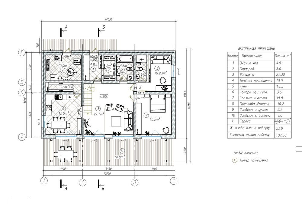
Tanuuusha Опубліковано: 26 липня 2018 Автор Поділитись Опубліковано: 26 липня 2018 Проект выбрала такой - среднего размера дом, площадь застройки 14х8 метров. Окна спальни, кухни и зала выходят в сад (на южную сторону). На северной стороне только входная дверь, нет ни одного окна. 2 Посилання на коментар Поділитися на інших сайтах More sharing options...
Tanuuusha Опубліковано: 26 липня 2018 Автор Поділитись Опубліковано: 26 липня 2018 Так как начала вести тему спустя 4-ре месяца после старта стройки, быстренько расскажу что было сделано. Вырыли котлован. на дно положили геотекстиль. Засыпали песком. Песка по проекту 40 см. Насыпали 100 см, так как котлован копали пока не кончился плодородный слой и еще какой -то слой (короче до глины), вот и получился 1 метр. На песок потратились немеряно. Один только трактор сьел кучу денег 1 Посилання на коментар Поділитися на інших сайтах More sharing options...
Tanuuusha Опубліковано: 26 липня 2018 Автор Поділитись Опубліковано: 26 липня 2018 Потом щебеночка. 30-40 см. По ней прошлись виброногой. Кстати, песок и щебень тоже разделили геотекстилем. После геотекстиля сделали закладные - канализацию, водоподведение, и на всякий случай гильзу для теплового насоса Посилання на коментар Поділитися на інших сайтах More sharing options...
Tanuuusha Опубліковано: 26 липня 2018 Автор Поділитись Опубліковано: 26 липня 2018 накрыли снова геотекстилем и залили тощий бетон- как площадку для того, чтоб уложить утеплитель под плиту. Потом покрыли рубероидом как гидроизоляцией и приклеили экструдированый пенополистирол 100мм. Да, все говорили, что экструдер сам является гидроизоляцией, но мой архитектор настоял, так как экструдер все-таки имеет какой-то малый пропуск воды. 3 Посилання на коментар Поділитися на інших сайтах More sharing options...
Tanuuusha Опубліковано: 26 липня 2018 Автор Поділитись Опубліковано: 26 липня 2018 приступили к монтажу арматуры. Строители долго удивлялись, что мы настояли использовать пластиковые подставки. По проекту архитектор заложил марку бетона М350. Строители с опаской начали меня отговаривать. Типа слишком высокая марка, слишком большая перестраховка, типа застынет быстрее, чем разровняем. Но я не рискнула идти наперекор просчетам, и оплатила за М 350. И, кстати, вместе с бетоном попросила привезти их лабораторную форму, для отбора пробы. Спустя месяц поехала, ее проверить. Оказался М300. ну, я и тому рада, так как по дороге водителя видели подливающего воду в миксер. Вот уж народ, ничем его не прошибешь, ни угрозами, ни просьбами, все-равно где-то украдут 8 Посилання на коментар Поділитися на інших сайтах More sharing options...
dushes86 Опубліковано: 26 липня 2018 Поділитись Опубліковано: 26 липня 2018 Интереснпя схема армирования на последней фотке - с нитками арматуры по диагонали. На то есть причины? Посилання на коментар Поділитися на інших сайтах More sharing options...
Tanuuusha Опубліковано: 26 липня 2018 Автор Поділитись Опубліковано: 26 липня 2018 Интереснпя схема армирования на последней фотке - с нитками арматуры по диагонали. На то есть причины? ну... это так они разделили два уровня армировки. Я так думаю. Добавлено через 10 минут залили бетон.с приключениями. Одну сторону выперло. видно укрепили со слишком малым шагом. самое обидное,что со стороны террасы. Позже обьясню, почему это проблема. Одного рабочего шандарахнуло током от виброустройства, которым делали усадку. так он забросил этот вибратор, и я не знаю, чем они дальше уплотняли, или как это правильно называется.... Посилання на коментар Поділитися на інших сайтах More sharing options...
Tanuuusha Опубліковано: 26 липня 2018 Автор Поділитись Опубліковано: 26 липня 2018 одни говорили накрывать фундамент. Другие-что ненадо. Решили накрыть и поливать. Горячий стоял 3 дня. первые два- градусов 50-60 Посилання на коментар Поділитися на інших сайтах More sharing options...
Tanuuusha Опубліковано: 26 липня 2018 Автор Поділитись Опубліковано: 26 липня 2018 наступил момент покупки кирпича. По проекту полнотелый М125. Тут мне пришлось помотаться. Я живу в центральной Украине, в Полтавской области. В округе 150 км М125 нигде нет. Поехала я в Гадяч. Там завод фастался, что они лучшие в Украине по полнотелому кирпичу. Купила фуру (20 поддонов М125). Привезла. Думаю дайка проверю. ... Короче.... М68-75 :( Звоню, говорю: ребятки, анализы плохие. Отвечают - ниче не знаем. В нашей лаборатории хорошие. Ну что делать.... Купила еще Кировоградский с отверстиями, но зато гарантировано М100 Добавлено через 7 минут Спустя 3 недели после заливки фундамента начали ложить кирпич. Я знаю есть такая традиция - дать фундаменту перезимовать. Так как мой фундамент изолирован снизу от пучения грунтов, можно строить сразу 4 Посилання на коментар Поділитися на інших сайтах More sharing options...
Tanuuusha Опубліковано: 26 липня 2018 Автор Поділитись Опубліковано: 26 липня 2018 впереди залили ногу под террасу. решили периметр строить из М100, а перестенки из Гадячского 1 Посилання на коментар Поділитися на інших сайтах More sharing options...
Tanuuusha Опубліковано: 26 липня 2018 Автор Поділитись Опубліковано: 26 липня 2018 и тут начался треш. Впереди с южной стороны по проекту 4-ре окна в пол. все окна разделены между собой колонами.Их нужно вылить. Монолитные их бетона. Вылили первую колону - она получилась пузатая. Не знаю, что там случилось с их опалубкой, но раздуло ее и внутрь и наружу. Потом была попытка №2. У следующей колоны строители зачем то сняли опалубку меньше, чем через сутки. Вырвали конечно с мясом. А третью вообще повело так, что одну сторону опалубки развернуло, и она с одной стороны 250 мм, как и полагалось. А вторую сторону развернуло, и толщина увеличилась до 360 мм. Посилання на коментар Поділитися на інших сайтах More sharing options...
Tanuuusha Опубліковано: 26 липня 2018 Автор Поділитись Опубліковано: 26 липня 2018 в общем вверху над колонами планировался заливаться монолитный прогон. Но оценив качество исполнения колонн решила купить заводские прогоны и уложить 3 Посилання на коментар Поділитися на інших сайтах More sharing options...
Юрий Карпенко Опубліковано: 27 липня 2018 Поділитись Опубліковано: 27 липня 2018 а в спальне телека не будет? Посилання на коментар Поділитися на інших сайтах More sharing options...
Tanuuusha Опубліковано: 27 липня 2018 Автор Поділитись Опубліковано: 27 липня 2018 а в спальне телека не будет? опа))) такой удивительный вопрос. интересно, в связи с чем он возник? ну да ладно, отвечу. Телека не будет: в спальне, в кухне, в гостинной, в детской. Короче телека не будет. Живу без телека 10 лет. Как-то так сложилось. Все что нужно посмотреть- новости, фильм, музыка - все через комп. 11 Посилання на коментар Поділитися на інших сайтах More sharing options...
Юрий Карпенко Опубліковано: 27 липня 2018 Поділитись Опубліковано: 27 липня 2018 интересно, в связи с чем он возник В связи с тем, что судя по Вашей планировке в спальне его просто некуда впихнуть 1 Посилання на коментар Поділитися на інших сайтах More sharing options...
миг Опубліковано: 28 липня 2018 Поділитись Опубліковано: 28 липня 2018 что там случилось с их опалубкой, но раздуло ее и внутрь и наружу. Потом была попытка №2. У следующей колоны строители зачем то сняли опалубку меньше, чем через сутки. Вырвали конечно с мясом. А третью вообще повело так, что одну сторону опалубки развернуло, и она с одной стороны 250 мм, как и полагалось. А вторую сторону развернуло, и толщина увеличилась до 360 мм. ...м да,не пробывали поменять строителей:D Посилання на коментар Поділитися на інших сайтах More sharing options...
Tanuuusha Опубліковано: 31 липня 2018 Автор Поділитись Опубліковано: 31 липня 2018 ...м да,не пробывали поменять строителей:D пробовали. До фундамента работал один прораб, после фундамента второй. К обоим прорабам есть вопросы. Пока что не смогла выработать алгоритм тестирования строителей на адекватность и профессионализм. Возможно господа форумчане подскажут? Добавлено через 9 минут Так выглядит стройка сегодня. Все остановилось на том, что пока не могу найти людей, которые зальют мне армопояс. Армопояс выглядит так: по всему верху стягивается периметр с основными несущими стенами. Проблема в том, что архитектор запроектировал стяжку на негоризонтальных поверхностях. Т.е. армопояс полностью повторяет контур крыши, а он с уклоном. Три бригады походили, и сказали, что никогда так не делали и не знают как..... Вот простой теперь. Где искать умельцев? Добавлено через 1 минуту Посилання на коментар Поділитися на інших сайтах More sharing options...
Tanuuusha Опубліковано: 31 липня 2018 Автор Поділитись Опубліковано: 31 липня 2018 Вот фоточка 2 Посилання на коментар Поділитися на інших сайтах More sharing options...
Gitan Опубліковано: 31 липня 2018 Поділитись Опубліковано: 31 липня 2018 сказали, что никогда так не делали и не знают как.... Да просто. Надо накрывать короб армопояса крышкой по мере заливки. Посилання на коментар Поділитися на інших сайтах More sharing options...
миг Опубліковано: 31 липня 2018 Поділитись Опубліковано: 31 липня 2018 Проблема в том, что архитектор запроектировал стяжку на негоризонтальных поверхностях. Т.е. армопояс полностью повторяет контур крыши, а он с уклоном. Три бригады походили, и сказали, что никогда так не делали и не знают как..... ..я бы сделал армопояс только по горизонту,стропилам есть на чём лежать и опираться(четыре верхнии перемычки).По уклону это лишнее,но это моё мнение. 1 Посилання на коментар Поділитися на інших сайтах More sharing options...
Tanuuusha Опубліковано: 1 серпня 2018 Автор Поділитись Опубліковано: 1 серпня 2018 ..я бы сделал армопояс только по горизонту,стропилам есть на чём лежать и опираться(четыре верхнии перемычки).По уклону это лишнее,но это моё мнение. Ну... уже нет возможности по горизонту. Надо делать по верху. Ребята, как и где ищут строителей? Посилання на коментар Поділитися на інших сайтах More sharing options...
миг Опубліковано: 1 серпня 2018 Поділитись Опубліковано: 1 серпня 2018 Ребята, как и где ищут строителей? https://www.rabotniki.ua/price/ ...первая строчка сразу- строители. 1 Посилання на коментар Поділитися на інших сайтах More sharing options...
Tanuuusha Опубліковано: 2 серпня 2018 Автор Поділитись Опубліковано: 2 серпня 2018 www.vserabotniki.com/price/ ...первая строчка сразу- строители. обидно. Из полтавской области почти никого Посилання на коментар Поділитися на інших сайтах More sharing options...
Рекомендовані повідомлення
Створіть акаунт або увійдіть у нього для коментування
Ви маєте бути користувачем, щоб залишити коментар
Створити акаунт
Зареєструйтеся для отримання акаунта. Це просто!
Зареєструвати акаунтУвійти
Вже зареєстровані? Увійдіть тут.
Увійти зараз