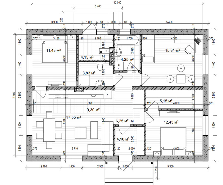
bodidron Опубліковано: 21 серпня 2018 Поділитись Опубліковано: 21 серпня 2018 для 2х взрослых и ребенка + гости насколько оптимально такой проэкт? и что изменить? не очень нравится отсутствие нормальной гардеробной комнаты + вопрос где располагать электрощиток? выделить отдельную нишу, или в топочной, но бегать через улицу включать автомат, не в кайф Посилання на коментар Поділитися на інших сайтах More sharing options...
vadimv Опубліковано: 21 серпня 2018 Поділитись Опубліковано: 21 серпня 2018 для 2х взрослых и ребенка + гостиА чем обосновано такое решение - на входе и обратной стороне окон практически нет, все окна по бокам? Посилання на коментар Поділитися на інших сайтах More sharing options...
tort Опубліковано: 21 серпня 2018 Поділитись Опубліковано: 21 серпня 2018 Проект не оптимальний у середній частині. Там тісно та темно. З минулої теми здається габарити забудови обмежені. Може трохи розширите, щоб уникнути коридора завширшки 1,03 м (мінімум 1,1м по нормам але цього дуже мало)? Якими вимогами обумовлен вихід з котельної назовні? Це не обов'язково. А ось вікно там повинно бути невеличке. Роздільні туалет та ванна то обов'язково? Пропоную взяти за основу z69 та переробити його. Хоча орієнтація за сонцем та по виходам на ганок чи во двір там трохи інша ніж у вас. Та маленький туалет по середині однозначно треба прибрати звідти. Схема ділянки є? 2 Посилання на коментар Поділитися на інших сайтах More sharing options...
bodidron Опубліковано: 22 серпня 2018 Автор Поділитись Опубліковано: 22 серпня 2018 Проект не оптимальний у середній частині. Там тісно та темно. З минулої теми здається габарити забудови обмежені. Може трохи розширите, щоб уникнути коридора завширшки 1,03 м (мінімум 1,1м по нормам але цього дуже мало)? Якими вимогами обумовлен вихід з котельної назовні? Це не обов'язково. А ось вікно там повинно бути невеличке. Роздільні туалет та ванна то обов'язково? Пропоную взяти за основу z69 та переробити його. Хоча орієнтація за сонцем та по виходам на ганок чи во двір там трохи інша ніж у вас. Та маленький туалет по середині однозначно треба прибрати звідти. Схема ділянки є? план есть, прикрепляю а каким документом нормированы помещения в ИЖС? 1 Посилання на коментар Поділитися на інших сайтах More sharing options...
bodidron Опубліковано: 22 серпня 2018 Автор Поділитись Опубліковано: 22 серпня 2018 А чем обосновано такое решение - на входе и обратной стороне окон практически нет, все окна по бокам? просто так как планировка не закончена, не располагали, окна пока на запад из кухни, и на восток из комнат Посилання на коментар Поділитися на інших сайтах More sharing options...
vadimv Опубліковано: 22 серпня 2018 Поділитись Опубліковано: 22 серпня 2018 просто так как планировка не закончена, не располагали, окна пока на запад из кухни, и на восток из комнатИз собственного опыта проживания в доме могу посоветовать сделать гостиную на юге или юго-востоке - юго-западе. Потому что зимой в доме с окнами только на восток и запад солнца почти что нет. У нас именно так, и это нифига не комфортно зимой. Летом нормально. 1 Посилання на коментар Поділитися на інших сайтах More sharing options...
bodidron Опубліковано: 22 серпня 2018 Автор Поділитись Опубліковано: 22 серпня 2018 Из собственного опыта проживания в доме могу посоветовать сделать гостиную на юге или юго-востоке - юго-западе. Потому что зимой в доме с окнами только на восток и запад солнца почти что нет. У нас именно так, и это нифига не комфортно зимой. Летом нормально. в Одессе зимой в квартире с только южными окнами жарко, а летом ночью больше 29 градусов Подумаю как так сделать 1 Посилання на коментар Поділитися на інших сайтах More sharing options...
teonit Опубліковано: 22 серпня 2018 Поділитись Опубліковано: 22 серпня 2018 2 взрослых + ребенок, и 3 спальни. Вы гостей планируете в спальной встречать? Потому что 16м2 кухни - это хорошо, но как гостиная не пойдет. Ну, и ванную вы по таким корридорам не затащите... Посилання на коментар Поділитися на інших сайтах More sharing options...
bodidron Опубліковано: 22 серпня 2018 Автор Поділитись Опубліковано: 22 серпня 2018 (змінено) 2 взрослых + ребенок, и 3 спальни. Вы гостей планируете в спальной встречать? Потому что 16м2 кухни - это хорошо, но как гостиная не пойдет. Ну, и ванную вы по таким корридорам не затащите... за коридоры спасибо, есть еще старшее поколение, которое возможно захочет жить, так как "огород" кручу верчу планировку, и как то все мешает несущая, может плясать планировку от деревянного перекрытия? Змінено 22 серпня 2018 користувачем bodidron Посилання на коментар Поділитися на інших сайтах More sharing options...
vadimv Опубліковано: 22 серпня 2018 Поділитись Опубліковано: 22 серпня 2018 в Одессе зимой в квартире с только южными окнами жарко, а летом ночью больше 29 градусов Подумаю как так сделатьВ квартире в южные окна солнце шарашит беспрепятственно, а в одноэтажном частном доме можно сделать южный свес крыши так, чтобы он зимой давал солнцу освещать помещения, а летом полностью затенял окна. 2 Посилання на коментар Поділитися на інших сайтах More sharing options...
Antrate Опубліковано: 22 серпня 2018 Поділитись Опубліковано: 22 серпня 2018 Где ві будете "тусоваться" целій день? Гостинная обязательна. И вход в котельную через отдельній вход єто не рационально. 1 Посилання на коментар Поділитися на інших сайтах More sharing options...
bodidron Опубліковано: 22 серпня 2018 Автор Поділитись Опубліковано: 22 серпня 2018 Где ві будете "тусоваться" целій день? Гостинная обязательна. И вход в котельную через отдельній вход єто не рационально. вот чуйка что заката солнца, в будние дни на работе, а в выходные, летом, на террасе Посилання на коментар Поділитися на інших сайтах More sharing options...
tort Опубліковано: 22 серпня 2018 Поділитись Опубліковано: 22 серпня 2018 а каким документом нормированы помещения в ИЖС?; вже ніяким, колись був Снип окремий. Потім окремий розділ в житловому ДБН. Тепер ДБН є тільки на квартири, але люди в них живуть таких самих габаритів і заносять такі самі меблі. Про ванну вам вже казали. Норма у данному випадку це від слова "нормально". кручу верчу планировку, и как то все мешает несущая, может плясать планировку от деревянного перекрытия?Продовжну несучу у маленькому будинку дійсно складно втулити щоб було раціо. Невпевнений що я правильно зрозумів де ви хочети вхід. З півдня? але можете обмислити такий варіант тільки мабуть зеркальний, де тераса зліва буде. (дивіться прикріплене) Він на вашу кількість приміщень. Хіба що без роздільного туалета від ванни. Це той самий перероблений зет69, на несучі поки не звертайте уваги, мабуть дві поперечних буде. Вхід в котельню можете з парадного ганку зробити, але якщо передумаєте, то і з кухні є варіант. Посилання на коментар Поділитися на інших сайтах More sharing options...
teonit Опубліковано: 22 серпня 2018 Поділитись Опубліковано: 22 серпня 2018 А не хотите взять за основу z258? 1 Посилання на коментар Поділитися на інших сайтах More sharing options...
tort Опубліковано: 22 серпня 2018 Поділитись Опубліковано: 22 серпня 2018 А не хотите взять за основу z258?Тоді вже краще 241 там більше порядку. Варіант такий самий як і 69 без малого с/в але гірший вузьким коридором. Він під вузеньку ділянку. Прохідна котельна взагалі зається що порушує норми обладнання таких приміщень, тому одні двері зайві, 253 тут виграє. Є такі емпіричні правила: -бажано не більше двох дверей від входу до будь-якого місця в будинку. -простір від входу має збільшуватися поступово від маленького приміщення тамбура чи холу до будь-якої житлової кімнати. Якщо ви втулите між ними вузький коридор, то враження від внутрішнього простору буде як від тісного. Воно не поліпшиться також якщо з великого холу потрапити в маленьку кухню або кабінет. Комор та шафів це не стосується. 4 Посилання на коментар Поділитися на інших сайтах More sharing options...
Antrate Опубліковано: 22 серпня 2018 Поділитись Опубліковано: 22 серпня 2018 а в выходные, летом, на террасе Вы серьёзно? Дождь, осень, зима, вечер. Хотя на вкус и цвет... Посилання на коментар Поділитися на інших сайтах More sharing options...
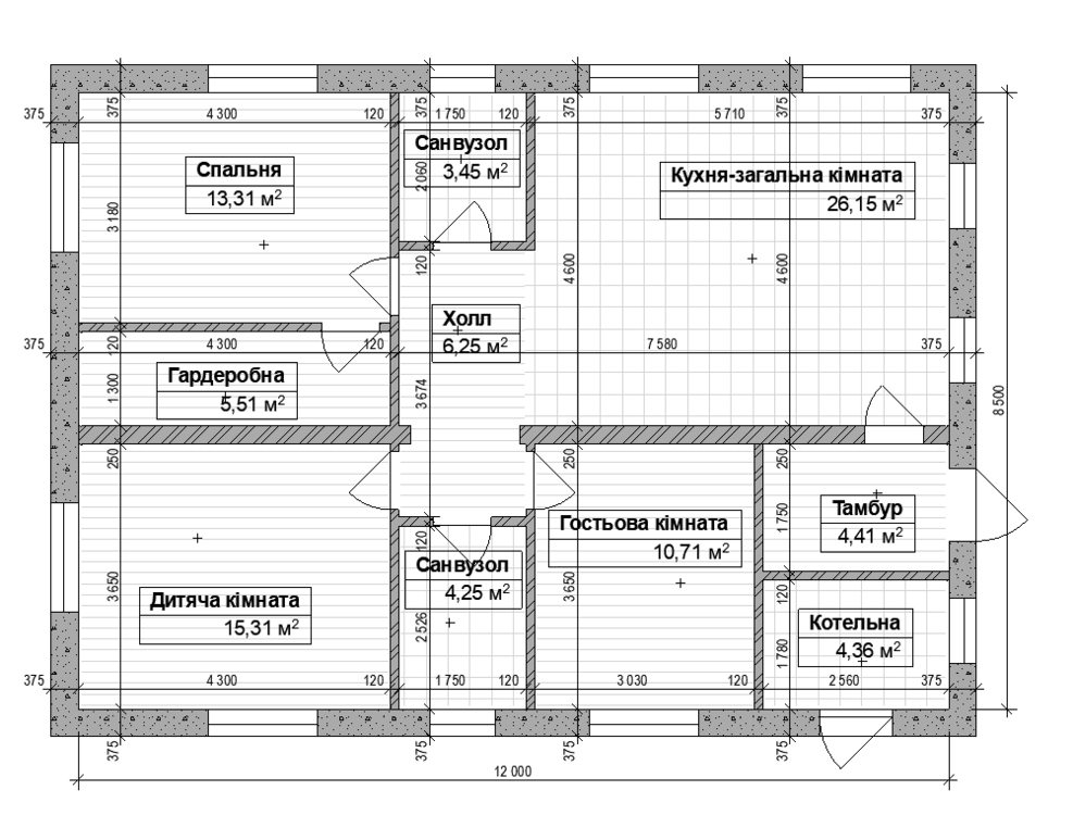
bodidron Опубліковано: 26 серпня 2018 Автор Поділитись Опубліковано: 26 серпня 2018 Обновили планировку, как по мне, нормально получилось Посилання на коментар Поділитися на інших сайтах More sharing options...
mib Опубліковано: 26 серпня 2018 Поділитись Опубліковано: 26 серпня 2018 Обновили планировку, как по мне, нормально получилось Мысленно в туалет походите по вашей планировке 1 Посилання на коментар Поділитися на інших сайтах More sharing options...
bodidron Опубліковано: 26 серпня 2018 Автор Поділитись Опубліковано: 26 серпня 2018 Мысленно в туалет походите по вашей планировке Из гостевой? Появится необходимость, появится дверь из спальни, пока не вижу смысла. Вопрос в общих габаритах помещений Посилання на коментар Поділитися на інших сайтах More sharing options...
tort Опубліковано: 26 серпня 2018 Поділитись Опубліковано: 26 серпня 2018 Обновили планировку, как по мне, нормально получилосьУточнити можна? Ви для себе робите чи комусь? Бо наприклад з моєї точки зору, там два дуже незручних момента: -прохідна кухня до спальні -дві кімнати з дублюючими функціями на маленьку площу (два с/в) 1 Посилання на коментар Поділитися на інших сайтах More sharing options...
mib Опубліковано: 26 серпня 2018 Поділитись Опубліковано: 26 серпня 2018 Из гостевой? Появится необходимость, появится дверь из спальни, пока не вижу смысла. Вопрос в общих габаритах помещений Из двух спален, одна из них гостевая про нее сильно заморачиваться не стоит а вот из той спальни что ближе к входу тоже не особо Но если нравится такой вармант и по минимуму коридоров посмотрите планировку Татьяны5 1 Посилання на коментар Поділитися на інших сайтах More sharing options...
bodidron Опубліковано: 26 серпня 2018 Автор Поділитись Опубліковано: 26 серпня 2018 Из двух спален, одна из них гостевая про нее сильно заморачиваться не стоит а вот из той спальни что ближе к входу тоже не особо Но если нравится такой вармант и по минимуму коридоров посмотрите планировку Татьяны5 Габариты не вижу смысла менять, разве что +- перегородки передвинуть В исходном варианте вот так было, что нашел в интернете Дважды отзеркалили, туалет с тамбуром перенесли, получился вход с юга, спальни на восток, на фасад. Посилання на коментар Поділитися на інших сайтах More sharing options...
mib Опубліковано: 26 серпня 2018 Поділитись Опубліковано: 26 серпня 2018 Габариты не вижу смысла менять, разве что +- перегородки передвинуть ну нет так нет но вы в своих планировках начните хотя бы мебель расставлять, многое проясниться Посилання на коментар Поділитися на інших сайтах More sharing options...
bodidron Опубліковано: 27 серпня 2018 Автор Поділитись Опубліковано: 27 серпня 2018 ну нет так нет но вы в своих планировках начните хотя бы мебель расставлять, многое проясниться Так в принципе все расставленно кроме кухни Посилання на коментар Поділитися на інших сайтах More sharing options...
vadimv Опубліковано: 27 серпня 2018 Поділитись Опубліковано: 27 серпня 2018 Обновили планировку, как по мне, нормально получилосьВ принципе, да, я бы только: - перевесил дверь в санузел с душем на правую сторону, чтобы она открывалась к стене - перевесил дверь в дальнюю спальню, чтобы она тоже открывалась к стене, а не к телевизору - сделал вход в гардеробную с двух сторон (себе так и буду делать на мансарде), чтобы для каждого был свой вход и не толкаться в дверях. И двери сдвижные в перегородку. Ну и подумал бы над вариантом поставить второй унитаз, оно иногда бывает нужно. Посилання на коментар Поділитися на інших сайтах More sharing options...
Рекомендовані повідомлення
Створіть акаунт або увійдіть у нього для коментування
Ви маєте бути користувачем, щоб залишити коментар
Створити акаунт
Зареєструйтеся для отримання акаунта. Це просто!
Зареєструвати акаунтУвійти
Вже зареєстровані? Увійдіть тут.
Увійти зараз