vadimv Опубліковано: 27 жовтня 2018 Поділитись Опубліковано: 27 жовтня 2018 Или всё-таки узкая кухня?Разве чо визуально (как расстояние между стенками). У нас примерно такое же расстояние между рабочей стенкой и полуостровом. Посилання на коментар Поділитися на інших сайтах More sharing options...
16012 Опубліковано: 27 жовтня 2018 Автор Поділитись Опубліковано: 27 жовтня 2018 А Вы можете бросить фото Вашей кухни? Зашел на Вашу тему строительства дома, там не увидел острова Посилання на коментар Поділитися на інших сайтах More sharing options...
vadimv Опубліковано: 28 жовтня 2018 Поділитись Опубліковано: 28 жовтня 2018 А Вы можете бросить фото Вашей кухни? Зашел на Вашу тему строительства дома, там не увидел островаНе остров, а полуостров. Фотки здесь https://www.stroimdom.com.ua/forum/showpost.php?p=2872283&postcount=413 Т.е. представьте, что там, где у нас поворот на полуостров, у вас угол стены. 1 Посилання на коментар Поділитися на інших сайтах More sharing options...
mib Опубліковано: 28 жовтня 2018 Поділитись Опубліковано: 28 жовтня 2018 А Вы можете бросить фото Вашей кухни?Выдвинул стул так что бы вам был понятен проход за столом Посилання на коментар Поділитися на інших сайтах More sharing options...
Юдин Денис Опубліковано: 31 жовтня 2018 Поділитись Опубліковано: 31 жовтня 2018 Помещения дневной зоны (гостиная, столовая) лучше располагть на юго-запад, что бы солнце садилось в гостиной, так экономим свет и обогревание. Можно предусмотреть один сан.узел со входом из хозяйской спальни, второй из коридора. Обустроить лаз на чердак, либо лестницу, с возможностью адаптировать чердак под жилой 1 Посилання на коментар Поділитися на інших сайтах More sharing options...
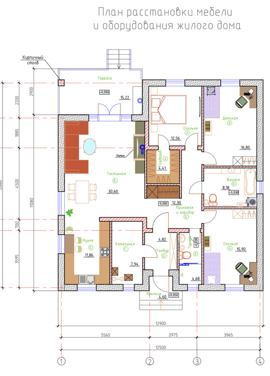
16012 Опубліковано: 19 листопада 2018 Автор Поділитись Опубліковано: 19 листопада 2018 добрый вечер форумчане))). После нескольких недель обсуждений пришли к вот такому виду дома. Можете его покритиковать? (беспокоит следующее: 1. узкая кухня, но вроде промеряли проход остается 1,6 м, вроде нормально для прохода 2. темный коридор, наверное придется смириться, ведь спальни планируются только для сна 3 реализация выхода на веранду или лучше (для энергосбережения) сделать все три секции по 90 см и по середине открывающеюся дверь. 4. реализация входной двери или сделать ровный фасад без углубления. Делал углубления думаю, что так не будет задувать снег и дождь. Может что-то Вы еще посоветуете.0.pdf01.pdf Посилання на коментар Поділитися на інших сайтах More sharing options...
Юдин Денис Опубліковано: 20 листопада 2018 Поділитись Опубліковано: 20 листопада 2018 добрый вечер форумчане))). После нескольких недель обсуждений пришли к вот такому виду дома. Можете его покритиковать? (беспокоит следующее: 1. узкая кухня, но вроде промеряли проход остается 1,6 м, вроде нормально для прохода 2. темный коридор, наверное придется смириться, ведь спальни планируются только для сна 3 реализация выхода на веранду или лучше (для энергосбережения) сделать все три секции по 90 см и по середине открывающеюся дверь. 4. реализация входной двери или сделать ровный фасад без углубления. Делал углубления думаю, что так не будет задувать снег и дождь. Может что-то Вы еще посоветуете. планировка получилась похожа на один из типовых проектов...не большие отличия есть, но суть похожа. можно "подрехтовать") Посилання на коментар Поділитися на інших сайтах More sharing options...
vadimv Опубліковано: 20 листопада 2018 Поділитись Опубліковано: 20 листопада 2018 беспокоит следующее: 1. узкая кухня, но вроде промеряли проход остается 1,6 м, вроде нормально для проходаУ нас проход между столешницами 1,24 м, пройти хватает. У вас 1,6 - пройти проблем не будет, но чисто психологически может давить расстояние между стенами. Хотя 2,85 - это немало. 3 реализация выхода на веранду или лучше (для энергосбережения) сделать все три секции по 90 см и по середине открывающеюся дверь.Я бы на вашем месте пообщался с людьми, у которых такие двери уже есть. 4. реализация входной двери или сделать ровный фасад без углубления. Делал углубления думаю, что так не будет задувать снег и дождь. Может что-то Вы еще посоветуете. ИМХО, между дверью и свесом крыши должно быть хотя бы метра 2. Иначе будет насыпать на порог. Ну и в нише уютнее, это да. Посилання на коментар Поділитися на інших сайтах More sharing options...
lem13 Опубліковано: 21 листопада 2018 Поділитись Опубліковано: 21 листопада 2018 Доброго дня. У меня похожий проект, для меня было очень важно расположение дома относительно сторон света. Где у Вас юг? И относительно кухни - насколько важно делать ее П-образной? Может достаточно Г ? Посилання на коментар Поділитися на інших сайтах More sharing options...
vadimv Опубліковано: 21 листопада 2018 Поділитись Опубліковано: 21 листопада 2018 И относительно кухни - насколько важно делать ее П-образной? Может достаточно Г ?ИМХО - вполне. И нужно выдержать оптимальное расстояние между вершинами треугольника "плита - холодильник - мойка" Посилання на коментар Поділитися на інших сайтах More sharing options...
16012 Опубліковано: 21 листопада 2018 Автор Поділитись Опубліковано: 21 листопада 2018 юг где веранда, а вход с севера Посилання на коментар Поділитися на інших сайтах More sharing options...
dinol Опубліковано: 21 листопада 2018 Поділитись Опубліковано: 21 листопада 2018 Только набрел на тему. В свое время я этот проект немного упростил, сделал "под себя" и собирался строить. Но потом планы поменялись в пользу совершенно другого дома. Проект остался. Может чем и помогу, т.к. целую зиму все продумывал/просчитывал.04.pdf03.pdf05.pdf Посилання на коментар Поділитися на інших сайтах More sharing options...
16012 Опубліковано: 24 листопада 2018 Автор Поділитись Опубліковано: 24 листопада 2018 Спасибо за предложение. Проект похож, правда в нем нам не хватает второго туалета, гардеробной, гараж пристроенный к дому дорогое решение, комнаты по 13 квадратов маловаты-))). А какой в итоге построили? Посилання на коментар Поділитися на інших сайтах More sharing options...
mib Опубліковано: 24 листопада 2018 Поділитись Опубліковано: 24 листопада 2018 комнаты по 13 квадратов маловаты-))) возможно я не жил хорошо и привыкать не стоит но что вы делаете в спальнях кроме сна? все свои годы я выхожу из спальни когда проснулся и захожу когда готов уснуть 1 Посилання на коментар Поділитися на інших сайтах More sharing options...
dinol Опубліковано: 25 листопада 2018 Поділитись Опубліковано: 25 листопада 2018 Спасибо за предложение. Проект похож, правда в нем нам не хватает второго туалета, гардеробной, гараж пристроенный к дому дорогое решение, комнаты по 13 квадратов маловаты-))). А какой в итоге построили? Я же писал, что переделал "под себя". По размерам спальни, mib, все верно сказал. Но решать Вам. В итоге построил каркасник, с двускатной крышей, без гаража; зато теплый ))). 1 Посилання на коментар Поділитися на інших сайтах More sharing options...
16012 Опубліковано: 2 грудня 2018 Автор Поділитись Опубліковано: 2 грудня 2018 (змінено) Подготовлен проект кровли и перекрытий. Что скажите? Какие есть замечания? Змінено 2 грудня 2018 користувачем 16012 Посилання на коментар Поділитися на інших сайтах More sharing options...
pump Опубліковано: 2 грудня 2018 Поділитись Опубліковано: 2 грудня 2018 Подготовлен проект кровли и перекрытий. Что скажите? Какие есть замечания?Шаг балок перекрытия - как попало. Проекта кровли не наблюдаю. Посилання на коментар Поділитися на інших сайтах More sharing options...
16012 Опубліковано: 2 грудня 2018 Автор Поділитись Опубліковано: 2 грудня 2018 Вот план стропильной системы. Что и как посоветуете сделать? Что изменить? Как балки правильно по Вашему разместить? Посилання на коментар Поділитися на інших сайтах More sharing options...
pump Опубліковано: 3 грудня 2018 Поділитись Опубліковано: 3 грудня 2018 Обычно, что балки, что стропила, стараются располагать с определенным шагом. Хоть и не обязательно, но практичнее при расчетах, и удобнее в монтаже. И конечно же сечение стропил взято невесть откуда - из польских или немецких проектов, т.к. у нас это не ходовой сортамент и пересортица, например 200х80, 200х120, 220х120 долго придется искать, и потребуется кран. А как сращивать стропила по длине? 1 Посилання на коментар Поділитися на інших сайтах More sharing options...
Frostico Опубліковано: 18 лютого 2019 Поділитись Опубліковано: 18 лютого 2019 Чувствуется рука Андрея Конструктора) Планируете использовать чердак? Если нет, то деревянные фермы самое оптимальное решение. Получаете и перекрытие, и стропильную систему. Посилання на коментар Поділитися на інших сайтах More sharing options...
Serg1887 Опубліковано: 3 травня 2019 Поділитись Опубліковано: 3 травня 2019 отапливаю первый этаж 60 м2 электрикой 10 лет,в этом году,в месяц 2500 среднее,сосед газом 100м2-5600грн,и у меня не двух тарифный счетчик! Посилання на коментар Поділитися на інших сайтах More sharing options...
Andrei constructor Опубліковано: 7 травня 2019 Поділитись Опубліковано: 7 травня 2019 Планируете использовать чердак? Если нет, то деревянные фермы самое оптимальное решение. Получаете и перекрытие, и стропильную систему. Дом по площади небольшой, поэтому не хватает помещений для хранения. Нужен для этого чердак. Здесь он большой и просторный. Добавлено через 1 минуту Обычно, что балки, что стропила, стараются располагать с определенным шагом. Шаг определяет конструктор. Где-то он может быть регулярным, где то при раскладке приходится его сбить. Добавлено через 16 минут Теперь небольшое предостережение. Андрей, попрошу без личных обид, в случае чтения данной темы. ОЧЕНЬ внимательно отнеситесь к конструктиву проекта. Это вторая причина, по которой выбрал и другой проект, и другого архитектора. Я, когда видел тут на форуме конструктивы фундаментов - сразу понимал чья работа. Фундамент с условным армированием (мне изначально предлагалось 1 ряд 3 прута 12 арматурой продольно и поперечно через 60 перевязкой 10, при 1,5 общей высоты. На мое замечание, что это неприемлимо и навязчивые требования сделать нормальных 2 ряда на всю высоту фундамента, с 3 ряда внизу и 2 вверху, с нормальной перевязкой каркасов через 60 см и общей высотой армирования 1,3 метра, слышал о том что не зарывайте деньги в землю у меня диплом и т.д. красный кирпич в землю - объяснения: Посмотрите на колодцы ливневок, в городе. Стоят в земле десятилетиями. От 2 форумчан такое читал тут. Понятно чьи слова и чьи проекты. Это не правильно (СУГУБО ИМХО)! Я так и ничего не понял из ваших объяснения. В ваших условиях и для вашего дома вообще ненужно было делать пространственный каркас для армирования фундамента. Вы же настояли чтобы он был. Делать каркас на всю глубину ленточного фундамента как "делают все" это вообще был перебор. Посилання на коментар Поділитися на інших сайтах More sharing options...
Рекомендовані повідомлення
Створіть акаунт або увійдіть у нього для коментування
Ви маєте бути користувачем, щоб залишити коментар
Створити акаунт
Зареєструйтеся для отримання акаунта. Це просто!
Зареєструвати акаунтУвійти
Вже зареєстровані? Увійдіть тут.
Увійти зараз