AlexLixlet Опубліковано: 24 вересня 2018 Поділитись Опубліковано: 24 вересня 2018 (змінено) Всем здравствуйте. Мня зовут Александр, мне 46 лет, г. Днепр. На форуме с декабря 2016 года. В основном только читал, ничего не понимал, опять перечитывал и в итоге всё получилось. Долго не решался открыть тему нашей стройки-думал закидают тапками. В общем с чего всё началось. Не было бы счастья, да несчастье помогло) Была размеренная обеспеченная жизнь, бизнес работал, любимая дорогая машина возила (Тойота Прадо). И не предвещая беды, с машиной случился несчастный случай, недолго думая, восстановить или продать-Продали. И начали думать какую машину купить. И тут)))) ....... по совету друзей, я решил приобрести автомашину "Москвич"! Новая модель! "Бриллиантовая рука" ))))) решил строить дом. Было два участка -Сажевка 15 соток (в поле) и Приднепрвск-8 соток (садоводческий кооператив). Выбор пал на Приднек, всё таки соседи рядом живут, близко от дома и до река Днепр 50 метров. Участок родителей-21х36 метров. Нам разрешили взять получастка под стройку, 10х36 метров. + папа с мамой предложили свою помощь в финансирование стройки, мелочь-а приятно. На участке летний домик, который решили не ломать, а строить рядом новый. И тут, мы с женой чуть не сошли с ума, а какой же дом мы хотим? 2 месяца изучали проекты, т.к. территория не позволяла идти вширь, нужно было идти вверх. В итоге на сайте z500.com.ua выбрали десяток проектов. Сделали топосъёмку участка. Состыковались с менагерами сайта, сбросили им всю инфу и из 10 проектов они адаптировали под наши запросы\возможности 3 проекта. Так и выбрали z38v1. В феврале 2017 купили проект. Оформили в ЦНАПЕ доки на разрешение строительства-получили добро. На улице зима, а нам уже хочется аж чешется начинать строить. И тут опять, а кто будет строить? Нужен прораб толковый-бестолковые и так найдутся. После долгих мучений нашли проверенного. Дима изучил проект-вывел смету, вполне вменяемую, выехал на дачный участок. Поставил нам задачу-до весенне\летнего периода что мы должны сделать. А именно, на месте будущего дома спилить\пересадить сад + нужна скважина, т.к. вода в садоводстве летом в определенное время. Пробурили по граниту аж 100 метров, долго не было воды, хотя Днепр рядом, чтобы не перебуриваться шли до последнего....и нашли))))))) Змінено 24 вересня 2018 користувачем AlexLixlet 9 Посилання на коментар Поділитися на інших сайтах More sharing options...
БеLка Опубліковано: 24 вересня 2018 Поділитись Опубліковано: 24 вересня 2018 Всем здравствуйте. Мня зовут Александр, мне 46 лет, г. Днепр. На форуме с декабря 2016 года. В основном только читал, ничего не понимал, опять перечитывал и в итоге всё получилось. Долго не решался открыть тему нашей стройки-думал закидают тапками. В общем с чего всё началось. Не было бы счастья, да несчастье помогло) Была размеренная обеспеченная жизнь, бизнес работал, любимая дорогая машина возила (Тойота Прадо). И не предвещая беды, с машиной случился несчастный случай, недолго думая, восстановить или продать-Продали. И начали думать какую машину купить. И тут)))) ....... по совету друзей, я решил приобрести автомашину "Москвич"! Новая модель! "Бриллиантовая рука" ))))) решил строить дом. Было два участка -Сажевка 15 соток (в поле) и Приднепрвск-8 соток (садоводческий кооператив). Выбор пал на Приднек, всё таки соседи рядом живут, близко от дома и до река Днепр 50 метров.[ATTACH]632996[/ATTACH] Участок родителей-21х36 метров. Нам разрешили взять получастка под стройку, 10ч36 метров.На участке летний домик, который решили не ломать, а строить рядом новый. И тут, мы с женой чуть не сошли с ума, а какой же дом мы хотим? 2 месяца изучали проекты, т.к. территория не позволяла идти вширь, нужно было идти вверх Какой кульбит. От покупки Москвича до постройки дома. 1 Посилання на коментар Поділитися на інших сайтах More sharing options...
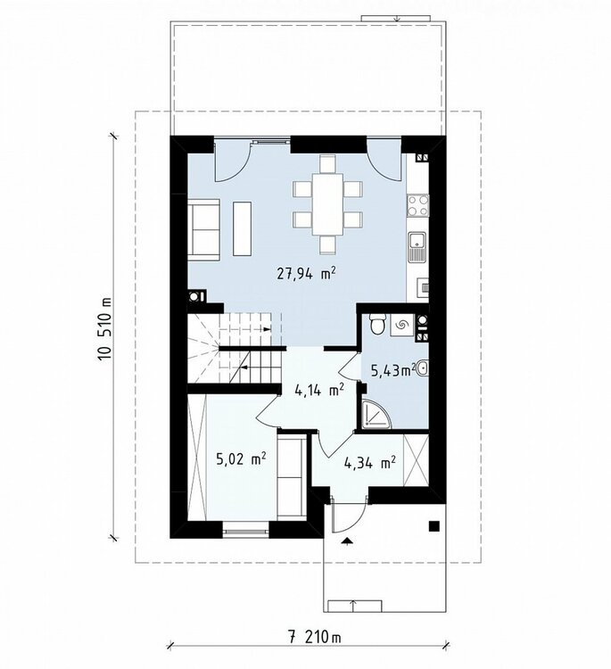
AlexLixlet Опубліковано: 24 вересня 2018 Автор Поділитись Опубліковано: 24 вересня 2018 (змінено) Проект z38v1 Змінено 24 вересня 2018 користувачем AlexLixlet 3 Посилання на коментар Поділитися на інших сайтах More sharing options...
AlexLixlet Опубліковано: 24 вересня 2018 Автор Поділитись Опубліковано: 24 вересня 2018 (змінено) Май 2017. Пришли специально обученные люди с лопатами, начали копать основание фундамента, вязать арматуру, заливать фундамент [ATTACH]633048[/ATTACH] [ATTACH]633049[/ATTACH] [ATTACH]633050[/ATTACH] Змінено 24 вересня 2018 користувачем AlexLixlet Посилання на коментар Поділитися на інших сайтах More sharing options...
AlexLixlet Опубліковано: 24 вересня 2018 Автор Поділитись Опубліковано: 24 вересня 2018 (змінено) Подушка залита ) следующий этап завоз газика. Тут огромная благодарность АндрейUDK приехал на объект определил каких размеров машинами завозить, всё профессионально быстро. На улице проблема с заездом большой техники, либо задом либо передом-разворот невозможен( [ATTACH]633057[/ATTACH] [ATTACH]633058[/ATTACH] [ATTACH]633059[/ATTACH] Змінено 24 вересня 2018 користувачем AlexLixlet 1 Посилання на коментар Поділитися на інших сайтах More sharing options...
AlexLixlet Опубліковано: 24 вересня 2018 Автор Поділитись Опубліковано: 24 вересня 2018 1-ый этаж выгнали за неделю. Несущие стены газик 375 мм. Внесли конструктивные изменения в оконные проёмы) где-то уменьшили размер,гд-то увеличили. Над кухонной зоной добавили окно+добавили окна в санузел 6 Посилання на коментар Поділитися на інших сайтах More sharing options...
AlexLixlet Опубліковано: 24 вересня 2018 Автор Поділитись Опубліковано: 24 вересня 2018 Параллельно занялся приямком скважины. Специалисты насчитали-выкопать, обложить кирпичем, залить плиту+люк в 10000-11000 грн...провел свои расчеты и всё сделал сам. Начали колхозить. Яму выкопал нам студент за 600 грн 2х2х2м, кирпич-песок-щебень сами привезли, в яме залили фундамент, сам обложил красным кирпичем, залил плиту, поставил люк. Мой бюджет 2400 грн...вроде красиво получилось 7 Посилання на коментар Поділитися на інших сайтах More sharing options...
xPavelx Опубліковано: 24 вересня 2018 Поділитись Опубліковано: 24 вересня 2018 Параллельно занялся приямком скважины. Специалисты насчитали-выкопать, обложить кирпичем, залить плиту+люк в 10000-11000 грн...провел свои расчеты и всё сделал сам. Начали колхозить. Яму выкопал нам студент за 600 грн 2х2х2м, кирпич-песок-щебень сами привезли, в яме залили фундамент, сам обложил красным кирпичем, залил плиту, поставил люк. Мой бюджет 2400 грн...вроде красиво получилось [ATTACH]633060[/ATTACH] [ATTACH]633061[/ATTACH] [ATTACH]633062[/ATTACH] Внутри приямка влажность большая ? У меня аналогичный приямок, конденсат аж течет, хотя и трубы вентиляции вроде выведены. Посилання на коментар Поділитися на інших сайтах More sharing options...
AlexLixlet Опубліковано: 24 вересня 2018 Автор Поділитись Опубліковано: 24 вересня 2018 Внутри приямка влажность большая ? У меня аналогичный приямок, конденсат аж течет, хотя и трубы вентиляции вроде выведены. летом да, зимой сухо....но слегка приоткрытым люком всё лечится) тоже думал, ставить две трубы, выше ниже....объяснили, что из-за двух труб зимой там всё замерзнет Посилання на коментар Поділитися на інших сайтах More sharing options...
xPavelx Опубліковано: 24 вересня 2018 Поділитись Опубліковано: 24 вересня 2018 летом да, зимой сухо....но слегка приоткрытым люком всё лечится) тоже думал, ставить две трубы, выше ниже....объяснили, что из-за двух труб зимой там всё замерзнет Тоже наверное на зиму чем-то затыкать трубы буду если будут промерзать. Бесполезная штука, летом не работает, зимой замерзает Посилання на коментар Поділитися на інших сайтах More sharing options...
AlexLixlet Опубліковано: 24 вересня 2018 Автор Поділитись Опубліковано: 24 вересня 2018 Тоже наверное на зиму чем-то затыкать трубы буду если будут промерзать. Бесполезная штука, летом не работает, зимой замерзает у меня в старом домике погреб с одной трубой....летом там чуть прохладней, чем на улице и конденсат, зимой сухо и не сильно прохладно...для консервации, алкоголя и картошки самое то Посилання на коментар Поділитися на інших сайтах More sharing options...
AlexLixlet Опубліковано: 25 вересня 2018 Автор Поділитись Опубліковано: 25 вересня 2018 Так, 1-ый этаж готов. Что делаем дальше, монолитная плита или перекрытие из дерева? Деревянное перекрытие мне изначально не хотелось. Делаем монолит. Опалубку берём в аренду или закупаем лес и из него мастырим опалубку. Покупка леса равнялась аренде опалубки, поэтому решили покупать лес, который в дальнейшем был использован в стройке. 4 Посилання на коментар Поділитися на інших сайтах More sharing options...
AlexLixlet Опубліковано: 25 вересня 2018 Автор Поділитись Опубліковано: 25 вересня 2018 Плита перекрытия подсохла отстоялась. Пошел этап кладки 2-го этажа. По проекту на втором этаже 3 спальни-23м2, 10м2, 11м2 и санузел 4м2. А зачем нам столько спален? Дом строится на семью, постоянно будет жить 2 чела, приезжающий взрослый сын и редко родители. Подумали, и изменили планировку. Спальню из 23м2 увеличили до 26м2, из двух маленьких сделали одну большую и благодаря этому увеличили санузел до 7,5м2. Все будущие квартиранты остались довольны) Залили армпояс 1 Посилання на коментар Поділитися на інших сайтах More sharing options...
AlexLixlet Опубліковано: 25 вересня 2018 Автор Поділитись Опубліковано: 25 вересня 2018 Параллельно колхозим септик. Тракторист Женя-067-252-18-61, абсолютно вменяемый парень. Приехал выкопал, вывез в овраг лишнюю землю+спланировал дорогу. Посилання на коментар Поділитися на інших сайтах More sharing options...
AlexLixlet Опубліковано: 25 вересня 2018 Автор Поділитись Опубліковано: 25 вересня 2018 Параллельно колхозим септик. Тракторист Женя-067-252-18-61, абсолютно вменяемый парень. Приехал выкопал, вывез в овраг лишнюю землю+спланировал дорогу. Рекомендую. 3 Посилання на коментар Поділитися на інших сайтах More sharing options...
vadimv Опубліковано: 25 вересня 2018 Поділитись Опубліковано: 25 вересня 2018 По проекту на втором этаже 3 спальни-23м2, 10м2, 11м2 и санузел 4м2. А зачем нам столько спален? Дом строится на семью, постоянно будет жить 2 чела, приезжающий взрослый сын и редко родители. Подумали, и изменили планировку.А можно было бы обойтись и одним этажом такого же размера с двумя спальнями. И не было бы у вас монолитного балкона, который вы теперь намучаетесь теплоизолировать. И вот этого углового выреза возле входа я совсем не понимаю - зачем он был нужен, если сверху и так балкон? 3 Посилання на коментар Поділитися на інших сайтах More sharing options...
AlexLixlet Опубліковано: 25 вересня 2018 Автор Поділитись Опубліковано: 25 вересня 2018 А можно было бы обойтись и одним этажом такого же размера с двумя спальнями. И не было бы у вас монолитного балкона, который вы теперь намучаетесь теплоизолировать. И вот этого углового выреза возле входа я совсем не понимаю - зачем он был нужен, если сверху и так балкон? хлопці, все буде далі требование семьи было в районе 100м2 дом. Балкон-да, мой бок. Не послушал совета бывалых, но дальше опишу, что изменили и планируем. Угловой вырез возле входа по проекту-все будет дальше, как этот бок улучшили ) 1 Посилання на коментар Поділитися на інших сайтах More sharing options...
AlexLixlet Опубліковано: 25 вересня 2018 Автор Поділитись Опубліковано: 25 вересня 2018 Появилась охрана) ну как им отказать. Живите гавкайте будем кормить. Но грустная история, левого и правого какая то тварь отравила. Мелкого посередине удалось спасти, благодаря врачам. Решили не рисковать и забрали его в квартиру. Сейчас Рон уже весит 25 кг хороший охранник и отличный друг, и нам пофиг, что дворянин ) 8 Посилання на коментар Поділитися на інших сайтах More sharing options...
AlexLixlet Опубліковано: 25 вересня 2018 Автор Поділитись Опубліковано: 25 вересня 2018 Выгнали коробку. И тут поняли, что нам что-то не нравится( а именно вынос балкона, большое крыльцо, дыбильная колона ((( придумали, решили долить крыльцо и сделать под балконом тамбур. в итоге, из 107м2 общая площадь стала 120м2. балкон подвергся гидроизолции- НЕ течёт! В дальнейшем сделаем навес на балкон либо из МП застеклим ) 3 Посилання на коментар Поділитися на інших сайтах More sharing options...
mastervovik Опубліковано: 25 вересня 2018 Поділитись Опубліковано: 25 вересня 2018 Выгнали коробку. И тут поняли, что нам что-то не нравится( а именно вынос балкона, большое крыльцо, дыбильная колона ((( придумали, решили долить крыльцо и сделать под балконом тамбур. в итоге, из 107м2 общая площадь стала 120м2. балкон подвергся гидроизолции- НЕ течёт! В дальнейшем сделаем навес на балкон либо из МП застеклим ) [ATTACH]633201[/ATTACH] [ATTACH]633202[/ATTACH] Ух ты как быстро! Я только тему увидел а тут уже коробку без меня накрыли :D З.ы. не видно фоток в 4 и 5 посте... Посилання на коментар Поділитися на інших сайтах More sharing options...
AlexLixlet Опубліковано: 25 вересня 2018 Автор Поділитись Опубліковано: 25 вересня 2018 (змінено) Пришла осень, октябрь 2017 . Всё. Бабло закончилось( лес сложили на 1-ом этаж, гуд бай стройка до следующего года. Ага, покой нам только снится. Пошли дожди. 1-ый этаж весь в воде, лес мокрый. И как сказал Матроскин - нужно продать что-нибудь ненужное. Вход пошла недвижимость. И до 20 декабря 2017 накрыли крышу 2 Сантаклауса успели до мороза и снега всю крышу Змінено 25 вересня 2018 користувачем AlexLixlet 8 Посилання на коментар Поділитися на інших сайтах More sharing options...
mastervovik Опубліковано: 25 вересня 2018 Поділитись Опубліковано: 25 вересня 2018 Приднепрвск-8 соток (садоводческий кооператив). Выбор пал на Приднек, всё таки соседи рядом живут, близко от дома и до река Днепр 50 метров. А де ето в Приднике дачи на Днепре? там же грес... Или имеются ввиду дачи, за промзоной, на выезде на южный мост? 1 Посилання на коментар Поділитися на інших сайтах More sharing options...
AlexLixlet Опубліковано: 25 вересня 2018 Автор Поділитись Опубліковано: 25 вересня 2018 А де ето в Приднике дачи на Днепре? там же грес... Или имеются ввиду дачи, за промзоной, на выезде на южный мост? справа грес слева дачи...которые плавно превращаются в жилые дома 2 Посилання на коментар Поділитися на інших сайтах More sharing options...
AlexLixlet Опубліковано: 25 вересня 2018 Автор Поділитись Опубліковано: 25 вересня 2018 В канун НГ 2018 приехали наши окна. Профиль Veka SOFTLINE 82 с энергосберегающими стеклами...прогнали их через IQ energy. Установщики как всегда оказались криворукими, хоть нас и убеждали, что ЭТИ лучшие. Приезжали позже передували балконные двери.... Поставили решетки (теплый монтаж)+входная дверь. Ура!!!! Закрылись. Всех с Новым 2018 годом. Поехали в страну бухаловка 5 Посилання на коментар Поділитися на інших сайтах More sharing options...
AlexLixlet Опубліковано: 27 вересня 2018 Автор Поділитись Опубліковано: 27 вересня 2018 ПришОл зима) на дворе 2018 ....надоело пить виски есть оливье, рванул на дом ....ляпота тихо Завез ОСБ на потолок 10мм Кроношпан...сын помог поднять его на 2-ой этаж. Любимую супругу назначил главным подсобником и начали крепить ОСБ на потолок. в первый день по неопытности закрепили аж 1,5 листа Жена поначалу спрашивала-тебе винтик большой или маленький давать ))))) в последний день 2 профи закрепили 8 листов. Супруга профессионально спрашивала-тебе саморез 35 или 55 Потолок готов. Заклеил эппс армпояс 2-го этажа. Сделал гидроизоляцию плиты 1-го этажа-праймер, мастика, рубероид. 1 Посилання на коментар Поділитися на інших сайтах More sharing options...
Рекомендовані повідомлення
Створіть акаунт або увійдіть у нього для коментування
Ви маєте бути користувачем, щоб залишити коментар
Створити акаунт
Зареєструйтеся для отримання акаунта. Це просто!
Зареєструвати акаунтУвійти
Вже зареєстровані? Увійдіть тут.
Увійти зараз