IrinaChizhova Опубліковано: 17 грудня 2018 Автор Поділитись Опубліковано: 17 грудня 2018 удобно когда окно из кухни выходит на сторону входа на участок. тогда хозяйка находясь в кухне может видеть кто вошел и что происходит во дворе Тут нужно выбирать, либо спальня на севере , либо кухня без вида на входную группу) Добавлено через 7 минут Еще не нравится соседство камина и мультимедийной зоны (TV DVD). У Кого они расположены на одной стене, насколько это удобно? Посилання на коментар Поділитися на інших сайтах More sharing options...
Юдин Денис Опубліковано: 17 грудня 2018 Поділитись Опубліковано: 17 грудня 2018 Тут нужно выбирать, либо спальня на севере , либо кухня без вида на входную группу) Добавлено через 7 минут Еще не нравится соседство камина и мультимедийной зоны (TV DVD). У Кого они расположены на одной стене, насколько это удобно? Спальня на север-ничего страшного. Вид из кухни на вход важнее. кроме того удобно когда кухня при входе в дом. пришли-поставили сумки разгрузились, и отдыхать..) соседство камина и мультимедийной зоны вполне приемлемо. пример на картинке Посилання на коментар Поділитися на інших сайтах More sharing options...
Юдин Денис Опубліковано: 18 грудня 2018 Поділитись Опубліковано: 18 грудня 2018 Тут нужно выбирать, либо спальня на севере , либо кухня без вида на входную группу) Добавлено через 7 минут Еще не нравится соседство камина и мультимедийной зоны (TV DVD). У Кого они расположены на одной стене, насколько это удобно? А вообще если нужна профессиональная помощь в проектировании Вашего дома-обращайтесь, я архитектор с 15 летним стажем работы. С удовольствием Вам помогу. пишите в личку Посилання на коментар Поділитися на інших сайтах More sharing options...
IrinaChizhova Опубліковано: 18 грудня 2018 Автор Поділитись Опубліковано: 18 грудня 2018 Спальня на север-ничего страшного. Окно в Спальне лучше делать на север или на запад если есть возможность и так и так? Посилання на коментар Поділитися на інших сайтах More sharing options...
Юдин Денис Опубліковано: 18 грудня 2018 Поділитись Опубліковано: 18 грудня 2018 Окно в Спальне лучше делать на север или на запад если есть возможность и так и так? зависит от архитектурных решений проекта дома, дизайна фасада, и от расположения на участке. с западной стороны садится солнце-соответственно там теплее и светлее. но нужно ли вам натуральное освещение в спальне? или лучше все же в гостиной где семья пребывает большую часть времени? если в гостиной позже включать свет то это экономия электричества, на протяжении всего времени эксплуатации дома Посилання на коментар Поділитися на інших сайтах More sharing options...
IrinaChizhova Опубліковано: 20 грудня 2018 Автор Поділитись Опубліковано: 20 грудня 2018 Можно ли рассматривать такую стену? Будет ли это рационально? Какие еще не дорогие Варианты ? Посилання на коментар Поділитися на інших сайтах More sharing options...
tort Опубліковано: 21 грудня 2018 Поділитись Опубліковано: 21 грудня 2018 Можно ли рассматривать такую стену? Будет ли это рационально? Какие еще не дорогие Варианты ? 40мм додайте до ГБ щоб було у сумі 400 і цегла не потрібна. Тоді буде раціонально і не дорого. Посилання на коментар Поділитися на інших сайтах More sharing options...
IrinaChizhova Опубліковано: 21 грудня 2018 Автор Поділитись Опубліковано: 21 грудня 2018 40мм додайте до ГБ щоб було у сумі 400 і цегла не потрібна. Тоді буде раціонально і не дорого. Кирпич инерцеонности добавит дому плюс положительно скажется на терморегуляции. Посилання на коментар Поділитися на інших сайтах More sharing options...
tort Опубліковано: 21 грудня 2018 Поділитись Опубліковано: 21 грудня 2018 Кирпич инерцеонности добавит дому плюс положительно скажется на терморегуляции. Задам такі питання: 1. 360 мм блоку де ви знайдете? Пилять будете 400? 2. Скільки тієї теплоінерційності ви додасте? Скільки грошей ви на це витратите? Що отримаєте? 3. як два поверхи ви збираєтесь зводить на стінах у одну цеглу? Зі спеціалістом або самі? Посилання на коментар Поділитися на інших сайтах More sharing options...
IrinaChizhova Опубліковано: 21 грудня 2018 Автор Поділитись Опубліковано: 21 грудня 2018 1. 360 мм блоку де ви знайдете? Пилять будете 400? 2. Скільки тієї теплоінерційності ви додасте? Скільки грошей ви на це витратите? Що отримаєте? 3. як два поверхи ви збираєтесь зводить на стінах у одну цеглу? Зі спеціалістом або самі? У стоунлайта вроде бы есть 360 блок, на стройку планировали привлекать специалистов. Посилання на коментар Поділитися на інших сайтах More sharing options...
bodidron Опубліковано: 21 грудня 2018 Поділитись Опубліковано: 21 грудня 2018 У стоунлайта вроде бы есть 360 блок, на стройку планировали привлекать специалистов. вроде бы есть, и есть в наличии, разные вещи, вроде у аэрока есть 250 высота, но в наличии вроде нету, и проэктируют под 200 Посилання на коментар Поділитися на інших сайтах More sharing options...
IrinaChizhova Опубліковано: 21 грудня 2018 Автор Поділитись Опубліковано: 21 грудня 2018 Хочется понять сам принцип. Данная стена жизнеспособна без дополнительного утепления? Размеры ГБ блока подберет уже специалист. Посилання на коментар Поділитися на інших сайтах More sharing options...
tort Опубліковано: 21 грудня 2018 Поділитись Опубліковано: 21 грудня 2018 Размеры ГБ блока подберет уже специалист.Це комплексна задача. Він буде підбирати також і конструкцію спмої стіни. Так правильніше. Ви лише ставите перед ним свої особисті вимоги, що стосуються міцності, корисності та краси. Можете додати окремо до вимог ще й теплоінерційність. Тоді скоріше за все почуєте у відповідь такий варіант: Цегла (250-380) + утеплювач або цегла (250-380) + ГБ д200-д150. але ніяк не д400. Посилання на коментар Поділитися на інших сайтах More sharing options...
IrinaChizhova Опубліковано: 22 грудня 2018 Автор Поділитись Опубліковано: 22 грудня 2018 Что лучше и практичнее Мокрый фасад или облицовочный кирпич-клинкер? Посилання на коментар Поділитися на інших сайтах More sharing options...
vladimir_arch Опубліковано: 26 грудня 2018 Поділитись Опубліковано: 26 грудня 2018 Какие подводные камни при строительстве и эксплуатации второго света? Если ещё актуально, вернусь к этому. Второй свет работает в больших зданиях и в частных домах, как «объединитель» разнородных пространств. В частном доме внизу прихожая, гостиная и столовая с кухней в нише, а сверху – галерея, объединяющая спальни. Эффект – в общности, когда мы слышим и видим происходящее в этом объёме. Плохо это или хорошо – этот вопрос в каждой семье получит разный ответ. Есть и упрощенный вариант второго света – дырка в перекрытии между первым и вторым этажом. Общность, скажем так, скромная, но что-то есть. Но тут лучше один раз увидеть - www.archdaily.com/906789/jardin-dhiver-fmau/5bff12eb08a5e52c1e0001fd-jardin-dhiver-fmau-photo Посилання на коментар Поділитися на інших сайтах More sharing options...
NEX-HELP Опубліковано: 26 грудня 2018 Поділитись Опубліковано: 26 грудня 2018 Можно ли рассматривать такую стену? Будет ли это рационально? Какие еще не дорогие Варианты ? Миниатюры Вы не пробовали просчитывать другой материал в плане кирпича-керамоблока?... При Вашей многослойной стене с (R=3,7) и ширине фундамента 65см. зачем Вы себе проблемы "строите" ?... Кирпич инерцеонности добавит дому плюс положительно скажется на терморегуляции. Если взять керамоблок Heluz-44 с его данными по теплосопротивлению с (R=5,7) или 50бл.с (R=7,0)... Здесь Вы уходите от многослойной проблемной стены с лучшим качеством и теплопроводностью и паропроницаемостью. Также на фундаменте экономия,при Ваших 65см.-ширины...а можно 45 или 50см. ...тем более что у Heluz все в комплексе,теплый клей,раствор(теплая подушка под первый ряд)...а,у других материалов это все нужно купить. Посилання на коментар Поділитися на інших сайтах More sharing options...
tort Опубліковано: 28 грудня 2018 Поділитись Опубліковано: 28 грудня 2018 (змінено) Heluz-44 с его данными по теплосопротивлению с (R=5,7)Може досить казки розказувать про R=5,7? Фізику не обдуриш, шановний. Щоб дійти до 5,7 (м²•˚С)/Вт вам до 440 мм пористої кераміки потрібно буде додати ще 100 мм мінвати на зовнішній шар утеплення. Стіна з трьох(!) цеглин 770мм утеплені мінватою 200мм це і є 5,7. Змінено 28 грудня 2018 користувачем tort 1 Посилання на коментар Поділитися на інших сайтах More sharing options...
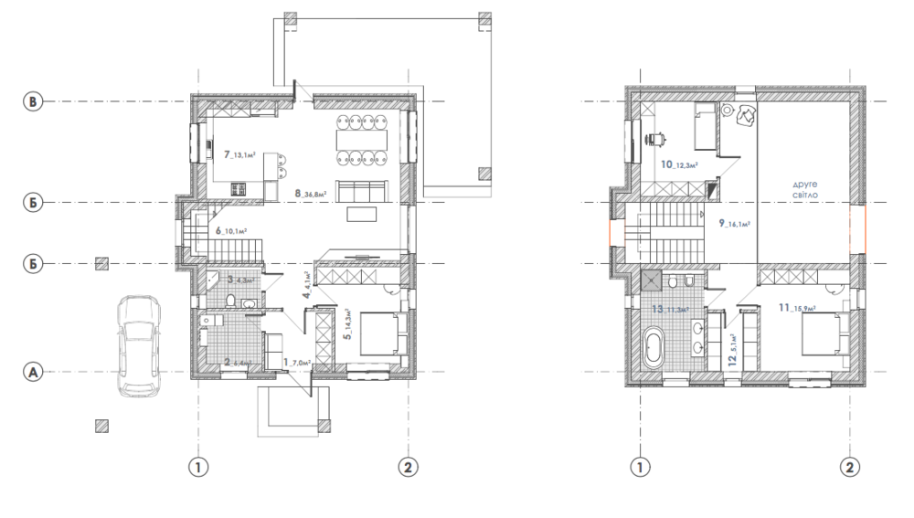
IrinaChizhova Опубліковано: 25 січня 2019 Автор Поділитись Опубліковано: 25 січня 2019 Перекрутили планировку под себя - покритикуйте! Какие еще косяки видно опытным глазом? Посилання на коментар Поділитися на інших сайтах More sharing options...
IrinaChizhova Опубліковано: 18 лютого 2019 Автор Поділитись Опубліковано: 18 лютого 2019 По планировке в гостевой и главной спальне по два окна. Кто знает, из практики, не будет ли из за этого сквозняков со всеми вытекающими из этого проблемами? Посилання на коментар Поділитися на інших сайтах More sharing options...
JohnnyD Опубліковано: 21 лютого 2019 Поділитись Опубліковано: 21 лютого 2019 По планировке в гостевой и главной спальне по два окна. Кто знает, из практики, не будет ли из за этого сквозняков со всеми вытекающими из этого проблемами? Зачем вам на 15 м2 два окна? Сквозняков не будет при нормальном монтаже МП окон. Немного прохладнее будет по отношению к стенам. Посилання на коментар Поділитися на інших сайтах More sharing options...
IrinaChizhova Опубліковано: 22 лютого 2019 Автор Поділитись Опубліковано: 22 лютого 2019 Зачем вам на 15 м2 два окна? Подсветить рабочее место плюс фасад по живее будет. Посилання на коментар Поділитися на інших сайтах More sharing options...
Рекомендовані повідомлення
Створіть акаунт або увійдіть у нього для коментування
Ви маєте бути користувачем, щоб залишити коментар
Створити акаунт
Зареєструйтеся для отримання акаунта. Це просто!
Зареєструвати акаунтУвійти
Вже зареєстровані? Увійдіть тут.
Увійти зараз