vadimv Опубліковано: 6 січня 2019 Поділитись Опубліковано: 6 січня 2019 Да есть такое, думали над зеркальным отображением чтобы детские были на северной стороне а кухня-гостинная на южной.Вообще рекомендуют детские делать на юго-восточной стороне. А у вас там фасад. 1. Детские комнаты солнечныеЮго-западная сторона - самая жаркая. У нас окна спален на запад и то без солнцезащитных ролет никак. А у вас будет еще жарче. 3. Летом на кухне гостинной будет не так жарко Минусы что нет солнечного света зимой в кухне-гостиннойОсобенно зимой. А летом чтобы было не жарко, достаточно сделать свес крыши, затеняющий окна. 1 Посилання на коментар Поділитися на інших сайтах More sharing options...
dvirodov Опубліковано: 11 січня 2019 Автор Поділитись Опубліковано: 11 січня 2019 Вообще рекомендуют детские делать на юго-восточной стороне. А у вас там фасад. К сожалению да, не очень удачный фасад. Но решили пойти на такой компромис. Юго-западная сторона - самая жаркая. Возможно будет затенять свес крыши и со временем деревья посадим. Для детских комнат важно чтобы было много света, уроки делать 1 Посилання на коментар Поділитися на інших сайтах More sharing options...
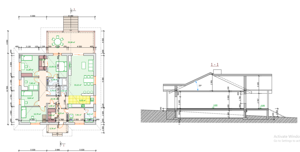
dvirodov Опубліковано: 11 січня 2019 Автор Поділитись Опубліковано: 11 січня 2019 Архитектор прислал драфтовые фасады по моим входным данным 1. Свес крыши 1метр 2. Угол крыши изначально имел 4 ската по 25градусов, получался совсем небольшой около метра конек, почти шатровая, но из-за возникшей проблемы с вентканами(были вдоль ската и не хотелось там снег собирать) решили конек увеличить и получилась крыша вальмовая. 3. Высоту окон проектировщик предложил 1700, от пола 900 и до потолка 2 ряда газобетона - 400мм. Вот теперь думаю как решить проблему что окна залипли к крыше Впринципе есть 4 варианта - Уменьшить свес крыши - Уменьшить угол - Нарастить высоту крыши(добавить ряд газобетона) - Уменьшить высоту окон Можно все 4 по чучуть Посилання на коментар Поділитися на інших сайтах More sharing options...
teonit Опубліковано: 12 січня 2019 Поділитись Опубліковано: 12 січня 2019 Кухня - грязное помещение. На полу часто оказывается мусор и при таком входе, как у вас - этот мусор будет разноситься по всему дому. Как-то многовато комнат, в которых даже шкаф некуда поставить. Добавлено через 4 минуты по бытовке лучше спросите строителей нужна ли она им, то есть будут ли они ночевать на участке если нет, то и суда нет. купить маленький контейнер или ларек для хранения инструмента и хватит. в конце стрйки продать Вот как-раз так я и сделал. А потом строители про&*али все сроки, и мне пришлось арендовать вагончик на 2 месяца. Куча денег и нервов в никуда. Лучше бы я купил кунг и продал по окончанию стройки. Посилання на коментар Поділитися на інших сайтах More sharing options...
Vikctor Опубліковано: 12 січня 2019 Поділитись Опубліковано: 12 січня 2019 ...Вот теперь думаю как решить проблему что окна залипли к крыше ...Можно все 4 по чучуть На самом деле тут всего два толковых решения - нарастить высоту аттиковых стен или изменить конструктив стропилки. В первом случае будет очень проблематично уйти от второго армопояса. i.piccy.info/i9/52dca69a827c17bb29361991c560efb4/1547283082/54627/1169054/1_800.jpg' alt='1_800.jpg'>[/img]Во-втором случае на мауэрлаты крепятся балки перекрытия с выносом за периметр стен на длину свеса, а к ним крепятся стропильные ноги. Тут нахаляву получается безраспорная стропилка... Выбрав любой из вариантов обязательно попросите архитектора изобразить на картинках готовый дом. Он может измениться до неузнаваемости и Вы вернётесь к существующему варианту... Посилання на коментар Поділитися на інших сайтах More sharing options...
Frostico Опубліковано: 12 січня 2019 Поділитись Опубліковано: 12 січня 2019 Свес я бы не уменьшал, некрасиво будет. Можно уменьшить угол кровли, и добавить газобетона над окнами. Окна я думаю нет смысла уменьшать, света мало будет) Посмотрите в сторону готовых ферм, должно быть актуально для вашего дома. Посилання на коментар Поділитися на інших сайтах More sharing options...
vadimv Опубліковано: 12 січня 2019 Поділитись Опубліковано: 12 січня 2019 3. Высоту окон проектировщик предложил 1700 ... - Уменьшить высоту оконЯ бы выбрал такой вариант. У меня высота окон 1500 - вполне себе достаточно. От пола до подоконника метр +30 см над окном до потолка. Посилання на коментар Поділитися на інших сайтах More sharing options...
Скромный прораб Опубліковано: 12 січня 2019 Поділитись Опубліковано: 12 січня 2019 Архитектор прислал драфтовые фасады по моим входным данным ....... Вот теперь думаю как решить проблему что окна залипли к крыше Высота окон 1500-1600мм, как оказывается в жизни, этого более чем достаточно, при высоте потолков 2,8-3м, балки вынести за стены на длину свеса 800-900мм (не забывайте, что добавится еще желоб водосточки), внешний вид дома практически не изменится и не будет "залипания". Посилання на коментар Поділитися на інших сайтах More sharing options...
dvirodov Опубліковано: 12 січня 2019 Автор Поділитись Опубліковано: 12 січня 2019 Во-втором случае на мауэрлаты крепятся балки перекрытия с выносом за периметр стен на длину свеса, а к ним крепятся стропильные ноги. Тут нахаляву получается безраспорная стропилка... Получается потолок и крыша будет единым целым, не будет ли потом проблем с тем что все вибрации крыши будут передаваться потолку и его отделке? Грубо говоря крыша ходором ходить не будет? Добавлено через 8 минут Свес я бы не уменьшал, некрасиво будет. Можно уменьшить угол кровли, и добавить газобетона над окнами. Окна я думаю нет смысла уменьшать, света мало будет) Посмотрите в сторону готовых ферм, должно быть актуально для вашего дома. Я что-то думал что фермы это более актуально для двухскатных крыш и больших проемов, тоесть из набора одинаковых ферм выстраивется крыша. А у меня ведь вальмовая + врезки двускатной для терассы и крыльца. Окно у меня в квартире в высоту 1.7метра есть, кажется высоковатым. А вот делать высоту потолков с 3ех до 3.2 уже точно высоко будет, тоесть если и наращивать стену то выше перекрытия. Добавлено через 4 минуты Можно уменьшить угол кровли Сейчас угол кровли получается 25 и 30 градусов. Не знаю насколько можно его уменьшить чтобы не пострадала практичность и была бы в будущем возможность установить керамическую черепицу(она вроде самая капризная к углу кровли) Добавлено через 1 час 1 минуту А у нас в Украине нет проблем с газобетоном высотой 250мм, строят из него? Сейчас над окном 2 блока по 200, а если взять 250мм то можно выграть 10см и уменьшить окно до 1.6м Посилання на коментар Поділитися на інших сайтах More sharing options...
shneider_vova Опубліковано: 12 січня 2019 Поділитись Опубліковано: 12 січня 2019 А у нас в Украине нет проблем с газобетоном высотой 250мм, строят из него? Сейчас над окном 2 блока по 200, а если взять 250мм то можно выграть 10см и уменьшить окно до 1.6м нету такой высоты. при желании газобетон режется без проблем Посилання на коментар Поділитися на інших сайтах More sharing options...
Vikctor Опубліковано: 12 січня 2019 Поділитись Опубліковано: 12 січня 2019 нету такой высоты. ... Как-то ты категоричен. Аэрок такой делает. По крайней мере делал. Тот завод, что в Обухове. 1 Посилання на коментар Поділитися на інших сайтах More sharing options...
shneider_vova Опубліковано: 12 січня 2019 Поділитись Опубліковано: 12 січня 2019 Как-то ты категоричен. Аэрок такой делает. По крайней мере делал. Тот завод, что в Обухове. точно, посмотрел - вроде аерок делает. Но уже если брать аерок и переплачивать за доставку, то я бы брал D300 (а я так и сделал ), а он только 200 мм Посилання на коментар Поділитися на інших сайтах More sharing options...
dvirodov Опубліковано: 12 січня 2019 Автор Поділитись Опубліковано: 12 січня 2019 На самом деле тут всего два толковых решения - нарастить высоту аттиковых стен или изменить конструктив стропилки. В первом случае будет очень проблематично уйти от второго армопояса. Интересно, а если длинной шпилькой через 2 ряда газобетона(или кирпича, не знаю что лучше) пройти и закретить мауэрлат к армопоясу? Уж 2 армопояса точно не хочется делать. Посилання на коментар Поділитися на інших сайтах More sharing options...
Vikctor Опубліковано: 12 січня 2019 Поділитись Опубліковано: 12 січня 2019 Интересно, а если длинной шпилькой через 2 ряда газобетона(или кирпича, не знаю что лучше) пройти и закретить мауэрлат к армопоясу? Уж 2 армопояса точно не хочется делать. Я же и написал сразу, что придётся делать второй армопояс. Это если хочется сделать толково. Иначе придётся заниматься колхозингом... Посилання на коментар Поділитися на інших сайтах More sharing options...
Харько Опубліковано: 13 січня 2019 Поділитись Опубліковано: 13 січня 2019 почему склонились в сторону ГБ? Посилання на коментар Поділитися на інших сайтах More sharing options...
dvirodov Опубліковано: 13 січня 2019 Автор Поділитись Опубліковано: 13 січня 2019 почему склонились в сторону ГБ? 1. Работы по фасаду(утепление и штукатурка) газобетона можно перенести на неопределенное время. Тоесть можно обживать дом и пускать ресурсы в обустройство и внутренюю отделку, а внешнюю отделку сделать после, когда будут деньги. 2. Можно впринципе обойтись без утеплителя, пока я однозначно еще не решил, стоит ли утеплять Д400 400мм толщиной или нет, нужно будет отдельно посчитать за сколько это окупится. 3. Проще сделать теплый монтаж окон, дверей. Точнее сложнее наверное накосячить. 4. Кладка и материал дешевле - хотя понятно, что это копейки в общей смете дома 5. Меньше вес дома, меньше нагрузки на фундамент, а в моем случае грунты очень плохие. Посилання на коментар Поділитися на інших сайтах More sharing options...
dvirodov Опубліковано: 13 січня 2019 Автор Поділитись Опубліковано: 13 січня 2019 Я же и написал сразу, что придётся делать второй армопояс. Это если хочется сделать толково. Иначе придётся заниматься колхозингом... Сегодня посмотрел видео о безраспорной крыше (Терехов), сделал вывод что от распора очень сильно помогает уйти врезки стропила под маэрлат и под стойку. А если нет распора то по идее и нет сил горизонтальных(боковых) на стену, которые пытаются эту стену выдавить. Архитектор предлагает один армопояс под балки перекрытия, а между балок и выше(если нужно наращивать) положить кирпич, на кирпич уже поставить мауэрлат и его стянуть через шпильки к армопоясу. На свыв крыши(сила вверх) - тут вроде все норм, крыша заанкерена будет к армопоясу. Чтобы крыша не сложилась, нужно уйти от распора теме же 2мя врезками. Вообщем пока такая картина вырисовывается Посилання на коментар Поділитися на інших сайтах More sharing options...
Харько Опубліковано: 14 січня 2019 Поділитись Опубліковано: 14 січня 2019 Меньше вес дома, меньше нагрузки на фундамент, а в моем случае грунты очень плохие. вот это самая первая причина,наверное. все остальное поверхностно... нам так же просчитывали из ГБ,но ребята-каменщики сразу довели нам = кирпич лучше на порядок. Посилання на коментар Поділитися на інших сайтах More sharing options...
dvirodov Опубліковано: 14 січня 2019 Автор Поділитись Опубліковано: 14 січня 2019 все остальное поверхностно... нам так же просчитывали из ГБ,но ребята-каменщики сразу довели нам = кирпич лучше на порядок. Чем хорош кирпич - в нем хорошо дюпеля держутся К красному кирпичу у меня вообще доверия нет, постоянно вижу как он осыпается на заборах, на цоколях, на стенах, силикатный кирпич имхо гораздо надежней, только раз видел внешняя стена из него осыпается. Какие приемущества мне даст стена из кирпича, сложно вот сказать 1. инерционность - у меня внешние несущие + перегородки будут из кирпича, поэтому инерционность будет. 2. Шанс возникновения усадочных трещин - тут согласен, с газобетоном шанс гораздо больше, но я на это готов, отделку всеравно сделаю позже. 3. Отделку в кирпичном доме можно начинать сразу - да, это приимущество, но я всеравно буду делать отделку на как минимум следующий сезон а то и позже(денег нужно будет поболее чем на коробку). Посилання на коментар Поділитися на інших сайтах More sharing options...
Харько Опубліковано: 14 січня 2019 Поділитись Опубліковано: 14 січня 2019 нет хорошо или плохо в сравнение кирпич или газобетон. у каждого стенового материала есть свои +/- если честно,то кирпич +битумная кровля для нашей семьи = оптимально пришлось во всем. вот так. Посилання на коментар Поділитися на інших сайтах More sharing options...
digor_ua Опубліковано: 14 січня 2019 Поділитись Опубліковано: 14 січня 2019 Архитектор предлагает один армопояс под балки перекрытия, а между балок и выше(если нужно наращивать) положить кирпич, на кирпич уже поставить мауэрлат и его стянуть через шпильки к армопоясу. если архитектор предлагает тулить кирпич в каком бы ни было виде (окромя перегородок) в дом из ГБ, то он идиот и от него надо бежать не оглядываясь, пока чего еще не насоветовал 5 Посилання на коментар Поділитися на інших сайтах More sharing options...
Vikctor Опубліковано: 14 січня 2019 Поділитись Опубліковано: 14 січня 2019 если архитектор предлагает тулить кирпич в каком бы ни было виде (окромя перегородок) в дом из ГБ, то он идиот и от него надо бежать не оглядываясь, пока чего еще не насоветовал Подожди, пусть он (архитектор) сначала объяснит как он утеплить тот узел планирует... Посилання на коментар Поділитися на інших сайтах More sharing options...
dvirodov Опубліковано: 15 січня 2019 Автор Поділитись Опубліковано: 15 січня 2019 если архитектор предлагает тулить кирпич в каком бы ни было виде (окромя перегородок) в дом из ГБ, то он идиот и от него надо бежать не оглядываясь, пока чего еще не насоветовал Можно поподробней, какую проблему Вы видите? Мне тоже не очень нравится кирпич, но только в плане что он тяжелее, не хочется нагружать стены. С другой стороны мне видится что маэрлат положенный через кирпичную прослойку будет меньше продаливать газобетон, чем если бы сразу на газобетон был положен, так как площадь соприкосновения кирпича и газобетона будет больше чем маэрлата и газобетона. По поводу утепления(не уточнал как он планирует узел) думал можно ведь кирпич положить не на всю плоскость газобетона(40см) а допустим на внеший край 25см а 15см оставшихся изнутри утеплить или ватой или ЭППС Кстати из кирпича(толщиной 1.5кирпича) еще у меня вентканалы и дымоходы запланированы Посилання на коментар Поділитися на інших сайтах More sharing options...
Vikctor Опубліковано: 15 січня 2019 Поділитись Опубліковано: 15 січня 2019 ...По поводу утепления(не уточнал как он планирует узел) думал можно ведь кирпич положить не на всю плоскость газобетона(40см) а допустим на внеший край 25см а 15см оставшихся изнутри утеплить или ватой или ЭППС... И что Вы этим утеплите? Нарисуйте стрелочку поступления холода вертикально от мауэрлата вниз. По внутренней стене тоже. П.С.: между фундаментом и первым рядом ГБ тоже полагаю пару рядов кирпича планируется? Посилання на коментар Поділитися на інших сайтах More sharing options...
dvirodov Опубліковано: 15 січня 2019 Автор Поділитись Опубліковано: 15 січня 2019 И что Вы этим утеплите? Нарисуйте стрелочку поступления холода вертикально от мауэрлата вниз. По внутренней стене тоже. Да похоже Вы правы, через кирпич будет промораживаться армопояс, а между армопоясом и внутренним простанством дома если и будет 100мм газоблока то хорошо. Тогда получается нада кирпич заменять на газобетон. Вот кстати нашел узел крепления мауэрлата от Глеб Грина Посилання на коментар Поділитися на інших сайтах More sharing options...
Рекомендовані повідомлення
Створіть акаунт або увійдіть у нього для коментування
Ви маєте бути користувачем, щоб залишити коментар
Створити акаунт
Зареєструйтеся для отримання акаунта. Це просто!
Зареєструвати акаунтУвійти
Вже зареєстровані? Увійдіть тут.
Увійти зараз