LStranger Опубліковано: 21 липня 2019 Поділитись Опубліковано: 21 липня 2019 Допоможіть порадою, будь ласка. Маю септик (два поєднані колодязі по 3,5 куба кожен, над поверхнею ще по кубу повітря), з нього перелив до фільтраційного колодязя (1,5 куба від труби до щебеню). Вкидаю бактерії Eparsil кожні 10 днів. Очікував, що стоки очищатимуться та до фільтраційного потраплятиме майже чиста вода, але натомість там таке саме, як у септику, та ще й уходити в ґрунт перестало. Можливо, септик треба тримати відкритим? Чи що ще я прорахувався? Порадьте, будь ласка, що робити? 1 Посилання на коментар Поділитися на інших сайтах More sharing options...
garaj2 Опубліковано: 21 липня 2019 Поділитись Опубліковано: 21 липня 2019 Тройники на переливах поставленны? 1 Посилання на коментар Поділитися на інших сайтах More sharing options...
LStranger Опубліковано: 21 липня 2019 Автор Поділитись Опубліковано: 21 липня 2019 Тройники на переливах поставленны? Так, стоїть, але він повністю залитий. Посилання на коментар Поділитися на інших сайтах More sharing options...
vovova Опубліковано: 22 липня 2019 Поділитись Опубліковано: 22 липня 2019 Схемку нарисуйте. 1 Посилання на коментар Поділитися на інших сайтах More sharing options...
Блуждающий ТВЭЛ Опубліковано: 22 липня 2019 Поділитись Опубліковано: 22 липня 2019 Допоможіть порадою, будь ласка. Маю септик (два поєднані колодязі по 3,5 куба кожен, над поверхнею ще по кубу повітря), з нього перелив до фільтраційного колодязя (1,5 куба від труби до щебеню). Вкидаю бактерії Eparsil кожні 10 днів. Очікував, що стоки очищатимуться та до фільтраційного потраплятиме майже чиста вода, але натомість там таке саме, як у септику, та ще й уходити в ґрунт перестало. Можливо, септик треба тримати відкритим? Чи що ще я прорахувався? Порадьте, будь ласка, що робити? Пока вам тут пытаются напарить :D станцию очистки с аккаунтов-однодневок, давайте попробуем разобраться. По всей видимости, у вас первая камера не работает как должна, и идет заброс в следующие камеры того, что должно осаждаться в первой. Расскажу на примере системы, которая у нас. Грунты-песок, в доме 4 человека, норма сброса 200 литров на взрослого, у нас два мелких + 4 собаки и кот, фактически получается сброс 500-600 литров. Это значит, что первая камера должна иметь рабочий объем жидкости не менее 1.8 куба + добавляем куб на отстой(шлам), получаем на нашу семью камера 1 - 3 куба, у нас около 3.6. Вся твердая фракция должна осаждаться в первой камере, для этого ставится тройник на выходе, вниз 50-70 см, чтобы уйти под корку, вверх 20-30 см, чтобы выйти над коркой и обеспечить межкамерный газообмен. Во второй камере продолжается переработка только жидкого стока, с минимумом твердой фракции, а для ее осаждения также ставится тройник, чтобы то, что проскочило из камеры 1 - упало на дно. В идеале - подавать в камеру 2 воздух, для интенсивной аэробной переработки. На выходе из камеры 2 ставится биофильтр, можно заводской, можно самодельный, он улавливает мелкий шлам и тоже помогает переработать стоки за счет биопленки в наполнителе. Дальше можно делать дренаж, но я решил поставить илоотстойник, третью камеру. Это продлит срок службы дренажа, лет на 10. И из нее можно брать водичку на полив, при желании. В грунт у меня уходит чуть мутноватая вода, срок службы системы, рассчитываю, от 15 лет. Размер дренажа считается от типа грунта и количества стока. -- По вашей проблеме - думаю, у вас может быть ошибка в соотнесении уровней установки тройников и, соответственно, уровень жидкостей выше допустимого. Возможно, вам нужно перебить в камере 2 выход на дренаж пониже, но без схемы с размерами трудно дать совет по делу. Давайте схему c размерами. 4 Посилання на коментар Поділитися на інших сайтах More sharing options...
Gitan Опубліковано: 22 липня 2019 Поділитись Опубліковано: 22 липня 2019 Так, стоїть, але він повністю залитий. Так это и есть проблема. Давайте схему. Надо понижать уровень во 2 камере. 1 Посилання на коментар Поділитися на інших сайтах More sharing options...
viksel Опубліковано: 22 липня 2019 Поділитись Опубліковано: 22 липня 2019 Допоможіть порадою, будь ласка. Маю септик (два поєднані колодязі по 3,5 куба кожен, над поверхнею ще по кубу повітря), з нього перелив до фільтраційного колодязя (1,5 куба від труби до щебеню). Вкидаю бактерії Eparsil кожні 10 днів. Очікував, що стоки очищатимуться та до фільтраційного потраплятиме майже чиста вода, але натомість там таке саме, як у септику, та ще й уходити в ґрунт перестало. Можливо, септик треба тримати відкритим? Чи що ще я прорахувався? Порадьте, будь ласка, що робити? А скільки людей проживає в будинку? Посилання на коментар Поділитися на інших сайтах More sharing options...
Агитатор Опубліковано: 22 липня 2019 Поділитись Опубліковано: 22 липня 2019 ...может высокий уровень грунтовых вод... ...может грунт - глина и много... ...может переливы/тройники неправильно стоят по высоте... ...может нет доступа воздуха... ...может попали на какую-то жилу (естественно водную, но лучше бы золотую)... ... рисуйте и рассказывайте. 1 Посилання на коментар Поділитися на інших сайтах More sharing options...
LStranger Опубліковано: 24 липня 2019 Автор Поділитись Опубліковано: 24 липня 2019 Вибачте за дещо пізню відповідь, не було часу повідповідати, трохи закрутився з іншими проблемами. Намалювати довго, векторними програмками не користувався ніколи, простіше описати словами. Дивіться, я знаю звичайний рівень ґрунтових вод під час танення снігів. Вхід у септик йде приблизно 0,4 м вище цього максимального рівня. Зараз рівень приблизно на 1,3 м нижче. Трійник стоїть на 0,2 м нижче входу у септик. Септик повністю закритий, я не робив додаткової вентиляції, може у цьому проблема? Трьох камер в мене нема, лише одна (два колодязя поєднаних нижче рівня води), з неї через трійник у дренаж. Ґрунт - супесь/суглинок, вода зазвичай уходить, хоч й не дуже швидко, але зараз взагалі перестала уходити. Я так розумію, через те, що муть з стоків не осіла у септику й забила дренаж (щебінь на дні фільтраційного колодязя). Об'єм септика (від дна до переливу) 5,5 кубів. Об'єм фільтраційного колодязя (від переливу до щебеню) 1,3 куба. Зараз живуть від 2 до 5 чоловік, розрахунок 5,5 кубів був на те, що теоретично може жити до 10, коли основний будинок добудую. Трійник в мене без додаткової труби вниз. Я розумію, що, можливо, трохи безграмотно зробив, але як зумів, мені знайомий сказав, що так теж працюватиме. Схоже, помилився. Добавлено через 13 минут На випадок високої води думав поставити насос відкачувати надлишок з дренажу на дренажне поле, колись у майбутньому, але з поточною ситуацією нема що ставити, бо те, що у дренажному колодязі, відправляти в ґрунт не можна, спочатку треба полагодити систему септику. Посилання на коментар Поділитися на інших сайтах More sharing options...
Блуждающий ТВЭЛ Опубліковано: 25 липня 2019 Поділитись Опубліковано: 25 липня 2019 Вибачте за дещо пізню відповідь, не було часу повідповідати, трохи закрутився з іншими проблемами. Намалювати довго, векторними програмками не користувався ніколи, простіше описати словами. Дивіться, я знаю звичайний рівень ґрунтових вод під час танення снігів. Вхід у септик йде приблизно 0,4 м вище цього максимального рівня. Зараз рівень приблизно на 1,3 м нижче. Трійник стоїть на 0,2 м нижче входу у септик. Септик повністю закритий, я не робив додаткової вентиляції, може у цьому проблема? Трьох камер в мене нема, лише одна (два колодязя поєднаних нижче рівня води), з неї через трійник у дренаж. Ґрунт - супесь/суглинок, вода зазвичай уходить, хоч й не дуже швидко, але зараз взагалі перестала уходити. Я так розумію, через те, що муть з стоків не осіла у септику й забила дренаж (щебінь на дні фільтраційного колодязя). Об'єм септика (від дна до переливу) 5,5 кубів. Об'єм фільтраційного колодязя (від переливу до щебеню) 1,3 куба. Зараз живуть від 2 до 5 чоловік, розрахунок 5,5 кубів був на те, що теоретично може жити до 10, коли основний будинок добудую. Трійник в мене без додаткової труби вниз. Я розумію, що, можливо, трохи безграмотно зробив, але як зумів, мені знайомий сказав, що так теж працюватиме. Схоже, помилився. Добавлено через 13 минут На випадок високої води думав поставити насос відкачувати надлишок з дренажу на дренажне поле, колись у майбутньому, але з поточною ситуацією нема що ставити, бо те, що у дренажному колодязі, відправляти в ґрунт не можна, спочатку треба полагодити систему септику. Я в Power Point рисую эскизы. очень удобно, квадратики, кружочки, палочки. Попробуйте. Вам надо разделить функции камер и все заработает. - два колодязя это уже лучше, чем ничего, их надо разделить тройниками - на выходе в дренаж биофильтр самоделку. - выход в дренаж должен быть немного ниже входа из первой камеры, чтобы тройник между камерами 1-2 работал как положено. А детально я расписал со схемой выше, читайте и удачи. Или вам нарисовать крупней? пс. Скажите соседу, чтобы лез и переделывал. :D 1 Посилання на коментар Поділитися на інших сайтах More sharing options...
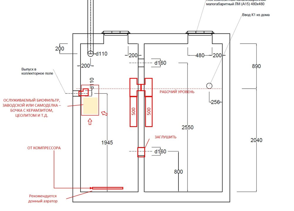
Biotech1 Опубліковано: 1 серпня 2019 Поділитись Опубліковано: 1 серпня 2019 Похожая проблема. 5 лет назад из имеющейся ж/б ямы сделал типа септик (чертеж прилагаю). В чём мои ошибки по конструктиву? Земля над дренажными трубами уже периодически воняет (особенно зимой).Септик чертеж.pdf Посилання на коментар Поділитися на інших сайтах More sharing options...
Romcheg Опубліковано: 2 серпня 2019 Поділитись Опубліковано: 2 серпня 2019 Похожая проблема. 5 лет назад из имеющейся ж/б ямы сделал типа септик (чертеж прилагаю). В чём мои ошибки по конструктиву? Земля над дренажными трубами уже периодически воняет (особенно зимой). нет тройника на выходе из септика Посилання на коментар Поділитися на інших сайтах More sharing options...
Biotech1 Опубліковано: 2 серпня 2019 Поділитись Опубліковано: 2 серпня 2019 Romcheg, по моему чертежу верхнее отверстие ф160 между камерами для сообщения камер газ.фазой, а нижнее ф160 (на отметке +0,800) для перетока. Проще говоря два отверстия решают задачи тройников. Каждый месяц забрасываю по 40 г Водограя в первую камеру. На поверхности первой камеры вот такая органика плавает. Во второй камере на поверхности ничего не плавает. Посилання на коментар Поділитися на інших сайтах More sharing options...
Блуждающий ТВЭЛ Опубліковано: 15 серпня 2019 Поділитись Опубліковано: 15 серпня 2019 Похожая проблема. 5 лет назад из имеющейся ж/б ямы сделал типа септик (чертеж прилагаю). В чём мои ошибки по конструктиву? Земля над дренажными трубами уже периодически воняет (особенно зимой). Ничего толком эти отверстия не решают. К сожалению, из-за низкого ввода у вас потеряна немалая часть рабочего объема. Переделать (поднять ввод выше), как я понимаю, уже не выйдет? Из-за нижнего соединения камер нет разделения их функций. Мало того, в случае заиливания нижнего перетока есть вероятность неконтролируемого подъема уровня в камере I с забиванием ввода По сути у вас одна большая "сдвоенная" камера. Можете доработать как на схеме. Все заработает. 1 Посилання на коментар Поділитися на інших сайтах More sharing options...
Biotech1 Опубліковано: 18 вересня 2019 Поділитись Опубліковано: 18 вересня 2019 Блуждающий ТВЭЛ, планирую выполнить работы по реконструкцию септика по вашему совету и возник вопрос: после полной откачки септика стоит его мыть водой, например аппаратом высокого давления (Karcher)? Посилання на коментар Поділитися на інших сайтах More sharing options...
Блуждающий ТВЭЛ Опубліковано: 18 вересня 2019 Поділитись Опубліковано: 18 вересня 2019 Блуждающий ТВЭЛ, планирую выполнить работы по реконструкцию септика по вашему совету и возник вопрос: после полной откачки септика стоит его мыть водой, например аппаратом высокого давления (Karcher)? Не вижу смысла. Если камера бывалая, то все поры в ней давно забиты жирами, моющими средствами и то и тп. - в большинстве случаев герметично. Зачем нарушать такую красоту? Я свою буду мыть шлангом - и то, только ради того, что хочу посмотреть состояние полимерцементного покрытия, на которое ушли куча времени и немало денег, и чуть не стоившее мне трюпа обработчика, который отказался работать под землей в маске. Ну и бактерий полезноперерабатывающих смывать вряд ли стоит. Другое дело, если вы там планируете провести несколько часов своего времени на реконструкции, тогда я бы мыл чуть потщательней, но простым пистолетом на садовом шланге, без керхеров. А для откачки воды у меня есть дренажник. Добавлено через 1 час 52 минуты + главное при вашей реконструкции - то же, что и у всех. Чтобы объем суточного стока был меньше скорости впитывания вашей площадью дренажа.А лучше перебдеть. 1 Посилання на коментар Поділитися на інших сайтах More sharing options...
Рекомендовані повідомлення
Створіть акаунт або увійдіть у нього для коментування
Ви маєте бути користувачем, щоб залишити коментар
Створити акаунт
Зареєструйтеся для отримання акаунта. Це просто!
Зареєструвати акаунтУвійти
Вже зареєстровані? Увійдіть тут.
Увійти зараз