Smart.Trading.Team Опубліковано: 13 вересня 2019 Поділитись Опубліковано: 13 вересня 2019 Доброго времени суток Всем. Начали проектировать себе не большой одноэтажник. Покритикуйте пожалуйста планировку.Дом План вар 1.pdf Посилання на коментар Поділитися на інших сайтах More sharing options...
Smart.Trading.Team Опубліковано: 13 вересня 2019 Автор Поділитись Опубліковано: 13 вересня 2019 То что я вижу, это не рационально большие коридоры. Посилання на коментар Поділитися на інших сайтах More sharing options...
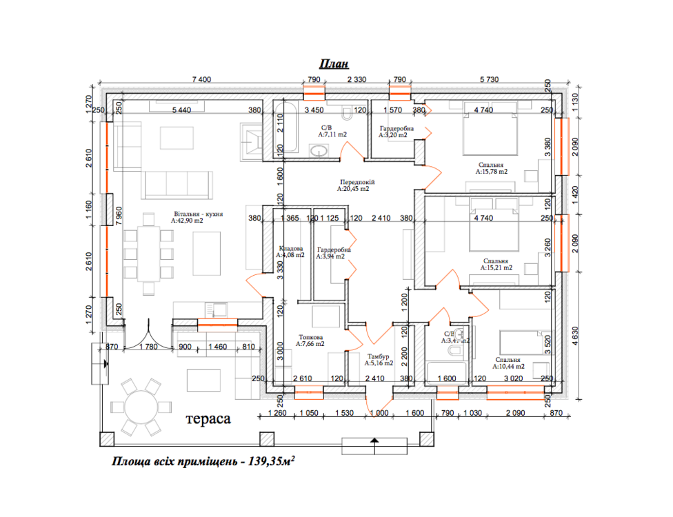
Smart.Trading.Team Опубліковано: 13 вересня 2019 Автор Поділитись Опубліковано: 13 вересня 2019 Финализировали - забрасывайте яйцами)))) Посилання на коментар Поділитися на інших сайтах More sharing options...
vadimv Опубліковано: 13 вересня 2019 Поділитись Опубліковано: 13 вересня 2019 Где тут север? Посилання на коментар Поділитися на інших сайтах More sharing options...
Smart.Trading.Team Опубліковано: 13 вересня 2019 Автор Поділитись Опубліковано: 13 вересня 2019 Где тут север? Север вверху. Посилання на коментар Поділитися на інших сайтах More sharing options...
vadimv Опубліковано: 13 вересня 2019 Поділитись Опубліковано: 13 вересня 2019 Север вверху.Я почему-то так и подумал, но решил уточнить. Т.е. у вас терраса в самом жарком углу (юго-запад), а окна кухни и гостиной (широченные) выходят на запад? Вам можно будет только посочувствовать летом. Да и зимой тоже, когда солнце будет ненадолго заглядывать в окна спален и гостиной, а все остальное время его вообще не будет видно в доме (кроме кабинета). В остальном согласен с предыдущим оратором, что 20 с лишним кв.м коридоров - это многовато. 2 Посилання на коментар Поділитися на інших сайтах More sharing options...
Smart.Trading.Team Опубліковано: 13 вересня 2019 Автор Поділитись Опубліковано: 13 вересня 2019 Т.е. у вас терраса в самом жарком углу (юго-запад), а окна кухни и гостиной (широченные) выходят на запад? Вам можно будет только посочувствовать летом. Да и зимой тоже, когда солнце будет часов в 8 утра ненадолго заглядывать в окна спален и гостиной, а все остальное время его вообще не будет видно в доме (кроме кабинета). Если отзеркалить будет лучше? Гостиная и кухня на востоке -спальни на западе - трасса юговосток Посилання на коментар Поділитися на інших сайтах More sharing options...
vadimv Опубліковано: 13 вересня 2019 Поділитись Опубліковано: 13 вересня 2019 Если отзеркалить будет лучше? Гостиная и кухня на востоке -спальни на западе - трасса юговостокИМХО, да. Но я бы полностью переделал, чтобы сократить коридоры. 1 Посилання на коментар Поділитися на інших сайтах More sharing options...
Smart.Trading.Team Опубліковано: 14 вересня 2019 Автор Поділитись Опубліковано: 14 вересня 2019 Кто что говорит! например Денис Юдин считает что зоны наиболее длительного прибывания людей в доме (кухня, гостиная ) должны быть максимально освещены естественным светом и находится на Юго-западе! Спальни - на востоке Посилання на коментар Поділитися на інших сайтах More sharing options...
vadimv Опубліковано: 14 вересня 2019 Поділитись Опубліковано: 14 вересня 2019 Кто что говорит! например Денис Юдин считает что зоны наиболее длительного прибывания людей в доме (кухня, гостиная ) должны быть максимально освещены естественным светом и находится на Юго-западе! Спальни - на востокеОК, расскажу, что я понял из собственного опыта проживания в доме: лучше всего, когда гостиная находится на южной стороне, когда летом свес крыши не дает высокому солнцу днем попадать внутрь и перегревать помещение, а зимой низкое солнце наоборот его греет и освещает. Это дает максимальный комфорт. Широкие окна на запад дают сильный перегрев летом после обеда и не дают солнца зимой. Кухню лично я бы размещал на восток, там же и террасу. По той простой причине, что утром после холодной ночи приятно погреться на солнце, а после обеда в жаркое время и кухня и терраса будут в тени. Если их сделать на запад - солнце летом будет перегревать и кухню и террасу. Спальни я бы делал и на восток и на запад. Люди разные, кому-то нравится спать до обеда (и ему утреннее солнце вообще ни к чему), а кому-то рано вставать (ему спальню на восток). В общем, лично мое представление об идеальной планировке дома: 7 Посилання на коментар Поділитися на інших сайтах More sharing options...
Smart.Trading.Team Опубліковано: 14 вересня 2019 Автор Поділитись Опубліковано: 14 вересня 2019 лучше всего, когда гостиная находится на южной стороне У Нас Южный Фасад, сейчас попробуем отзеркалить и покрутить дом! Спасибо ! Добавлено через 3 минуты Если пару спален будет на север, есть тут какой то негатив? Посилання на коментар Поділитися на інших сайтах More sharing options...
galproekt Опубліковано: 14 вересня 2019 Поділитись Опубліковано: 14 вересня 2019 Димовентиляційні канали з паливної передбачаються? Посилання на коментар Поділитися на інших сайтах More sharing options...
Smart.Trading.Team Опубліковано: 14 вересня 2019 Автор Поділитись Опубліковано: 14 вересня 2019 Димовентиляційні канали з паливної передбачаються? У нас Газ на участке, котел можно повесить на любой стене Посилання на коментар Поділитися на інших сайтах More sharing options...
vadimv Опубліковано: 14 вересня 2019 Поділитись Опубліковано: 14 вересня 2019 Если пару спален будет на север, есть тут какой то негатив?В моем регионе зимой с севера дует такой холодный ветер, что я бы там вобще окон не делал. Ну и солнца там никогда не бывает. 1 Посилання на коментар Поділитися на інших сайтах More sharing options...
Smart.Trading.Team Опубліковано: 14 вересня 2019 Автор Поділитись Опубліковано: 14 вересня 2019 В моем регионе зимой с севера дует такой холодный ветер, что я бы там вобще окон не делал. Ну и солнца там никогда не бывает. Под Киевом та же фигня Добавлено через 2 минуты Тогда получается просто зеркалим! Посилання на коментар Поділитися на інших сайтах More sharing options...
vadimv Опубліковано: 14 вересня 2019 Поділитись Опубліковано: 14 вересня 2019 Тогда получается просто зеркалим!У нас сейчас похожая планировка: кухня-гостиная на восток, спальни на запад. На кухне очень приятно с утра, много солнца. А в спальнях пришлось повешать тканевые ролеты от солнца и это при том, что там еще и деревья есть. Посилання на коментар Поділитися на інших сайтах More sharing options...
eugenem Опубліковано: 14 вересня 2019 Поділитись Опубліковано: 14 вересня 2019 Я бы сразу за тамбуром налево делал проход в кухню-гостиную, а не вел коридор таким огромным апендиксом. 3 Посилання на коментар Поділитися на інших сайтах More sharing options...
Smart.Trading.Team Опубліковано: 14 вересня 2019 Автор Поділитись Опубліковано: 14 вересня 2019 А в спальнях пришлось повешать тканевые ролеты от солнца и это при том, что там еще и деревья есть. Чем то прийдется жертвовать однозначно. Идеальных планировок не бывает) Добавлено через 1 минуту Я бы сразу за тамбуром налево делал проход в кухню-гостиную, а не вел коридор таким огромным апендиксом. Есть возможность попасть в кухню прямо из тамбура, А гостей заводить в гостиную через кухню как по мне "Такое" Посилання на коментар Поділитися на інших сайтах More sharing options...
eugenem Опубліковано: 14 вересня 2019 Поділитись Опубліковано: 14 вересня 2019 Есть возможность попасть в кухню прямо из тамбура, А гостей заводить в гостиную через кухню как по мне "Такое" Но и вести через длиннющий темный коридор с поворотом - то же не вариант. Опять же, это просто мнение, итоговое решение однозначно за Вами. 1 Посилання на коментар Поділитися на інших сайтах More sharing options...
vadimv Опубліковано: 14 вересня 2019 Поділитись Опубліковано: 14 вересня 2019 Идеальных планировок не бывает)Часто слышу это от одного архитектора-видеоблогера. Но его можно понять - ему нужно продавать свои индивидуальные проекты. А с точки зрения заказчика... В общем, лично я считаю проект Z7 и его вариации вполне себе претендующим на звание "идеального". Если бы строил себе дом сейчас - то именно такой планировки. Посилання на коментар Поділитися на інших сайтах More sharing options...
Smart.Trading.Team Опубліковано: 15 вересня 2019 Автор Поділитись Опубліковано: 15 вересня 2019 я считаю проект Z7 и его вариации вполне себе претендующим на звание "идеального". Z7 Как по мне - это "квартира на земле" по габаритам, которая тоже имеет темный коридор. Посилання на коментар Поділитися на інших сайтах More sharing options...
Smart.Trading.Team Опубліковано: 15 вересня 2019 Автор Поділитись Опубліковано: 15 вересня 2019 По факту участок чуть повернут относительно сторон света. Север не строго вверху! Посилання на коментар Поділитися на інших сайтах More sharing options...
vadimv Опубліковано: 15 вересня 2019 Поділитись Опубліковано: 15 вересня 2019 По факту участок чуть повернут относительно сторон света. Север не строго вверху!Тем более я бы отзеркалил, чтобы большие окна гостиной выходили на юго-восток, а окна спален - на северо-запад. 2 Посилання на коментар Поділитися на інших сайтах More sharing options...
Smart.Trading.Team Опубліковано: 15 вересня 2019 Автор Поділитись Опубліковано: 15 вересня 2019 Тем более я бы отзеркалил, чтобы большие окна гостиной выходили на юго-восток, а окна спален - на северо-запад. Еще есть глобальные косяки? Посилання на коментар Поділитися на інших сайтах More sharing options...
Поляна Опубліковано: 15 вересня 2019 Поділитись Опубліковано: 15 вересня 2019 Еще есть глобальные косяки? Расположение камина. Черный ход на кухню. Наличие тамбура. Совершенно бесполезное помещение в центре дома. Совмещенные санузлы. Нет постирочной. Неправильная ориентация террасы и помещений по сторонам света. 1 Посилання на коментар Поділитися на інших сайтах More sharing options...
Рекомендовані повідомлення
Створіть акаунт або увійдіть у нього для коментування
Ви маєте бути користувачем, щоб залишити коментар
Створити акаунт
Зареєструйтеся для отримання акаунта. Це просто!
Зареєструвати акаунтУвійти
Вже зареєстровані? Увійдіть тут.
Увійти зараз