UncleStas Опубліковано: 19 вересня 2019 Поділитись Опубліковано: 19 вересня 2019 Санузел в многоэтажке. Сделана сантехника, в том числе кусочек теплого пола (заведена обратка из соседней комнаты). Стяжки нужно 7см. Площадь - 5.4м2 и 2.3м2. В жилых помещениях плавающая стяжка от застройщика. Есть сомнения как правильно делать стяжку в санузлах: 1. Нужно ли как-то изолировать канализационные трубы? Мне просится отделить их от стяжки что-то типа 5мм чего-то вспененного. Надо ли? 2. Под теплым полом лежит 2 см пенопласта. СтОит ли им укрыть весь пол? 3. Демпферная лента по стенам нужна? Или в санузлах по соображениям гидроизоляции ленту не ставят? 4. Трубы теплого пола можно заливать сейчас, или лучше подождать начала отопительного сезона? 5. Чем заливать? Есть что-то предпочтительное, или без разницы и брать что дешевле? Polimin СЦ-5 Ферозіт 425 Baumit Solido E225 BauGut DES Siltek F-20 Ну, и если вдруг кто хочет размяться по маленькой - договоримся! Посилання на коментар Поділитися на інших сайтах More sharing options...
Vitaliy67 Опубліковано: 19 вересня 2019 Поділитись Опубліковано: 19 вересня 2019 Обратка от батареи? Без ничего. 1 Посилання на коментар Поділитися на інших сайтах More sharing options...
UncleStas Опубліковано: 19 вересня 2019 Автор Поділитись Опубліковано: 19 вересня 2019 Обратка от батареи? Без ничего. Да, обратка от батареи. Без ничего, это в смысле между стяжкой и трубами канализации? Посилання на коментар Поділитися на інших сайтах More sharing options...
Vitaliy67 Опубліковано: 19 вересня 2019 Поділитись Опубліковано: 19 вересня 2019 У теплого пола и батареи разная температура теплоносителя., Отсюда вопрос: кто это сваял. 2 Посилання на коментар Поділитися на інших сайтах More sharing options...
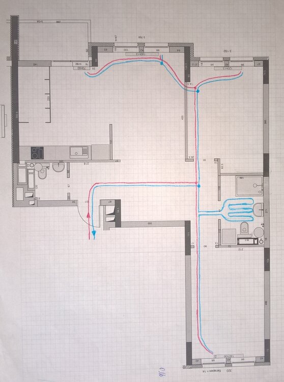
UncleStas Опубліковано: 19 вересня 2019 Автор Поділитись Опубліковано: 19 вересня 2019 (змінено) У теплого пола и батареи разная температура теплоносителя. Отопление в квартире проложено в стяжке, правда трубы в гофре. И я изначально планировал просто завести петлю обратки в санузел, но Исполнитель предложил сделать вот так. Я так понимаю, что Вы считаете, что телоноситель будет слишком горячим. Объясните, пожалуйста, чем это грозит, и я попрошу Исполнителя прокомментировать. Добавил фото точки подключения Змінено 19 вересня 2019 користувачем UncleStas добавил фото Посилання на коментар Поділитися на інших сайтах More sharing options...
мастерок Опубліковано: 19 вересня 2019 Поділитись Опубліковано: 19 вересня 2019 Ещё не поздно поставить мультибокс. 1 Посилання на коментар Поділитися на інших сайтах More sharing options...
UncleStas Опубліковано: 19 вересня 2019 Автор Поділитись Опубліковано: 19 вересня 2019 Ещё не поздно поставить мультибокс. А что это? Посилання на коментар Поділитися на інших сайтах More sharing options...
мастерок Опубліковано: 19 вересня 2019 Поділитись Опубліковано: 19 вересня 2019 Перепутал,гуглите унибокс. 1 Посилання на коментар Поділитися на інших сайтах More sharing options...
UncleStas Опубліковано: 19 вересня 2019 Автор Поділитись Опубліковано: 19 вересня 2019 Гугл говорит, что это регулятор теплого пола. Но тут вот какое дело. Прошлой зимой я случайно обнаружил, что пол над трубами отопления немого теплее. Обнаружил ползая коленями по мокрой стяжке. На сухой стяжке разница на ощупь не ощущается. Т.е. как бы какого-то существенного перегрева и дискомфорта не ожидается. Прошу прояснить, Вы считаете что сделано неправильно с точки зрения строительной нуки и практики (трещины, разрушение стяжки или труб, отслоение плитки и т.п.), или с точки зрения комфорта? ПС. Подрядчик - форумчанин, я его приглашу в тему когда будут ясны вопросы Посилання на коментар Поділитися на інших сайтах More sharing options...
мастерок Опубліковано: 19 вересня 2019 Поділитись Опубліковано: 19 вересня 2019 А на радиаторе у Вас термоголовка будет стоять?Возможно Ваш сантехник планирует одной головкой две точки регулировать?Это у Вас врезка в общую трассу или к подводку к одному радиатору? Просто положенно чтобы каждая точка имела свою регулировку и возможность отключения. 1 Посилання на коментар Поділитися на інших сайтах More sharing options...
UncleStas Опубліковано: 20 вересня 2019 Автор Поділитись Опубліковано: 20 вересня 2019 Термоголовки есть. Врезка в подводку одной комнаты. На фото - схема отопления от застройщика. Радиаторы стальные, тип 22. Отопление санузла теплым полом - по остаточному принципу, какое получится. О регулировании его даже не задумывался: избыток тепла в санузле - нестрашно, да и врядли он там будет, а недостаток регулировкой не восполнишь. Еще будут большой электрический полотенцесушитель и бойлер. Недеюсь, что этого хватит. Или я сильно заблуждаюсь? Посилання на коментар Поділитися на інших сайтах More sharing options...
Vitaliy67 Опубліковано: 20 вересня 2019 Поділитись Опубліковано: 20 вересня 2019 Ещё раз. У батареи и теплого пола разная температура теплоносителя. Поэтому свой регулятор на теплом полу обязателен. Грубо говоря для тп 25градусов будет с головой а батарея будет холодной. Тоже самое наоборот. В батарее 60 градусов, на теплый пол Вы просто не станете. 1 Посилання на коментар Поділитися на інших сайтах More sharing options...
UncleStas Опубліковано: 20 вересня 2019 Автор Поділитись Опубліковано: 20 вересня 2019 В батарее 60 градусов, на теплый пол Вы просто не станете. Тогда непонятно, как же я становлюсь на трассу на входе в квартиру и ничего не ощущаю? Посилання на коментар Поділитися на інших сайтах More sharing options...
Vitaliy67 Опубліковано: 20 вересня 2019 Поділитись Опубліковано: 20 вересня 2019 Вы хотите, что бы я Вас уговаривал, как сделать правильно? Мне это не надо. 1 Посилання на коментар Поділитися на інших сайтах More sharing options...
UncleStas Опубліковано: 20 вересня 2019 Автор Поділитись Опубліковано: 20 вересня 2019 Вы хотите, что бы я Вас уговаривал, как сделать правильно? Боже упаси! Давайте вынесем это за скобки. По вопросам из стартового сообщения Вы могли бы поделиться своим видением? Заранее спасибо Посилання на коментар Поділитися на інших сайтах More sharing options...
Vitaliy67 Опубліковано: 20 вересня 2019 Поділитись Опубліковано: 20 вересня 2019 Сделал бы теплый пол электрическим. Т.е мат в клей под плитку. Комфортно в любое время года. 2см пенопласта это не о чем. А на большее там банально нет высоты. 1 Посилання на коментар Поділитися на інших сайтах More sharing options...
UncleStas Опубліковано: 20 вересня 2019 Автор Поділитись Опубліковано: 20 вересня 2019 Спасибо. А канализацию от стяжки изолировали бы чем-то мягким? Посилання на коментар Поділитися на інших сайтах More sharing options...
Vitaliy67 Опубліковано: 20 вересня 2019 Поділитись Опубліковано: 20 вересня 2019 5мм чего-то вспененного. 1 Посилання на коментар Поділитися на інших сайтах More sharing options...
UncleStas Опубліковано: 20 вересня 2019 Автор Поділитись Опубліковано: 20 вересня 2019 Часть над теплым полом уже по факту плавающая. Остальное ж тоже наверно нужно делать плавающим? В этом смысле 2см пенопласта - это не столько утепление, сколько подложка под стяжку для экономии материала. Тогда и демпферная лента по стенам, получается, нужна. Правильно рассуждаю? Посилання на коментар Поділитися на інших сайтах More sharing options...
mazurati Опубліковано: 20 вересня 2019 Поділитись Опубліковано: 20 вересня 2019 Я б отих 2 см пінопласту все-таки поклав. По перше там не буде великої різниці температур(багатоповерхівка)+ менше витрата по матеріалу. Від стін стяжку відсікати , навіть з причин ударного шуму. 1 Посилання на коментар Поділитися на інших сайтах More sharing options...
UncleStas Опубліковано: 20 вересня 2019 Автор Поділитись Опубліковано: 20 вересня 2019 Я б отих 2 см пінопласту все-таки поклав Дякую! А як вважаєте, заливати краще при включеному опаленні? Чи це не важливо, і можна і холодні труби ховати під стяжку? ПС. ...тут подумав, що мабуть-таки краще заливати теплі труби, і десь через годин 8 перекрити опалення щоб не пересушувати стяжку. Чи на такому розмірі то є маячня? Посилання на коментар Поділитися на інших сайтах More sharing options...
mazurati Опубліковано: 20 вересня 2019 Поділитись Опубліковано: 20 вересня 2019 Заливайте безопалення. У нас що чекають початку опалювального сезону ,коли влаштовують стяжку😀. Ви краще за обратку подумайте- у мене щось похоже товаришеві зробили і він чавив +60' в систему- я уже дві плитки йому поміняв. 1 Посилання на коментар Поділитися на інших сайтах More sharing options...
UncleStas Опубліковано: 20 вересня 2019 Автор Поділитись Опубліковано: 20 вересня 2019 я уже дві плитки йому поміняв. Через перегрів? Це вже серйозно. Запросив Підрядника приєднатися до нашого обговорення. --- А тим часом, залишилось питання на яку суміш оріентуватись? Polimin СЦ-5 Ферозіт 425 Baumit Solido E225 BauGut DES Siltek F-20 Посилання на коментар Поділитися на інших сайтах More sharing options...
Vitaliy67 Опубліковано: 20 вересня 2019 Поділитись Опубліковано: 20 вересня 2019 А скакать по перегретому полу для Вас ещё не серьёзно? Силтек. Но это личные пристрастия. Укладывать плитку можно через 72часа. 1 Посилання на коментар Поділитися на інших сайтах More sharing options...
mazurati Опубліковано: 20 вересня 2019 Поділитись Опубліковано: 20 вересня 2019 Через перегрів? Це вже серйозно. Запросив Підрядника приєднатися до нашого обговорення. --- Так, забухтіла вона від температури тої, тепер смалить на 30'. Йому простіше, у нього автономка, а ось у вас центральна. 1 Посилання на коментар Поділитися на інших сайтах More sharing options...
Рекомендовані повідомлення
Створіть акаунт або увійдіть у нього для коментування
Ви маєте бути користувачем, щоб залишити коментар
Створити акаунт
Зареєструйтеся для отримання акаунта. Це просто!
Зареєструвати акаунтУвійти
Вже зареєстровані? Увійдіть тут.
Увійти зараз