Перейти до публікації
Пошук в
  • Додатково...
Шукати результати, які містять...
Шукати результати в...

Наш будущий дом ❤

*SAS*

Рекомендовані повідомлення

Здравствуйте, уважаемые форумчане!:flag1:

Читателем форума являюсь давно, написать повод появился только сейчас :)

Планируем строить дом

 

Опыта проживания, а тем более опыта стройки, нет даже отдаленно:oops:

 

Долго искала проект, просмотрела огромное количество вариантов.

Сошлись семьей на этом варианте с некоторыми переделками

Буду очень благодарна за комментарии, конструктивную критику, советы

А также разыскивается позитивный, легкий в общении, умеющий правильно слышать заказчика, толковый подрядчик для разработки проектной документации по этим картинкам с учетом наших пожеланий и Ваших опытных рекомендаций :)

Если Вас заинтересовала работа с данным проектом, присылайте, пожалуйста, свои предложения сразу с ценами.

Если Вы не разработчик, но Вам просто есть что сказать - пишите, мне интересны любые мнения :)

Заранее всем спасибо!

 

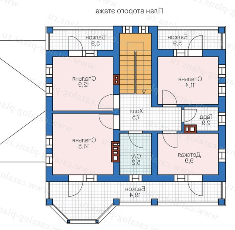
Пы. Сы. Прошу прощения за перевернутые картинки, нам больше подходит зеркальный вариант проекта, поэтому показываю именно их

 

Сразу напишу, что хотелось бы изменить в этом проекте мне:

- крышу над балконом (мне очень не нравится эта, но как сделать по другому я не знаю:oops:)

- муж вообще хочет сделать этому дому плоскую крышу, возможно?!

- остекление эркера я бы хотела максимально больше, насколько позволит конструкция

- окна в комнатах второго этажа вместо нескольких маленьких - одно большое

- убрать балконы на втором этаже с тыльной стороны

- уменьшить окно на лестнице

- убрать гардеробную на втором этаже с целью увеличить комнату. Но это ещё не точно :)

 

По сторонам света дом будет расположен так, что эркером смотрит на юг.

F5CEBE29-A1B5-4319-B048-8EAB72126AE1.thumb.jpeg.d03b0ee6c72b984e7cd5da5be007a1e6.jpeg

C8ED0474-F050-4ABE-8303-61541D37F31F.thumb.jpeg.d62680b12f94bebeb7029891ae32472e.jpeg

7EE2CE7B-125A-48A9-BCE8-701C34F7876A.thumb.jpeg.4ecc95692f9bace42e211ec90418cf21.jpeg

7AD61CC1-CC86-4CC1-8C32-706B0825E16B.thumb.jpeg.f502ac2ecfe5bf37491da4c0963f79d7.jpeg

17EAE0FE-CDC6-4EC7-9CB5-D5AE7898A975.jpeg.5d641b1e00c47a124d5b6cf28e5a074d.jpeg

2284AB3A-D471-4BEE-89E4-9DAD4FFBB705.jpeg.ad020ee9f6bf87e95ffa795dd9e304da.jpeg

2016B2E1-2910-4583-A9C5-908B1CF2B8E1.jpeg.bbae0fbeb93366d2280b89b79a7b4a00.jpeg

  • Лайк 1
Посилання на коментар
Поділитися на інших сайтах

Добрый день. С удовольствием выполним ваш проект. Есть государственная лицензия главного инженера проектов. Сразу сможем предложить дизайн интерьера вашего дома. Спасибо
  • Лайк 1
Посилання на коментар
Поділитися на інших сайтах

Буду очень благодарна за комментарии, конструктивную критику, советы

...

нам больше подходит зеркальный вариант проекта

...

По сторонам света дом будет расположен так, что эркером смотрит на юг.

У меня пока возник только один комментарий: в оригинале не зря терраса нарисована с восточной стороны.

И то, что вы хотите перенести ее на запад - это напрасно, ИМХО.

 

Когда терраса расположена на востоке, с утра до обеда воздух еще прохладный и тепло утреннего солнца приятно согревает.

 

А когда терраса на западной стороне, воздух после полудня уже горячий, а солнце еще добавляет жару.

И находиться на такой террасе приятно разве что на закате и после него.

 

В общем, подумайте.

  • Лайк 1
Посилання на коментар
Поділитися на інших сайтах

Добрый день.

 

С удовольствием сделаю Ваш проект.

Детали можно уточнить в личной переписке.

 

Обращайтесь.

 

 

С уважением, архитектор Сергей Белов.

  • Лайк 1
Посилання на коментар
Поділитися на інших сайтах

У меня пока возник только один комментарий: в оригинале не зря терраса нарисована с восточной стороны.

И то, что вы хотите перенести ее на запад - это напрасно, ИМХО.

 

Когда терраса расположена на востоке, с утра до обеда воздух еще прохладный и тепло утреннего солнца приятно согревает.

 

А когда терраса на западной стороне, воздух после полудня уже горячий, а солнце еще добавляет жару.

И находиться на такой террасе приятно разве что на закате и после него.

 

В общем, подумайте.

 

Спасибо большое за комментарий!

Именно этот проект не получится разместить на участке по другому((

Тут или проект менять или только так....

Посилання на коментар
Поділитися на інших сайтах

Всем здравствуйте!

Уважаемые архитекторы, всем, кто отписался здесь и в личку, большое спасибо!

Мы получили неожиданно много предложений и выбор предстоит очень сложный, ориентироваться только по цене я не хочу.

Я хочу понять, с кем комфортно работать, чьё видение совпадает с нашим, кому интересно не просто сделать очередную переделку чужого проекта, а вложить частичку себя и остаться довольным своей индивидуализацией проекта. И что самое главное сдали так, чтобы мы остались довольны)))

Пожалуйста, если вы готовы работать, если у Вас есть идеи и комментарии касательно именно нашего проекта, пишите их сразу, мне так проще будет сделать выбор:beer:

Посилання на коментар
Поділитися на інших сайтах

Всем-всем огромное спасибо за ответы и советы в личку!:Rose:

Мы очень внимательно все изучаем и учитываем дельные замечания!

Прошу прощения у тех, кому не смогла ответить в личку, меня форум заподозрил в продажах из-за большого количества личных сообщений и ограничил возможность 5-ю сообщениями в месяц(((

  • Лайк 1
Посилання на коментар
Поділитися на інших сайтах

Створіть акаунт або увійдіть у нього для коментування

Ви маєте бути користувачем, щоб залишити коментар

Створити акаунт

Зареєструйтеся для отримання акаунта. Це просто!

Зареєструвати акаунт

Увійти

Вже зареєстровані? Увійдіть тут.

Увійти зараз
×
×
  • Створити...