Antonxa Опубліковано: 19 лютого 2021 Поділитись Опубліковано: 19 лютого 2021 Здравствуйте, делаю ремонт в новостройке(9 этаж из 9ти), хочу не много передвинуть кухню Знаю, что мокрую зону нельзя переносить в жилую , у нас кухня осталась на территории кухни и немного коридора можно ли так выполнить подобную перепланировку, и какие подводные камни могут возникнуть? Заранее спасибо. Посилання на коментар Поділитися на інших сайтах More sharing options...
ChuykoArchitecture Опубліковано: 22 лютого 2021 Поділитись Опубліковано: 22 лютого 2021 Здравствуйте, делаю ремонт в новостройке(9 этаж из 9ти), хочу не много передвинуть кухню Знаю, что мокрую зону нельзя переносить в жилую , у нас кухня осталась на территории кухни и немного коридора можно ли так выполнить подобную перепланировку, и какие подводные камни могут возникнуть? Заранее спасибо. Питання два: - як вам зроблять техпаспорт на перепланування? - як вивести каналізацію та підвести воду до кухні? На коридори та кладовки мокрими приміщеннями залазити можна, а от на житлові приміщення - не можна. Хоча зараз є невелика лазівка про те що можна робити об'єднані кухні-вітальні за умови обладнання їх електроплитою. Теоретично можна сказати що сам кухонний фронт над кухнею, і так проскочити. Але тоді постає питання, що кімната у вас буде над/під кухнею іншого поверху, що не допускається. Також її площа не відповідає нормативам. Хоча ви можете назвати її холом, коридором. Але основне питання - технічне. Каналізація буде йти через дверний отвір. Тут треба піднімати стяжку, або ставити якісь насоси, треба дивитись. 2 Посилання на коментар Поділитися на інших сайтах More sharing options...
UncleStas Опубліковано: 23 лютого 2021 Поділитись Опубліковано: 23 лютого 2021 Питання два: - як вам зроблять техпаспорт на перепланування? - як вивести каналізацію та підвести воду до кухні? Еще вопрос - вентиляционные стояки. Как сохранить естественную вентиляцию кухонной зоны Посилання на коментар Поділитися на інших сайтах More sharing options...
ChuykoArchitecture Опубліковано: 23 лютого 2021 Поділитись Опубліковано: 23 лютого 2021 Еще вопрос - вентиляционные стояки. Как сохранить естественную вентиляцию кухонной зоны Вентиляцію ще можна організувати, щоправда примусову, коробами в стелі вивести до каналу. Якщо вже дуже треба - в підвісну стелю ховати, виводити цілу систему десь на балкон. Або просто привідкрите вікно. Але тоді виникає питання бюджету цієї затії. Посилання на коментар Поділитися на інших сайтах More sharing options...
UncleStas Опубліковано: 24 лютого 2021 Поділитись Опубліковано: 24 лютого 2021 Або просто привідкрите вікно. Понятно, что нужно приоткрыть окно. Иначе откуда приток возмется? А без притока не будет и оттока Посилання на коментар Поділитися на інших сайтах More sharing options...
olenai Опубліковано: 7 березня 2021 Поділитись Опубліковано: 7 березня 2021 у нас кухня осталась на территории кухни и немного коридора Во-первых, в новых ДБН, принятых то ли в 19, то ли в 20 году, нет запрета на расположение кухни над жилой. Во-вторых, сейчас БТИ не пишет в техпаспорте, что перепланировка незаконная, даже если она такая (это говорит сама БТИ у себя на сайте в вопросах-ответах). Просто делаете новый техпаспорт. Нотариус или ЦНАП по идее также не проверяют законность перепланировки. А вот канашка да, большой вопрос. Вам по идее нужно делать вход в кабинет возле балкона, чтобы труба канализации могла пройти в стене или вдоль стены. Посилання на коментар Поділитися на інших сайтах More sharing options...
ChuykoArchitecture Опубліковано: 7 березня 2021 Поділитись Опубліковано: 7 березня 2021 Во-первых, в новых ДБН, принятых то ли в 19, то ли в 20 году, нет запрета на расположение кухни над жилой. Читайте уважно ДБН В.2.2-15:2019 "Житлові будинки. Основні положення" 5.21 Не допускається розміщення туалету та ванної (або душової) над житловими кімнатами і кухнями. Ці приміщення допускається розміщувати над кухнею квартир, розташованих у двох або декількох рівнях. Не допускається кріплення приладів і трубопроводів безпосередньо до міжквартирних стін і перегородок, які огороджують житлові кімнати. Тобто ванну над кухнею робити можна, тільки якщо у вас дворівнева (або багаторівнева) квартира, і на нижньому рівні у вас кухня, а зверху над нею може бути ванна. Во-вторых, сейчас БТИ не пишет в техпаспорте, что перепланировка незаконная, даже если она такая (это говорит сама БТИ у себя на сайте в вопросах-ответах). Просто делаете новый техпаспорт. Нотариус или ЦНАП по идее также не проверяют законность перепланировки. Припустимо що не побачать, що не допишуть у техпаспорті, не перевірять. Але потім, коли ви захочете продати, чи провести будь яку дію з нерухомістю, це вилізе, і будуть проблеми. 1 Посилання на коментар Поділитися на інших сайтах More sharing options...
olenai Опубліковано: 7 березня 2021 Поділитись Опубліковано: 7 березня 2021 Тобто ванну над кухнею робити можна, тільки якщо у вас дворівнева (або багаторівнева) квартира, і на нижньому рівні у вас кухня, а зверху над нею може бути ванна. А где здесь ванная над кухней? Вроде ж они кухню хотят перенести над жилой. Ванную над кухней нельзя, конечно. Припустимо що не побачать, що не допишуть у техпаспорті, не перевірять. Але потім, коли ви захочете продати, чи провести будь яку дію з нерухомістю, це вилізе, і будуть проблеми. Я была бы только рада, если бы это было так Но не понимаю механизм. Вот вы получаете техпаспорт, который фиксирует текущую планировку (а это единственное, что сейчас делает БТИ в контексте техпаспорта - фиксирует существующее положение вещей). На нем печать БТИ и никаких пометок. По идее, нотариус или ЦНАП должны просто внести новые площади в реестр, больше нигде этот техпаспорт регистрировать не нужно (или нужно? Я долго искала ответ на этот вопрос, но не нашла). Когда вам нужно совершить следующее нотариальное действие с квартирой, у вас на руках техпаспорт, площадь в котором совпадает с реестровой, какие у кого могут быть претензии? Ну это не говоря уже о том, что нотариусы нынче в принципе не обязаны требовать при сделке свежий техпаспорт. Т.е. даже если техпаспорт старый и не совпадает с планировкой, это просто ограничит ваш выбор покупателя, если у того будет слишком рьяный нотариус. Посилання на коментар Поділитися на інших сайтах More sharing options...
ChuykoArchitecture Опубліковано: 7 березня 2021 Поділитись Опубліковано: 7 березня 2021 А где здесь ванная над кухней? Вроде ж они кухню хотят перенести над жилой. Ванную над кухней нельзя, конечно. Так в тому й справа що знизу інша квартира, і такий перенос не дозволяється. Тобто ваш висновок щодо розміщення кухні над кімнатою не є правдивим. Хіба що квартира на першому поверсі, тоді можна. Я была бы только рада, если бы это было так Но не понимаю механизм. Вот вы получаете техпаспорт, который фиксирует текущую планировку (а это единственное, что сейчас делает БТИ в контексте техпаспорта - фиксирует существующее положение вещей). На нем печать БТИ и никаких пометок. По идее, нотариус или ЦНАП должны просто внести новые площади в реестр, больше нигде этот техпаспорт регистрировать не нужно (или нужно? Я долго искала ответ на этот вопрос, но не нашла). Когда вам нужно совершить следующее нотариальное действие с квартирой, у вас на руках техпаспорт, площадь в котором совпадает с реестровой, какие у кого могут быть претензии? Ну это не говоря уже о том, что нотариусы нынче в принципе не обязаны требовать при сделке свежий техпаспорт. Т.е. даже если техпаспорт старый и не совпадает с планировкой, это просто ограничит ваш выбор покупателя, если у того будет слишком рьяный нотариус. Інвентаризатор повинен перевірити відмінності планування, та відповідність їх попередньому техпаспорту. Інвентаризатор несе відповідальність своїм сертифікатом. Є список робіт, які не підлягають погодженню, наприклад перенести двері у перегородці, розібрати стіну між кімнатою і коридором. Якщо у вас зміниться площа хоча б на 0.1 кв.м (а при будь-якому переплануванні вона зміниться), то треба переробляти техпаспорт, якщо ви хочете щоб юридично було все чисто. Ви можете його і не переробляти, може потім і вдасться впарити лоху комусь таку квартиру, але якщо покупець хоча б трохи поцікавиться, це питання вилізе моментально, і навряд чи хтось захоче купувати квартиру з проблемними документами, або будете робити суттєву знижку. Я вже мовчу про те, що при будь-якому непорозумінні з сусідами, по найдрібнішій причині, вони матимуть серйозні аргументи в судах проти вас. 1 Посилання на коментар Поділитися на інших сайтах More sharing options...
olenai Опубліковано: 7 березня 2021 Поділитись Опубліковано: 7 березня 2021 Так в тому й справа що знизу інша квартира, і такий перенос не дозволяється. Тобто ваш висновок щодо розміщення кухні над кімнатою не є правдивим. Хіба що квартира на першому поверсі, тоді можна. У меня ощущение, что мы на разных языках говорим. Располагать КУХНЮ над жилой по новым нормам МОЖНО. О переносе САНУЗЛА в посте нет вообще ни слова. Інвентаризатор повинен перевірити відмінності планування, та відповідність їх попередньому техпаспорту. Інвентаризатор несе відповідальність своїм сертифікатом. Это все прекрасная теория. На практике же, БТИ пишет, что: Также они пишут, что: Проте наше Бюро крім технічного паспорту надає замовнику можливість отримати довідку про показники об`єкта в якій зазначається наявність проведення будівельних робіт на об`єкті та необхідність отримання дозвільних документів на їх виконнаня. Т.е. могут, если заказчик попросит, но не обязаны. В кейсе выше, если я его правильно понимаю, и санузел там не над кухней, они напишут, что разрешение не нужно, площади изменились за счет законного изменения назначения помещений. Я вже мовчу про те, що при будь-якому непорозумінні з сусідами, по найдрібнішій причині, вони матимуть серйозні аргументи в судах проти вас. Хотелось бы хоть один кейс увидеть) Поймите, я не ратую за незаконные перепланировки. Во-первых, если в этом кейсе трогают санузел, то там все законно, хоть и не очень дружелюбно по отношению к соседям снизу. Во-вторых, процедура получения нового техпаспорта не такая, какой вы ее описываете, что подтверждают скрины с сайта КП КМБТИ выше. Посилання на коментар Поділитися на інших сайтах More sharing options...
olenai Опубліковано: 7 березня 2021 Поділитись Опубліковано: 7 березня 2021 Во-первых, если в этом кейсе трогают санузел, то там все законно, хоть и не очень дружелюбно по отношению к соседям снизу. НЕ трогают, конечно же, опечаталась. Посилання на коментар Поділитися на інших сайтах More sharing options...
NAVIN Опубліковано: 7 березня 2021 Поділитись Опубліковано: 7 березня 2021 Так в тому й справа що знизу інша квартира, і такий перенос не дозволяється. Тобто ваш висновок щодо розміщення кухні над кімнатою не є правдивим. Хіба що квартира на першому поверсі, тоді можна. Інвентаризатор повинен перевірити відмінності планування, та відповідність їх попередньому техпаспорту. Інвентаризатор несе відповідальність своїм сертифікатом. Є список робіт, які не підлягають погодженню, наприклад перенести двері у перегородці, розібрати стіну між кімнатою і коридором. Якщо у вас зміниться площа хоча б на 0.1 кв.м (а при будь-якому переплануванні вона зміниться), то треба переробляти техпаспорт, якщо ви хочете щоб юридично було все чисто. Ви можете його і не переробляти, може потім і вдасться впарити лоху комусь таку квартиру, але якщо покупець хоча б трохи поцікавиться, це питання вилізе моментально, і навряд чи хтось захоче купувати квартиру з проблемними документами, або будете робити суттєву знижку. Я вже мовчу про те, що при будь-якому непорозумінні з сусідами, по найдрібнішій причині, вони матимуть серйозні аргументи в судах проти вас. Это было лет так 15 назад, вы отстали. Последний абзац вообще чушь. Посилання на коментар Поділитися на інших сайтах More sharing options...
democlub Опубліковано: 7 березня 2021 Поділитись Опубліковано: 7 березня 2021 Якщо у вас зміниться площа хоча б на 0.1 кв.м (а при будь-якому переплануванні вона зміниться), то треба переробляти техпаспорт, якщо ви хочете щоб юридично було все чисто. Ви можете його і не переробляти, може потім і вдасться впарити лоху комусь таку квартиру, але якщо покупець хоча б трохи поцікавиться, це питання вилізе моментально, і навряд чи хтось захоче купувати квартиру з проблемними документами, або будете робити суттєву знижку. Бред сивой кобылы! БТИ - бюро технической инвентаризации. Их работа - зафиксировать состояние. Какая проблемность? Что и куда вылезет? Господи, откуда вылазят такие "архитекторы"-советчики? Я вже мовчу про те, що при будь-якому непорозумінні з сусідами, по найдрібнішій причині, вони матимуть серйозні аргументи в судах проти вас. Не несите чушь! Какие аргументы? В каких судах? Вы от юриспруденции так же далеки как и от архитектуры, похоже. Посилання на коментар Поділитися на інших сайтах More sharing options...
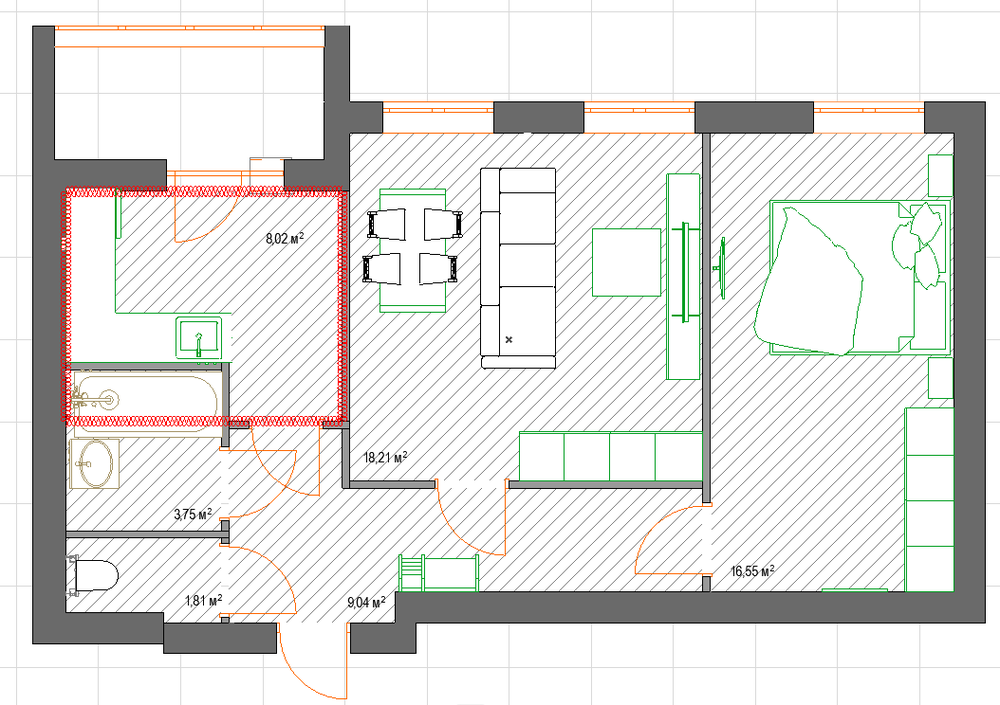
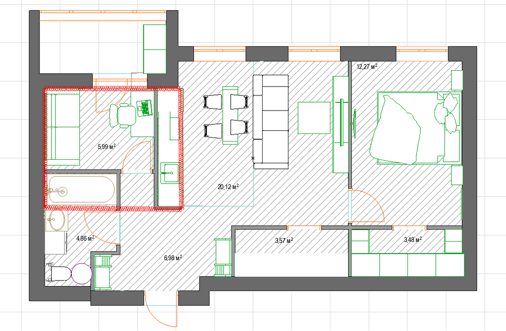
ChuykoArchitecture Опубліковано: 7 березня 2021 Поділитись Опубліковано: 7 березня 2021 (змінено) Это было лет так 15 назад, вы отстали. Последний абзац вообще чушь. Я не знаю що там було 15 років тому, але БТІ не існує вже років 10, тому що будь-хто, хто має профільний досвід роботи може отримати сертифікат та займатись технічною інвентаризацією. У мене близькі родичі займаються інвентаризацією, і постійно зі мною радяться щодо відповідності архітектурним нормам, тому що вони теж несуть відповідальність за свою роботу. Так що я не те щоб розказую теорію - а цілком собі практичні речі, з якими маю справу кожного дня. І можу таких історій розказати, як люди через, здавалось би, дрібниці мали серйозні проблеми. Добавлено через 2 минуты У меня ощущение, что мы на разных языках говорим. Располагать КУХНЮ над жилой по новым нормам МОЖНО. О переносе САНУЗЛА в посте нет вообще ни слова. Это все прекрасная теория. На практике же, БТИ пишет, что: [ATTACH]713901[/ATTACH] [ATTACH]713902[/ATTACH] [ATTACH]713903[/ATTACH] Также они пишут, что: Т.е. могут, если заказчик попросит, но не обязаны. В кейсе выше, если я его правильно понимаю, и санузел там не над кухней, они напишут, что разрешение не нужно, площади изменились за счет законного изменения назначения помещений. Хотелось бы хоть один кейс увидеть) Поймите, я не ратую за незаконные перепланировки. Во-первых, если в этом кейсе трогают санузел, то там все законно, хоть и не очень дружелюбно по отношению к соседям снизу. Во-вторых, процедура получения нового техпаспорта не такая, какой вы ее описываете, что подтверждают скрины с сайта КП КМБТИ выше. Тобто ви готові потім спертись у суді на відповіді на якомусь сайті у інтернеті, а не на конкретні пункти конкретних законів? Комунальні БТІ (це нащадки колишніх БТІ) зазвичай роблять все лиш би взяти гроші, а результат їх не цікавить. Вони зроблять техпаспорт, потім ви підете з ним робити акт права власності, а вам його завернуть назад, бо буде невідповідність. Реєстратори теж не захочуть брати на себе відповідальність. Ви повернетесь назад у БТІ, почнете обурюватись, а вони вам скажуть "так ви ж просили просто креслення, от ми вам його і зробили". А от якщо хочете щоб по цьому кресленню потім ви змогли оформити документи - давайте зробимо, але за інший прайс. Це я вам з реального досвіду реальних людей розказую. Це якби вам продали автомобіль без мотора, бо ви ж домовлялись про купівлю автомобіля, але ж ніхто не обумовив що він ще їхати має. По кухнях над кімнатами - так, вичитав ДБН, там це не заборонено. Був ще колись ДБН по реконструкції житла, там це заборонялось, але той ДБН вже недіючий. Добавлено через 6 минут Бред сивой кобылы! БТИ - бюро технической инвентаризации. Их работа - зафиксировать состояние. Какая проблемность? Что и куда вылезет? Господи, откуда вылазят такие "архитекторы"-советчики? Не несите чушь! Какие аргументы? В каких судах? Вы от юриспруденции так же далеки как и от архитектуры, похоже. Звідки вилазять такі радники по всіх питаннях? Скільки я таких самовпевнених бачив, які начитаються інтернету, або наслухаються порад знайомих, а потім влітають на гроші і розгрібають проблеми. Приходять потім з опущеними головами, і просять допомоги. І в панельних будинках отвори на перших поверхах розширяють, бо їм так хочеться. І на балконах забирають стіну, бо їм треба двері, а не двері з вікном. Стіни несучі довбають, бо кум в Москві на стройці робив. Оці якісь шахти, що в стінах йдуть, замуровують. zakon.rada.gov.ua/laws/show/406-2017-%D0%BF#Text - ось перелік робіт що не потребують дозволу на виконання. Там є перепланування, але з певними вимогами. І всеодно, після такого перепланування як у автора теми у вас зміниться площа. І загальна, і житлова. Тобто техпаспорт треба буде переробляти. Інвентаризатор прийде і буде дивитись, і якщо у нього щось викличе підозру - він почне перевіряти на відповідність ДБН. Наприклад, приміщення площею 5.99 кв.м. кімнатою бути не може, бо кімната має мати площу мінімум 8 кв.м. Кожна ж квартира має мати загальну кімнату площею не менше 14 кв.м. для 1К квартир, і 16 кв.м для більших квартир. Кухня має мати площу 8 кв.м., допускається об'єднання з вітальнею якщо там буде електроплита. Але тоді площа кухні і вітальні має бути разом 24 кв.м. (16+8). І ще повно таких нюансів, про які в інтернеті не напишуть, але які можна прочитати у ДБН-ах. В тому числі й про відстані між сусідніми будинками на різних ділянках, особливо якщо один з них дерев'яний. Змінено 7 березня 2021 користувачем ChuykoArchitecture Посилання на коментар Поділитися на інших сайтах More sharing options...
Музей Опубліковано: 13 березня 2021 Поділитись Опубліковано: 13 березня 2021 Припустимо що не побачать, що не допишуть у техпаспорті, не перевірять. Але потім, коли ви захочете продати, чи провести будь яку дію з нерухомістю, це вилізе, і будуть проблеми. Не знаю, що буде згодом, але наразі нікого не цікавить що і як розташоване в межах однієї або кількох квартир. Продається і купується без будь-яких ускладнень. Посилання на коментар Поділитися на інших сайтах More sharing options...
ChuykoArchitecture Опубліковано: 14 березня 2021 Поділитись Опубліковано: 14 березня 2021 Не знаю, що буде згодом, але наразі нікого не цікавить що і як розташоване в межах однієї або кількох квартир. Продається і купується без будь-яких ускладнень. Закон спрощує перепланування, але перепланування має відповідати законодавству, будівельним нормам. Пересічна людина не знає цього, але ці умови треба виконати. Сьогодні хтось перегородку забере, а завтра несучу стіну знесе, бо йому в інтернеті так порадили. Зазвичай такі радники не несуть відповідальності за свої поради, і при перших проблемах зникають з радарів. До мене особисто колись звертались люди - в панельній 10-поверхівці сусід почав на першому поверсі розширяти отвір у стіні. Питали - куди вони можуть звертатись, щоб перевірити чи дійсно так можна? Я порадив одразу в МНС звертатись. Те що продається та купується без проблем не означає що проблем не буде потім. 1 Посилання на коментар Поділитися на інших сайтах More sharing options...
Рекомендовані повідомлення
Створіть акаунт або увійдіть у нього для коментування
Ви маєте бути користувачем, щоб залишити коментар
Створити акаунт
Зареєструйтеся для отримання акаунта. Це просто!
Зареєструвати акаунтУвійти
Вже зареєстровані? Увійдіть тут.
Увійти зараз