schakewi4 Опубліковано: 17 квітня 2021 Поділитись Опубліковано: 17 квітня 2021 вот задумался нет ли такой программы чтоб в коробке заданных размеров раскидала комнаты в нужном количестве в разных вариациях? есть коробка 9х12, в ней нужно 2 спальни, большая гостинная, маленькая отдельная кухня и санузел. сколько планировок пересмотрел - ничего пока не нравится Посилання на коментар Поділитися на інших сайтах More sharing options...
Alvalk Опубліковано: 17 квітня 2021 Поділитись Опубліковано: 17 квітня 2021 Лучше самого себя никто не раскидает. Если самому не хочется этим заниматься, есть много сайтов с типовыми проектами. Достаточно задать этажность, площадь, количество комнат и посмотреть выданные варианты Посилання на коментар Поділитися на інших сайтах More sharing options...
vadimv Опубліковано: 17 квітня 2021 Поділитись Опубліковано: 17 квітня 2021 вот задумался нет ли такой программы чтоб в коробке заданных размеров раскидала комнаты в нужном количестве в разных вариациях?Для этого понадобится искусственный интеллект, который определит ориентацию по сторонам света, наличие соседей, коммуникаций, ограничений и т.д. и т.п. и со всеми этими неизвестными выдаст единственное верное решение. Посилання на коментар Поділитися на інших сайтах More sharing options...
whisker Опубліковано: 17 квітня 2021 Поділитись Опубліковано: 17 квітня 2021 вот задумался нет ли такой программы чтоб в коробке заданных размеров раскидала комнаты в нужном количестве в разных вариациях? есть коробка 9х12, в ней нужно 2 спальни, большая гостинная, маленькая отдельная кухня и санузел. сколько планировок пересмотрел - ничего пока не нравится В бескоридорных решениях всего 6 или 7 вариантов. Какие нужны спальни ? Смежные? Разнесенные? Маленькая кухня - зло. Площадь 9х12 вполне позволяет иметь 12 метров. Двухспальная планировка в таких габаритах более чем реализуема. Туда даже три спальни пихают. Просмотрите на этом форуме тему "однэтажные дома без коридоров". Или вбейте в поисковой строке " 2 bedroom house plans". Посилання на коментар Поділитися на інших сайтах More sharing options...
ChuykoArchitecture Опубліковано: 18 квітня 2021 Поділитись Опубліковано: 18 квітня 2021 вот задумался нет ли такой программы чтоб в коробке заданных размеров раскидала комнаты в нужном количестве в разных вариациях? есть коробка 9х12, в ней нужно 2 спальни, большая гостинная, маленькая отдельная кухня и санузел. сколько планировок пересмотрел - ничего пока не нравится www.311institute.com/this-ai-will-design-your-house-over-and-over-again/ - ось, є щось подібне. Але це ж іграшка, не більше. Теоретично можна написати алгоритм який врахує всі фактори, але наразі він не написаний, і навряд чи у ньому буде потреба, особливо для індивідуального будівництва. І не факт що ви будете потім задоволені цим результатом, оскільки машина рахує математично, а будинок все ж має емоційну складову. Наразі чогось кращого, ніж досвід та знання ергономіки, ще не придумали. Якщо ви передивились багато планувань, але нічого не подобається, то варто взяти конкретну ділянку, описати свої побажання, та звернутись до архітектора, щоб він проконсультував вас. 1 Посилання на коментар Поділитися на інших сайтах More sharing options...
schakewi4 Опубліковано: 21 квітня 2021 Автор Поділитись Опубліковано: 21 квітня 2021 www.311institute.com/this-ai...nd-over-again/ там есть пробный период? что-то я не нахожу если у Вас есть мембершип может гренерируете мне пару вариантов за какую-то деньгу меньшую чем сорокофунтовая? Посилання на коментар Поділитися на інших сайтах More sharing options...
ChuykoArchitecture Опубліковано: 21 квітня 2021 Поділитись Опубліковано: 21 квітня 2021 там есть пробный период? что-то я не нахожу если у Вас есть мембершип может гренерируете мне пару вариантов за какую-то деньгу меньшую чем сорокофунтовая? Я не вникав взагалі у цей функціонал, поняття не маю як він працює. Також, як практикуючий архітектор, я не бачу практичного застосування йому, особливо у сегменті індивідуального будівництва. Показані схеми є настільки сирими та приблизними, що їх треба все одно доробляти. Хорощий архітектор зробить вам такі самі планування, але вони будуть зручними та реальними. Є напрям генеративної архітектури, де алгоритми створюють планування, та симулюють різні процеси, від руху людей до руху сонця, створюють форму будівлі по заданих параметрах, але він використовується в основному для складних будівель та нестандартних рішень. Або коли важлива стандартизація та типологія, коли треба модульність. Для чого саме вам потрібно генерувати планування? stanislaschaillou.com/thesis/GAN/unit_program/ - ось ще знайшов забавку 1 Посилання на коментар Поділитися на інших сайтах More sharing options...
Alvalk Опубліковано: 21 квітня 2021 Поділитись Опубліковано: 21 квітня 2021 @schakewi4, зря Вы зацикливаетесь на искусственном интеллекте. Я себе рисовал проект с примерно такими же вводными данными (2 спальни, кухня-гостинная, 2 санузла, техпомещение), но в меньшем размере (88-90м2). Хотя любой их них легко адаптируется под 9х12 и Ваши базовые требования. У меня этих вариантов куча (некоторые по сути являются вариациями одного и того же), но толку от них - почти ноль, потому что действительно хорошие и интересные получились только три, а под купленный участок подошли только 2. Пока планирую вариант с пристроенным гаражом: https://www.stroimdom.com.ua/forum/showthread.php?t=242112 но есть проект с такой же планировкой и без гаража. К чему это я? Можно сколь угодно долго искать проекты, но пока нет земли - это все без толку, ибо располагать и ориентировать дом надо в зависимости от размеров участка, сторон света и фасада, и строений на соседских участках. И лучшее, что Вы найдете, может совершенно не вписываться под конкретный участок. Либо придется себя ограничить в выборе участка, ориентируясь на заранее запланированный проект, что тоже не всегда оправданно. 2 Посилання на коментар Поділитися на інших сайтах More sharing options...
schakewi4 Опубліковано: 21 квітня 2021 Автор Поділитись Опубліковано: 21 квітня 2021 Для чого саме вам потрібно генерувати планування? есть коробка 8х12, в ней нужно 2 спальни, большая гостинная, маленькая отдельная кухня и санузел хотел сгенирить штук 30 различных комбинаций и выбрать или вдохновится и нарисовать Можно сколь угодно долго искать проекты, но пока нет земли - это все без толку, ибо располагать и ориентировать дом надо в зависимости от размеров участка, сторон света и фасада, и строений на соседских участках. так это все есть Посилання на коментар Поділитися на інших сайтах More sharing options...
Alvalk Опубліковано: 21 квітня 2021 Поділитись Опубліковано: 21 квітня 2021 так это все есть так давайте схему участка и коробки с максимумом информации (стороны света, фасад, соседские постройки) - и дело пойдет. Посилання на коментар Поділитися на інших сайтах More sharing options...
schakewi4 Опубліковано: 21 квітня 2021 Автор Поділитись Опубліковано: 21 квітня 2021 по плану я накидал нечто... 2 цветные стены на плане - несущие. внешние проемы можно сказать почти все на месте (вместо входной двери сейчас окно что тоже неплохо). в одном помещении которое 10м2, это кухня, окон не получается - нужно прорезать поэтому не рисовал Посилання на коментар Поділитися на інших сайтах More sharing options...
schakewi4 Опубліковано: 21 квітня 2021 Автор Поділитись Опубліковано: 21 квітня 2021 участок Посилання на коментар Поділитися на інших сайтах More sharing options...
Alvalk Опубліковано: 21 квітня 2021 Поділитись Опубліковано: 21 квітня 2021 ну если там уже 2 несущий - пространства для маневра немного. Тут точно искусственный интеллект не поможет. А со сторонами света что? И с размерами непонятки. Судя по клеткам, там не 9х12, а 7х12 Посилання на коментар Поділитися на інших сайтах More sharing options...
air bus Опубліковано: 21 квітня 2021 Поділитись Опубліковано: 21 квітня 2021 участок на схемі в вас від дороги 1,5 метра? Посилання на коментар Поділитися на інших сайтах More sharing options...
schakewi4 Опубліковано: 21 квітня 2021 Автор Поділитись Опубліковано: 21 квітня 2021 на картинке с участок я нарисовал стороны света да, с размерами я чуть напутал, внешние стены 40см, вот и выходит что снаружи ~8 а внутри ~7 но на нарисованом мною плане они тонкие поэтому на 100% не сходится, сорри Добавлено через 38 секунд на схемі в вас від дороги 1,5 метра? да верно Посилання на коментар Поділитися на інших сайтах More sharing options...
air bus Опубліковано: 21 квітня 2021 Поділитись Опубліковано: 21 квітня 2021 да верно є норми відступів від меж ділянки, червоних ліній, ліній електропередач - вони всі більші за 1,5 метра спробуйте отримати містобудівні умови - в них мають бути прописані всі обмеження, що до розташування будівель та споруд Посилання на коментар Поділитися на інших сайтах More sharing options...
Alvalk Опубліковано: 21 квітня 2021 Поділитись Опубліковано: 21 квітня 2021 на картинке с участок я нарисовал стороны света ок, я когда писал ответ, этого сообщения с участком еще не было На самом деле если не трогать внутренние стены, мне кажется, Вы и так все расположили оптимально. Единственное - тамбур тесноват. Ну а по сторонам света все сориентировать - тут уже вряд ли получится так, как хочется Посилання на коментар Поділитися на інших сайтах More sharing options...
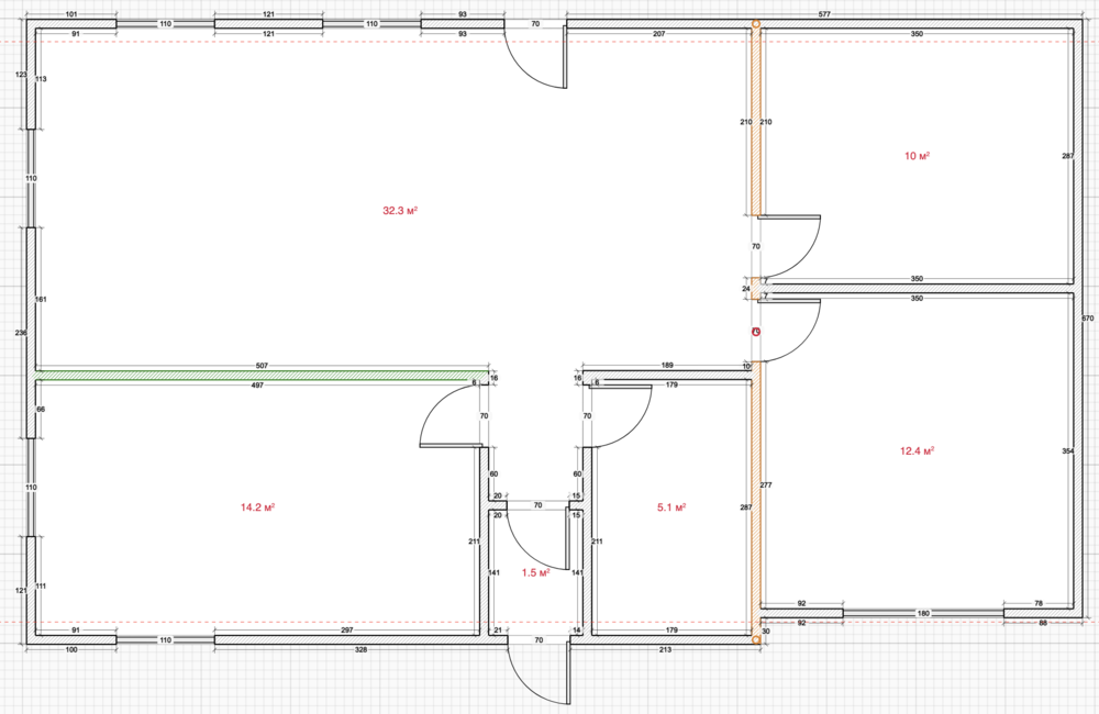
schakewi4 Опубліковано: 21 квітня 2021 Автор Поділитись Опубліковано: 21 квітня 2021 я когда тему создавал рисовал полный отстой а вчера ночью пришла муза... следущие моменты можно изменить/доработать 1. если надо, кухню со спальней можно местами поменять и стенку между ними сдвинуть. не знаю сколько дать кухне а сколько спальне и расположение мне их одинаково 2. Стенку ванной можно скосить или ее дверь сделать в гостиную а не в коридор, дверь большой спальни тоже 3. Стенка между тамбуром и ванной должна быть в себя встроить узкий шкаф как-то . Тоже не Ясно сколько ширины дать тамбуру а сколько ванной 4. Дверь во двор наверное лучше расширить , сделать типа как балконный блок, дверь+окно, типа как выход на терассу, одинокая дверь смотрится не будет или вообще ее заложить и сделать ее из кухни? Посилання на коментар Поділитися на інших сайтах More sharing options...
vadimv Опубліковано: 21 квітня 2021 Поділитись Опубліковано: 21 квітня 2021 стенку между ними сдвинуть ... верь во двор наверное лучше расширить Вы так лихо сносите несущие стенки и расширяете проемы, что так и тянет спросить - они из чего у вас сделаны? А крыша при этом должна оставаться на месте или тоже разберете? Посилання на коментар Поділитися на інших сайтах More sharing options...
schakewi4 Опубліковано: 21 квітня 2021 Автор Поділитись Опубліковано: 21 квітня 2021 стены в полтора кирпича там где парадная дверь сейчас стоит окно шириной 1,6м дело было 10 лет назад и было 23 годика там было окно шириной 1,1м я вырезал желоб над окном и вставил туда тавровую балку в виде перемычки которая своей шириной перекрыла 25-30см, еще полкирпича висят в воздухе.... полет нормальный там где зеленая несущая стена, как видите она как бы должна до конца идти а она обрывается... так было не всегда..... взял я тогда 10 деревянных столбов и подпер каждую балку по обе стороны бывшей стены, разобрал верхние ряды кирпича, влепил туда двутавровую балку, убрал столбы и разобрал несущую стену начал я эти стены рушить в пятницу в 9 утра, после того как я домой пришел часа в 3 ночи бухой после дискотеки я сам сейчас охренаваю как я тогда мог? Добавлено через 3 минуты кста я на днях напишу, хочу у Вас книжку купить Посилання на коментар Поділитися на інших сайтах More sharing options...
schakewi4 Опубліковано: 23 квітня 2021 Автор Поділитись Опубліковано: 23 квітня 2021 по планировке никаких советов/критики больше??? Посилання на коментар Поділитися на інших сайтах More sharing options...
apxitektop.s Опубліковано: 23 квітня 2021 Поділитись Опубліковано: 23 квітня 2021 по планировке никаких советов/критики больше??? да, можете строить , но у вас нет ничего по факту, что можно критиковать )? Посилання на коментар Поділитися на інших сайтах More sharing options...
schakewi4 Опубліковано: 23 квітня 2021 Автор Поділитись Опубліковано: 23 квітня 2021 как нет если я нарисовал план? какой еще факт нужен? Посилання на коментар Поділитися на інших сайтах More sharing options...
ChuykoArchitecture Опубліковано: 23 квітня 2021 Поділитись Опубліковано: 23 квітня 2021 по планировке никаких советов/критики больше??? Це не планування, це просто набір ліній. Навіть не ескіз. Я таких схем за 10 хвилин кілька намалюю. Там ні розмірів точних, ні меблів, ні товщин стін, ні матеріалів, ні комунікацій, конструктив то взагалі невідомо який. Вам важлива картинка, чи зручний будинок? Посилання на коментар Поділитися на інших сайтах More sharing options...
schakewi4 Опубліковано: 23 квітня 2021 Автор Поділитись Опубліковано: 23 квітня 2021 я хотел раскидать комнаты по коробке как отправная точка, про мебель я думаю думать пока рано тем более пространства для маневра не так уж и много, большая спальня сама по себе сформировалась, кухня и вторая спальня занимает правую часть как самый рациональный вариант Добавлено через 25 минут Узкие помещения входной зоны, узкие двери, нет места для шкафа возле входа, один санузел, нет инф-ции по кладовке, котельной, не указана терраса Узкие помещения входной зоны - посоветуйте адекватный минимум ширины? там компромис между ванной и тамбуром кладовки нет, не вижу смысла тратить на нее место - планирую большие шкафы в комнатах и все размещать в них про террасу молчу потому что не знаю пока, с северной стороны наверное террасу не строят? значит с южной, а нужна ли она вообще или лучше беседку в паре метров от дома? котельная равно двухконтурный котел на кухне Посилання на коментар Поділитися на інших сайтах More sharing options...
Рекомендовані повідомлення
Створіть акаунт або увійдіть у нього для коментування
Ви маєте бути користувачем, щоб залишити коментар
Створити акаунт
Зареєструйтеся для отримання акаунта. Це просто!
Зареєструвати акаунтУвійти
Вже зареєстровані? Увійдіть тут.
Увійти зараз