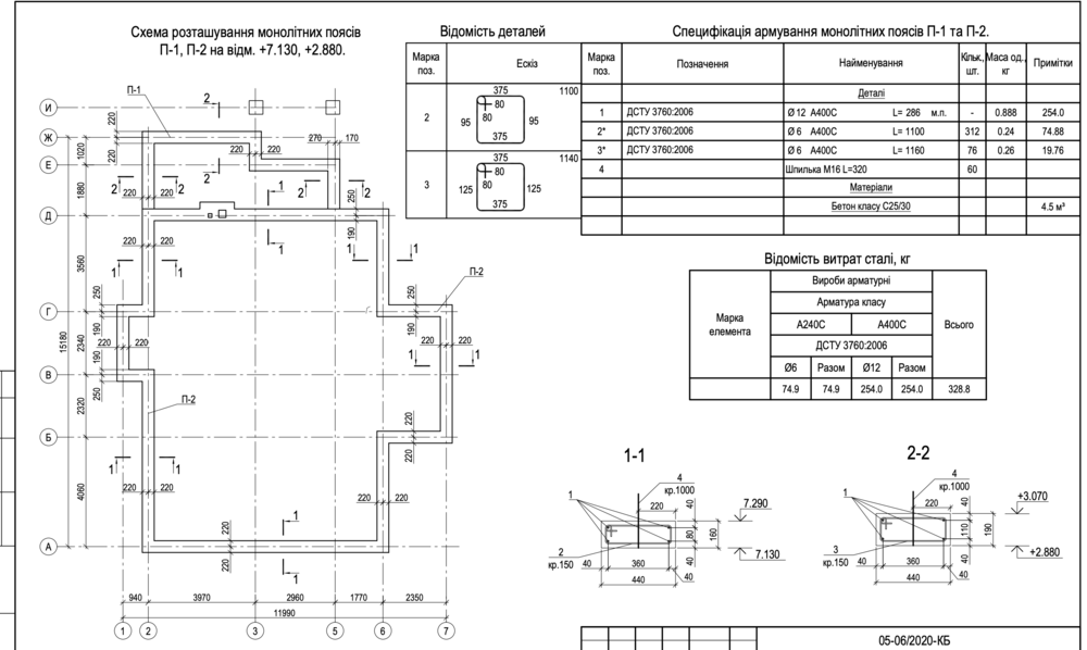
Akkerman77 Опубліковано: 22 червня 2021 Поділитись Опубліковано: 22 червня 2021 Добрый день. Возникло желание заменить один ряд керамоблока армопоясом. Этому есть свои причины. Меня интересует обустройство армопояса в этом случае. По проекту (см. картинку, армопояс 1-1) армопояс должен быть 440мм шириной и 160мм высотой. Этот армопояс укладывается на керамоблок высотой 250мм (под керамоблоком монолитная плита перекрытия). Соответственно, чтобы выйти на проектную высоту, нужно залить армопояс 440мм шириной и 410мм высотой (250+160 = 410). В проекте армопояс армируется 4 прутками 12 арматуры. По средине вставляются шпильки под мауэрлат. Какой каркас желательно использовать для нового армопояса? Спасибо. Посилання на коментар Поділитися на інших сайтах More sharing options...
Maxim Bulderovskiy Опубліковано: 24 червня 2021 Поділитись Опубліковано: 24 червня 2021 Привет, смотри, если у тебя многослойная стена, снаружи ограждением выступает утепляющая кладка то смело используй щитовую опалубку с внутренней стороны, каркас армпояса делай из качественной сетки и прутьев, думаю с этим у тебя вопросов не возникнет. Сеток, так то, всяких разных много, можно в принципе использовать любую, все дело в нагружености конструкции. [url]https://pic-distribution.ua/setka-metallicheskaja-u-pik-distribjush/[/url] смотри внизу на слайдерах, рабица если что не в счет))) :beer: Посилання на коментар Поділитися на інших сайтах More sharing options...
Narval Опубліковано: 24 червня 2021 Поділитись Опубліковано: 24 червня 2021 Такой же 4 прутка 12 арматуры. Посилання на коментар Поділитися на інших сайтах More sharing options...
Akkerman77 Опубліковано: 24 червня 2021 Автор Поділитись Опубліковано: 24 червня 2021 А есть какой-то способ закрепить опалубку для армопояса, не засверливаясь в монолитную плиту перекрытия? Боюсь, что строители могут в арматуру попасть и в моем представлении это весьма опасно, особенно если по всему периметру плиты. С дюбелением в стену из керамоблока я смирился, а вот с плитой никак не могу решиться.. Посилання на коментар Поділитися на інших сайтах More sharing options...
shneider_vova Опубліковано: 25 червня 2021 Поділитись Опубліковано: 25 червня 2021 А плита выполнена уже? Посилання на коментар Поділитися на інших сайтах More sharing options...
Akkerman77 Опубліковано: 25 червня 2021 Автор Поділитись Опубліковано: 25 червня 2021 [QUOTE=shneider_vova;5331559]А плита выполнена уже?[/QUOTE] Да, плита уже готова Посилання на коментар Поділитися на інших сайтах More sharing options...
Narval Опубліковано: 25 червня 2021 Поділитись Опубліковано: 25 червня 2021 А у вас армопояс сверху плиты или под плитой? Посилання на коментар Поділитися на інших сайтах More sharing options...
Akkerman77 Опубліковано: 25 червня 2021 Автор Поділитись Опубліковано: 25 червня 2021 [QUOTE=Narval;5331611]А у вас армопояс сверху плиты или под плитой?[/QUOTE] Сверху плиты. Армопояс под мауэрлат. Посилання на коментар Поділитися на інших сайтах More sharing options...
Narval Опубліковано: 25 червня 2021 Поділитись Опубліковано: 25 червня 2021 [QUOTE=Akkerman77;5331744]Сверху плиты. Армопояс под мауэрлат.[/QUOTE] Выложите периметр газоблоком или керамоблоком (если есть) толщиной 100 Наружная часть нагрузку нести не будет. Можете использовать кирпич на ребро, но гб по теплу лучше. Можете и внутреннюю опалубку так же сделать. Можете и сверху армопояса тоже положить 100 гб под мауэрлат (такие конструктивные решения тоже есть) Посилання на коментар Поділитися на інших сайтах More sharing options...
Рекомендовані повідомлення
Створіть акаунт або увійдіть у нього для коментування
Ви маєте бути користувачем, щоб залишити коментар
Створити акаунт
Зареєструйтеся для отримання акаунта. Це просто!
Зареєструвати акаунтУвійти
Вже зареєстровані? Увійдіть тут.
Увійти зараз