kuka Опубліковано: 13 листопада 2009 Поділитись Опубліковано: 13 листопада 2009 (змінено) Всем, кто не равнодушно относится к теме частного строительства, предоставляется тема для обсуждения. Стал такой вопрос - квартира или ...что? дом, дом, дом! очень долго искали участок чтобы цена, а также все аспекты устраивали потребностям. Вот вид на участок с высоты птичьего полета. Место тихое, не смотря на присутствие трассы неподалеку. И так, что мы имеем. 12 соток давно заросшие ромашкой, 3 деревца, свет и газ по улице, и как не странно воды тоже нет. Решил, делать: Свет(220; 380) стоил 6000 грн. Газ 11000 грн. за разрешение от кооператива, на подключение в магистраль, но еще горгазу надо будет платить Скважина 70м - 28000 грн Змінено 13 листопада 2009 користувачем kuka Посилання на коментар Поділитися на інших сайтах More sharing options...
kuka Опубліковано: 13 листопада 2009 Автор Поділитись Опубліковано: 13 листопада 2009 начал строиться лишь в октябре 2008, а о том ,что можно вести фоторепортаж додумался когда фундамент закончили Посилання на коментар Поділитися на інших сайтах More sharing options...
kuka Опубліковано: 13 листопада 2009 Автор Поділитись Опубліковано: 13 листопада 2009 перепад грунта 1,5 метра . Посилання на коментар Поділитися на інших сайтах More sharing options...
kuka Опубліковано: 13 листопада 2009 Автор Поділитись Опубліковано: 13 листопада 2009 начнем немного подробнее рассматривать дом. Размеры 14м*18м, фундамент: фбс 1-йэтаж: высота 3м перекрытие: пк 2-й этаж: мансарда, высота стен 1,5м , потолок 2,7м кровля : стропила дерево , металлочерепица Стены будут из пенополистирола- думая будет тепло, все-таки утепление с двух сторон по 50мм . Посилання на коментар Поділитися на інших сайтах More sharing options...
kuka Опубліковано: 13 листопада 2009 Автор Поділитись Опубліковано: 13 листопада 2009 вот такой должен быть дом Посилання на коментар Поділитися на інших сайтах More sharing options...
kuka Опубліковано: 13 листопада 2009 Автор Поділитись Опубліковано: 13 листопада 2009 И так, доделывать армопояс. Сбили опалубку и еще вспомогательный лоток, т.к. водители редко берут с собой дополнительный лоток с собой. Посилання на коментар Поділитися на інших сайтах More sharing options...
Dex-paketa Опубліковано: 13 листопада 2009 Поділитись Опубліковано: 13 листопада 2009 а сколько соток участок? Посилання на коментар Поділитися на інших сайтах More sharing options...
kuka Опубліковано: 13 листопада 2009 Автор Поділитись Опубліковано: 13 листопада 2009 12 сото 30*40. Посилання на коментар Поділитися на інших сайтах More sharing options...
kuka Опубліковано: 13 листопада 2009 Автор Поділитись Опубліковано: 13 листопада 2009 а сколько соток участок? 12 соток, размер 30*40 Посилання на коментар Поділитися на інших сайтах More sharing options...
INTERRO Опубліковано: 13 листопада 2009 Поділитись Опубліковано: 13 листопада 2009 Удачи! 1 Посилання на коментар Поділитися на інших сайтах More sharing options...
kuka Опубліковано: 13 листопада 2009 Автор Поділитись Опубліковано: 13 листопада 2009 вот готовый армопояс и первые блоки. технологию осваивали находу, потому что, строил сам и Брат мой помогал(основные моменты). нанял ребят студентов 4 человека - понеслась. Как оказалось, блоки не самого лучшего качества. Плоскость невозможно словить т.к. блоки неровные, то вогнутые , то выгнутые. Ну вобщем, приловчились. Посилання на коментар Поділитися на інших сайтах More sharing options...
kuka Опубліковано: 13 листопада 2009 Автор Поділитись Опубліковано: 13 листопада 2009 Удачи! Спасибо, куда без нее Посилання на коментар Поділитися на інших сайтах More sharing options...
kuka Опубліковано: 13 листопада 2009 Автор Поділитись Опубліковано: 13 листопада 2009 первый ряд залили, дали выстояться и пошло дело - ряд за рядом. Кстати об экономии данной технологии. В моем случае , я думаю, немного пошло удорожание из-за арматуры - 5,5 т, а также цемент, его немного-немало 400 мешков. Арматуру использовал 10 и 12. на фотографиях будет видно сколько ее было и сколько еще будет=)) Посилання на коментар Поділитися на інших сайтах More sharing options...
jonni_d Опубліковано: 13 листопада 2009 Поділитись Опубліковано: 13 листопада 2009 это сразу буквально на въезде слева внизу ? там ещё дом из красного облицовочного кирпича, 2008 года, после зимы весь белый в высолах был Посилання на коментар Поділитися на інших сайтах More sharing options...
kuka Опубліковано: 13 листопада 2009 Автор Поділитись Опубліковано: 13 листопада 2009 Да еще, может кому пригодится совет. Щебень лучше всего заказывать прямо с каменоломни(Кременчугская) ближайшая к Харькову. Так в два раза дешевле будет, конечно если его обьем не 5-10 тонн. И в принципе со всеми подобными материалами, у меня такой возможности не было, т.к. участок не охраняется. 1 Посилання на коментар Поділитися на інших сайтах More sharing options...
kuka Опубліковано: 13 листопада 2009 Автор Поділитись Опубліковано: 13 листопада 2009 это сразу буквально на въезде слева внизу ? там ещё дом из красного облицовочного кирпича, 2008 года, после зимы весь белый в высолах был Напротив школы недостроенной Посилання на коментар Поділитися на інших сайтах More sharing options...
don-maks Опубліковано: 13 листопада 2009 Поділитись Опубліковано: 13 листопада 2009 удачи земляк симпотный домик должен получиться 1 Посилання на коментар Поділитися на інших сайтах More sharing options...
Vasiliy P. Melnik Опубліковано: 14 листопада 2009 Поділитись Опубліковано: 14 листопада 2009 перерасход арматуры и неправильно. (ссылка устарела) (ссылка устарела) Посилання на коментар Поділитися на інших сайтах More sharing options...
TARO Опубліковано: 14 листопада 2009 Поділитись Опубліковано: 14 листопада 2009 (змінено) перерасход арматуры и неправильно. (ссылка устарела) (ссылка устарела) Если учесть перепад в 1,5м, склон, все верно. Никакой это не перерасход, а спокойствие на многие лета. Это не те деньги, ну может чуток больше времени уходит на вязку. У нас тоже приличное армирование - просадочные грунты. У нас расчитывал конструктор - итого имеем: 1) фундаментная монолитная плита. Армирование: нижняя сетка арматура 12 мм, верхняя 10 мм, ячейка 200 х 200 мм 2) цоколь (2 м под землей, 1 метр над) , первый этаж, мансардный этаж (полностью из термоблоков). Крыша - битумка. Армирование: арматура 10 мм, каждая ячейка ТБ по две арматурины, каждый ряд по две арматурины. Перехлест в местах стыков 300 - 400 мм. Арматуру вязали пластиковыми хомутами. Змінено 14 листопада 2009 користувачем TARO Посилання на коментар Поділитися на інших сайтах More sharing options...
Олег самострой Опубліковано: 14 листопада 2009 Поділитись Опубліковано: 14 листопада 2009 перерасход арматуры и неправильно. (ссылка устарела) (ссылка устарела) Полностью согдасен с перерасходом арматуры (очень часто пувкаеш вертикальные ) будто строишь пятиэтажку для землетрясения в 8 балов Из-за этого перерасход арматуры (зто деньги - лучше пусти ее на монолитное перекрытие) Посилання на коментар Поділитися на інших сайтах More sharing options...
Vasiliy P. Melnik Опубліковано: 14 листопада 2009 Поділитись Опубліковано: 14 листопада 2009 Это все равно перерасход - пусть Вам и спокойно от того, что вы закопали лишние 10-15 тыс грн. С дуру можно и больше вснуть Кстати, одноэтажный термодом делается вообще без арматуры. Посилання на коментар Поділитися на інших сайтах More sharing options...
kuka Опубліковано: 14 листопада 2009 Автор Поділитись Опубліковано: 14 листопада 2009 Согласен за перерасход. Но строится для себя, а поэтому и закладывается по максимуму. Тем более расчет делал конструктор, парень толковый(он работает в конторе, готовят проекты монолитных высоток на Россию). У меня и с фундаментом тоже можно сказать перерасход на рисунке видно.Это с учетом того, что подвального помещения нет, а геодезия впорядке, т.е. ни плавунов ничего нет, просто вот так по-русски решили сделать=)) я думая на этом фундаменте можно и церковь строить. Да, вот что еще, бетон использовал одной марки В 22, и арматуру всю 12, щебень стандартно 20*40. Посилання на коментар Поділитися на інших сайтах More sharing options...
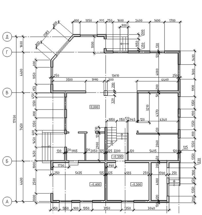
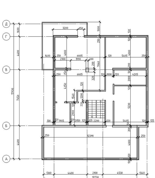
kuka Опубліковано: 14 листопада 2009 Автор Поділитись Опубліковано: 14 листопада 2009 Добавляю план дома. Если у кого есть желание что-то добавить, критика - пожалуйста на все 100. Может идеи есть какие? 1 этаж(сверху - вниз, слева - направо): кухня, гостинная,холл,кинотеатр=), санузел, гостевая комната,гараж,бойлерная. 2 этаж: наша комната (с выходом на балкон, гардероб, санузел), две детские, терасса 1 Посилання на коментар Поділитися на інших сайтах More sharing options...
Gitan Опубліковано: 14 листопада 2009 Поділитись Опубліковано: 14 листопада 2009 С почином! 1 Посилання на коментар Поділитися на інших сайтах More sharing options...
kuka Опубліковано: 14 листопада 2009 Автор Поділитись Опубліковано: 14 листопада 2009 И так, двигаем дальше. Коммуникации закладывали в стены. На окна перемычки не бросали, просто сделали достаточное армирование по контуру проема, и постапили опалубку. Над окном еще два ряда блоков, поэтому решили , что хватит и этого. Посилання на коментар Поділитися на інших сайтах More sharing options...
Рекомендовані повідомлення
Створіть акаунт або увійдіть у нього для коментування
Ви маєте бути користувачем, щоб залишити коментар
Створити акаунт
Зареєструйтеся для отримання акаунта. Це просто!
Зареєструвати акаунтУвійти
Вже зареєстровані? Увійдіть тут.
Увійти зараз