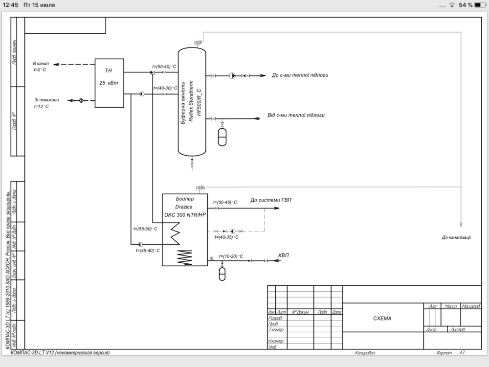
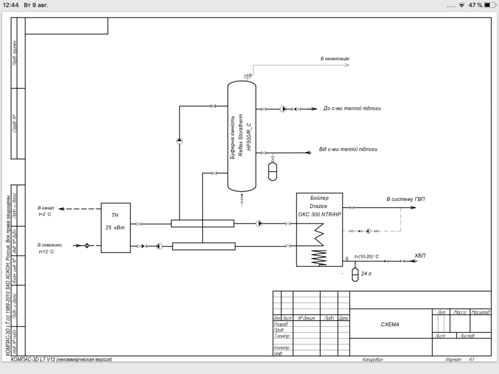
alenka_81 Опубліковано: 15 липня 2022 Поділитись Опубліковано: 15 липня 2022 Добрый день! Прошу помощи специалистов прокомментировать схему на ТН «вода-вода». Оборудование в наличии. ТН 25 кВт (компрессор Copeland Scroll ZP83KCE-TFD-422), буферная емкость на 500л, бойлер ГВС косвенного нагрева с возможностью установки ТЭНа (Drazice OKC 300 NTR/HP). Потребители: тёплый пол и ГВС. Посилання на коментар Поділитися на інших сайтах More sharing options...
Пролин Опубліковано: 15 липня 2022 Поділитись Опубліковано: 15 липня 2022 3 часа назад, alenka_81 сказал: прокомментировать схему на ТН «вода-вода» Отсутствует грунтовый контур. Контур зарядки водонагревателя имеет лишний насос. Насос между ТН и баком нужно поставить ближе к ТН и тогда он сможет обеспечивать циркуляцию на бочку или на теплообменник водонагревателя при переключении трехходового клапана. Обратку из системы отопления я бы направил не в бочку, а мимо нее, - прямо в контур теплового насоса. На водонагревателях не ставят группы безопасно котла. Посилання на коментар Поділитися на інших сайтах More sharing options...
Gitan Опубліковано: 15 липня 2022 Поділитись Опубліковано: 15 липня 2022 12 град С из скважины сильно оптимистично. У меня зимой 5 максимум при работающем ТН. Посилання на коментар Поділитися на інших сайтах More sharing options...
alenka_81 Опубліковано: 15 липня 2022 Автор Поділитись Опубліковано: 15 липня 2022 3 часа назад, Пролин сказал: Отсутствует грунтовый контур. Контур зарядки водонагревателя имеет лишний насос. Насос между ТН и баком нужно поставить ближе к ТН и тогда он сможет обеспечивать циркуляцию на бочку или на теплообменник водонагревателя при переключении трехходового клапана. Обратку из системы отопления я бы направил не в бочку, а мимо нее, - прямо в контур теплового насоса. На водонагревателях не ставят группы безопасно котла. А возможна эта схема без трехходового клапана-на циркуляционных насосах (если позволяет автоматика)? И какие ее ньюансы? Посилання на коментар Поділитися на інших сайтах More sharing options...
Пролин Опубліковано: 15 липня 2022 Поділитись Опубліковано: 15 липня 2022 6 минут назад, alenka_81 сказал: А возможна эта схема без трехходового клапана Насос ТН главный, он обычно работает вместе с компрессором и направляет тепло на бочку. Контроллер ТН должен управлять трехходовым, который переключит поток на теплообменник в водонагревателе. Без трехходового и контроллера затекание в теплообменник можно организовать с помощью двухходового термостатического клапана с термоголовкой, датчик которой перекроет затекание в теплообменник при достижении в водонагревателе заданной температуры. При этом при работе компрессора по температуре бочки будет одновременно нагреваться до какойто температуры водонагреватель. Потребуется скорее всего догрев тэном. Посилання на коментар Поділитися на інших сайтах More sharing options...
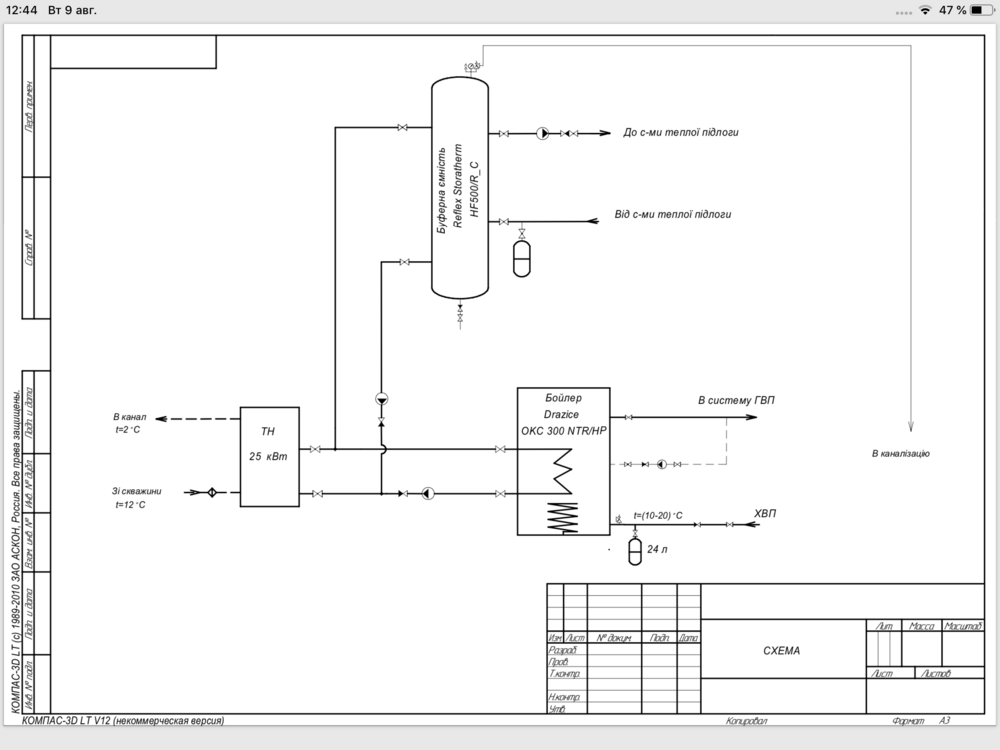
alenka_81 Опубліковано: 9 серпня 2022 Автор Поділитись Опубліковано: 9 серпня 2022 Добрый день! В продолжение разговора. Будет ли работать такая схема на циркуляционных насосах, управляемых контроллером ТН? Посилання на коментар Поділитися на інших сайтах More sharing options...
alenka_81 Опубліковано: 9 серпня 2022 Автор Поділитись Опубліковано: 9 серпня 2022 В 15.07.2022 в 20:45, Пролин сказал: Насос ТН главный, он обычно работает вместе с компрессором и направляет тепло на бочку. Контроллер ТН должен управлять трехходовым, который переключит поток на теплообменник в водонагревателе. Без трехходового и контроллера затекание в теплообменник можно организовать с помощью двухходового термостатического клапана с термоголовкой, датчик которой перекроет затекание в теплообменник при достижении в водонагревателе заданной температуры. При этом при работе компрессора по температуре бочки будет одновременно нагреваться до какойто температуры водонагреватель. Потребуется скорее всего догрев тэном. Или может лучше через коллектор? Посилання на коментар Поділитися на інших сайтах More sharing options...
volomoto Опубліковано: 9 серпня 2022 Поділитись Опубліковано: 9 серпня 2022 3 години тому, alenka_81 сказав: Добрый день! В продолжение разговора. Будет ли работать такая схема на циркуляционных насосах, управляемых контроллером ТН? А ТН має вбудований насос? Посилання на коментар Поділитися на інших сайтах More sharing options...
Пролин Опубліковано: 9 серпня 2022 Поділитись Опубліковано: 9 серпня 2022 9 часов назад, alenka_81 сказал: Будет ли работать такая схема на циркуляционных насосах, управляемых контроллером ТН? Гидравлически при включении насоса буфера будет циркулировать петля конденсатор тн-буфер, при включении насоса бойлера будет циркулировать петля конденсатор-бойлер. Но на схеме нет контроллера тн. Какова его логика? Нет топологии датчиков температуры. Кого включит контроллер первым перед включением компрессора? Посилання на коментар Поділитися на інших сайтах More sharing options...
Пролин Опубліковано: 9 серпня 2022 Поділитись Опубліковано: 9 серпня 2022 10 часов назад, alenka_81 сказал: Или может лучше через коллектор? Рисовать гидравлическую схему нужно глядя в инструкцию контроллера теплового насоса. Там обычно находится типовая схема. Посилання на коментар Поділитися на інших сайтах More sharing options...
alenka_81 Опубліковано: 10 серпня 2022 Автор Поділитись Опубліковано: 10 серпня 2022 В 09.08.2022 в 16:24, volomoto сказал: А ТН має вбудований насос? В ТН насосу немає Посилання на коментар Поділитися на інших сайтах More sharing options...
alenka_81 Опубліковано: 10 серпня 2022 Автор Поділитись Опубліковано: 10 серпня 2022 22 часа назад, Пролин сказал: Рисовать гидравлическую схему нужно глядя в инструкцию контроллера теплового насоса. Там обычно находится типовая схема. По контролеру есть только видео, но понимания схемы у меня нет( Посилання на коментар Поділитися на інших сайтах More sharing options...
volomoto Опубліковано: 15 серпня 2022 Поділитись Опубліковано: 15 серпня 2022 (змінено) 10.08.2022 в 22:05, alenka_81 сказав: В ТН насосу немає Тоді до ТН має йти схема гідравлічної та елекричної частини, по якій і треба все робити. Якщо такої схеми нема, викидайте той ТН. Змінено 15 серпня 2022 користувачем volomoto Посилання на коментар Поділитися на інших сайтах More sharing options...
alenka_81 Опубліковано: 19 серпня 2022 Автор Поділитись Опубліковано: 19 серпня 2022 В 15.08.2022 в 13:38, volomoto сказал: Тоді до ТН має йти схема гідравлічної та елекричної частини, по якій і треба все робити. Якщо такої схеми нема, викидайте той ТН. На жаль викинути не можу. Це вже третя спроба налагодити опалення в цьому будинку, а незабаром зима. Треба вже зробити хоть щось) Посилання на коментар Поділитися на інших сайтах More sharing options...
90BCO Опубліковано: 19 серпня 2022 Поділитись Опубліковано: 19 серпня 2022 1 час назад, alenka_81 сказал: На жаль викинути не можу. Це вже третя спроба налагодити опалення в цьому будинку, а незабаром зима. Треба вже зробити хоть щось) Будь який сучасний пристрій має назву моделі, чи виробника... Вже шукали документацію, чи в Вас підписка Google прострочена ? 🤷♂️ Посилання на коментар Поділитися на інших сайтах More sharing options...
alenka_81 Опубліковано: 19 серпня 2022 Автор Поділитись Опубліковано: 19 серпня 2022 1 час назад, 90BCO сказал: Будь який сучасний пристрій має назву моделі, чи виробника... Вже шукали документацію, чи в Вас підписка Google прострочена ? 🤷♂️ Якби було де - прочитала б і не турбувала людей. Хочу закінчити систему, яку почав батько в своєму будинку і не встиг закінчити - помер. Проплатив насос Ochsner. Насос не поставили. Оскільки гроші теж повністю не повернули, вирішив спробувати насос місцевого кулібіна (він значно дешевший). А на нього докуметації немає, є тільки основні пояснення від виробника, але питань більше ніж відповідей. 1 Посилання на коментар Поділитися на інших сайтах More sharing options...
90BCO Опубліковано: 19 серпня 2022 Поділитись Опубліковано: 19 серпня 2022 2 минуты назад, alenka_81 сказал: Якби було де - прочитала б і не турбувала людей. Хочу закінчити систему, яку почав батько в своєму будинку і не встиг закінчити - помер. Проплатив насос Ochsner. Насос не поставили. Оскільки гроші теж повністю не повернули, вирішив спробувати насос місцевого кулібіна (він значно дешевший). А на нього докуметації немає, є тільки основні пояснення від виробника, але питань більше ніж відповідей. Вибачте. Може, @Entheos допоможе? Посилання на коментар Поділитися на інших сайтах More sharing options...
alenka_81 Опубліковано: 19 серпня 2022 Автор Поділитись Опубліковано: 19 серпня 2022 (змінено) 10 минут назад, 90BCO сказал: Вибачте. Може, @Entheos допоможе? Та нічого Змінено 19 серпня 2022 користувачем alenka_81 Посилання на коментар Поділитися на інших сайтах More sharing options...
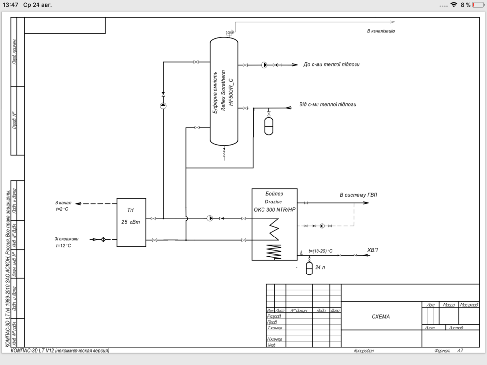
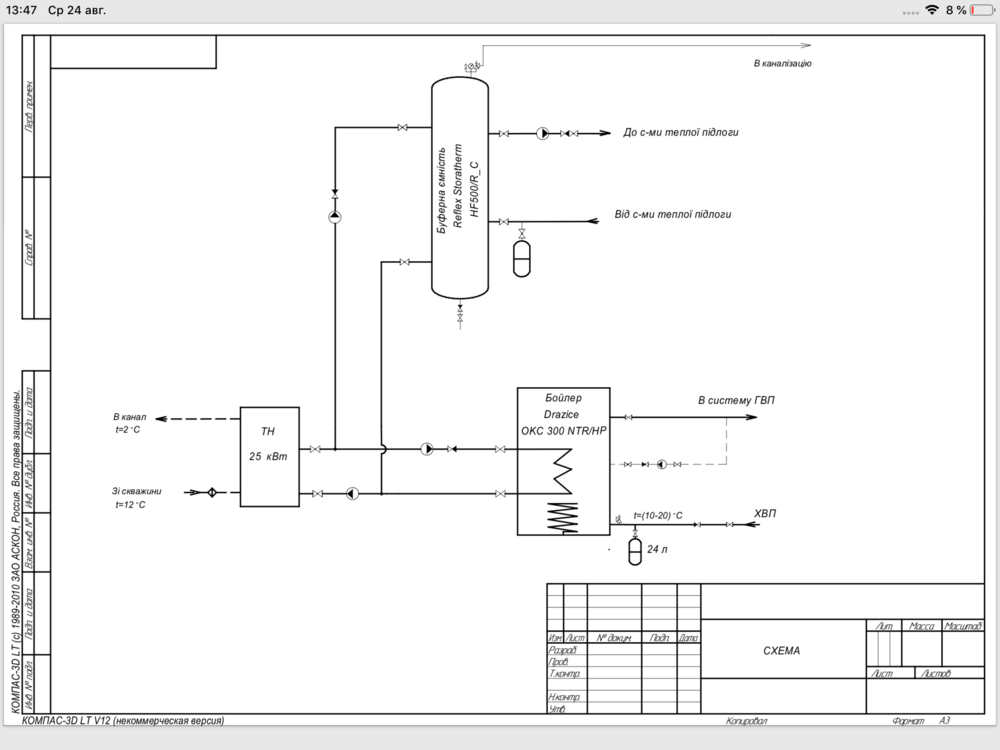
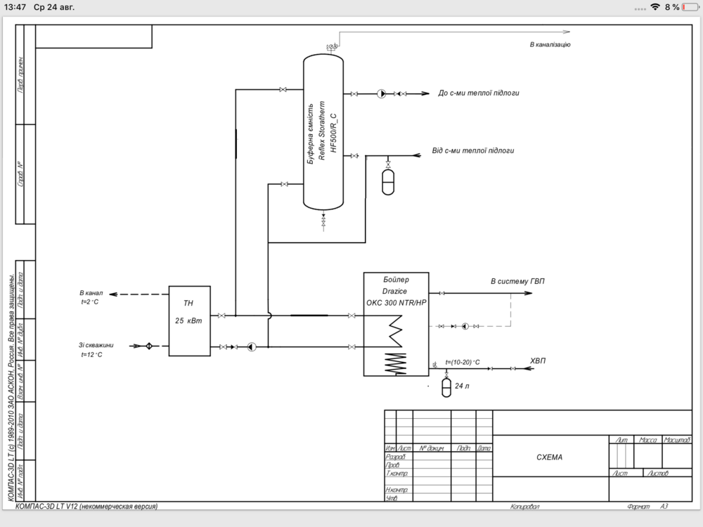
alenka_81 Опубліковано: 24 серпня 2022 Автор Поділитись Опубліковано: 24 серпня 2022 Добрий день! Зупинились на такій схемі. Циркуляційними насосами керує контролер теплового насосу. ГВС в пріоритеті. Завжди працює насос на обратці ТН та, в залежності від потреби, насос на опалення або на ГВС. Можете прокоментувати? Посилання на коментар Поділитися на інших сайтах More sharing options...
Пролин Опубліковано: 24 серпня 2022 Поділитись Опубліковано: 24 серпня 2022 1 час назад, alenka_81 сказал: Циркуляційними насосами керує контролер теплового насосу Работая на гвс в приоритете контроллер заставляет тн поднимать температуру теплоносителя, чтобы быстрее выполнить приоритетную задачу? Посилання на коментар Поділитися на інших сайтах More sharing options...
alenka_81 Опубліковано: 24 серпня 2022 Автор Поділитись Опубліковано: 24 серпня 2022 (змінено) 1 час назад, Пролин сказал: Работая на гвс в приоритете контроллер заставляет тн поднимать температуру теплоносителя, чтобы быстрее выполнить приоритетную задачу? Да, ТН выдаёт температуру согласно установленной на контроллере отдельно для отопления отдельно для ГВС Змінено 24 серпня 2022 користувачем alenka_81 Посилання на коментар Поділитися на інших сайтах More sharing options...
Пролин Опубліковано: 24 серпня 2022 Поділитись Опубліковано: 24 серпня 2022 3 минуты назад, alenka_81 сказал: Да, ТН выдаёт температуру согласно установленной на контроллере отдельно для отопления отдельно для ГВС И температура для гвс может быть больше, чем для отопления? Какую максимальную температуру тн может поддерживать? Посилання на коментар Поділитися на інших сайтах More sharing options...
alenka_81 Опубліковано: 24 серпня 2022 Автор Поділитись Опубліковано: 24 серпня 2022 4 минуты назад, Пролин сказал: И температура для гвс может быть больше, чем для отопления? Какую максимальную температуру тн может поддерживать? Да. Может и 55, но тогда кпд совсем низкий. Я думала попробовать греть бойлер ГВС до температуры 40-45, у нас бойлер 300 литров на 3 человек. Посмотреть будет ли хватать. Если неудобно, тогда подключить ТЕН в бойлере (есть возможность установки двух ТЕНов), и управлять им с контроллера (это надо дописывать в коде, в базе такой возможности нет). Например, до 35 греет ТН, дальше включается ТЕН и догревает диапазон 35-55. Посилання на коментар Поділитися на інших сайтах More sharing options...
Пролин Опубліковано: 24 серпня 2022 Поділитись Опубліковано: 24 серпня 2022 7 минут назад, alenka_81 сказал: Я думала попробовать греть бойлер ГВС до температуры 40-45 Это говорит о том, что гвс и отопление может обеспечиваться одним уровнем температуры. Тогда можно рассмотреть вариант тн1, когда 40 градусным теплоносителем будет обеспечено затекание в теплообменник водонагревателя и в буферную емкость. Можно рассмотреть вариант тн, когда должен работать или насос гвс или насос буфера. Посилання на коментар Поділитися на інших сайтах More sharing options...
alenka_81 Опубліковано: 25 серпня 2022 Автор Поділитись Опубліковано: 25 серпня 2022 21 час назад, Пролин сказал: Это говорит о том, что гвс и отопление может обеспечиваться одним уровнем температуры. Тогда можно рассмотреть вариант тн1, когда 40 градусным теплоносителем будет обеспечено затекание в теплообменник водонагревателя и в буферную емкость. Можно рассмотреть вариант тн, когда должен работать или насос гвс или насос буфера. Не уверена, что в первом варианте насос сможет подать воду и в буфер и в бойлер... Второй вариант рассматривали, но у нас в ТН коаксиальный теплообменник, что бы его «продавить» нужен отдельный насос. Вы перерисовали обратку с тёплого пола мимо буфера, в ТН. В этом случае на ТН возвращается более охлажденная вода? Посилання на коментар Поділитися на інших сайтах More sharing options...
Рекомендовані повідомлення
Створіть акаунт або увійдіть у нього для коментування
Ви маєте бути користувачем, щоб залишити коментар
Створити акаунт
Зареєструйтеся для отримання акаунта. Це просто!
Зареєструвати акаунтУвійти
Вже зареєстровані? Увійдіть тут.
Увійти зараз