Спартак Опубліковано: 8 січня 2023 Поділитись Опубліковано: 8 січня 2023 (змінено) Хочу сделать окна из дуба, подскажите по технологии. Погонаж створки и коробки руками реально или нужен автоподатчик? Змінено 8 січня 2023 користувачем Спартак 1 Посилання на коментар Поділитися на інших сайтах More sharing options...
ЧП Ненашев А Б Опубліковано: 9 січня 2023 Поділитись Опубліковано: 9 січня 2023 Ви у домашніх умовах хочете зробити вікна? Це - абсурд. Звертайтесь до нас - ми із 1998 року цим займаємось. Посилання на коментар Поділитися на інших сайтах More sharing options...
Спартак Опубліковано: 9 січня 2023 Автор Поділитись Опубліковано: 9 січня 2023 11 часов назад, ЧП Ненашев А Б сказал: Ви у домашніх умовах хочете зробити вікна? Це - абсурд. Звертайтесь до нас - ми із 1998 року цим займаємось. Абсурд? Это сложный но реальный проект. Не все получается. Сейчас я осознал что нужно сделать к станку шипорезную каретку. Точности при совсем ручном режиме мало. Нужно прямо десятки ловить. А вот погонаж совсем беда. Немного рукой дернул и все( 1 Посилання на коментар Поділитися на інших сайтах More sharing options...
Спартак Опубліковано: 9 січня 2023 Автор Поділитись Опубліковано: 9 січня 2023 (змінено) 11 часов назад, ЧП Ненашев А Б сказал: Ви у домашніх умовах хочете зробити вікна? Це - абсурд. Звертайтесь до нас - ми із 1998 року цим займаємось. Подскажите, какие бренды грунтов и красок для дуба? Хочу почитать, сравнить, принять решение. Змінено 9 січня 2023 користувачем Спартак Посилання на коментар Поділитися на інших сайтах More sharing options...
Спартак Опубліковано: 9 січня 2023 Автор Поділитись Опубліковано: 9 січня 2023 Еще по клею вопрос: Я купил однокомпонентный пва, но часто слышу о 2х компонентных . И именно когда о окнах речь. Посилання на коментар Поділитися на інших сайтах More sharing options...
ЧП Ненашев А Б Опубліковано: 10 січня 2023 Поділитись Опубліковано: 10 січня 2023 12 часов назад, Спартак сказал: Подскажите, какие бренды грунтов и красок для дуба? Хочу почитать, сравнить, принять решение. Ми у покрасці використовуємо матеріали двох виробників: - ADLER (Австрія) - Remmers (Німеччина). Нижче приведу тільки для ADLER (Австрія): - лак Aquawood DSL Q10 SG: adler-lacke.com.ua/products/paints-windows-and-doors/aquawood-dsl-q10-sg/ - проміжне покриття Aquawood Intermedio ISO: adler-lacke.com.ua/products/paints-windows-and-doors/aquawood-intermedio-iso/ - грунт Aquawood TIG E: adler-lacke.com.ua/products/paints-windows-and-doors/aquawood-tig-e/ 2 Посилання на коментар Поділитися на інших сайтах More sharing options...
ЧП Ненашев А Б Опубліковано: 10 січня 2023 Поділитись Опубліковано: 10 січня 2023 13 часов назад, Спартак сказал: Еще по клею вопрос: Я купил однокомпонентный пва, но часто слышу о 2х компонентных . И именно когда о окнах речь. Зараз використовуйємо такий клей 1 Посилання на коментар Поділитися на інших сайтах More sharing options...
DimaF Опубліковано: 10 січня 2023 Поділитись Опубліковано: 10 січня 2023 18 часов назад, Спартак сказал: Абсурд? Это сложный но реальный проект. Вы нереально круты Я даже не мог представить что в наше время кто то так может заморочится) 1 Посилання на коментар Поділитися на інших сайтах More sharing options...
Спартак Опубліковано: 10 січня 2023 Автор Поділитись Опубліковано: 10 січня 2023 (змінено) Добрый. У меня по факту кривая створка на руках. Не от хорошей жизни этим занимаюсь. Правда, получаю в некотором смысле удовольствие от работы с деревом. Дуб еще не резал. Купил около куба столярного, типа сухой (промерял, прибор показал 20 процентов)) пока лежит. Договорился с человеком что привезет кругляк дуба в конце января. Хочу распустить на доски и пусть «сохнет» лет 5. Подскажите: руками брус(погонаж) на универсальном фрезерном с прижимами реально или полюбому траблы будут? Я малейшее движение делаю неосторожное иипрямо вижу как портится материал. Спасибо! Змінено 10 січня 2023 користувачем Спартак Посилання на коментар Поділитися на інших сайтах More sharing options...
Спартак Опубліковано: 11 січня 2023 Автор Поділитись Опубліковано: 11 січня 2023 Добрый. У меня по факту кривая створка на руках. Не от хорошей жизни этим занимаюсь. Правда, получаю в некотором смысле удовольствие от работы с деревом. Дуб еще не резал. Купил около куба столярного, типа сухой (промерял, прибор показал 20 процентов)) пока лежит. Договорился с человеком что привезет кругляк дуба в конце января. Хочу распустить на доски и пусть лежит лет 5. Подскажите: руками брус(погонаж) на универсальном фрезерном с прижимами реално или полюбому траблы будут? Я малейшее движение делаю неосторожное иипрямо вижу как портится материал. Спасибо! Еще по фурнитуре вопросы. Заказал комплект штульповой рото. Визуально качество норм, но интересно что еще есть из брендов для дерева. Масо не нашел предложений у себя. Какие вы ставите варианты? Спасибо! Посилання на коментар Поділитися на інших сайтах More sharing options...
ЧП Ненашев А Б Опубліковано: 11 січня 2023 Поділитись Опубліковано: 11 січня 2023 У вікнах ми застосовуємо фурнітуру виключно МАСО. А вологість віконного брусу повинна бути 10%. 1 Посилання на коментар Поділитися на інших сайтах More sharing options...
Спартак Опубліковано: 11 січня 2023 Автор Поділитись Опубліковано: 11 січня 2023 Спасибо. Масо покупаете у какого поставщика если не секрет? Посилання на коментар Поділитися на інших сайтах More sharing options...
ЧП Ненашев А Б Опубліковано: 11 січня 2023 Поділитись Опубліковано: 11 січня 2023 АРКАДА-ПЛАСТ, він же МАСКИП furniturka.com.ua/standart/pc/ 1 Посилання на коментар Поділитися на інших сайтах More sharing options...
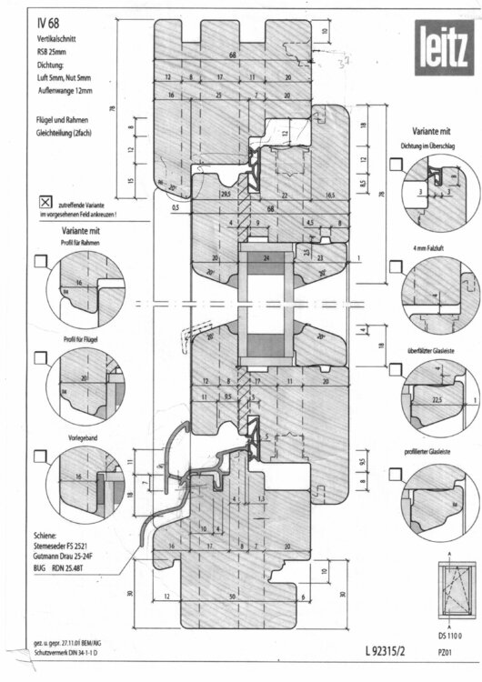
Спартак Опубліковано: 13 січня 2023 Автор Поділитись Опубліковано: 13 січня 2023 (змінено) Добрый! подскажите, зачем эти пазы? Еще по поводу размера бруса. В чем разница 68-78 и 78-86? Возможность поставить больший (толще) стеклопакет? И самое главное: я так понял в продаже есть 30 и 50 доска столярная. Набирать тремя ламелями удобнее размер 68 Как набрать 78? Или таки 26 ламели из доски 30ки норм? Змінено 14 січня 2023 користувачем Спартак Посилання на коментар Поділитися на інших сайтах More sharing options...
Спартак Опубліковано: 13 січня 2023 Автор Поділитись Опубліковано: 13 січня 2023 Левый паз для конденсата наверное, а под штапиком зачем? Посилання на коментар Поділитися на інших сайтах More sharing options...
ЧП Ненашев А Б Опубліковано: 16 січня 2023 Поділитись Опубліковано: 16 січня 2023 Дошку на ламелі підбираємо у залежності від того, яка дошка у даний момент є у наявності. Паз під склопакетом забезпечує вентиляцію периметру склопакету. Паз під штапиком не має спеціального призначення. При необхідності його заповнюють силіконом. Але це ускладнить роботи по заміні склопакету у разі необхідності. Вікна із профілю 68 мм та 78 мм можуть забезпечити різну енергоефективність конструкції. У 68 мм профіль стає лише 24 мм та 32 мм склопакет. У 78 мм профіль - відповідно 34 мм та 42 мм склопакет. 1 Посилання на коментар Поділитися на інших сайтах More sharing options...
Спартак Опубліковано: 27 січня 2023 Автор Поділитись Опубліковано: 27 січня 2023 (змінено) Добрый! Собираю материал для окон. Подвернулось 0,6 куба за «недорого». Купил. Привез. Или ясень или дуб. (Надеюсь не сосна) по фото можно понять? Как их отличить? Змінено 27 січня 2023 користувачем Спартак Посилання на коментар Поділитися на інших сайтах More sharing options...
Спартак Опубліковано: 28 січня 2023 Автор Поділитись Опубліковано: 28 січня 2023 Еще фото. Думаю ясень) в банках точно дуб (слева) и ясень по идее справа Посилання на коментар Поділитися на інших сайтах More sharing options...
М.И. Опубліковано: 30 січня 2023 Поділитись Опубліковано: 30 січня 2023 В 10.01.2023 в 15:47, DimaF сказал: Вы нереально круты Я даже не мог представить что в наше время кто то так может заморочится) надо чтоб товарищ ещё пакеты сделал) это проще чем профиль Посилання на коментар Поділитися на інших сайтах More sharing options...
М.И. Опубліковано: 30 січня 2023 Поділитись Опубліковано: 30 січня 2023 В 11.01.2023 в 10:52, Спартак сказал: Добрый. У меня по факту кривая створка на руках. Не от хорошей жизни этим занимаюсь. Правда, получаю в некотором смысле удовольствие от работы с деревом. Дуб еще не резал. Купил около куба столярного, типа сухой (промерял, прибор показал 20 процентов)) пока лежит. Договорился с человеком что привезет кругляк дуба в конце января. Хочу распустить на доски и пусть лежит лет 5. Подскажите: руками брус(погонаж) на универсальном фрезерном с прижимами реално или полюбому траблы будут? Я малейшее движение делаю неосторожное иипрямо вижу как портится материал. Спасибо! Еще по фурнитуре вопросы. Заказал комплект штульповой рото. Визуально качество норм, но интересно что еще есть из брендов для дерева. Масо не нашел предложений у себя. Какие вы ставите варианты? Спасибо! рото хорошая фурнитрура берите её и не морочьте себе голову ещё и фурнитрурой Посилання на коментар Поділитися на інших сайтах More sharing options...
Спартак Опубліковано: 3 лютого 2023 Автор Поділитись Опубліковано: 3 лютого 2023 (змінено) «Кругляк дуба» трубку не берет) свожу что нахожу недалеко и вкладывается в мои бюджеты. К сож. Все сырое. 20-28 процентов влажность. Сушить негде. Хз что делать. По моим подсчетам на все окна мне нужно около 1,8 куба. добился биения шпинделя в пределах 2 сотых. Но это похоже нафиг не нужно. Шпиндель рукой «гнется» на пять сотых)) Перебрал и восстановил тн гусак от фсш. Но самое главное податчик перебрал. Купил в чермете. Провозился долго. Мотор нужно подобрать. похоже нужно минимум 0,75кВт.. IMG_4561.MOV IMG_4565.MOV IMG_4562.MOV Змінено 3 лютого 2023 користувачем Спартак Посилання на коментар Поділитися на інших сайтах More sharing options...
Спартак Опубліковано: 6 квітня 2023 Автор Поділитись Опубліковано: 6 квітня 2023 (змінено) Добрый. Делаю сушилку для дерева. К сож. Не смог найти дуб сухой по подходящей цене. может кто знает как влияет температура на сопротивление обьемное древесины? С зависимостями сопротивление-влажность для 20градусов разобрался. Но потом выяснил что температура сильно влияет;( Змінено 6 квітня 2023 користувачем Спартак Посилання на коментар Поділитися на інших сайтах More sharing options...
Спартак Опубліковано: 16 травня 2023 Автор Поділитись Опубліковано: 16 травня 2023 (змінено) Собрал прототип. Использовал осб плиты, утепление пенопластом. Не все получается. Трудности с одновременно высокими показателями влажности воздуха и температуры в камере. Высокую влажность я могу в камере сделать парогенератором, но если начинаю поднимать температуру то влажность падает. Сейчас на 40градусах добился 65процентов. По технологии сушки и разогрев и влаготермообработка и кондиционирование - требуют четких и высоких значений влажности сушильного агента. Кто вообще занимался сушкой дерева? Змінено 16 травня 2023 користувачем Спартак 1 Посилання на коментар Поділитися на інших сайтах More sharing options...
ЧП Ненашев А Б Опубліковано: 16 травня 2023 Поділитись Опубліковано: 16 травня 2023 2 минуты назад, Спартак сказал: Кто вообще занимался сушкой дерева? Ми купуємо вже суху деревину. Посилання на коментар Поділитися на інших сайтах More sharing options...
Спартак Опубліковано: 16 травня 2023 Автор Поділитись Опубліковано: 16 травня 2023 4 минуты назад, ЧП Ненашев А Б сказал: Ми купуємо вже суху деревину. Да. Как вариант так и сделаю. Так получилось что много сырого материала накупил. Посилання на коментар Поділитися на інших сайтах More sharing options...
Рекомендовані повідомлення
Створіть акаунт або увійдіть у нього для коментування
Ви маєте бути користувачем, щоб залишити коментар
Створити акаунт
Зареєструйтеся для отримання акаунта. Це просто!
Зареєструвати акаунтУвійти
Вже зареєстровані? Увійдіть тут.
Увійти зараз