BAV_Lug Опубліковано: 4 червня 2023 Поділитись Опубліковано: 4 червня 2023 Появилась мысль сделать фасадный забор из габиона. Есть вопрос - как правильно сделать примыкания калитки и ворот, а главное как их закрепить. Ворота планируются откатные - 5 метров. Посилання на коментар Поділитися на інших сайтах More sharing options...
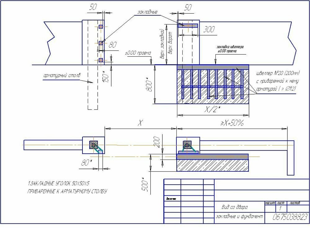
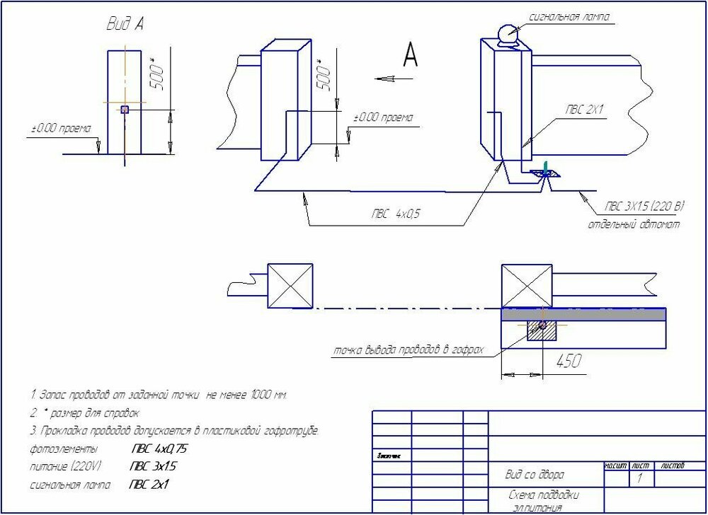
muvic Опубліковано: 5 червня 2023 Поділитись Опубліковано: 5 червня 2023 Від опорних крайніх труб випустіть по 3 горизонтальні відрізки довжини більшої на кілька сантиметрів, ніж сітка. До них потім приваряться притворні труби. Для відкатних воріт випускайте з боку будинку, для хвіртки - у прорізі, щоб "дивились" одна на одну. Висоти орієнтовно: верхня = висоті верхньої точки воріт і хвіртки, нижня = 0+100 мм, середня - ну, десь посередині між верхньою і нижньою. Не забудьте одразу прокласти дроти для лампи, фотоелементів, освітлення, домофону тощо Посилання на коментар Поділитися на інших сайтах More sharing options...
Вратарь Опубліковано: 5 червня 2023 Поділитись Опубліковано: 5 червня 2023 В якості закладних використовуйте полосу (кутник в даному випадку буде незручним), від армуючого стовпа до закладної потрібне жорстке кріплення, щоб закладні не хитались. Кабелі в ПВХ-трубі або в гофрі с захистом від ультрафіолету (краще труба). Думаю щільно змонтувати хвіртку, щоб не проглядався двір буде неможливо за рахунок сітки габіона. Посилання на коментар Поділитися на інших сайтах More sharing options...
Рекомендовані повідомлення
Створіть акаунт або увійдіть у нього для коментування
Ви маєте бути користувачем, щоб залишити коментар
Створити акаунт
Зареєструйтеся для отримання акаунта. Це просто!
Зареєструвати акаунтУвійти
Вже зареєстровані? Увійдіть тут.
Увійти зараз