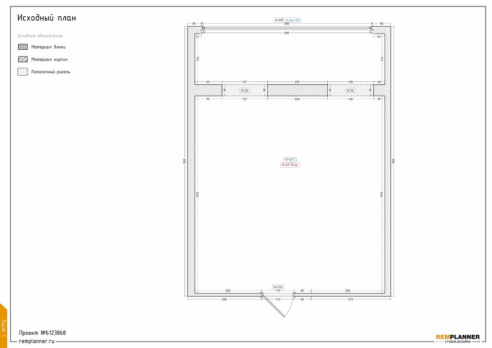
Писатель Опубліковано: 15 липня 2025 Поділитись Опубліковано: 15 липня 2025 (змінено) Разрабатываю проект квартиры, тот, что от застройщика рассчитан на однокомнатную, а площадь позволяет сделать 2-х комнатную. Выслушаю советы специалистов. Вот то, что уже сделал сам. Plan #6123868 2025-07-15 15.34.pdf Змінено 15 липня 2025 користувачем Писатель Посилання на коментар Поділитися на інших сайтах More sharing options...
vadimv Опубліковано: 15 липня 2025 Поділитись Опубліковано: 15 липня 2025 (змінено) Цитата Выслушаю советы Змінено 15 липня 2025 користувачем vadimv Посилання на коментар Поділитися на інших сайтах More sharing options...
DimaF Опубліковано: 15 липня 2025 Поділитись Опубліковано: 15 липня 2025 3 часа назад, Писатель сказал: а площадь позволяет сделать 2-х комнатную Какая обща площадь? Посилання на коментар Поділитися на інших сайтах More sharing options...
Писатель Опубліковано: 16 липня 2025 Автор Поділитись Опубліковано: 16 липня 2025 (змінено) 57-60м2 Змінено 16 липня 2025 користувачем Писатель Посилання на коментар Поділитися на інших сайтах More sharing options...
DimaF Опубліковано: 16 липня 2025 Поділитись Опубліковано: 16 липня 2025 1 час назад, Писатель сказал: 57-60м2 Площади более чем достаточно, но что то останется без окна. Студия с отдельной спальней шикарная получится. Где стояк канальи, вентиляция? Посилання на коментар Поділитися на інших сайтах More sharing options...
Писатель Опубліковано: 16 липня 2025 Автор Поділитись Опубліковано: 16 липня 2025 Посилання на коментар Поділитися на інших сайтах More sharing options...
Писатель Опубліковано: 21 липня 2025 Автор Поділитись Опубліковано: 21 липня 2025 Ау, есть кто живой? Посилання на коментар Поділитися на інших сайтах More sharing options...
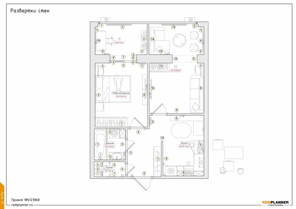
Vstar Опубліковано: 13 серпня 2025 Поділитись Опубліковано: 13 серпня 2025 21.07.2025 в 16:20, Писатель сказав: Ау, есть кто живой? Вам зауважили про вентиляцію. В кухні вона має бути Посилання на коментар Поділитися на інших сайтах More sharing options...
Рекомендовані повідомлення
Створіть акаунт або увійдіть у нього для коментування
Ви маєте бути користувачем, щоб залишити коментар
Створити акаунт
Зареєструйтеся для отримання акаунта. Це просто!
Зареєструвати акаунтУвійти
Вже зареєстровані? Увійдіть тут.
Увійти зараз