Pupitre Опубліковано: 2 грудня 2009 Поділитись Опубліковано: 2 грудня 2009 Здравствуйте! Хотел бы посоветоваться на счет проекта дома и собственно его исполнения. Домик будет весьма и весьма небольшой, но вобщем-то мне больше и не надо. Два этажа по 32 м2. Второй этаж мансардный. 1й этаж - Зал + Столовая (20 м2), Кухня (6 м2), Прихожая (2 м2), Терасса (2 м2), Туалет (унитаз и умывальник (2 м2) 2й этаж - Две спальни (11 и 12 м2), санузел (унитаз, умывальник, ванная, стир. машинка, котел, колонка, 6 м2) Планируется продажа квартиры, и покупка на эти деньги участка с последующей постройкой дома. Всё собственно упирается в деньги и время. Подскажите пожалуйста, какие бы материалы были относительно недороги, но и не совсем плохи. И, вдруг кто сталкивался, как лучше, продать квартиру, а потом самому искать участок, или обратится к риэлтору и отдать часть денег, зато более надежно. Просто не хочется продать, а подходящего участка не найти и остатся практически ни с чем. __________________________________________ Вот собственно сам проект : (ссылка на изображение устарела) Посилання на коментар Поділитися на інших сайтах More sharing options...
Dex-paketa Опубліковано: 2 грудня 2009 Поділитись Опубліковано: 2 грудня 2009 Проектом это вряд ли можно назвать. Я только через минуты 2 нашел лестницу :D думал, это вешалка. Может лучше взять готовые проекты и слегка под себя переделать? Посилання на коментар Поділитися на інших сайтах More sharing options...
Pupitre Опубліковано: 2 грудня 2009 Автор Поділитись Опубліковано: 2 грудня 2009 Пусть рисунок, схематический план и т.п. Всё же лучше чем просто текстовое описание Посилання на коментар Поділитися на інших сайтах More sharing options...
Dex-paketa Опубліковано: 2 грудня 2009 Поділитись Опубліковано: 2 грудня 2009 Пусть рисунок, схематический план и т.п. Всё же лучше чем просто текстовое описание да хотя бы размеры надо было указать. Или форумчанам как, просчитывать из площади? ;) Посилання на коментар Поділитися на інших сайтах More sharing options...
terola Опубліковано: 2 грудня 2009 Поділитись Опубліковано: 2 грудня 2009 Пусть рисунок, схематический план и т.п. Всё же лучше чем просто текстовое описание Посмотрите на сайте Архона, там есть готовые проекты маленьких домиков. Вам индивидуальный проект дороже обойдется. Посилання на коментар Поділитися на інших сайтах More sharing options...
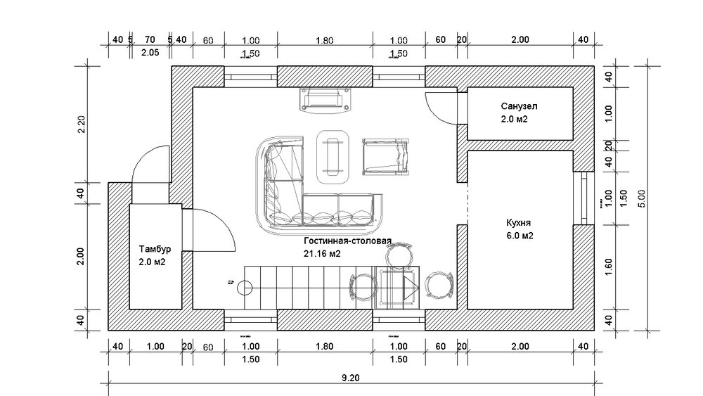
Ирина L Опубліковано: 2 грудня 2009 Поділитись Опубліковано: 2 грудня 2009 Вход в туалет из гостиной-столовой -- неправильное решение. Поменяйте местами с топочной. Если я правильно поняла Ваш рисунок. Вход в топочную сделайте из кухни, тогда ее частично можно будет использовать как кладовку и (или) хозяйственную комнату. На первом этаже нет места для гардеробной или большого шкафа. Посилання на коментар Поділитися на інших сайтах More sharing options...
Dex-paketa Опубліковано: 2 грудня 2009 Поділитись Опубліковано: 2 грудня 2009 а где там топочная? Посилання на коментар Поділитися на інших сайтах More sharing options...
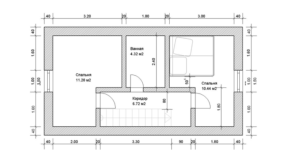
Pupitre Опубліковано: 2 грудня 2009 Автор Поділитись Опубліковано: 2 грудня 2009 1й этаж: Терасса - 2х1 Прихожая - 2х1 Гостинная + Столовая - 5х4 Кухня - 2х3 Туалет - 2х1 2й этаж: Спальня слева - 3,5х4 Санузел + Топочная - 2х3 Спальня справа - 3х4 Коридор - 3,5х1 Ирина L, в прихожей планируется только шкаф для обуви, зеркало и несколько вешалок, основная же масса одежды в гардеробе в спальне справа. _____________________________ Ну проект это только часть проблемы. Посоветуйте пожалуйста и по поводу второй части Посилання на коментар Поділитися на інших сайтах More sharing options...
terola Опубліковано: 2 грудня 2009 Поділитись Опубліковано: 2 грудня 2009 Стремное мероприятие вы затеяли Вы финансовую часть просчитывали, хватает? Как будете строить сами, или приглашать кого-то. На маленьких объемах строители накрутят - не постесняются. Жить на время стройки есть где? Попробуйте найти участок, для начала - сами, через риелтора, как повезет. Узнайте сколько будет стоить свет, вода, газ. По материалам, встречала где-то раскладку по ценам (не правдивость не претендую) ракушняк-пенобетон-кирпич-поротерм-газобетон. Я сама на распутье - из чего. В моих южных регионах склоняюсь к газобетону - утеплять не надо, дом легкий .. но у меня каждый день новый праздник - недавно хотела 1,5 ракушки, но мне как посчитали разницу на фундаменте Посилання на коментар Поділитися на інших сайтах More sharing options...
Ирина L Опубліковано: 2 грудня 2009 Поділитись Опубліковано: 2 грудня 2009 а где там топочная? Я террасу (а точнее назвать это крыльцом) приняла за топочную. Гардеробная для верхней одежды и обуви должна быть на первом этаже или хотя бы храниться отдельно от остальной, но не в спальне. Посилання на коментар Поділитися на інших сайтах More sharing options...
aqualand Опубліковано: 2 грудня 2009 Поділитись Опубліковано: 2 грудня 2009 1й этаж: Терасса - 2х1 Прихожая - 2х1 Гостинная + Столовая - 5х4 Кухня - 2х3 Туалет - 2х1 2й этаж: Спальня слева - 3,5х4 Санузел + Топочная - 2х3 Спальня справа - 3х4 Коридор - 3,5х1 Ну проект это только часть проблемы. Посоветуйте пожалуйста и по поводу второй части С учетом отсутствия у вас амбиций, непонятной ситуации с финансами и участком - думаю, что больше подойдет какой-нибудь блочный/панельный/каркасный дом (вобщем быстромонтируемый). Стоит реально дешевле остальных материалов, а по срокам выгадаете мин. пол-года. Если примете такое решение, тогда уже у производителей легко найдете подходящий проект и цену. ИМХО Посилання на коментар Поділитися на інших сайтах More sharing options...
Krylaty Опубліковано: 2 грудня 2009 Поділитись Опубліковано: 2 грудня 2009 И, вдруг кто сталкивался, как лучше, продать квартиру, а потом самому искать участок, или обратится к риэлтору и отдать часть денег, зато более надежно. Просто не хочется продать, а подходящего участка не найти и остатся практически ни с чем. Когда строились друзья они одолжили денег которых хватило на участок, коробку и коммуникации, потом продали квартиру, отдали долг и на остаток сделали внутренние работы. Продавать квартиру сходу как-то стремно, почитай историю Ники. Лучше уж если возможно, одолжить денег на участок, подвести электричество и уж потом продавать квартиру и быстро строиться. Посилання на коментар Поділитися на інших сайтах More sharing options...
AНДРЮША Опубліковано: 2 грудня 2009 Поділитись Опубліковано: 2 грудня 2009 Я построил примерно такой домик. Из своего опыта: 1. При небольших размерах дома скатная кровля мансардного этажа заберет такие нужные метры. Лучше полноценные два этажа - места больше, затрат меньше, лучше в эксплуатации. 2. Делать санузел второго этажа над гостиной не хорошо, лучше поменять местами со спальней в которой гардероб. 3. Не покупайте участок в поле, подвод коммуникаций съест львиную долю денег, что не оправдано для маленького дома. Лучше купить хоть какое домостроение в деревне или ДСК: у вас сразу будет электричество, а может и вода. Мне например коммуникации обошлись копейки, включая газ. К тому же будет где жить первое время. 4. Отдаю предпочтение тому материалу из которого построен мой дом. Посилання на коментар Поділитися на інших сайтах More sharing options...
terola Опубліковано: 3 грудня 2009 Поділитись Опубліковано: 3 грудня 2009 Вот вам готовые, типовые. Архон интересен тем, что там есть перечень строительных материалов - Гугл в помощь и можно примерно сметы сверстать. (ссылка устарела) (ссылка устарела) (ссылка устарела) Посилання на коментар Поділитися на інших сайтах More sharing options...
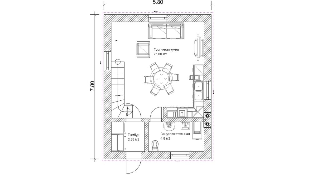
Tugarin Опубліковано: 3 грудня 2009 Поділитись Опубліковано: 3 грудня 2009 Здравствуйте. Гардероб улыбнул. Дом план планируется для постоянного проживания или от наезда к наезду? И это будет самострой или по-правильному? Вот план по Вашим размером с учетом толщин стен и простенков: Посилання на коментар Поділитися на інших сайтах More sharing options...
Silvergato Опубліковано: 3 грудня 2009 Поділитись Опубліковано: 3 грудня 2009 По моему мнению, сан.узел на 1 этаже в дальнем углу дома - не совсем удобно. Может перенести ближе к входной двери? Так заходя в дом - не надо будет идти через всю гостинную чтоб попасть в ванну. Посилання на коментар Поділитися на інших сайтах More sharing options...
Pupitre Опубліковано: 3 грудня 2009 Автор Поділитись Опубліковано: 3 грудня 2009 Ирина L, на счет гардероба на втором этаже не знаю, не было опыта, но в квартире имел опыт строения гардероба примерно такого же размера из гипсо-картона. Довольно удобно. Krylaty, хотелось бы, но, к сожалению, нет друзей способных либо желающих одолжить подобную сумму денег. Правда может стоит поискать по лучше, ведь действительно не хочется остатся "ни с чем". А есть ли реальная возможность, так сказать, отдать квартиру риэлтору и чтобы в ответ получить нужный участок и разницу в деньгах, при этом же без особой потери на риэлтора? AНДРЮША, действительно, полноценный второй этаж будет выгоднее чем мансарда? terola, спасибо за ссылки. Интересные проекты. Кстати, на счет проекта. Я вобщем-то вообще никогда не сталкивался вообще со строительством дома, так что всё вообще "с нуля". Свой проект нужно утверждать, при чём далеко не за бесплатно? Tugarin, сначала планировалось "по правильному", но вот сейчас, почитав тему Андрюши, начал всерьез задумываться, не строить ли самому. Ещё такой вопрос. Внутренние перестенки должны быть "настоящими" или гипсо-картон делают? Посилання на коментар Поділитися на інших сайтах More sharing options...
Pupitre Опубліковано: 3 грудня 2009 Автор Поділитись Опубліковано: 3 грудня 2009 Всем спасибо за советы. Т.к. опыта нет вообще никакого, то любой совет и мнение, действительно, очень ценно. Посилання на коментар Поділитися на інших сайтах More sharing options...
Krylaty Опубліковано: 3 грудня 2009 Поділитись Опубліковано: 3 грудня 2009 Ты в Киеве? Пиши как продвигается процесс, интересно. Вот тема про строительство Ники. Очень жизненно и познавательно. Так что рекомендую сначала сделать подробнейшую смету строительства и ремонта а потом принимать решение о продаже. Вчера составляли смету ремонта! туалета/ванной и по-минимуму получилось 2200$. Нормальный ремонт однокомнатной квартиры 44 метра обошелся в 20к$ (работа, материалы, немного техники). Посилання на коментар Поділитися на інших сайтах More sharing options...
Pupitre Опубліковано: 3 грудня 2009 Автор Поділитись Опубліковано: 3 грудня 2009 Херсон. Есть, кстати, ктото сосед может? Посилання на коментар Поділитися на інших сайтах More sharing options...
Tugarin Опубліковано: 3 грудня 2009 Поділитись Опубліковано: 3 грудня 2009 Вот тоже небольшие габариты: Посилання на коментар Поділитися на інших сайтах More sharing options...
AНДРЮША Опубліковано: 3 грудня 2009 Поділитись Опубліковано: 3 грудня 2009 AНДРЮША, действительно, полноценный второй этаж будет выгоднее чем мансарда? Ещё такой вопрос. Внутренние перестенки должны быть "настоящими" или гипсо-картон делают? Почитайте форум, была целая тема посвященная этому. Для меня холодный чердак над вторым этажом однозначно лучше и дешевле, потому что я его смог сделать сам. Если перекрытия деревянные, то перегородки только из ГК или дерева. Посилання на коментар Поділитися на інших сайтах More sharing options...
Krylaty Опубліковано: 3 грудня 2009 Поділитись Опубліковано: 3 грудня 2009 Ещё такой вопрос. Внутренние перестенки должны быть "настоящими" или гипсо-картон делают? На первом этаже? Зависит от того какое у тебя перекрытие. Если оно будет достаточно прочным (нужно считать) без перестенков, то можно их совсем не делать или делать из чего угодно. Посилання на коментар Поділитися на інших сайтах More sharing options...
Krylaty Опубліковано: 3 грудня 2009 Поділитись Опубліковано: 3 грудня 2009 Херсон. Есть, кстати, ктото сосед может? Был по работе у вас на кирпичном заводе пару лет назад. Но блин так заработался, что в городе толком и не погулял Посилання на коментар Поділитися на інших сайтах More sharing options...
Pupitre Опубліковано: 3 грудня 2009 Автор Поділитись Опубліковано: 3 грудня 2009 Почитал тему Nicki.. Угнетает. Энтузиазм приумерил Посилання на коментар Поділитися на інших сайтах More sharing options...
Рекомендовані повідомлення
Створіть акаунт або увійдіть у нього для коментування
Ви маєте бути користувачем, щоб залишити коментар
Створити акаунт
Зареєструйтеся для отримання акаунта. Це просто!
Зареєструвати акаунтУвійти
Вже зареєстровані? Увійдіть тут.
Увійти зараз