Ирина L Опубліковано: 3 січня 2010 Поділитись Опубліковано: 3 січня 2010 Автор картинок Петер Нойферт. У него много полезной информации, но не для гостиных. Есть несколько картинок в плохом качестве и они малоинформативны. 3 Посилання на коментар Поділитися на інших сайтах More sharing options...
Tugarin Опубліковано: 7 січня 2010 Поділитись Опубліковано: 7 січня 2010 Здравствуйте, InSan. Скажите, а домашний кинотеатр планируется в гостинной? Т.е. пять и более колонок и т.д. Посилання на коментар Поділитися на інших сайтах More sharing options...
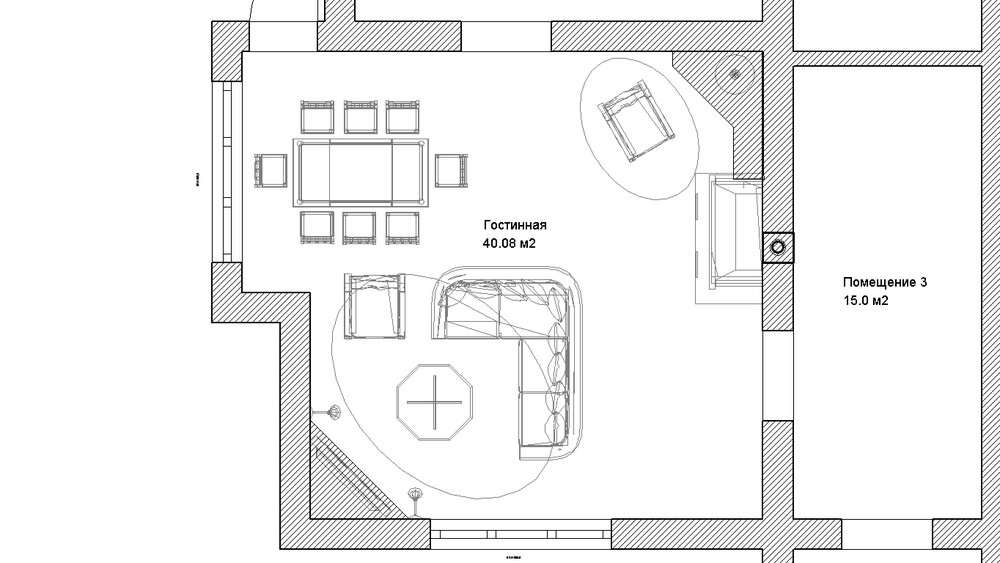
Tugarin Опубліковано: 7 січня 2010 Поділитись Опубліковано: 7 січня 2010 (змінено) Еще один вариант размещения мебели: Змінено 7 січня 2010 користувачем Tugarin 1 Посилання на коментар Поділитися на інших сайтах More sharing options...
InSAn Опубліковано: 7 січня 2010 Автор Поділитись Опубліковано: 7 січня 2010 Здравствуйте, InSan. Скажите, а домашний кинотеатр планируется в гостинной? Т.е. пять и более колонок и т.д. Скромный - планируется. Еще один вариант размещения мебели: Спасибо! Скорее всего на нем и остановлюсь. Кстати, а если бы не было "гостевого" стола - насколько проще бы решилась проблема? Может, отказаться от него? Посилання на коментар Поділитися на інших сайтах More sharing options...
Tugarin Опубліковано: 7 січня 2010 Поділитись Опубліковано: 7 січня 2010 ...Кстати, а если бы не было "гостевого" стола - насколько проще бы решилась проблема? Может, отказаться от него? Не знаю чем он мешает, а вот всякие праздники отмечать удобно ИМХО конечно. P.S. Так что последний вариант в рендеринг? Посилання на коментар Поділитися на інших сайтах More sharing options...
InSAn Опубліковано: 7 січня 2010 Автор Поділитись Опубліковано: 7 січня 2010 Не знаю чем он мешает, а вот всякие праздники отмечать удобно ИМХО конечно.Согласен. P.S. Так что последний вариант в рендеринг? В рендеринг пока не нужно... Я вот что подумал, а может все-таки поставить ТВ напротив окна? Т.е. закрыть телевизором окно... Тогда бы все проблемы решились автоматически. Изначально он там и планировался - только должно было быть не одно окно, а два небольших. А между ними - ТВ. При переделке проекта (меняли немного внутренние стены) об этом позабылось - и была принята чья-то идея заменить два небольших окна одним большим Вот если бы придумать, как поставить ТВ "под окном"... Дизайнеры! Ау! Посилання на коментар Поділитися на інших сайтах More sharing options...
Tugarin Опубліковано: 7 січня 2010 Поділитись Опубліковано: 7 січня 2010 (змінено) ...Вот если бы придумать, как поставить ТВ "под окном"... Дизайнеры! Ау! А какая высота подоконника (от чистового пола)? Змінено 7 січня 2010 користувачем Tugarin Грамматика. Посилання на коментар Поділитися на інших сайтах More sharing options...
InSAn Опубліковано: 7 січня 2010 Автор Поділитись Опубліковано: 7 січня 2010 А какая высота подоконника (от чистовым пола)? 80 см . Посилання на коментар Поділитися на інших сайтах More sharing options...
Tugarin Опубліковано: 7 січня 2010 Поділитись Опубліковано: 7 січня 2010 ...Вот если бы придумать, как поставить ТВ "под окном"... Дизайнеры! Ау! А тут, на мой взгляд решение одно- низкая тумба, плотные гардины, чтоб днем не слепнуть (или жалюзи). Если высота тумбы 40 см, высота 52-дюймового телека 86 см, телевизор окно будет перекрывать на 46 см. Посилання на коментар Поділитися на інших сайтах More sharing options...
InSAn Опубліковано: 7 січня 2010 Автор Поділитись Опубліковано: 7 січня 2010 А тут, на мой взгляд решение одно- низкая тумба, плотные гардины, чтоб днем не слепнуть (или жалюзи). Если высота тумбы 40 см, высота 52-дюймового телека 86 см, телевизор окно будет перекрывать на 46 см. Увидеть бы как это выглядит... Возможно, есть фотки "ТВ под окном"? Весь инет перерыл (уже месяца три-четыре рою) - но ничего похожего не нашел 40 см - наверное мало. ИМХО где-то 60-70 нужно Посилання на коментар Поділитися на інших сайтах More sharing options...
Tugarin Опубліковано: 7 січня 2010 Поділитись Опубліковано: 7 січня 2010 Увидеть бы как это выглядит... Завтра выложу элементарную визуализацию. ...40 см - наверное мало. ИМХО где-то 60-70 нужно Тут скорее надо исходить из того, чтобы сидя Ваш взгляд попадал в центр Вашего телевизора (по вертикали), посему все зависит от диагонали, чем больше диагональ, тем ниже телевизор должен стоять (ИМХО), понятно что все до разумных пределов 1 Посилання на коментар Поділитися на інших сайтах More sharing options...
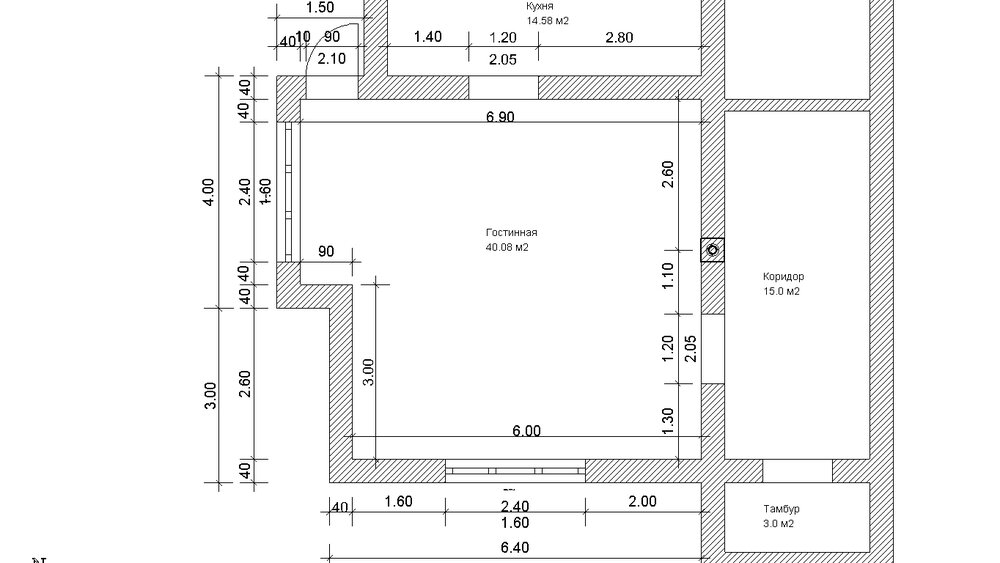
Genkot Опубліковано: 8 січня 2010 Поділитись Опубліковано: 8 січня 2010 Выложите обмерный план, или .3ds,.pla, .pln Самому интересно Посилання на коментар Поділитися на інших сайтах More sharing options...
Tugarin Опубліковано: 8 січня 2010 Поділитись Опубліковано: 8 січня 2010 Обмерочный чертеж: 1 Посилання на коментар Поділитися на інших сайтах More sharing options...
InSAn Опубліковано: 8 січня 2010 Автор Поділитись Опубліковано: 8 січня 2010 Обмерочный чертеж: Спасибо - а то начал рисовать, хорошо, что заметил новое сообщение Посилання на коментар Поділитися на інших сайтах More sharing options...
Tugarin Опубліковано: 8 січня 2010 Поділитись Опубліковано: 8 січня 2010 Спасибо - а то начал рисовать, хорошо, что заметил новое сообщение Не зачто, может Генкот тоже чем-то поможет. Посилання на коментар Поділитися на інших сайтах More sharing options...
романн Опубліковано: 8 січня 2010 Поділитись Опубліковано: 8 січня 2010 Увидеть бы как это выглядит... Возможно, есть фотки "ТВ под окном"? Весь инет перерыл (уже месяца три-четыре рою) - но ничего похожего не нашел Доброго времени суток. У меня похожая проблема. Лучшим местом для телевизора оказалось место напротив окна . Перерыл кучу фоток интерьеров ничего подходящего не нашел. Навероне все сатараются избегать размещения экрана перед оконом. Варинт один, плотоно закрывать оконо на время просмотра. Получается практически все время окно будет закрытым . Буду рад подсмотреть в вашей ветке какое то ришение этой ситуации. Посилання на коментар Поділитися на інших сайтах More sharing options...
Tugarin Опубліковано: 8 січня 2010 Поділитись Опубліковано: 8 січня 2010 Размешаю, как обещал, картинку, но сразу хочу дать несколько пояснений: - картинка просто для понимания как будет восприниматься телевизор непосредственно перед окном; - картинка не дает реального восприятия как будет выглядеть изображение на экране в солнечный день; - и это не дизайн . Забыл написать высота полки под телевизором 50 см, высота телевизора 84 см (с подставкой). 3 Посилання на коментар Поділитися на інших сайтах More sharing options...
InSAn Опубліковано: 8 січня 2010 Автор Поділитись Опубліковано: 8 січня 2010 Размешаю, как обещал, картинку, но сразу хочу дать несколько пояснений: - картинка просто для понимания как будет восприниматься телевизор непосредственно перед окном; - картинка не дает реального восприятия как будет выглядеть изображение на экране в солнечный день; - и это не дизайн . Забыл написать высота полки под телевизором 50 см, высота телевизора 84 см (с подставкой). Как по мне - то нравится. Завтра жена еще глянет (это только я полуночничаю ) Посилання на коментар Поділитися на інших сайтах More sharing options...
Tugarin Опубліковано: 8 січня 2010 Поділитись Опубліковано: 8 січня 2010 Как по мне - то нравится. Завтра жена еще глянет (это только я полуночничаю ) Ждем окончательный вердикт, тем более можно повесить плотные тканевые ролеты (ссылка устарела), при желании с пультом ДУ. Завтра постараюсь еще такую же картинку выложить с "угловым" расположением телевизора. Посилання на коментар Поділитися на інших сайтах More sharing options...
InSAn Опубліковано: 9 січня 2010 Автор Поділитись Опубліковано: 9 січня 2010 Ждем окончательный вердикт, тем более можно повесить плотные тканевые ролеты (ссылка устарела), при желании с пультом ДУ. Завтра постараюсь еще такую же картинку выложить с "угловым" расположением телевизора. Жена одобрила Посилання на коментар Поділитися на інших сайтах More sharing options...
Genkot Опубліковано: 9 січня 2010 Поділитись Опубліковано: 9 січня 2010 (змінено) (ссылка устарела) Мебель естественно двигается стадион 40 метровINSAN.pdf Змінено 9 січня 2010 користувачем Genkot 1 Посилання на коментар Поділитися на інших сайтах More sharing options...
arca Опубліковано: 9 січня 2010 Поділитись Опубліковано: 9 січня 2010 Я так и предлагала:beer:Tugarin -умничка быстро визуализации делаешь. А нАпиши мне в личку плиз сколько берешь за визуализации? 1 Посилання на коментар Поділитися на інших сайтах More sharing options...
InSAn Опубліковано: 9 січня 2010 Автор Поділитись Опубліковано: 9 січня 2010 (ссылка устарела) Мебель естественно двигается стадион 40 метров Вау! Вот оно!!! А 1,4 м к 52"-плазме - не слишком близко? Посилання на коментар Поділитися на інших сайтах More sharing options...
Genkot Опубліковано: 9 січня 2010 Поділитись Опубліковано: 9 січня 2010 сидя на диване - минимум 2000, а так все 2500 Перегородку можно исполнить в виде стеллажа из 38ДСП, полка под тв - сквозная, если захочется вязать носки у камина и смотреть тв - его можно будет развернуть. Высота потолка какая? Посилання на коментар Поділитися на інших сайтах More sharing options...
InSAn Опубліковано: 9 січня 2010 Автор Поділитись Опубліковано: 9 січня 2010 сидя на диване - минимум 2000, а так все 2500 Перегородку можно исполнить в виде стеллажа из 38ДСП, полка под тв - сквозная, если захочется вязать носки у камина и смотреть тв - его можно будет развернуть. Высота потолка какая? Высота - 3м. Посилання на коментар Поділитися на інших сайтах More sharing options...
Рекомендовані повідомлення
Створіть акаунт або увійдіть у нього для коментування
Ви маєте бути користувачем, щоб залишити коментар
Створити акаунт
Зареєструйтеся для отримання акаунта. Це просто!
Зареєструвати акаунтУвійти
Вже зареєстровані? Увійдіть тут.
Увійти зараз