киевлянка Опубліковано: 3 травня 2010 Автор Поділитись Опубліковано: 3 травня 2010 вариант первоначальный (выстраданный лично мною, горячо любимый, но позже раскритикованный, надеюсь справедливо) Посилання на коментар Поділитися на інших сайтах More sharing options...
киевлянка Опубліковано: 3 травня 2010 Автор Поділитись Опубліковано: 3 травня 2010 продолжаю... вариант на сегодняшний день: (правда на картинках учтено не всё) 1) сам домик будет, увы, не из бруса (внутри дерево) 2) балкона и козырька над входом не будет, вместо них будет крыша общ. над тер-сой (для этого несколько подняты стены- идея "Игоря2009") 3) окно в спальне на 1м этаже хочу перенести на восток, чтоб не выходило на тер-су (юг). 4) душевую поменять местами с туалетом (там еще должно разместиться ведро-водопад). Вообще над тем блоком еще нужно поработать, ...вобщим, пока отправляю картинки, а замечания буду вписывать по ходу дела... Посилання на коментар Поділитися на інших сайтах More sharing options...
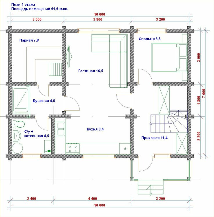
fomarin Опубліковано: 3 травня 2010 Поділитись Опубліковано: 3 травня 2010 Вход в сан.узел через душевую как-то неудобно Посилання на коментар Поділитися на інших сайтах More sharing options...
киевлянка Опубліковано: 3 травня 2010 Автор Поділитись Опубліковано: 3 травня 2010 крыша будет без выступов (так как не будет балкона), но под окнами (верхними) появится террасная крыша (пока, правда в объемном варианте предъявить ее не могу, сама бы хотела посмотреть. Может кто поможет? или как-то ссылку отправить в ветку о проектировании, к "архитектору" в тему "Советы архитектора", мол, в помощь форумчанке,а-то я сама забыла, как это делается. Помогите, "профики", пож. Да,, и с лестницей что-то не совсем понятно. Какая-то она на картинке слишком большая кажется, хотя по кол-ву ступеней, вроде и не очень... !!! еще! Образ домика собирательный. ПОэтому на картинках не все показано. на двух картинках с видами гостевой комнаты (где видны кухня и диван, на стене между TV и дверью должен быть камин (он же топка для бани) За стеной парилка. Баня-то русская А на TV не обращайте внимания (он переместится) ну вроде всё! ...А, вот еще, терраса добавится перед входом (хочу просторную, шириной м 3-4, чтоб поставить широкий деревянный стол и большие скамейки) Так что общие размеры выплывут примерно 10х10 Пишите пож. Очень жду!!! Посилання на коментар Поділитися на інших сайтах More sharing options...
киевлянка Опубліковано: 3 травня 2010 Автор Поділитись Опубліковано: 3 травня 2010 Вход в сан.узел через душевую как-то неудобно нет-нет, там, где в плане написано само слово "душевая" - коридорчик, а из него два входа: в туалет (там, где на рисунке душевая кабина) и в душевую (та, где на схеме wc c котельн.). Я потому и пишу, что этот "блок" недооформлен пока. Там чуть нужно будет "поиграть" с перегородками. К сожалению не располагаю дома компьютерными ресурсами в полном объеме, а так не хочется терять времени. Поэтому и пишу пояснения к чертежам, уж не взыщите Посилання на коментар Поділитися на інших сайтах More sharing options...
киевлянка Опубліковано: 4 травня 2010 Автор Поділитись Опубліковано: 4 травня 2010 (змінено) извините, но для обсуждения вопроса по проекту завела др. ветку в разделе "Обсуждаем проекты домов". Сюда вернусь, когда проект будет подготовлен и нужно будет начинать строить. Жаль не знаю, как сбросить туда ссылку. Может кто поможет? Тема звучит так:"Проектируем баню (гостевой домик). Помогите, пож-та!" ссылка: www.stroimdom.com.ua/forum/showthread.php?t=34937 Змінено 4 травня 2010 користувачем Автомодератор Посилання на коментар Поділитися на інших сайтах More sharing options...
911max Опубліковано: 6 травня 2010 Поділитись Опубліковано: 6 травня 2010 молодцы! маханули баньку! (в смысле задумали) Такой "баньки" и для жизни с головой хватит... 1 Посилання на коментар Поділитися на інших сайтах More sharing options...
alana Опубліковано: 6 травня 2010 Поділитись Опубліковано: 6 травня 2010 Перечитала вашу темку, ну прямо как с нашей ситуации списано. Только участок в Гнедыне 25*56 м. Тоже хотим начать с бани русской в глубине участка, дом пока не потянем, и забор надо делать. В общем вопросы те же, хотела спросить почему вы от бруса отказались. Мне очень хочется хотя бы баню сделать из дерева. Посилання на коментар Поділитися на інших сайтах More sharing options...
SERGIO_ Опубліковано: 6 травня 2010 Поділитись Опубліковано: 6 травня 2010 Подскажите какую либо фирму по тех надзору. Рекомендую компанию "Атриум". Производит технический надзор за строительством, финансовый контроль и аудит строительства. www.a-pm.com.ua Посилання на коментар Поділитися на інших сайтах More sharing options...
киевлянка Опубліковано: 6 травня 2010 Автор Поділитись Опубліковано: 6 травня 2010 хотела спросить почему вы от бруса отказались. Мне очень хочется хотя бы баню сделать из дерева. эх... нам дороговато Посилання на коментар Поділитися на інших сайтах More sharing options...
911max Опубліковано: 14 червня 2010 Поділитись Опубліковано: 14 червня 2010 Лена какие сдвиги? слышал собираетесь делать фундамент... у меня вуйки освобождаются, ориентировочно через неделю, если есть интерес звони, тел. в личку отправляю:wink: Посилання на коментар Поділитися на інших сайтах More sharing options...
Рекомендовані повідомлення
Створіть акаунт або увійдіть у нього для коментування
Ви маєте бути користувачем, щоб залишити коментар
Створити акаунт
Зареєструйтеся для отримання акаунта. Це просто!
Зареєструвати акаунтУвійти
Вже зареєстровані? Увійдіть тут.
Увійти зараз