Artemis Опубліковано: 16 жовтня 2007 Поділитись Опубліковано: 16 жовтня 2007 Купили участочек ( 4 сотки) в Бортничах, возле главной дороги, и решили построить дом на несколько квартир, с плоской крышей, на которой можно будет посидеть теплыми летними вечерами и понаблюдать за взлетающими самолетами из "Борисполя" Так выглядел участок. На сегодняшний день есть траншея под фундамент. С завтрашнего дня начинаем заливать подушку. В ближайшее время предстоит перенесение столба. Первый этаж - 2 помещения (возможно магазинчики) и две квартиры, второй этаж - 4 квартиры. Посилання на коментар Поділитися на інших сайтах More sharing options...
DIGEST.UA Опубліковано: 16 жовтня 2007 Поділитись Опубліковано: 16 жовтня 2007 Если то что рыл эскаватор - траншея под фундамент, то растояние от соседа нарушает все существующие нормы. Вам будет очень очень трудно легализовать это строение. И еще и сосед может воспротивится. Поищите по форуму эта тема уже здесь обсуждалась. Посилання на коментар Поділитися на інших сайтах More sharing options...
МАКАР Опубліковано: 16 жовтня 2007 Поділитись Опубліковано: 16 жовтня 2007 Квартиры под здачу или на продажу? Посилання на коментар Поділитися на інших сайтах More sharing options...
Artemis Опубліковано: 16 жовтня 2007 Автор Поділитись Опубліковано: 16 жовтня 2007 то растояние от соседа нарушает все существующие нормы От этого соседа будет расстояние 1,5 метра и есть его разрешение. Легализировать будет сложно полюбому, согласна. Шож, бум платить денюжку. Квартиры под сдачу. А в дальнейшем можно и на продажу, если сумею организовать юр. сторону. Посилання на коментар Поділитися на інших сайтах More sharing options...
МАКАР Опубліковано: 17 жовтня 2007 Поділитись Опубліковано: 17 жовтня 2007 Еслиб не магазины то вообще проще Забор соседский продолжить вокруг своего участка и всех кроме квартирантов в сад Посилання на коментар Поділитися на інших сайтах More sharing options...
КиевлянинЪ Опубліковано: 17 жовтня 2007 Поділитись Опубліковано: 17 жовтня 2007 сделай на 1 этаже паркинг а с 2 квартиры Посилання на коментар Поділитися на інших сайтах More sharing options...
DIGEST.UA Опубліковано: 17 жовтня 2007 Поділитись Опубліковано: 17 жовтня 2007 Если не стоит задача продажи этого строения и сосед не против, тогда никаких проблем. Бизнес-проект может быть даже очень неплохим. А в каком месте Бортничей? Посилання на коментар Поділитися на інших сайтах More sharing options...
Artemis Опубліковано: 17 жовтня 2007 Автор Поділитись Опубліковано: 17 жовтня 2007 На паркинге не хоцца терять метражи, планирую там типО магазинчик ковриков (есть откуда привезти). Где в Бортничах Возле Алеко. Посилання на коментар Поділитися на інших сайтах More sharing options...
КиевлянинЪ Опубліковано: 17 жовтня 2007 Поділитись Опубліковано: 17 жовтня 2007 если магазинчик по аренду то нормально, а планировать под него бизнес можно прогареть Посилання на коментар Поділитися на інших сайтах More sharing options...
Artemis Опубліковано: 17 жовтня 2007 Автор Поділитись Опубліковано: 17 жовтня 2007 а планировать под него бизнес можно прогареть почему так думешь? Посилання на коментар Поділитися на інших сайтах More sharing options...
КиевлянинЪ Опубліковано: 17 жовтня 2007 Поділитись Опубліковано: 17 жовтня 2007 розничный магазин это бизнес и если бизнес приносит прибыли меньше или столько же как и аренда он теряет смысл . Ферштейн Посилання на коментар Поділитися на інших сайтах More sharing options...
Artemis Опубліковано: 17 жовтня 2007 Автор Поділитись Опубліковано: 17 жовтня 2007 розничный магазин это бизнес и если бизнес приносит прибыли меньше или столько же как и аренда он теряет смысл 100% Мы там сначала думали построить склад (меньше возни со сроительством), и сдавать в аренду, но поскольку "цільове призначення-для житлового буд.." то передумали, и пришли к такому вариянту. О Теперь буду знать, кто там хозяин. 8) Интересно, а какой ширины и длины этот участок? Это я так понимаю, Вы купили часть соседнего участка? Да, купили кусок, потом переоформили на него акт на землю. Фасад это А и Б, там столб стоит. Посилання на коментар Поділитися на інших сайтах More sharing options...
Artemis Опубліковано: 17 жовтня 2007 Автор Поділитись Опубліковано: 17 жовтня 2007 Ну не более 12, а 12. А 14 эт по задней стенке. Есть нотариальное разрешение от соседей. АПЗ тоже есть.ТУ нет никаких, но электрик с Киевэнерго сказал, что все сможет сделать за определенную сумму. С газом думаю тоже можно будет решить, опять же за сумму. Во всяком случае очень на это надеюсь. Канализацию обещают центральную в следующем году (но пока будем рыть яму) Посилання на коментар Поділитися на інших сайтах More sharing options...
Artemis Опубліковано: 17 жовтня 2007 Автор Поділитись Опубліковано: 17 жовтня 2007 Сумму электрик озвучил, или постеснялся? Эти электрики любят за "хвост кота тянуть", а потом "родить" в последний момент, что б не было времени другого искать. за 1000 у.е. перенесет столб и кинет 3 фазы на участок. О разводке по дому еще не говорили. Там где Вы строитесь, существует проблема с электричеством Не знала, а какая? Посилання на коментар Поділитися на інших сайтах More sharing options...
alexm Опубліковано: 18 жовтня 2007 Поділитись Опубліковано: 18 жовтня 2007 Где заказывали проект и сколько обошелся? Выложите фасады. Посилання на коментар Поділитися на інших сайтах More sharing options...
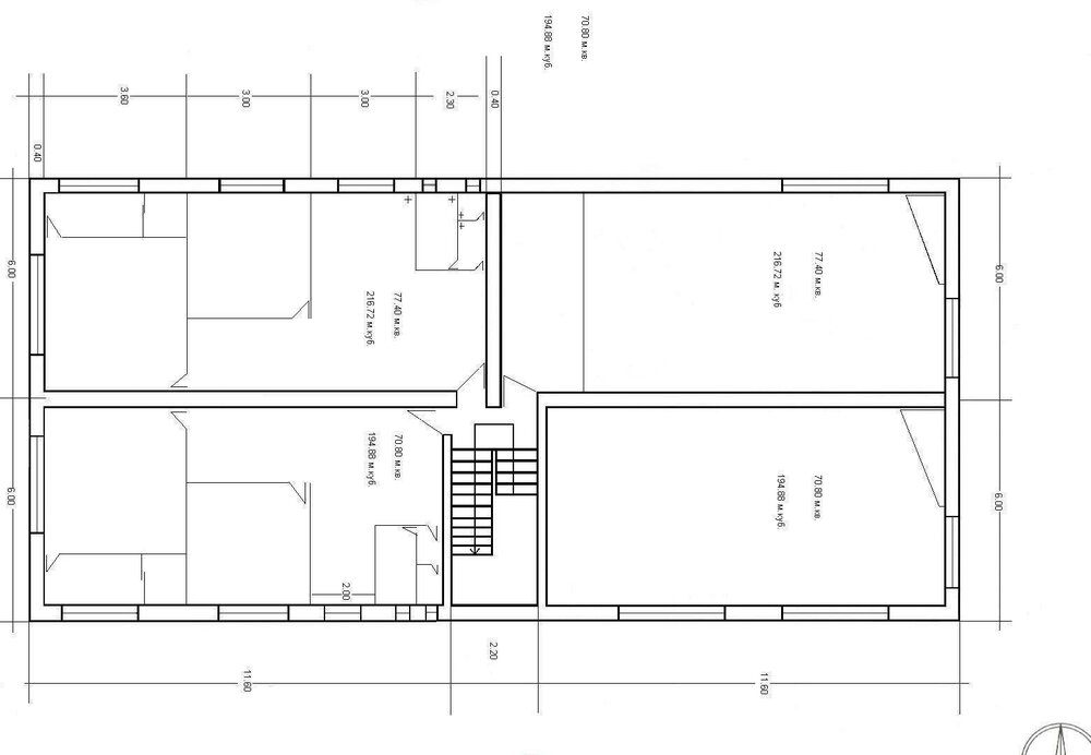
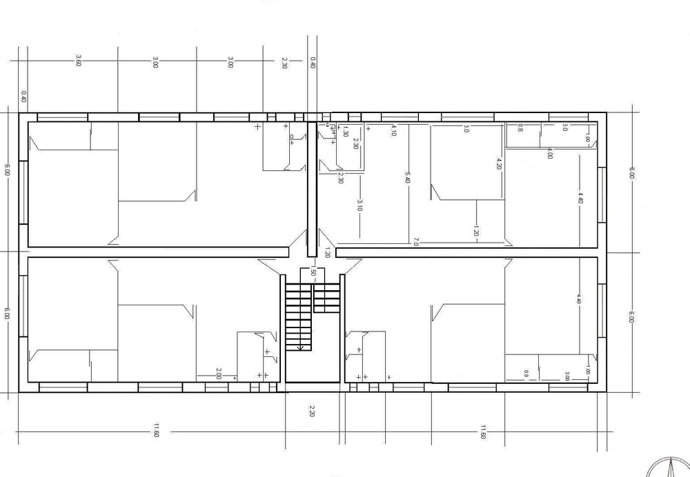
Artemis Опубліковано: 18 жовтня 2007 Автор Поділитись Опубліковано: 18 жовтня 2007 Где заказывали проект и сколько обошелся? Выложите фасады. Ой, где заказывали аж страшно сказать. Изначально он выглядет так (за качество звыняйте, сканер только так его почему-то принимает) в итоге видоизменился, и подкорректировался. Фасадов нет. У нас он не утвержден, но надеюсь,что смогу найти кого-то кто сможет это сделать %) Посилання на коментар Поділитися на інших сайтах More sharing options...
КиевлянинЪ Опубліковано: 18 жовтня 2007 Поділитись Опубліковано: 18 жовтня 2007 смело Посилання на коментар Поділитися на інших сайтах More sharing options...
Romka Опубліковано: 18 жовтня 2007 Поділитись Опубліковано: 18 жовтня 2007 5 этажей без пожарной лестницы? или я чего-то недосомтрел? Или вы на официальную часть забъете? Посилання на коментар Поділитися на інших сайтах More sharing options...
Artemis Опубліковано: 18 жовтня 2007 Автор Поділитись Опубліковано: 18 жовтня 2007 Мы будем строить 2. Посилання на коментар Поділитися на інших сайтах More sharing options...
Vl@dimir Опубліковано: 18 жовтня 2007 Поділитись Опубліковано: 18 жовтня 2007 Какой-то арабский проект Посилання на коментар Поділитися на інших сайтах More sharing options...
КиевлянинЪ Опубліковано: 18 жовтня 2007 Поділитись Опубліковано: 18 жовтня 2007 а сами тоже там будете жить Посилання на коментар Поділитися на інших сайтах More sharing options...
Artemis Опубліковано: 18 жовтня 2007 Автор Поділитись Опубліковано: 18 жовтня 2007 Какой-то арабский проект Почти. Сама жить не буду, но оставлю себе одну квартиру на всякий пожарный. Себе возьму в кредит дом с нормальным участком не в таком оживленном месте. У меня маленький ребенок, не хотелось бы жить возле трассы, где фуры в ряд стоят. Воздух еще тот %) Посилання на коментар Поділитися на інших сайтах More sharing options...
КиевлянинЪ Опубліковано: 19 жовтня 2007 Поділитись Опубліковано: 19 жовтня 2007 Бортничи район оживлённый Посилання на коментар Поділитися на інших сайтах More sharing options...
Белая Рысь Опубліковано: 19 жовтня 2007 Поділитись Опубліковано: 19 жовтня 2007 Artemis, во сколько вам обойдется стройка по предварительной смете и сколько будет стоить аренда? По-моему, сейчас вкладывать в аренду невыгодно-- я много лет занимаюсь арендой своих квартир. Кто будут Ваши жильцы? Посилання на коментар Поділитися на інших сайтах More sharing options...
Я Опубліковано: 19 жовтня 2007 Поділитись Опубліковано: 19 жовтня 2007 а сами тоже там будете жить А какая собственно разница? Посилання на коментар Поділитися на інших сайтах More sharing options...
Рекомендовані повідомлення
Створіть акаунт або увійдіть у нього для коментування
Ви маєте бути користувачем, щоб залишити коментар
Створити акаунт
Зареєструйтеся для отримання акаунта. Це просто!
Зареєструвати акаунтУвійти
Вже зареєстровані? Увійдіть тут.
Увійти зараз