Alex_P_P Опубліковано: 20 травня 2012 Поділитись Опубліковано: 20 травня 2012 Всем спасибо, мне нужно было сразу визуально показать. Немного подробнее и с картинкой (фрагмент вертикальной кирпичной стены, существующая плита балкона и планируемая плита). Цель затеи - удлинить существующий балкон, квартира на первом этаже. Опоры (колоны) высотой в 65см планируется опереть в существующие фундаментные блоки. Плита/пол существующего балкона толщиной 12-12,5см - новую плиту нежелательно делать толще. Швелера - потому, что достаточно в двух местах заделать в стену (как правильно?). По нагрузке швеллеров - у меня получился наибольший прогиб 3,9мм на длине 1,5м при распределенной нагрузке 1т на 1,5м швеллера №8. Это считалось с учетом, что будущая плита пасивно давит и не помогает швеллеру. По мостикам холода - согласен, надо еще думать. Посилання на коментар Поділитися на інших сайтах More sharing options...
Киев-1966 Опубліковано: 20 травня 2012 Поділитись Опубліковано: 20 травня 2012 (змінено) Ребята подскажите правильно ли? Мне посчитали монолитное перекрытие, но что-то страшно. И так что имеем: размер перекрытия 12метров на 6 метров. Посчитали арматура 12 в два ряда , размер ячейки 200 мм, толщина бетона 16 см.(марка 200) Кто может проверить правильно ли , а то боязно. Не надо предлагать плиты- нет доступа для крана. Заранее всем огромное спасибо. Посчитали правильно.Немного переизбыток арматуры,но впритык толщины бетона и марки.Вам нужна нижняя арматура диаметром 12мм (класс А400С),ячейка 200х200мм.Верхняя арматура диаметром 8-10 мм,ячейка 200х200.Бетон М300 с добавлением по месту фибры и С-3.Заводить плиту минимум на 120мм на армопояс.Если дом из газобетона армопояс обязателен.Если это межэтажное перекрытие то толщина плиты должна быть 180мм,если это чердачное перекрытие ,то 160мм достаточно. Добавлено через 8 минут Подскажите советиком и мне. Вот такой домик строю www.budstar.com.ua/cot2_603.htm Заканчиваю цоколь лить (бетон м300 заводской с пластификатором) На следующей недельке начнем готовить под залувку перекрытие. Планировал вязать 12 арматуру клеткой 20 см. Плиту 19 см толщиной. Но похоже что арматуры будет недостаточно. Второй ряд 10 арматурой вязать? Нижний ряд d-12 c ячейкой 200х200,верхний d-6 или d-8,с ячейкой 200х200,бетон М300 с добавлением по месту в миксер за 15-20 минут до заливки (6 кубовый миксер добавить два мешка С-3 по 20 килограмм и 9 килограмм фибры).180мм будет достаточно для межэтажного.Для чердачного 160мм.Над средней несущей стеной нужна дополнительная арматура для усиления из стержней диаметром 12мм длиной 2м. Эти стержни нужно уложить перпендикулярно стене с шагом 200мм так, чтобы середина стержня совпадала с осью стены. Можно рассмотреть ребристое перекрытие,но в Украине мало кто делает это.Эффективность монолитного перекрытия достигается полностью при применеии бутумной черепицы.Покупаемая влагостойкая фанера для опалубки под монолитное перекрытие затем полностью идет под битумку и у Вас из расходов остается лишь аренда подпорок,но это так,мысли вслух..... Добавлено через 41 минуту Нет пояс не нужет, он как бы сразу с перекрытием заливается. Вы ошибаетесь-Армопояс под дом и газобетона даже для монолитного перекрытия нужно делать ОБЯЗАТЕЛЬНО.Очень много нареканий в виде трещин в газоблочных домах без армопояса даже с монолитным перекрытием. Змінено 20 травня 2012 користувачем Киев-1966 1 Посилання на коментар Поділитися на інших сайтах More sharing options...
Киев-1966 Опубліковано: 21 травня 2012 Поділитись Опубліковано: 21 травня 2012 (змінено) Мне еще предложили вместо монолита ложить деревянное перекрытие - меня это немного шокировало, поскольку я всегда думала, что дом в 2 этажа с мансардой нельзя делать с перекрытием между 1-м и 2-м этажами из дерева. Смущает то, что нагрузка на него будет большая поскольку сверху второй этаж с 3-я комнатами и ванной плюс еще мансарда (без перегородок). Перегородки на 2-м этаже будут из газаблока 100-ки. Но этот вроде бы как профессионал меня убеждает в том, что нагрузка будет распределяться равномерно и прочее и прочее... и все будет окей. Что скажете, стоит рассмотреть такой вариант или это бред? Пролеты на первом этаже 4,5 метра и 4 метра. Деревом перекрыться геморойно и не так и дешево по нынешней цене древесины.Но коль решитесь Вы должны соблюсти одно правило.Во первых балками для перекрытия 200х150 или 200х100,которые продаются повсеместно и как,ни странно так и называются-Балками для перкрытия перекрываться нельзя .Во первых идет прогиб и во вторых какого качества здесь их продают не выдерживает никакой критике.Почти все пропелером,если сухие.Если сырые ,потом поведет.Нужно перекрываться только обычными досками состоящие из двух размеров-300х50 и 200х50,что по кубатуре и цене эквивалентно балкам 200х150.Во первых крепче и во вторых исключает прогиб потолка и дрожания люстры(особенно важно для гипсокартоных потолков).Доски нужно покупать за три месяца,сушить,пропитывать и делать перекрытие. Можно и лучше вместо этих досок купить деревянные двутавры 300мм и 200мм,но ихняя стоимость почти приблизиться к монол.перекрытию. Делать перекрытие просто одинарными балками на сегодняшний день-это абсурд. Выбор за Вами. Змінено 21 травня 2012 користувачем Киев-1966 1 Посилання на коментар Поділитися на інших сайтах More sharing options...
ozzy66 Опубліковано: 27 травня 2012 Поділитись Опубліковано: 27 травня 2012 Посчитали правильно.Немного переизбыток арматуры,но впритык толщины бетона и марки.Вам нужна нижняя арматура диаметром 12мм (класс А400С),ячейка 200х200мм.Верхняя арматура диаметром 8-10 мм,ячейка 200х200.Бетон М300 с добавлением по месту фибры и С-3.Заводить плиту минимум на 120мм на армопояс.Если дом из газобетона армопояс обязателен.Если это межэтажное перекрытие то толщина плиты должна быть 180мм,если это чердачное перекрытие ,то 160мм достаточно. Добавлено через 8 минут Нижний ряд d-12 c ячейкой 200х200,верхний d-6 или d-8,с ячейкой 200х200,бетон М300 с добавлением по месту в миксер за 15-20 минут до заливки (6 кубовый миксер добавить два мешка С-3 по 20 килограмм и 9 килограмм фибры).180мм будет достаточно для межэтажного.Для чердачного 160мм.Над средней несущей стеной нужна дополнительная арматура для усиления из стержней диаметром 12мм длиной 2м. Эти стержни нужно уложить перпендикулярно стене с шагом 200мм так, чтобы середина стержня совпадала с осью стены. Можно рассмотреть ребристое перекрытие,но в Украине мало кто делает это.Эффективность монолитного перекрытия достигается полностью при применеии бутумной черепицы.Покупаемая влагостойкая фанера для опалубки под монолитное перекрытие затем полностью идет под битумку и у Вас из расходов остается лишь аренда подпорок,но это так,мысли вслух..... Добавлено через 41 минуту Вы ошибаетесь-Армопояс под дом и газобетона даже для монолитного перекрытия нужно делать ОБЯЗАТЕЛЬНО.Очень много нареканий в виде трещин в газоблочных домах без армопояса даже с монолитным перекрытием. Можно ли сделать 75мм газоблок 20мм ЭППС и потом армопояс 200 на 200? Посилання на коментар Поділитися на інших сайтах More sharing options...
Киев-1966 Опубліковано: 28 травня 2012 Поділитись Опубліковано: 28 травня 2012 (змінено) Можно ли сделать 75мм газоблок 20мм ЭППС и потом армопояс 200 на 200? Надеюсь Вы пошутили.Нет нельзя,если дом не сделан по технологии монолитно-каркасного бетонного скелета.Да даже и с ж/б скелетом стена из газоблока 75мм не имеет право на существование. Змінено 28 травня 2012 користувачем Киев-1966 Посилання на коментар Поділитися на інших сайтах More sharing options...
ozzy66 Опубліковано: 29 травня 2012 Поділитись Опубліковано: 29 травня 2012 Надеюсь Вы пошутили.Нет нельзя,если дом не сделан по технологии монолитно-каркасного бетонного скелета.Да даже и с ж/б скелетом стена из газоблока 75мм не имеет право на существование. Я имел ввиду 75мм газобетон + 20мм ЭППС сделать спереди опалубкой для армопояса и в итоге армопояс будет 200х200 Посилання на коментар Поділитися на інших сайтах More sharing options...
Киев-1966 Опубліковано: 30 травня 2012 Поділитись Опубліковано: 30 травня 2012 Я имел ввиду 75мм газобетон + 20мм ЭППС сделать спереди опалубкой для армопояса и в итоге армопояс будет 200х200 Тогда нормально. 1 Посилання на коментар Поділитися на інших сайтах More sharing options...
rshelegeda Опубліковано: 4 вересня 2012 Поділитись Опубліковано: 4 вересня 2012 Ладно, когда самострои плитами перекрывают... Но когда без проекта и расчета над головой в комнате висит 10 тонн бетона, мне этого не понять. Посилання на коментар Поділитися на інших сайтах More sharing options...
Serd Опубліковано: 27 жовтня 2016 Поділитись Опубліковано: 27 жовтня 2016 Строение- пристройка к дому с мансардой. Планируется заливка монолитного перекрытия 4*6м по стенам из гб. Конструкция планируется из двутавра 10 и арматуры 10. Подскажите: 1.Нужен ли армопояс под двутавр? 1.1 В местах опирания двутавра на гб стену что-то надо подкладывать? 2.Вложеную в двутавр арматурную сетку (200*200) необходимо приваривать к оному? 3. Весь армокаркас (двутавр) надо утопить в толще бетона? или нижнюю опалубку можно упереть в балки? Посилання на коментар Поділитися на інших сайтах More sharing options...
Технология Строительства Опубліковано: 30 жовтня 2016 Поділитись Опубліковано: 30 жовтня 2016 Строение- пристройка к дому с мансардой. Планируется заливка монолитного перекрытия 4*6м по стенам из гб. Конструкция планируется из двутавра 10 и арматуры 10. Подскажите: 1.Нужен ли армопояс под двутавр? 1.1 В местах опирания двутавра на гб стену что-то надо подкладывать? 2.Вложеную в двутавр арматурную сетку (200*200) необходимо приваривать к оному? 3. Весь армокаркас (двутавр) надо утопить в толще бетона? или нижнюю опалубку можно упереть в балки? Я думаю что можно обойтись 10 арматурой без двутавров сетка 150х150 или 120х120 мм. Толщина 150 мм Сетка только с низу. 2 Посилання на коментар Поділитися на інших сайтах More sharing options...
Serd Опубліковано: 31 жовтня 2016 Поділитись Опубліковано: 31 жовтня 2016 Я думаю что можно обойтись 10 арматурой без двутавров сетка 150х150 или 120х120 мм. Толщина 150 мм Сетка только с низу. Я согласен,но товарищ невероятный перестраховщик и решил уложить двутавр с шагом 90см + сетка снизу и сверху 10 арматурой. Посилання на коментар Поділитися на інших сайтах More sharing options...
dnepryanka Опубліковано: 6 листопада 2016 Поділитись Опубліковано: 6 листопада 2016 (змінено) Всем добрый день! профессионалы дайте свой совет: Есть две стены. Одна бетонная 300мм, вторая-кирпична я 260мм (кирпич красный полнотелый). Хочу сделать монолитное перекрытие, при этом перекрытие будет полом заезда машин во двор.Пролет между стенами 2,43м, расстояние вдоль стен 5,2м. Есть в наличии арматура д.16,12,10мм и гладкая д.6. Подскажите, пожалуйста, какую арматуру использовать и где. Желательно, чтобы толщина плиты была не более 150мм, если позволят нагрузки Змінено 6 листопада 2016 користувачем dnepryanka Посилання на коментар Поділитися на інших сайтах More sharing options...
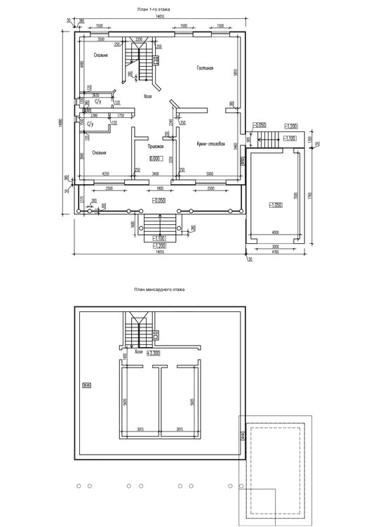
Xass66 Опубліковано: 6 квітня 2021 Поділитись Опубліковано: 6 квітня 2021 Добрый день! Огромная просьба дать оценку или совет... Дом 14 на 15м Стены -кирпич. Неделю назад, залили монолитную плиту в толщину 16мм, арматура d12, ячейка 20х20мм, бетон М250. Опалубка еще стоит застывает. Понимаю, нужно было лить хотя бы толщину 18мм, но уже все, залита 16 -ая плита. Выдержит ли мансарду и кровлю, стены из чего лучше сделать (газоблок или дерево) и стоит ли усиливать монолит, балками, швеллер или небольшой фундамент на плите. так как, стены мансардных комнат расположены не на несущих стенах... Дайте пожалуйста совет. План дома прикрепил... Посилання на коментар Поділитися на інших сайтах More sharing options...
shneider_vova Опубліковано: 6 квітня 2021 Поділитись Опубліковано: 6 квітня 2021 Добрый день! Огромная просьба дать оценку или совет... Дом 14 на 15м Стены -кирпич. Неделю назад, залили монолитную плиту в толщину 16мм, арматура d12, ячейка 20х20мм, бетон М250. Опалубка еще стоит застывает. Понимаю, нужно было лить хотя бы толщину 18мм, но уже все, залита 16 -ая плита. Выдержит ли мансарду и кровлю, стены из чего лучше сделать (газоблок или дерево) и стоит ли усиливать монолит, балками, швеллер или небольшой фундамент на плите. так как, стены мансардных комнат расположены не на несущих стенах... Дайте пожалуйста совет. План дома прикрепил... лучше фото армирования или схему армирования (с разрезом!) приложите. чтобы было понятно, сколько слоев (1 или 2) и на каком расстоянии от поверхности находится арматура Посилання на коментар Поділитися на інших сайтах More sharing options...
lastandr Опубліковано: 6 квітня 2021 Поділитись Опубліковано: 6 квітня 2021 Выдержит ли мансарду и кровлю, стены из чего лучше сделать (газоблок или дерево) и стоит ли усиливать монолит, балками, швеллер или небольшой фундамент на плите. так как, стены мансардных комнат расположены не на несущих стенах... По наружному периметру стены(если они расположены над наружными стенами 1-го этажа) можно делать такими же, как и на 1-м этаже, а внутренние - только в полкирпича либо из ГБ 100мм... Никаких "фундаментов и усилений" городить не нужно... Посилання на коментар Поділитися на інших сайтах More sharing options...
rshelegeda Опубліковано: 12 квітня 2021 Поділитись Опубліковано: 12 квітня 2021 Добрый день! Огромная просьба дать оценку или совет... Дом 14 на 15м Стены -кирпич. Неделю назад, залили монолитную плиту в толщину 16мм, арматура d12, ячейка 20х20мм, бетон М250. Опалубка еще стоит застывает. Понимаю, нужно было лить хотя бы толщину 18мм, но уже все, залита 16 -ая плита. Выдержит ли мансарду и кровлю, стены из чего лучше сделать (газоблок или дерево) и стоит ли усиливать монолит, балками, швеллер или небольшой фундамент на плите. так как, стены мансардных комнат расположены не на несущих стенах... Дайте пожалуйста совет. План дома прикрепил... Здравствуйте. Всю оставшуюся жизнь сидеть под перекрытием в этом доме, так и не поняв, выдержит ли оно или нет, наверное, будет не комфортно. Плита, массой около 75 тонн, будет действовать на психику, как гидравлический пресс с искрящим выключателем. Почему именно 16 см плита, Вы хотели сэкономить 2 см (4 куба бетона - аж целых 10 000 грн.)? Сколько сеток арматуры (1 слой или 2). Это тоже немаловажно знать. Вы успешные люди, смогли найти деньги на постройку дома, но по Вашему отношению видно, что Вы далеки от начальных принципов строительства. Только со стороны кажется, что какие-то болваны в грязной одежде что-то знают и что они Вам подскажут правильно, что и как строить. Еще большую степень некомпетентности "строителей" (те которые очень много с их слов переделали уже таких перекрытий, особенно в Москве), подчеркивает их безмятежная готовность строить фундаменты и монолитные перекрытия без расчетов и чертежей. Я считаю, что только безответственный "строитель" (не бомж, который вяжет арматуру, а их организатор, которому Вы платите) мог взять у Вас деньги и сделать работу не поняв даже для себя, правильно ли он выполняет это перекрытие. Если Вы сейчас сомневаетесь, а когда "прораб" Вам рассказывал, что все будет ОК, Вы ему верили, то не цыгане ли Вам строили (возможно, это был гипноз)?. Возможно Ваш "прораб", на самом деле все рассчитал и может доказать, что перекрытие безопасно. А возможно, это Вы ему сказали делать именно так, как он сделал. А ему было все равно, как говориться: "Мени сказали так робыть я и роблю...". Единственное, что может Вас успокоить или как-то исправить ситуацию, так это следующее. Вам нужно обратиться в проектную организацию, и заказать обследование залитого перекрытия. Не обязательно делать это через экспертизу (как официальную процедуру). Вам достаточно, что бы инженер-проектировщик (именно он, ни кто другой, так как остальные умники, как обычно, ни за что не отвечают) собрал всю информацию о том, как выполнялись работы по плите: - паспорта на бетон; - чертежи плиты (реальная начинка арматуры); - доливали ли эти болваны-строители воду в бетон?; - вибрировали ли они смесь во время укладки? (а это редкость); - и другие подробности, который проектировщик попросит... Потом проектировщик сделает оценку реальной марки бетона в готовой Вашей плите (с помощь некоторых приборов). Потом Вы заплатите ему деньги и он Вам ответит (через некоторое время) выдержит ли плита или рухнет от холодильника или дивана (на котором будут два человека, еще и дергаться). Все остальные заверения и рассказы про упадет или будет стоять строятся только на догадках. Возможно, проектировщик даст заключение, что несущая способность плиты недостаточна, тогда Вы ему заплатите за решение по усилению плиты. И Вы заплатите за материалы и работы по этому усилению. Да, за все нужно будет заплатить. И заплатить больше, чем за расчеты по фундаменту и перекрытию, перед стройкой. Интересно, что у Вас с фундаментом? Его тоже сделали без проекта? Ведь дом может просесть и потрескаться, если Вы доверились рассказам работяг про "Та тут така земля тверда, що лопатою вже хер прокопаеш... Все, на 80 см вирили, та досить, ни куды воно не дынеться...". По этому, лучше и фундамент пусть проектировщик посмотрит, возможно все ОК, а возможно и не ОК. Но лучше это понять тоже сейчас, а не когда внутрянку закончите. Экстрасенсы (видящие всю ситуацию на расстоянии или по фотографиям, как Кашпировский), которые, дают советы в Вашей ситуации, только усугубляют все происходящее. Они вселяют Вам в голову все больше сомнений. Как, вообще, можно давать советы по форуму относительно несущей способности индивидуально выполненных конструкций? Чем они отвечают? Своим имуществом или сертификатом проектировщика (ГИПа)? Просто жесть.... Прикиньте: " Я посмотрел Ваши фото и почитал Ваш рассказик и могу заверить, что все выдержит (или нет)". Потом, когда не выдержало, они скажут, что ну ошиблись, подумаешь. Сходите в проектный, не поленитесь. И только, не к знакомым, каким-то. Именно в проектный институт или фирму. Обязательно убедитесь в том, с кем имеете дело. Человек должен показать свой сертификат проектировщика, только тогда, будут гарантии, что вердикт будет правильным. 1 1 Посилання на коментар Поділитися на інших сайтах More sharing options...
Рекомендовані повідомлення
Створіть акаунт або увійдіть у нього для коментування
Ви маєте бути користувачем, щоб залишити коментар
Створити акаунт
Зареєструйтеся для отримання акаунта. Це просто!
Зареєструвати акаунтУвійти
Вже зареєстровані? Увійдіть тут.
Увійти зараз