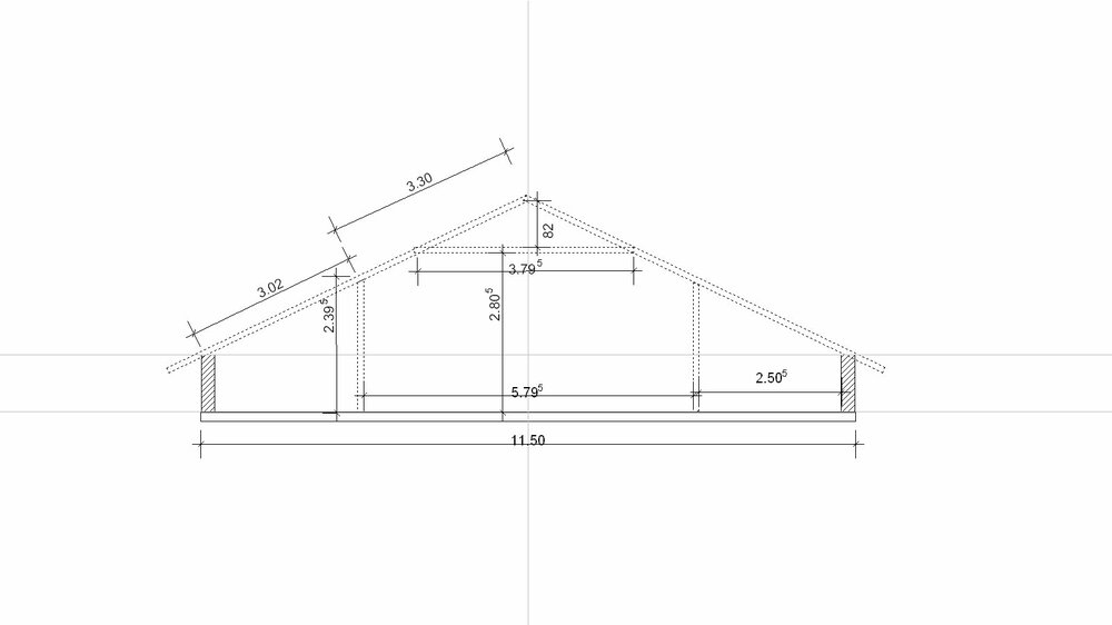
Many70 Опубліковано: 5 березня 2010 Поділитись Опубліковано: 5 березня 2010 (змінено) Доброго времени суток, в процессе конструирования будущего дома возникает множество вопросов, вот добрался до кровли, для ясности выложил рисунок. У меня такой вопрос? 1. Расстояние между строп 80 см. 2. Сечение стропы 150х50 3.Сечение затяжки 150х50 4.Опорный брус 100х50 5.Коньковый прогон 100х100 6.Шаг обрешетки 0,30см. 7.Сечение обрешетки Варианты брус 50х50, доска 25х100, необрезная доска 25х150 8. Кровля шифер или ондулин, или еще че, не определился. 9. Уклон 25градусов Ребята, Ваши комментарии? А может добавить сечание? Змінено 5 березня 2010 користувачем Many70 Посилання на коментар Поділитися на інших сайтах More sharing options...
Polimer Опубліковано: 5 березня 2010 Поділитись Опубліковано: 5 березня 2010 1. Расстояние между строп 80 см. 2. Сечение стропы 150х50 3.Сечение затяжки 150х50 4.Опорный брус 100х50 5.Коньковый прогон 100х100 6.Шаг обрешетки 0,30см. 7.Сечение обрешетки Варианты брус 50х50, доска 25х100, необрезная доска 25х150 8. Кровля шифер или ондулин, или еще че, не определился. Ребята, Ваши комментарии? А может добавить сечание? Еще-бы уклон крыши указать, а так все вроде проходит, за исключением прогона. 100*100 - не стОит такой мощный давать. Обрешетку под шифер - доска, что подешевле, с шагом 400-600 в осях. Посилання на коментар Поділитися на інших сайтах More sharing options...
Many70 Опубліковано: 5 березня 2010 Автор Поділитись Опубліковано: 5 березня 2010 Спасибо! Уклон 25градусов Да, и порода дерева наверное Сосна Посилання на коментар Поділитися на інших сайтах More sharing options...
VillaDeLux (ex Акро) Опубліковано: 5 березня 2010 Поділитись Опубліковано: 5 березня 2010 Ребята, Ваши комментарии? А может добавить сечание? Расстояние между стен 11 с копейками метров. На эти балки опирается кровля. Если под балками предполагается опора то её нужно указать. Пока что всё это "рухнет" Посилання на коментар Поділитися на інших сайтах More sharing options...
Many70 Опубліковано: 5 березня 2010 Автор Поділитись Опубліковано: 5 березня 2010 Расстояние между стен 11 с копейками метров. На эти балки опирается кровля. Если под балками предполагается опора то её нужно указать. Пока что всё это "рухнет" Да, естественно кто бы такую коробку смастерил, без простенок, просто заходиш и 11х11:) просто супер. Несущий простенок действительно существует, значит 4,50 от основной стены и 6,00 от другой основной. Посилання на коментар Поділитися на інших сайтах More sharing options...
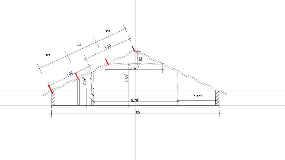
VillaDeLux (ex Акро) Опубліковано: 6 березня 2010 Поділитись Опубліковано: 6 березня 2010 мои рекомндации таковы: разделить стропилину на 3 равных части как на рисунке и сместить стойку ниже. тем самым нагрузка снимется со стропилины равномерно. вам нужно будет заказать заранее лес длиной 6,5 метра для оптимизации трудозатрат и отходов. коньковый прогон вам вообще не нужен. для шифера шаг 750, 500 или 375 мм. В качестве обрешётки советую доску 120*30 или 100*40 Посилання на коментар Поділитися на інших сайтах More sharing options...
VeNick Опубліковано: 6 березня 2010 Поділитись Опубліковано: 6 березня 2010 Да, естественно кто бы такую коробку смастерил, без простенок, просто заходиш и 11х11:) просто супер. Несущий простенок действительно существует, значит 4,50 от основной стены и 6,00 от другой основной. А перекрытие какое? - деревянные балки (сечение?) или ж/б плиты? Посилання на коментар Поділитися на інших сайтах More sharing options...
inco12 Опубліковано: 6 березня 2010 Поділитись Опубліковано: 6 березня 2010 Почитайте мою ветку может найдете что то интересное www.stroimdom.com.ua/forum/showthread.php?t=12352 Посилання на коментар Поділитися на інших сайтах More sharing options...
Many70 Опубліковано: 6 березня 2010 Автор Поділитись Опубліковано: 6 березня 2010 А перекрытие какое? - деревянные балки (сечение?) или ж/б плиты?[/QUOT Перекрытие деревянное! Балки 600 и 500там где большой пролет 200х160 Посилання на коментар Поділитися на інших сайтах More sharing options...
Many70 Опубліковано: 6 березня 2010 Автор Поділитись Опубліковано: 6 березня 2010 [ATTACH]43163[/ATTACH] мои рекомндации таковы: разделить стропилину на 3 равных части как на рисунке и сместить стойку ниже. тем самым нагрузка снимется со стропилины равномерно. вам нужно будет заказать заранее лес длиной 6,5 метра для оптимизации трудозатрат и отходов. коньковый прогон вам вообще не нужен. для шифера шаг 750, 500 или 375 мм. В качестве обрешётки советую доску 120*30 или 100*40 Спасибо! Да действительно Ваша конструкция ловчее! Посилання на коментар Поділитися на інших сайтах More sharing options...
Many70 Опубліковано: 6 березня 2010 Автор Поділитись Опубліковано: 6 березня 2010 [ATTACH]43163[/ATTACH] мои рекомндации таковы: разделить стропилину на 3 равных части как на рисунке и сместить стойку ниже. тем самым нагрузка снимется со стропилины равномерно. вам нужно будет заказать заранее лес длиной 6,5 метра для оптимизации трудозатрат и отходов. коньковый прогон вам вообще не нужен. для шифера шаг 750, 500 или 375 мм. В качестве обрешётки советую доску 120*30 или 100*40 Думаю длинну не 6,50 а 7,00 заказывать Посилання на коментар Поділитися на інших сайтах More sharing options...
Many70 Опубліковано: 7 березня 2010 Автор Поділитись Опубліковано: 7 березня 2010 Ребята, а если битумкой крыть это же прийдется сплошняком обрешетку бить, в таком случае чем можно недорого обойтись? Посилання на коментар Поділитися на інших сайтах More sharing options...
Many70 Опубліковано: 7 березня 2010 Автор Поділитись Опубліковано: 7 березня 2010 Скажите какой шаг обрешетки для металлочерепичы? Посилання на коментар Поділитися на інших сайтах More sharing options...
VeNick Опубліковано: 7 березня 2010 Поділитись Опубліковано: 7 березня 2010 На например МЧ от ТПК: (ссылка устарела) а вообще поиском в Гугле пользуйтесь. Практически все производиетли кровельных материалов размещают каталоги и инструкции по монтажу. Посилання на коментар Поділитися на інших сайтах More sharing options...
Many70 Опубліковано: 8 березня 2010 Автор Поділитись Опубліковано: 8 березня 2010 На например МЧ от ТПК: (ссылка устарела) а вообще поиском в Гугле пользуйтесь. Практически все производиетли кровельных материалов размещают каталоги и инструкции по монтажу. Спасибо! Поисковиком пользуюсь постоянно, но не попадается ничего конкретного 8-) Посилання на коментар Поділитися на інших сайтах More sharing options...
Вождь Опубліковано: 8 березня 2010 Поділитись Опубліковано: 8 березня 2010 Many70, Ваша конструкция вполне жизнеспособна. Но обязательно обратите внимание на несколько моментов: 1) посчитайте выдержат ли балки перекрытия назрузку от стойки (это примерно 500-600кг от каждой, если снега наметет как в этом году). 2) стойку смещать не стоит. Оставьте как вашем варианте, иначе нужно будет увеличивать сечение стропильной ноги. А вообще, при схожих размерах дома я отказался от мансардной крыши в пользу более надежной стропильной системы с подкосами опирающимися на центральную стену и получился у меня большой чердак. Удачи в строительстве! Посилання на коментар Поділитися на інших сайтах More sharing options...
Many70 Опубліковано: 9 березня 2010 Автор Поділитись Опубліковано: 9 березня 2010 Many70, Ваша конструкция вполне жизнеспособна. Но обязательно обратите внимание на несколько моментов: 1) посчитайте выдержат ли балки перекрытия назрузку от стойки (это примерно 500-600кг от каждой, если снега наметет как в этом году). 2) стойку смещать не стоит. Оставьте как вашем варианте, иначе нужно будет увеличивать сечение стропильной ноги. А вообще, при схожих размерах дома я отказался от мансардной крыши в пользу более надежной стропильной системы с подкосами опирающимися на центральную стену и получился у меня большой чердак. Удачи в строительстве! Спасибо! По поводу снега, у нас в Крыму его практически не бывает, и эта зима это доказала;) А если и навалит то сразу тает! Посилання на коментар Поділитися на інших сайтах More sharing options...
MWer Опубліковано: 9 березня 2010 Поділитись Опубліковано: 9 березня 2010 Вы так и не дали планировку по второму этажу. Дело в том, что можно наверняка в стенах и фронтонах разместить колонны, на которые опереть поперечные фермы, или балки, для более удобного опирания конструкции. Моменты на которые нужно обратить внимание: - для деревянных конструкций предпочтительней статически определимая схема, - удобство монтажа, - опирание на чердачное перекрытие "на пролете" снижает долговечность облицовки (потолка). Посилання на коментар Поділитися на інших сайтах More sharing options...
DOKKKA Опубліковано: 13 березня 2010 Поділитись Опубліковано: 13 березня 2010 вот почитайте, хорошая статья об устройстве крыши на строительном сайте, писали профи domrembud.com.ua/?page_id=349, статья толковая, там кстатии и мастера оч толковые. 2 Посилання на коментар Поділитися на інших сайтах More sharing options...
Many70 Опубліковано: 15 березня 2010 Автор Поділитись Опубліковано: 15 березня 2010 Спасибо всем!!!!!!!. Думаю тему можно закрывать!;) Посилання на коментар Поділитися на інших сайтах More sharing options...
DOKKKA Опубліковано: 15 березня 2010 Поділитись Опубліковано: 15 березня 2010 Спасибо всем!!!!!!!. Думаю тему можно закрывать!;) ну вот... , на востоке говорят, что несовершенство ученика определяется числом задаваемых им вопросов. Я это к тому, что когда человек хорошо осведомлен, то ему некоторые вещи становятся понятны сразу, сами по себе, так сказать. И что плохово в хорошей информации. А тему закрывать не надо, вопросов по этой теме гораздо больше, чем ответов. а толковых ответов вообще единицы. на востоке говорят, что один несвеждущий задаст столько вопросов, что не ответят и 10 мудрецов. всем хорошего строительства Посилання на коментар Поділитися на інших сайтах More sharing options...
Many70 Опубліковано: 17 березня 2010 Автор Поділитись Опубліковано: 17 березня 2010 ну вот... , на востоке говорят, что несовершенство ученика определяется числом задаваемых им вопросов. Я это к тому, что когда человек хорошо осведомлен, то ему некоторые вещи становятся понятны сразу, сами по себе, так сказать. И что плохово в хорошей информации. А тему закрывать не надо, вопросов по этой теме гораздо больше, чем ответов. а толковых ответов вообще единицы. на востоке говорят, что один несвеждущий задаст столько вопросов, что не ответят и 10 мудрецов. всем хорошего строительства Я к тому что для меня все понятно, ну а пообщаться можно и поспорить на разные темы, на то он и форум!;) Спасибо создателям!!!!!!!!! Посилання на коментар Поділитися на інших сайтах More sharing options...
Рекомендовані повідомлення
Створіть акаунт або увійдіть у нього для коментування
Ви маєте бути користувачем, щоб залишити коментар
Створити акаунт
Зареєструйтеся для отримання акаунта. Це просто!
Зареєструвати акаунтУвійти
Вже зареєстровані? Увійдіть тут.
Увійти зараз