Ася Опубліковано: 19 березня 2010 Автор Поділитись Опубліковано: 19 березня 2010 ну конешна... этокак в анекдоте - "а там (бросая шапку) - я бурачок посажу"... А вообще то - сменить одежду - какую на какую??? вообще то для этой цели лучше гардероб... как то не приверженец я шкафов в спальне... в спальне - кровать, прикроватные тумбочки - 2 шт - и персонефицированный направленный свет - помимо основного (который, кстати, желательно сделать с возможностью выключения в горизонтальном положении)... ну плюс дамкий столик с зеркалом и пуфом для ночного марафету... все... больше в спальне быть ничего не должно (ну можно еще ящик для белья - аля рундук-изножник) а кровать 2Х2 с матрацем 2Х1.8 максимум что делать в спальне помимо сна и улучшения демографического состояния на Украине - это почитать, никаких телеков... а вот хорошую стереосистемку можно и примастырить... Не люблю ходить дома в офисном костюме (и в офис не пойду в халате) Сама не люблю шкафы (и не только в спальне), только вот переодеваться в гардеробной не люблю еще больше. Но Ваше замечание (в общем смысле) очень даже рационально. Тумбочки и свет прекрасно вписываются в прикроватный 1 метр с каждой стороны. А еще лучше - верхний свет с возможностью регулирования яркости и выключения в горизонтальном положении ;) Дамский столик с пуфом и зеркалом для ночного (да и для утреннего) марафету я бы из спальни выбросила (есть несколько причин) Рундук - это круто. Видела у кого-то из форумчан (не у Вас ли?) - очень понравилось. Да уж. Люди с возрастом не меняются. Сказка и колыбельная на ночь - актуально в любом возрасте... Посилання на коментар Поділитися на інших сайтах More sharing options...
Ася Опубліковано: 19 березня 2010 Автор Поділитись Опубліковано: 19 березня 2010 Чем больше спальня, тем больше в ней воздуха. Чем больше воздуха, тем комфортнее в ней СПАТЬ. В нашей спальне стоят две кровати 1.4х2.0 каждая. Спальня 25 метров с притоком воздуха и вытяжкой. Только из-за воздуха? Других причин нет? Посилання на коментар Поділитися на інших сайтах More sharing options...
Ася Опубліковано: 19 березня 2010 Автор Поділитись Опубліковано: 19 березня 2010 согласен с Надеждой - и не хочу спальню менее 16 квадратов.. 20 самое оно "Та, ладна" А на улице воздуха еще больше. Не? Посилання на коментар Поділитися на інших сайтах More sharing options...
Darkdwarf Опубліковано: 19 березня 2010 Поділитись Опубліковано: 19 березня 2010 спать на улице - класс, особенно когда рядом лес... Кровать с балдахином из москитки и летними ночами - самое оно)))) Рундука у меня пока что Вы видеть не могли))) но мы над этим работаем))) Посилання на коментар Поділитися на інших сайтах More sharing options...
Ася Опубліковано: 19 березня 2010 Автор Поділитись Опубліковано: 19 березня 2010 спать на улице - класс, особенно когда рядом лес... Кровать с балдахином из москитки и летними ночами - самое оно)))) Рундука у меня пока что Вы видеть не могли))) но мы над этим работаем))) Зимой - отапливаемая спальня - оптимальных размеров, а летом - кровать с балдахином. В конце концов, для чего же тогда собственный уголок природы?! Да и сколько там той зимы? Ну что - консенсус? :D 1 Посилання на коментар Поділитися на інших сайтах More sharing options...
ДОКС Опубліковано: 19 березня 2010 Поділитись Опубліковано: 19 березня 2010 Зимой - отапливаемая спальня - оптимальных размеров, а летом - кровать с балдахином. В конце концов, для чего же тогда собственный уголок природы?! Да и сколько там той зимы? Ну что - консенсус? :D прошу "пардона", но мне кажется что Вам пока ещё рано свой дом планировать... начните с "бунгало" на огороде у родителей... не сочтите за грубость...так, по-трындеть захотелось... ещё раз - прошу прощения, если обидел чьи-то желания своей не удачной репликой... Посилання на коментар Поділитися на інших сайтах More sharing options...
Ася Опубліковано: 19 березня 2010 Автор Поділитись Опубліковано: 19 березня 2010 (змінено) прошу "пардона", но мне кажется что Вам пока ещё рано свой дом планировать... начните с "бунгало" на огороде у родителей... не сочтите за грубость...так, по-трындеть захотелось... ещё раз - прошу прощения, если обидел чьи-то желания своей не удачной репликой... Спасибо. Возможно, Вы и правы. Для некоторых свой дом - вопрос имиджа, престижа и т.п. Для некоторых - вопрос удобства и комфортности существования. А для некоторых и "бунгало" - свой дом. Все люди разные. Кстати, заметила что для некоторых чей-то "свой дом" - вопрос заработка. И только заработка. Аналогично "прошу прощения, если обидела чьи-то желания своей неудачной репликой..." Змінено 19 березня 2010 користувачем Ася Замечание ДОКСа Посилання на коментар Поділитися на інших сайтах More sharing options...
ДОКС Опубліковано: 19 березня 2010 Поділитись Опубліковано: 19 березня 2010 Спасибо. Возможно, Вы и правы. Для некоторых свой дом - вопрос имиджа, престижа и т.п. Для некоторых - вопрос удобства и комфортности существования. А для некоторых и "бунгало" - свой дом. Все люди разные. Кстати, заметила что для некоторых чей-то "свой дом" - вопрос зароботка. И только зароботка. ЗарАботок - это плохо или хорошо?;) Изучая ситуации я убедился, что свой дом - это вопрос исключительно удобства и комфорта, но уровень восприятия "удобства и комфорта" у всех разный и это очень таки хорошо, иначе скучно жить на этой планете... Кому то мало 5-ти звёзд в Шотландии, а кому то и сарай под агрофермой за счастье... и это, ещё раз повторюсь, НОРМАЛЬНО!!!!!!!! Вопрос в другом, в адекватности своих желаний (даже не "возможностей") и правильном их осознании... а так - это превращается всё в обычный "тырнетовский" спам и трёп... ................................................................................................... Посилання на коментар Поділитися на інших сайтах More sharing options...
Darkdwarf Опубліковано: 19 березня 2010 Поділитись Опубліковано: 19 березня 2010 ну так правильно - тема то называется - Соображаем... т.е. пока что это мыслительный процесс, все идеи обдумываются, сортируются, примеряются к своим хотелкам и могушкам, а потом тема перерастет в Сооружаем для троих + одна и толпа ребятишек))))))))) 1 Посилання на коментар Поділитися на інших сайтах More sharing options...
Ася Опубліковано: 19 березня 2010 Автор Поділитись Опубліковано: 19 березня 2010 ЗарАботок - это плохо или хорошо?;) Вопрос в другом, в адекватности своих желаний (даже не "возможностей") и правильном их осознании... а так - это превращается всё в обычный "тырнетовский" спам и трёп... ................................................................................................... Спасибо. Учла. Хотя... Заработок - это хорошо. А вот ТОЛЬКО заработок - уже не так хорошо. А когда чел даже в свободном общении (мы же здесь свободно общаемся?) думает только о том, как на тебе заработать - это не только нехорошо, а и неприятно. Кстати, когда не удается продать услугу клиенту сходу, это еще не значит, что в будущем продажа не состоится. Это я Вам как продавец с опытом могу подтвердить. Так что ссорится с таким (несостоявшимся) клиентом, по меньшей мере, недальновидно. Пока я на этом форуме в процессе "осознания", но... P.S. А для борьбы со спамом и трепом на форумах существуют модераторы. Не? Посилання на коментар Поділитися на інших сайтах More sharing options...
ДОКС Опубліковано: 19 березня 2010 Поділитись Опубліковано: 19 березня 2010 Спасибо. Учла. Хотя... Заработок - это хорошо. А вот ТОЛЬКО заработок - уже не так хорошо. А когда чел даже в свободном общении (мы же здесь свободно общаемся?) думает только о том, как на тебе заработать - это не только нехорошо, а и неприятно. Кстати, когда не удается продать услугу клиенту сходу, это еще не значит, что в будущем продажа не состоится. Это я Вам как продавец с опытом могу подтвердить. Так что ссорится с таким (несостоявшимся) клиентом, по меньшей мере, недальновидно. Пока я на этом форуме в процессе "осознания", но... P.S. А для борьбы со спамом и трепом на форумах существуют модераторы. Не? Про тему "зарАботка" - это очень хорошо!!! Про тему "ТОЛЬКО ЗарАботка" - это очень хорошо, когда есть Заказчик, которому необходим РЕЗУЛЬТАТ!!! Про тему "продать услугу" - ни чего не продаю, тем более сходу, а помогаю решить проблему за гонорар... Про тему "ссорится" - я живу давно и у меня трое детей, соответственно ссорится и обижаться уже не умею... А теперь о личном... Я попытался (возможно не удачно ) изменить ход Вашей дискуссии и направить её на осознание желаемого... Скорее всего, надо было для начала создать ветку в другом разделе, ибо вместо обсуждения конкретного, идёт обсуждение "не понятно мне чего"... То есть: каков вопрос - таков и ответ... Где конкретика? Где полёт мысли технической и творческой? Так, попытки лингвистического соревнования.... ;) Посилання на коментар Поділитися на інших сайтах More sharing options...
Darkdwarf Опубліковано: 19 березня 2010 Поділитись Опубліковано: 19 березня 2010 ну дак к конкретике и плавно подбирается... вон, размер спальни утрясли... размер гардероба, косвенно (исходя из того что там не любят одеваться) - тоже... с потолками и размером дома тож вроде как определились... троя тут рослые - им куб подавай с гранью 8... правда великовато в выстоту 8 то... разве что еще цокль 1.5 метра заберет))))) Посилання на коментар Поділитися на інших сайтах More sharing options...
ДОКС Опубліковано: 19 березня 2010 Поділитись Опубліковано: 19 березня 2010 ну дак к конкретике и плавно подбирается... вон, размер спальни утрясли... размер гардероба, косвенно (исходя из того что там не любят одеваться) - тоже... с потолками и размером дома тож вроде как определились... троя тут рослые - им куб подавай с гранью 8... правда великовато в выстоту 8 то... разве что еще цокль 1.5 метра заберет))))) цоколь, это типа налоговой - приходит и отбирает вовремя не отредактированное... Посилання на коментар Поділитися на інших сайтах More sharing options...
ДОКС Опубліковано: 19 березня 2010 Поділитись Опубліковано: 19 березня 2010 Так давайте ж предлагайте конкретику !!! Предлагаю: 1. Поиски участка. 2. Создание функциональных планов помещений. 3. Создание конструкторских решений здания. 4. ..............архитектурных........................... 5. ............................................................... Посилання на коментар Поділитися на інших сайтах More sharing options...
Ася Опубліковано: 19 березня 2010 Автор Поділитись Опубліковано: 19 березня 2010 Где конкретика? Где полёт мысли технической и творческой? ;) После Вашего первого появления в этой теме (www.stroimdom.com.ua/forum/showpost.php?p=489203&postcount=5) и настойчивого (www.stroimdom.com.ua/forum/showpost.php?p=489317&postcount=7) пожелания увидеть Эскизный проект, несмотря на то, что еще не определена даже идея будущего дома, я попыталась нарисовать так, как себе представляю свой дом, чтобы дождаться "поправок и откликов "бывалых", но кроме "пока сыровато, дорабатывайте" (www.stroimdom.com.ua/forum/showpost.php?p=489359&postcount=11) ничего не получила. Вы это называете конкретикой? На мой вполне конкретный вопрос о функционале и оптимальных размерах спальни, Вы вполне "конкретно" ответили, что мне нужно строить "бунгало" (www.stroimdom.com.ua/forum/showpost.php?p=491880&postcount=56). Эта тема мной была создана для того, чтобы вполне конкретно определиться с моими требованиями к моему дому. Понять какие из требований некритичны, какие просто невыполнимы, какие нужно изменить и т.п. И уже потом, основываясь на конкретных требованиях, рисовать (и строить) конкретный дом. Вас не устраивают темпы? Ну извините, я даже сапоги себе долго выбираю... Посилання на коментар Поділитися на інших сайтах More sharing options...
Ася Опубліковано: 19 березня 2010 Автор Поділитись Опубліковано: 19 березня 2010 ну дак к конкретике и плавно подбирается... вон, размер спальни утрясли... размер гардероба, косвенно (исходя из того что там не любят одеваться) - тоже... с потолками и размером дома тож вроде как определились... троя тут рослые - им куб подавай с гранью 8... правда великовато в выстоту 8 то... разве что еще цокль 1.5 метра заберет))))) Про высоту. Здесь читала, что высота потолков должна быть 2,5 - 3 м. Прикинула, что нам прийдется брать по 3. 2 этажа - 6. + перекрытия + чердак Неужели будет меньше 8? Я ведь не строитель. Я только учусь... Посилання на коментар Поділитися на інших сайтах More sharing options...
Ася Опубліковано: 19 березня 2010 Автор Поділитись Опубліковано: 19 березня 2010 Позвольте п.2 поконкретнее. As for me. Помещение априори имеет функциональное назначение. А вот взаимное размещение помещений с целью удовлетворения функциональных задач жильцов, возможно. п.0. Постановка задачи. ... п.0 - в самую точку! Вот мы еще на этом этапе топчемся. Посилання на коментар Поділитися на інших сайтах More sharing options...
ДОКС Опубліковано: 19 березня 2010 Поділитись Опубліковано: 19 березня 2010 вот и конкретика началась... Совет - начните с теории: - www.booksgid.com/technology/9578-arkhitekturnoe-proektirovanie-zhilykh.html - tmidal-project.ru/price/project/ - all-ebooks.com/2010/01/11/87513-osnovy-arkhitekturnogo.html - ну, и т.д. Посилання на коментар Поділитися на інших сайтах More sharing options...
ДОКС Опубліковано: 19 березня 2010 Поділитись Опубліковано: 19 березня 2010 Позвольте п.2 поконкретнее. As for me. Помещение априори имеет функциональное назначение. А вот взаимное размещение помещений с целью удовлетворения функциональных задач жильцов, возможно. п.0. Постановка задачи. ... С постановкой ЗАДАЧИ согласен на "стопитсотсотмульёнов":) Но, это как бы в названии форума и учтено (www.stroimdom.com.ua), поэтому и не заострял внимание в нашей дискуссии. ;) Посилання на коментар Поділитися на інших сайтах More sharing options...
Ася Опубліковано: 19 березня 2010 Автор Поділитись Опубліковано: 19 березня 2010 вот и конкретика началась... Совет - начните с теории: - www.booksgid.com/technology/9578-arkhitekturnoe-proektirovanie-zhilykh.html - tmidal-project.ru/price/project/ - all-ebooks.com/2010/01/11/87513-osnovy-arkhitekturnogo.html - ну, и т.д. Спасибо. Люблю советы. Особенно бесплатные ;) Только мне еще рановато углубляться в архитектурные тонкости. До этого этапа есть еще, как минимум, один (по Вашей классификации), или два (с учетом п.0, который, как известно, половина решения задачи). P.S. А, может быть, я просто закажу проект, и все тонкости мне (за такие-то деньги!) объяснит архитектор Посилання на коментар Поділитися на інших сайтах More sharing options...
Ася Опубліковано: 19 березня 2010 Автор Поділитись Опубліковано: 19 березня 2010 До проекта мы еще не дошли. Семья (члены семьи) владеют земельным (-ми) участками ? Если "да", укажите его целевое назначение. Мы еще и до владения земельными участками не дошли. Мы сейчас на этапе определения требований к участку и дому. Вот попыталась определить свои требования к участку (в общем) и к спальной комнате. Жду критику. Посилання на коментар Поділитися на інших сайтах More sharing options...
Ася Опубліковано: 19 березня 2010 Автор Поділитись Опубліковано: 19 березня 2010 Давайте определимся с Вашим выбором : 1. Смена постоянного места проживания Вариант1 (меняем квартиру на частный дом). 2. Смена постоянного места проживания Вариант2 (оставляем квартиру как место постоянного проживания + частный дом). 3. Создание места временного проживания Вариант3 (оставляем квартиру + частный дом как место постоянного проживания). Вариант: Родители перебираются в частный дом, ребенок остается в квартире. Но у ребенка (с семьей, когда она будет) остается возможность поселиться в доме временно или постоянно, совместно с родителями. Участок предполагается искать в пределах города (я выше описывала примерные требования к идеальному участку) Посилання на коментар Поділитися на інших сайтах More sharing options...
Ася Опубліковано: 20 березня 2010 Автор Поділитись Опубліковано: 20 березня 2010 Некоторые из школьных знаний вполне применимы для решения реальных жизненных задач. Как например: "Этапы подготовки и решения задач" - школьный курс основ информатики "...этапы связаны друг с другом. Например, анализ результатов может показать необходимость внесения изменений в программу; алгоритм или даже в постановку задачи. Для уменьшения числа подобных изменений необходимо на каждом этапе по возможности учитывать требования, предъявляемые последующими этапами.* В некоторых случаях связь между различными этапами, например, между постановкой задачи и выбором метода решения, между составлением алгоритма и программированием, может быть настолько тесной, что разделение их становится затруднительным. Постановка задачи. На данном этапе формулируется цель решения задачи и подробно описывается ее содержание. Анализируются характер и сущность всех величин, используемых в задаче, и определяются условия, при которых она решается. Корректность постановки задачи является важным моментом, так как от нее в значительной степени зависят другие этапы. Математическое описание задачи. Настоящий этап характеризуется математической формализацией задачи, при которой существующие соотношения между величинами, определяющими результат, выражаются посредством математических формул. Так формируется математическая модель явления с определенной точностью, допущениями и ограничениями. При этом в зависимости от специфики решаемой задачи могут быть использованы различные разделы математики и других дисциплин. Математическая модель должна удовлетворять по крайней мере двум требованиям: реалистичности и реализуемости. Под реалистичностью понимается правильное отражение моделью наиболее существенных черт исследуемого явления. Реализуемость достигается разумной абстракцией, отвлечением от второстепенных деталей, чтобы свести задачу к проблеме с известным решением. Условием реализуемости является возможность практического выполнения необходимых вычислений за отведенное время при доступных затратах требуемых ресурсов. Выбор и обоснование метода решения..." Взято здесь * выделено мной Кто хочет больше - поиск по ключу "этапы решения задач" вам в помощь... P.S. Мне так кажется, что этап "Постановка задачи" в рамках задачи строительства конкретного жилья для конкретной семьи еще не пройден, так что, извините, но вернусь к нему... Посилання на коментар Поділитися на інших сайтах More sharing options...
Darkdwarf Опубліковано: 20 березня 2010 Поділитись Опубліковано: 20 березня 2010 ну вот, наприходили тут, набросились на даму!! Редиски)))))))))))))))))))))!!! Вы с такими совета весь настрой ей отобъете... А можно посмотреть, то что Вы нарисовали??? Вы там выше писали, что пытались рисовать - можно глянуть??? Посилання на коментар Поділитися на інших сайтах More sharing options...
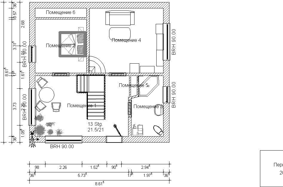
Ася Опубліковано: 20 березня 2010 Автор Поділитись Опубліковано: 20 березня 2010 (змінено) А можно посмотреть, то что Вы нарисовали??? Вы там выше писали, что пытались рисовать - можно глянуть??? Пыталась рисовать в Excel. Есть на первой странице. Сегодня попыталась разобраться с Арконом. С расстановкой мебели (по совету Надежды). Вот что получилось. P.S. У меня небольшой выбор мебели, поэтому просто схематично набросала из того, что есть. P.P.S. Второй этаж - пока только наброски. Змінено 20 березня 2010 користувачем Ася добавлен 2 этаж Посилання на коментар Поділитися на інших сайтах More sharing options...
Рекомендовані повідомлення
Створіть акаунт або увійдіть у нього для коментування
Ви маєте бути користувачем, щоб залишити коментар
Створити акаунт
Зареєструйтеся для отримання акаунта. Це просто!
Зареєструвати акаунтУвійти
Вже зареєстровані? Увійдіть тут.
Увійти зараз