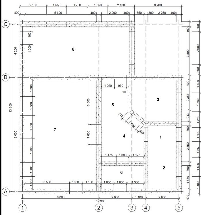
as1976as Опубліковано: 21 березня 2010 Поділитись Опубліковано: 21 березня 2010 Имеем такой вот проект в стадии черновика для окончания требуется утверждения. описание помещений 1-й этаж -94.3 м²+31.1 м² гараж=125.4 м² 1-2—тамбур с прихожей и гардеробной(11.25м) 3—кабинет(11м) 4—холл – (12,5м) 5—лестница –(5,25м) 6—санузел 1-й этаж(6.2м) 7 –гостиная, кухня-столовая(48.1м) 8 –гараж, мастерская(31.1м) 2-й этаж-91.68 м² 1—лестница+холл большой – (14,02м) 2—холл малый – (4,76м) 3-4—детские – (13,76м) 5—кладовая(5.02м) 6—санузел(4.3м) 7-ванная+мини оранжерея(14.5м) 8 –спальня – (21,56м) и теперь вопросы Уважаемые форумчане .Посоветуйте как быть.Смущает вопрос вентилирования дома.Склоняюсь к естественному и принудительному в виде вытяжки и вентиляторов в санузлах.На первом этаже в ванной комнате будут проходить вентканалы в стене с выходом на кровле. 1.Санузел1-го,2-го этажа и ванная 2-го этажа ставим на вентканал вентиляторы. 2.Кухня-1-канал вентиляции+ 1-канал вытяжка. 3.Двери в ванные и санузлы выполняем либо с подрезом не доходящие до пола,либо с вентиляционными решетками. 4.В гостиной будет камин с закрытой топкой,двери в гостиную из холла отсутствуют. Смущает вентиляция комнат, а в частности :кабинет 1-й этаж,все 3-спальни 2-го этажа. Вопросы: Хватит ли описанной выше системы для полноценного проветривания дома? Достаточно ли будет устраивать проветривание в доме в течении 10-15 мин,каждый день по 2 раза утром и вечером при помощи оконного проветривания ? Может быть есть решения позволяющие достичь при помощи естественной вентиляции комфортных условий для проживания,не прилагая особых затрат в виде рекуператоров? Заранее всем огромное спасибо за участие и возможно развенчивание опасений. Посилання на коментар Поділитися на інших сайтах More sharing options...
Каменщик777 Опубліковано: 27 квітня 2010 Поділитись Опубліковано: 27 квітня 2010 По идее должно хватить. Двух проветриваний в день - это как минимум. 1 Посилання на коментар Поділитися на інших сайтах More sharing options...
SON Опубліковано: 28 квітня 2010 Поділитись Опубліковано: 28 квітня 2010 Для начала здесь почитайте, на многие свои вопросы сами ответите. www.ventkanal.ru/vent.html www.izba.su/index/airexchange/ 1 Посилання на коментар Поділитися на інших сайтах More sharing options...
SaUl Опубліковано: 5 червня 2010 Поділитись Опубліковано: 5 червня 2010 Доброе утро, уважаемые коллеги! Не нашла на форуме... В общем, меня посетила новая для меня мысль: устроить зону для курения в большом холле посредством вытяжки. Т.е. не ограничивать пространство ни конструкциями, ни визуально, а просто вмонтировать в потолок или стену вытяжку. Может быть, есть у кого-то готовые идеи на этот счёт? Посилання на коментар Поділитися на інших сайтах More sharing options...
blacktigra Опубліковано: 7 червня 2010 Поділитись Опубліковано: 7 червня 2010 Доброе утро, уважаемые коллеги! Не нашла на форуме... В общем, меня посетила новая для меня мысль: устроить зону для курения в большом холле посредством вытяжки. Т.е. не ограничивать пространство ни конструкциями, ни визуально, а просто вмонтировать в потолок или стену вытяжку. Может быть, есть у кого-то готовые идеи на этот счёт? Готовая идея - это большая кратность воздухообмена, подпор в соседних помещениях. Если вы хотите курить в помещении с большим объемом и не чувствовать запаха дыма - без приточной вентиляции вам не обойтись. 1 Посилання на коментар Поділитися на інших сайтах More sharing options...
Leeps Опубліковано: 8 червня 2010 Поділитись Опубліковано: 8 червня 2010 Доброе утро, уважаемые коллеги! Не нашла на форуме... В общем, меня посетила новая для меня мысль: устроить зону для курения в большом холле посредством вытяжки. Т.е. не ограничивать пространство ни конструкциями, ни визуально, а просто вмонтировать в потолок или стену вытяжку. Может быть, есть у кого-то готовые идеи на этот счёт? Кратность вытяжки (притока) для курящего помещения 7 - 10. В зависимости от того как там курить будут Но учтите, если вы снимете даже 7 крат воздуха (вытяжкой) - компенсировать придётся всё равно. Иначе будут сквозняки и поступления воздуха например из су, кухни, улицы и т.п. Для того что б этого не было, надо делать приток, который подготовит (зимой нагреет, а летом охладит) воздух. Примерно так, если вкратце объяснять. 1 Посилання на коментар Поділитися на інших сайтах More sharing options...
bachus7 Опубліковано: 27 липня 2010 Поділитись Опубліковано: 27 липня 2010 дом в 2-х этажный , площадь 200м2(+-) , предлагают вот такую приточку: Ваши коменты пожалуйста , как по деньгам , так и по оборудованию. Спасибо Посилання на коментар Поділитися на інших сайтах More sharing options...
Leeps Опубліковано: 28 липня 2010 Поділитись Опубліковано: 28 липня 2010 дом в 2-х этажный , площадь 200м2(+-) , предлагают вот такую приточку: Ваши коменты пожалуйста , как по деньгам , так и по оборудованию. Спасибо Гоните этих монтажников. И вот по чему: В предложении указана наборка, т.е. наборная установка. Отдельно вентилятор, отдельно нагреватель и т.п. Но это не страшно, страшно, что всё прописано одной строкой без марок и производителей. Другими словами, нельзя проверить диаграммы вентилятора, мощность калорифера (от скольки и до скольки нагреваем). Для справки, по Киеву расчётная температура зимой -22. Шум от приточки - тоже остаётся не ясным. Далее, судя по всему раздачу из приточки хотят сделать анемостатами, это тоже не есть гут, (разве что, Вам понравились они и Вы утвердили их как воздухораспределяющее устройство). По гибкому воздуховоду тоже ничего не указанно, утеплённый он или нет. Разница в цене скачет в разы и соответственно итоговый результат. Не утеплённые воздуховоды используются как правило только для вытяжных систем. Обратный клапан в приточке не используется, в системе с водяным калорифером обязательно должен быть ВОЗДУШНЫЙ КЛАПАН С СЕРВОПРИВОДОМ С ВОЗВРАТНОЙ ПРУЖИНОЙ. Не расписанны ф-ции автоматики и что в неё входит. К примеру, в корпус можно поставить контактор и назвать это автоматикой, а можно установить всё что необходимо и это тоже будет автоматикой, а цена в двух случаях будет одинаковой. В Вашем случае необходима автоматика для приточной установки с водяным калорифером. Тип контроллера который используется - не указан, кол-во и тип датчиков - отсутствует, узел регулирования и рамка обвязки водяного калорифера тоже нигде не указывается. Тип регулирования мощности калорифера - отсутствует. Датчики защиты водяного калорифера тоже не указаны. Отсутствует даже намёк на фильтра (тип фильтра, класс фильтрации), т.е. воздух с улицы сразу летит на калорифер, получается... Забьётся он очень - очень быстро... Ну и очень плохо, что мы не видим схемы которую Вам предложили реализовать эти монтажники. Примерно так в первом приближении... Посилання на коментар Поділитися на інших сайтах More sharing options...
Maestro Kiev Опубліковано: 28 липня 2010 Поділитись Опубліковано: 28 липня 2010 [/url]Согласен полностью с Leeps, под такую калькуляцию Вы покупаете кота в мешке. Посилання на коментар Поділитися на інших сайтах More sharing options...
bachus7 Опубліковано: 28 липня 2010 Поділитись Опубліковано: 28 липня 2010 Гоните этих монтажников. Примерно такой ответ и ожидал. Спасибо . Не зря читаю форум , много и сам понимаю. И ответ от Maestro Kiev тоже был ожидаем. Тоже спасибо . Тем не менее вентиляция нужна . Предложения принимаются , сдесь или в ЛС. Посилання на коментар Поділитися на інших сайтах More sharing options...
as1976as Опубліковано: 29 липня 2010 Автор Поділитись Опубліковано: 29 липня 2010 Позвольте и я добавлю что буду не против обсуждения в моей ветке,подобных вопросов. Посилання на коментар Поділитися на інших сайтах More sharing options...
Maestro Kiev Опубліковано: 29 липня 2010 Поділитись Опубліковано: 29 липня 2010 Технически продвинутым форумчанам, дабы ускорить решение по вентиляции, советую с планировками на электронку отсылать таблицу с назначением помещений, их нумерацией по плану и наличию конкретного типа вытяжных потребителей, которые часто диктуют воздухообмен. Укажите возможное наличие предусмотренных вытяжных каналов в строительных конструкциях и их размер. Камин - с притоком наружного воздуха или без, топка закрыта или открыта, сколько кг/ч топлива будет сжигаться (сухого или прямо с леса), диаметр отверстий. Кухонный зонт - размер плиты, с притоком наружного воздуха или без. Котел - с притоком (атмосферная горелка) или обычный, количество и тип топлива, диаметр дымохода. Помещения где курят, технологические помещения (фотостудии, мастерские и т.д.) Сан-узлы - количество и тип приборов, возможность организации щели под дверью, тут учтите звуки - иногда, в процессе эксплуатации просят переделать 1 Посилання на коментар Поділитися на інших сайтах More sharing options...
as1976as Опубліковано: 29 липня 2010 Автор Поділитись Опубліковано: 29 липня 2010 Маестро позвольте вернуться к первоначальному вопросу.Что вы подскажете по вентиляции моего дома. Посилання на коментар Поділитися на інших сайтах More sharing options...
Maestro Kiev Опубліковано: 29 липня 2010 Поділитись Опубліковано: 29 липня 2010 (змінено) Склоняюсь к естественному и принудительному в виде вытяжки и вентиляторов в санузлах. Без притока не будет вытяжки. Множество историй могу рассказать, когда вытяжка не работала или плохо справлялась пока не открывали окно, тоже добавят каминщики и печники. Достаточно ли будет устраивать проветривание в доме в течении 10-15 мин,каждый день по 2 раза утром и вечером при помощи оконного проветривания ?По нашему СНиПу ОВ оконное проветривание весьма хороший "съезд" решить вопрос вентиляции жилых помещений, при этом вписаться в саннормы, но будете ли Вы это реально делать? Являясь инженером я считаю, что система обязана работать круглогодично, при минимальном вмешательстве непрофессионального пользователя, с учетом наиболее неблагоприятных условиях, которые описаны в СНиПе, т.е. для Киева -22С наружной. Эта температура взята с учетом 8% понижения в целях экономии энергоресурсов. И если Вы осилите прочесть ветку о воздушном отоплении, которая в 2009г. перешла в спор о наружной температуре, точнее о несоответствии расчетной по СНиПу -22С, то зима 2009-10 оставила эти разговоры в прошлом. Собственно здесь -22 расчетной или -15, как говорили некоторые, это всего-то увеличение мощности калорифера, конечно его стоимости, но несущественно на фоне всей системы. Например, в случае с водяным калорифером, стоимость автоматики и защиты калорифера от замерзания, дороже в разы самого калорифера и будет калорифер на 5 или 30кВт без разницы по стоимости. Выходит, что выполнить приток на -15, что на -22, то по капзатратам несущественно, т.к. вся остальная вентиляция останется прежней. Кто это понимает, ставят калориферы и на +35С подачи воздуха при -22 наружной, как частичное резервирование центральной системы отопления при ее сервисе или ремонте (отчасти воздушное отопление с вентиляцией). Проветривание - Вы будете его выполнять каждые часа 4-5?, а ведь еще необходимо обождать пока помещение прогреется системой отопления, которая на это не рассчитана (спасает положение инерционность строительных конструкций). Например 1000м3/ч для коттеджа это часто компенсация работы 70% установленных пользователем вытяжных потребителей = 14кВт/ч при -22/+20С... Не ставьте столько вытяжных потребителей, откажитесь от каминов, сократите сан-узлы, откажитесь от обычных котлов без атмосферных горелок, выполните вытяжные приборы с притоком наружного воздуха прямо в них - зачем греть наружный воздух и выкидывать его сразу в трубу? Может быть есть решения позволяющие достичь при помощи естественной вентиляции комфортных условий для проживания,не прилагая особых затрат в виде рекуператоров?При бюджетных система вентиляции "перетоком", но рабочих, не считаю перекрестные пластинчатые рекуператоры в жилом строительстве панацеей. Иногда это технически не полноценные решения, в комплексе всей системы вентиляции с опасностью обратной тяги, обмерзанию пластин рекуператора, отвод конденсата, необходимость байпасной линии и калорифера при его работе на нагрев в 100% мощности. Сами противоточные рекуператоры для потребителя, чаще всего приукрашенная информация завышенного КПД. КПД часто указано при наивыгоднейших условиях работы. Например, КПД указано при 100% влажности вытяжного воздуха (+15-25%), замеры КПД проводились в помещении с температурой под +100С, теплопередача через сам корпус (+10-35%), низкими скоростями потоков (10-60%), отсутствию конденсата на пластинах, потерями энергии на преодоление сопротивления рекуператора и т.д. Посмотрите сколько Вы всего настроили, сколько планируете - от котла, кухонного зонта, камина не "закинуть" прямым способом вытяжной воздух в рекуператор, а санузлы по нашим норма запрещено объединять с другими вытяжными системами, что некоторые производители указывают красочными картинками в каталогах. Дак что тогда пойдет по вытяжной линии в рекуператор при бюджетной системе вентиляции путем перетоков? При том, что для работы рекуператора "воздух-воздух"необходимо хотя бы соответствие притока и вытяжки близкой 1:1, а лучше преобладание вытяжки. Конечно, если Вы себе желаете выполнить приток и вытяжку для каждого помещения индивидуально (возрастет расход воздуха и возможность использовать "чистую" вытяжку), тогда еще можно рассматривать рекуператоры и то, не перекрестные. Змінено 29 липня 2010 користувачем Maestro Kiev 1 Посилання на коментар Поділитися на інших сайтах More sharing options...
as1976as Опубліковано: 30 липня 2010 Автор Поділитись Опубліковано: 30 липня 2010 Спасибо большое за подробный ответ .Я не имел ввиду что рекуператоры это панацея именно для моего случая. Котел турбированый с выбросом сразу через стену на улицу. Но все таки подскажите что правильно делать с вентиляцией в моем доме? Насчет притока воздуха как правильно его организовать в моем конкретном случае? Если можно напишите простым русским языком понятным для простого обывателя, для чайника. Посилання на коментар Поділитися на інших сайтах More sharing options...
Рекомендовані повідомлення
Створіть акаунт або увійдіть у нього для коментування
Ви маєте бути користувачем, щоб залишити коментар
Створити акаунт
Зареєструйтеся для отримання акаунта. Це просто!
Зареєструвати акаунтУвійти
Вже зареєстровані? Увійдіть тут.
Увійти зараз