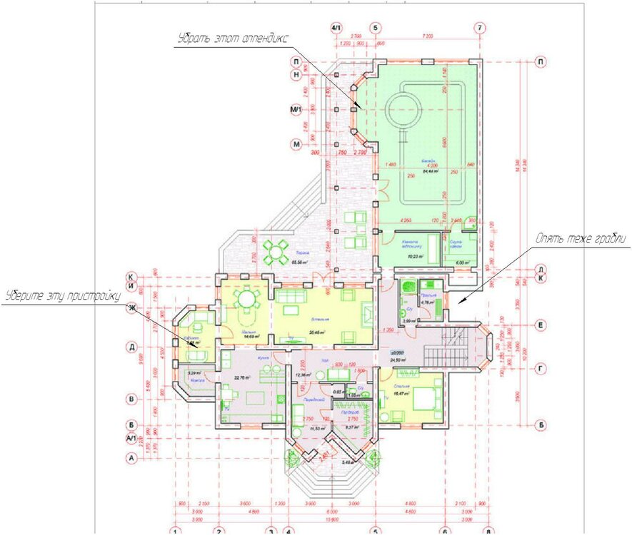
Марэлька Опубліковано: 29 травня 2010 Поділитись Опубліковано: 29 травня 2010 (змінено) Посмотрите пожалуйста результат наших усовершенствований!генплан.pdf Змінено 29 травня 2010 користувачем Марэлька Посилання на коментар Поділитися на інших сайтах More sharing options...
Hover Опубліковано: 29 травня 2010 Поділитись Опубліковано: 29 травня 2010 Да не на немного стало лучше. Посилання на коментар Поділитися на інших сайтах More sharing options...
ДОКС Опубліковано: 29 травня 2010 Поділитись Опубліковано: 29 травня 2010 ...хм... Проект, если его воплощать в жизнь, - дорогой. Это - "раз". Опять эркеры и куча мелких деталей и стен. Это - "два". Нравится угловое размещение. Это -"три". Для максимального восприятия не хватает понятия "участка". Это - "всё". Посилання на коментар Поділитися на інших сайтах More sharing options...
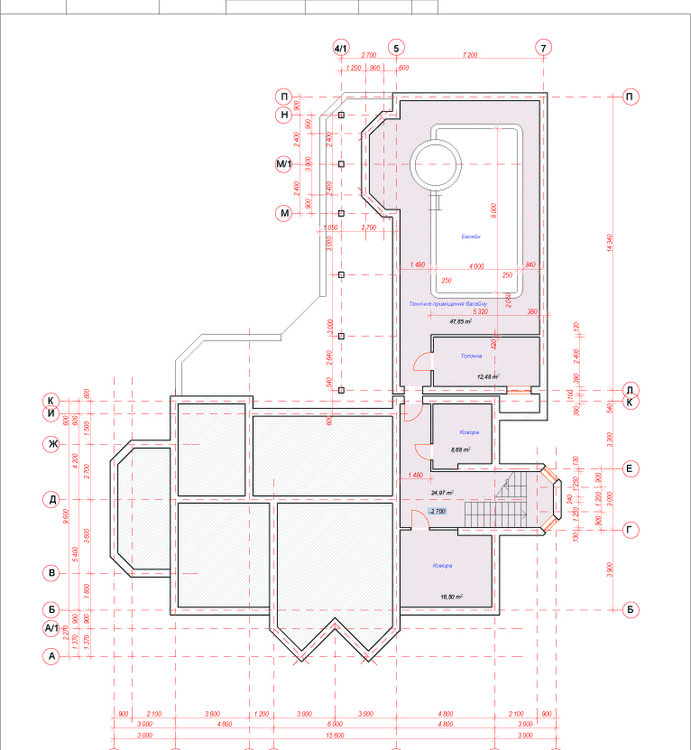
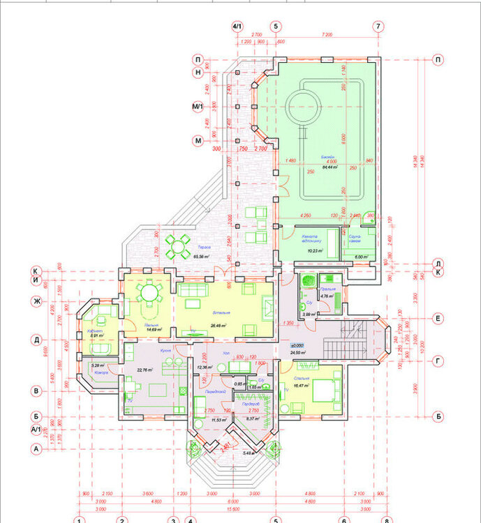
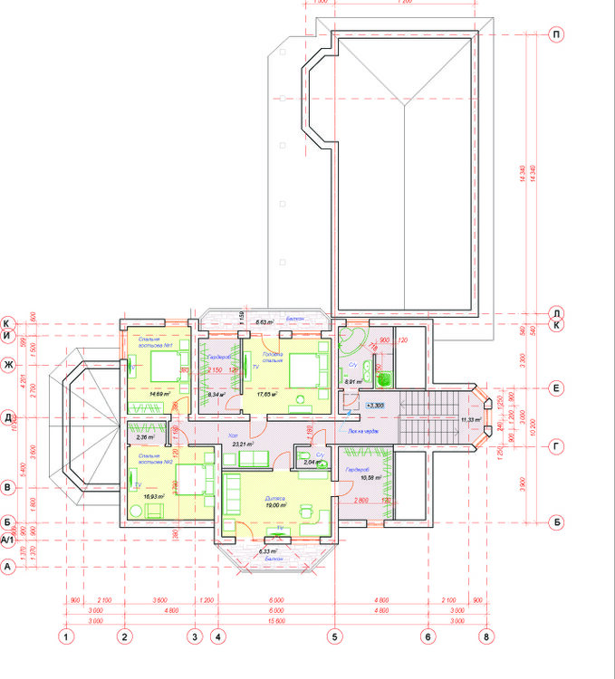
Ігор Ковалик Опубліковано: 29 травня 2010 Поділитись Опубліковано: 29 травня 2010 Планування розроблено досить детально. На першому поверсі все виглядає розумно і красиво. Тільки не розумію чому деформаційний шов в осях К,Л в цоколі і на першому поверсі не пройшов наскрізь будинку. На другому поверсі дуже не подобається що об'єм сходової клітки візуально розділений простінком несучої стіни. Посилання на коментар Поділитися на інших сайтах More sharing options...
Марэлька Опубліковано: 29 травня 2010 Автор Поділитись Опубліковано: 29 травня 2010 но как жаль, что я не понимаю о чем Вы говорите....по цоколю и первому этажу замечания это что то конструктивное? Посилання на коментар Поділитися на інших сайтах More sharing options...
архітектор Опубліковано: 29 травня 2010 Поділитись Опубліковано: 29 травня 2010 Посмотрите пожалуйста результат наших усовершенствований! Вход странный, зачем такой угол? И тамбур и вход выглядят нелепо. Даже, если там будет деформационный шов, то не нужно две стены строить, можно это сделать только по фундаменту, если его правильно рассчитать, после геологии. И вообще этот бассейн по стоимости, как остальная часть дома получится. Если есть такой бассейн, то дожен быть немалый доход, покрывающий его обслуживание, и самое главное - строительство. У меня заказчики отказались от бассейна (похожего) только когда я сделал все необходимые просчеты: чаша, фильтры, скимер, донные сливы, лестница, нагрев воды до 28 градусов, нагрев пола, (в помещении бассейна должно быть теплее, чем темп. воды - 29-30 градусов, это замедляет испарение воды), плюс осушитель воздуха, плюс моноблочная вентиляция с подогревом входящего воздуха. И это только минимальный набор. Бассейн, это влажное помещение со специальным режимом эксплуатации и обслуживания. Это не комната и даже не ванная. Нужно реально смотреть на вещи - либо качественный проект, качественный дом, либо что-то "такое" и непонятного качества бассейн. Это выльется либо в неожиданность потом, либо в долгострой. Еще один мой заказчик подсчитал, что он сможет 10 000 раз посетить бассейн общественный, при гостиннице, спа-комплексе или где-то еще, где за ним есть уход и профессиональное содержание, чем построить один свой. А строить он хотел качественно, чтобы потом всю оставшуюся жизнь не латать дыры, устранять течь, грибок, деформации и прочие "прелести". Как по мне - лучше спроектировать качественно, продумать и просчитать все, и строить качественно, но в меньшем объеме. Ровно на столько, на сколько позволяет бюджет. Посилання на коментар Поділитися на інших сайтах More sharing options...
Марэлька Опубліковано: 29 травня 2010 Автор Поділитись Опубліковано: 29 травня 2010 Но как мне простому обывателю-потребителю определить - качественный проект или нет? Глядя на наш я вижу, что все что нам хотелось бы иметь в доме и в каком расположении, все есть.А как мне знать и определить правильные ли были мои желания? Посилання на коментар Поділитися на інших сайтах More sharing options...
Hover Опубліковано: 29 травня 2010 Поділитись Опубліковано: 29 травня 2010 делайте модель тогда все станет видать где прощеты где недоделки. Посилання на коментар Поділитися на інших сайтах More sharing options...
tort Опубліковано: 29 травня 2010 Поділитись Опубліковано: 29 травня 2010 Планування розроблено досить детально. На першому поверсі все виглядає розумно і красиво. Тільки не розумію чому деформаційний шов в осях К,Л в цоколі і на першому поверсі не пройшов наскрізь будинку. На другому поверсі дуже не подобається що об'єм сходової клітки візуально розділений простінком несучої стіни. То мабуть ви сплутали "КЛ" на кресленні праворуч з "ИК" ліворуч, ці пари не соосні між собою, тому і не наскрізь. Посилання на коментар Поділитися на інших сайтах More sharing options...
вторик Опубліковано: 31 травня 2010 Поділитись Опубліковано: 31 травня 2010 (змінено) Это Ужас. бассейн совершенно от другого дома, имею ввиду размер чаши. зона отдыха, темболее душ не отработаны. вообще вся сауна как "здрасти". Санузлы на втором и этот бассейн, ну как майбах на росаве R13. Гостинная: камин есть каминной зоны с необходимыми атрибутами нет, ТВуголку здесь не место, тем более ущербный он получился. Мой вам совет: откажитесь от бассейна в пользу летнего, возможно крытого. Или увеличте дом минимум на 75% и подумайте о прислуге. Змінено 31 травня 2010 користувачем вторик Посилання на коментар Поділитися на інших сайтах More sharing options...
архітектор Опубліковано: 31 травня 2010 Поділитись Опубліковано: 31 травня 2010 Но как мне простому обывателю-потребителю определить - качественный проект или нет? Глядя на наш я вижу, что все что нам хотелось бы иметь в доме и в каком расположении, все есть.А как мне знать и определить правильные ли были мои желания? Да уж вопрос риторический, как простому потребителю определить качество проекта не перечитывая ДБНы, историю архитектуры, не сдавая выпускные экзамены в архитектурном ВУЗе, не работая лет 5-8 по специальности.... Наверно есть много путей, как это сделать. Каждый определяет сам в меру своих возможностей. Одни проверяют образование и лицензию у архитектора, другие едут смотреть построенные объекты, третьи качают или ищут чужие рабочие проекты, чтобы сравнить с тем продуктом, который выдает архитектор, четвертые пытаются понять из разговора - то, что предлагает проектировщик действительно рационально, качественно, современно. Как показывает практика, заказчиком быть не менее сложно, чем проектировщиком. Нужно уметь точно ставить задачу, формулировать мысли, четко договариваться, уметь расставлять акценты, отделять главное от второстепенного, разделять зоны ответственности и доверять специалистам. Правильные ли Ваши желания? А желания нельзя назвать правильными или неправильными. Просто, кроме желаний есть возможности и рациональный подход, умение находить компромисс ради главной цели. 2 Посилання на коментар Поділитися на інших сайтах More sharing options...
вторик Опубліковано: 31 травня 2010 Поділитись Опубліковано: 31 травня 2010 +100 мне вот кажется правда что первый дом комом. недаром наблюдаем такое скопление брошенных недостроев. часто застройщик незнает что строит, и как будет в этом обитать, и построив, а часто даже недостроив продает начатое и начинает с нуля, и по новому, или перестраивает, некоторые дома даже внуки завершают Посилання на коментар Поділитися на інших сайтах More sharing options...
архітектор Опубліковано: 31 травня 2010 Поділитись Опубліковано: 31 травня 2010 +100 мне вот кажется правда что первый дом комом. недаром наблюдаем такое скопление брошенных недостроев. часто застройщик незнает что строит, и как будет в этом обитать, и построив, а часто даже недостроив продает начатое и начинает с нуля, и по новому, или перестраивает, некоторые дома даже внуки завершают Кстати, хорошая тема!!!!!!!! Провести анализ недостроев, какое их процентное соотношение к реально готовым, качественным жилым домам? Может когда будет больше времени и возможности поездить по Киевской области с фотоаппаратом - сделаю такой анализ. Это ж целую тему можно открыть или блог написать. Посилання на коментар Поділитися на інших сайтах More sharing options...
Марэлька Опубліковано: 31 травня 2010 Автор Поділитись Опубліковано: 31 травня 2010 Будет особенно интересно взглянуть на фото Посилання на коментар Поділитися на інших сайтах More sharing options...
Рекомендовані повідомлення
Створіть акаунт або увійдіть у нього для коментування
Ви маєте бути користувачем, щоб залишити коментар
Створити акаунт
Зареєструйтеся для отримання акаунта. Це просто!
Зареєструвати акаунтУвійти
Вже зареєстровані? Увійдіть тут.
Увійти зараз