Igor_M Опубліковано: 31 травня 2010 Поділитись Опубліковано: 31 травня 2010 Взываю о помощи! Все читал, все смотрел... Когда делали проект дома, ЗАБЫЛ внимательно изучить лестничный проект... БЛИН... Хотя предыдущие проекты, которые я делал себе эскизы, ВСЕГДА плясал от лестницы, а тут... В-общем, есть такая шахта 3200 х 2900. Лестница идет вдоль стен вокруг колонны (800х300). Как ни крутил, а без забежных не получается. Разность уровней между этажами 3400... Ступеньки 290х170. Получается ровно 20 ступеней без передышки да еще и круговое движение вокруг колонны... Может у кого идеи будут какие - как разить на части с промежуточной площадкой? И чтоб забежных поменьше??? Выложенный тут вариант - это уже то, что я попытался оптимизировать - вначале вообще жах был... Собираю плодотворные идеи. Лучшая идея будет отмечена призом! Всем заранее спасибо! ЗЫ Открывать с помощью Программы просмотра изображений и факсов Посилання на коментар Поділитися на інших сайтах More sharing options...
Alexander Pryakha Опубліковано: 31 травня 2010 Поділитись Опубліковано: 31 травня 2010 Взываю о помощи! Игорь - от кого, а от вас как-то не ожидал, что вылезет такая проблема - с вашей то дотошностью. Лестница которую вы выложили - никуда не годится. 20 подъемов на 3400 мало, надо 22-23 подъема. И площадку очень желательно надо делать. Мне кажется что наверное прийдется что-то разбивать. Одному заказчику проектировал лесницу - походу разломали пол дома, но у него случай был тяжелейший. Посилання на коментар Поділитися на інших сайтах More sharing options...
Alexander Pryakha Опубліковано: 31 травня 2010 Поділитись Опубліковано: 31 травня 2010 Вот накидал на скорую руку вариантное решение. Верхний марш не показан. Только заметил -11 ступень пропустил, но думаю идея понятна Посилання на коментар Поділитися на інших сайтах More sharing options...
jonni_d Опубліковано: 31 травня 2010 Поділитись Опубліковано: 31 травня 2010 Вот накидал на скорую руку вариантное решение. Верхний марш не показан. Только заметил -11 ступень пропустил, но думаю идея понятна хм ... Вам то 20 мало ... а у вас вообще 17 .. как понимать ? Посилання на коментар Поділитися на інших сайтах More sharing options...
Александр. Киев Опубліковано: 31 травня 2010 Поділитись Опубліковано: 31 травня 2010 Не заливайте лестницу из сплошного бетона. Вам подойдет вариант открытой, легкой лестницы с отсутствующими подступенками. Ступеньки будут накрывать друг друга на пару-тройку сантиметров. Для спуска будет видимых 28см, а для подъема 30см...;) Посилання на коментар Поділитися на інших сайтах More sharing options...
Optimalist Опубліковано: 1 червня 2010 Поділитись Опубліковано: 1 червня 2010 Взываю о помощи! Ступеньки 290х170. Получается ровно 20 ступеней без передышки да еще и круговое движение вокруг колонны... Может у кого идеи будут какие - как разить на части с промежуточной площадкой? И чтоб забежных поменьше??? ] Боюсь, что если ничего не ломать, то ничего лучшего не придумаешь. Очень жесткие ограничения. Выбранный вариант самый компактный (винтовую лестницу, я так понимаю, не рассматриваем), и то все цифры на пределе, - как высота, так и ширина ступеньки, а число ступенек (без площадки) даже слишком велико. Посилання на коментар Поділитися на інших сайтах More sharing options...
Alexander Pryakha Опубліковано: 1 червня 2010 Поділитись Опубліковано: 1 червня 2010 (змінено) хм ... Вам то 20 мало ... а у вас вообще 17 .. как понимать ? Последний марш -не показан - если его простроить дальше -то війдем на 22 ступени. А вот ширина лестницы -900мм минус перила -это маловато... У меня в доме к примеру 1200мм. При ширине лестницы -900мм - дом несколько другого класса получается. Єто типа как колеса на авто - есть 14 а есть 17 радиус. Змінено 1 червня 2010 користувачем Alexander Pryakha Посилання на коментар Поділитися на інших сайтах More sharing options...
Igor_M Опубліковано: 1 червня 2010 Автор Поділитись Опубліковано: 1 червня 2010 Всем спасибо... Вот вариант в посте 3 вроде как проходящий... Я такой когда-то рисовал для другого проекта (еще более компактного)... НО... там ЧЕТЫРЕ раза меняется направление движения! Это перебор... То, что предложил Александр (пост 5) - как раз так я и рисовал... Мне в этом варианте нравится все, кроме того, что 20 ступеней подряд без передышки со временем будет тяжеловато преодолеть... У меня есть идея разбить на две части - снизу винтом 11 ступеней, потом площадка (хотя так назвать ее нельзя, поскольку это 1мх1м в углу, но хоть какая-то передышка)... а потом наверх 9 ступеней прямых... Позже сфоткаю выложу, но тут еще одна проблема - нужно еще спуститься в ПОДВАЛ... Там получается 18 ступеней, а начинается она на 1,9м от торцевой (нижней) стены... Посилання на коментар Поділитися на інших сайтах More sharing options...
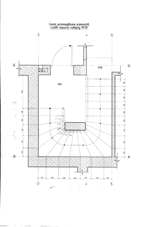
Igor_M Опубліковано: 2 червня 2010 Автор Поділитись Опубліковано: 2 червня 2010 Выкладываю фото проекта лестницы. Фото1 - с 1-го этажа на второй. Фото2 - из подвала на 1-й этаж. Это уже усовершенствованный вариант, в котором забежные ступени распределены на как можно большее расстояние, чтобы уменьшить их клиновидность. Получается в 1-м случае 20 подъемов без передышки - это явный "-". Опять же число ступеней четное, что тоже не очень гуд. Ну и забежные... Правда, в нормативных документах пишут, что количество ступеней в МАРШЕ не должно превышать 16... Но это в случае, когда мы идем по ПРЯМОЙ... Здесь все-таки есть перемена направления движения. То же по подвалу (только там 18 ступеней). Ширина лестничного марша: с 1-го на второй - 1050мм, из подвала на 1-й - 1000мм. Это без перил. Перила получается нужно ставить на расстоянии не менее 4см от столба (иначе рука не пролезет), плюс 1см на отделку столба. Сами перила шириной 6см (по минимуму). Таким образом получается, что полезная ширина марша (если считать по оси перил) становится 970мм и 920мм соответственно. Прошу высказаться по описанному... Посилання на коментар Поділитися на інших сайтах More sharing options...
Igor_M Опубліковано: 3 червня 2010 Автор Поділитись Опубліковано: 3 червня 2010 Да... Конструктивной критики и новых предложений что-то не видно... Может, по этим вот "корявым" вариантам появятся рассуждения? Это то, что я "накрутил"... по лестнице с 1-го этажа на 2-й. Все три - с промежуточной площадкой (для передышки). На 1-м фото диагональная линия на площадке - это НЕ ступенька, а пось симметрии... Что плохого? Имеет ли смысл что-то из предложенного? Посилання на коментар Поділитися на інших сайтах More sharing options...
Alexander Pryakha Опубліковано: 3 червня 2010 Поділитись Опубліковано: 3 червня 2010 (змінено) Да... Конструктивной критики и новых предложений что-то не видно... Имеет ли смысл что-то из предложенного? А что у вас за высота этажа 3400? Делают или 3300 или 3450 (22 или 23 ступени) -только так. 20 ступеней мало! Подумайте по поводу высот пирогов полов - от этого зависят проектные высотные отметки в финале. И не поленитесь промеряйте хорошенько линейные размеры - ширина, высота. Я бы себе делал вариант, что я и предложил. Ну и вход в санузел из фойе организовывайте, простенок там демонтируете, заведете метал для усиления. У вам тут Игорь уже не новый проект - а реконструкция. Лестницу делайте по наклонным косоурам -стальным швеллерам, с арм.сеткой. монолитную железобетонную. Конструкция кажого косоура должна быть задеталирована. Варианты без подступенков, а также стальные трубочки и подпорочки - смотрятся дешево, ненадежно. Змінено 3 червня 2010 користувачем Alexander Pryakha Посилання на коментар Поділитися на інших сайтах More sharing options...
Igor_M Опубліковано: 3 червня 2010 Автор Поділитись Опубліковано: 3 червня 2010 А что у вас за высота этажа 3400? Делают или 3300 или 3450 (22 или 23 ступени) -только так. 20 ступеней мало! Подумайте по поводу высот пирогов полов - от этого зависят проектные высотные отметки в финале. И не поленитесь промеряйте хорошенько линейные размеры - ширина, высота. Я бы себе делал вариант, что я и предложил. Ну и вход в санузел из фойе организовывайте, простенок там демонитруете, заведете метал для усиления. У вам тут Игорь уже не новый проект - а реконструкция. Александр, 3300 и 3450 - это если ступени по 15см высотой. Все проектируют 300х150. И делают это по одной простой причине - такой совковый стандарт и мы все по таким ступеням везде ходим... Такова практика жизни... Теория же говорит немного о другом - самая удобная ступень - 290х170. Я пришел к этом эмпирическим путем. В начале проектирования дома было заложено 300х150. Разность уровней 3300, 22 ступени... Потом при расчете кладки газобетона получилось, что распредпояс под панели должен был быть либо 2см, либо 22 см, либо 12см с перебивкой одного ряда газобетона на высоту 100мм (в стандарте - 200мм)... Принято было решение перепроектировать лестницу на размер 300х160 (хотя правильная пропорция 310х160, ну то такэ)... В итоге получаем разность уровней 3360, количество ступеней - 21... высота распредпояса под укладку пенелей - 80мм (по конструктивному расчету допустимой есть высота 72мм)... НО... в процессе стройки "набежало" еще 3см... в-основном за счет "подъема" отметки "0"... плюс еще на швах набежало. Т.е. это уже ФАКТ. Все линейные размеры перемеряли по три раза... высоты пирогов полов 14-16см... Поэтому немного "опустили" "0" и вышли на разность уровней 3400... Вот тут я и обнаружил (перевернул горы литературы, Косо взял за основу и перепроверял по другим источникам...) что мне самое оно 290х170. При этом я реально сэкономил по всей длине линии хода около 40см, что позволило более-менее "вписаться" в эту шахту... А вот вход в санузел из фойе как раз и был в первоначальном варианте архитектора, равно как и вход в котельную из бильярдной... Я почти две недели с супругой боролся и таки настоял на переносе этих дверей в шахту... Теперь признать свой "глюк" будет.......... Аргументы были такие: по 1-му этажу. Дверь с/у напротив двери в гостиную это просто никуда не годится. ставить там перегородку и создать узкий коридорчик? по подвалу. Котельная - источник возможных прорывов, может буду дрова-угли таскать, нужно будет обслуживать... в-общем, придумывал разную фигню для жены... Архитектору прямо сказал, что котел, насосы и все такое издают какой-никакой шум... и через дверь этот шум в больших количествах будет проникать в бильярдную... Основным же аргументом явилось то, что нужно было где-то расоложить шахту для прокладки коммуникаций (отопление, водоснабжение)... И другого более оптимального места окромя вот этой ниши справа от входа в котельную и с/у сложно было найти... Так что НАЗАД ДОРОГИ НЕТ... Посилання на коментар Поділитися на інших сайтах More sharing options...
Igor_M Опубліковано: 4 червня 2010 Автор Поділитись Опубліковано: 4 червня 2010 Если с верхним пролетом еще куда-то можно двинуться, то спуск в подвал вообще никак с площадкой не выходит... Нарисовал, правда, один вариант (в левом нижнем углу - площадка), но даже мне самому он не нравится... Проем до двери котельной чуть ли не 80см выходит. Насколько помню по нормативам, то дверь из котельной должна наружу открываться, а промежуток этот сдается ни в какие нормы не укладывается... Вот сижу и думаю - может пересчитать все на размеры ступеней 280х175? Я такие видет в готовых проектах... И тут на форуме кажись тоже кто-то именно такую и описывал... Откликнитесь - у кого какие размеры ступеней? У кого лестницы с забежными? Насколько вы испытываете неудобства? Поделись информацией своей и она еще не раз к тебе вернется... Посилання на коментар Поділитися на інших сайтах More sharing options...
Воздушная кукуруза Опубліковано: 4 червня 2010 Поділитись Опубліковано: 4 червня 2010 Может вот эти "стандарты" пригодятся... Ближе всего поз. 2.56 Хотя, с поворотом на 270 град. тоже.. Если "не до жиру, быть-бы..." И еще, как по мне, площадку нужно делать вдоль колонны. На площадке перила не нужны, а это 6 см. все-таки. Посилання на коментар Поділитися на інших сайтах More sharing options...
Igor_M Опубліковано: 4 червня 2010 Автор Поділитись Опубліковано: 4 червня 2010 Может вот эти "стандарты" пригодятся... Ближе всего поз. 2.56 Хотя, с поворотом на 270 град. тоже.. Если "не до жиру, быть-бы..." И еще, как по мне, площадку нужно делать вдоль колонны. На площадке перила не нужны, а это 6 см. все-таки. О, спасибо... По поводу площадки вдоль колонны - точно ведь можно без перил... А что скажете по варианту 3 в посте №10? Посилання на коментар Поділитися на інших сайтах More sharing options...
Воздушная кукуруза Опубліковано: 4 червня 2010 Поділитись Опубліковано: 4 червня 2010 О, спасибо... По поводу площадки вдоль колонны - точно ведь можно без перил... А что скажете по варианту 3 в посте №10? Увы, ничего, ибо не понимаю назначения помещений - общего плана... Т.е. - возможность удлинить марши в одну или другую сторону Опять-же: 3400 мм. это "откуда до куда"? Общая толщина перекрытия? Ну и:::: я стойкий "отрицала" забежных ступеней. Бывает такое ИМХО P.S. вар.3 в п. 10 - это 270 град. Можно и покрасивше. Посилання на коментар Поділитися на інших сайтах More sharing options...
Рекомендовані повідомлення
Створіть акаунт або увійдіть у нього для коментування
Ви маєте бути користувачем, щоб залишити коментар
Створити акаунт
Зареєструйтеся для отримання акаунта. Це просто!
Зареєструвати акаунтУвійти
Вже зареєстровані? Увійдіть тут.
Увійти зараз