Korni Опубліковано: 26 листопада 2014 Поділитись Опубліковано: 26 листопада 2014 .... Заговор? Не сложилось.. Форумские спецы зажрались, дорогие и очередь. 3 Посилання на коментар Поділитися на інших сайтах More sharing options...
B.S.V. Опубліковано: 26 листопада 2014 Поділитись Опубліковано: 26 листопада 2014 Из соседней темыссылка устарела) Зато не форумские, эти трубы называют ТЕСЕ Посилання на коментар Поділитися на інших сайтах More sharing options...
ОМОН Опубліковано: 26 листопада 2014 Поділитись Опубліковано: 26 листопада 2014 Из соседней темы:firepic.org/?v=3.2014-11-25_nrua2eairi2l.jpg Поржал.Хотя у меня не сбывшийся Кум.купил квартиру в комфорт таун.Сам летчик-гражданская авиация.Такого по воде накуралесил.Я ему епт позвони приеду в гости за два три дня все зделаем.Не гордость победила (его гордость победила его здравый смысл) В итоге металопластик на гайках под плиткой-и он это считает нормальным.Не всегда такие приколы рождают горные сантехники.Наш народ хрен пробьеш Посилання на коментар Поділитися на інших сайтах More sharing options...
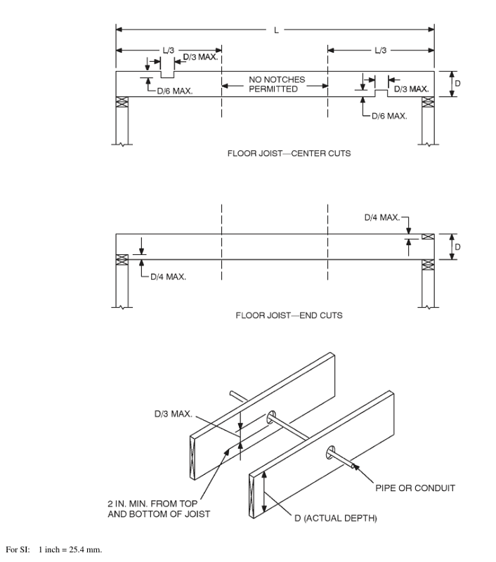
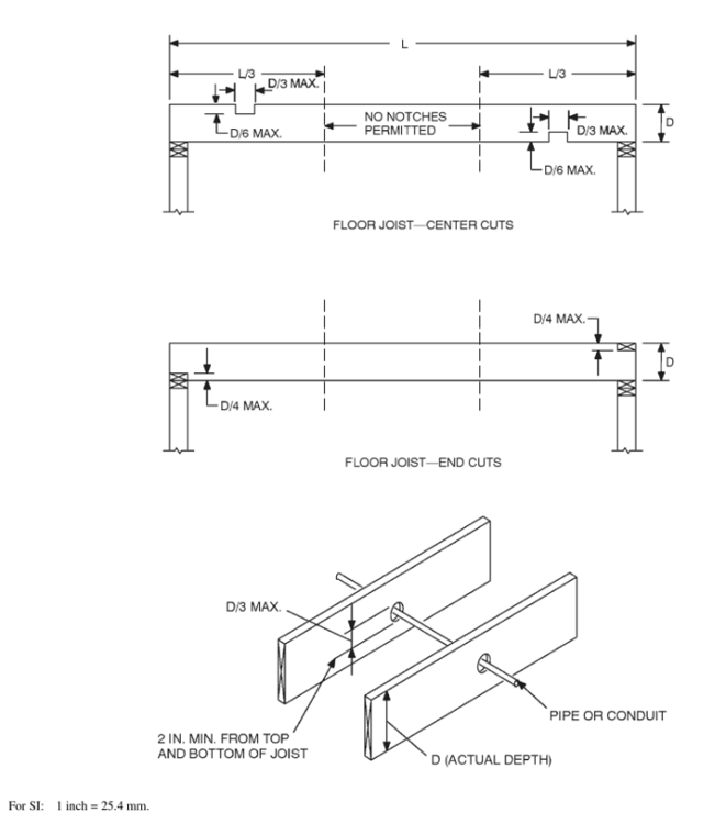
sov1178 Опубліковано: 27 листопада 2014 Поділитись Опубліковано: 27 листопада 2014 а подрезали балки... Разве так можно? Можно, если осторожно: 3 Посилання на коментар Поділитися на інших сайтах More sharing options...
naupv Опубліковано: 27 листопада 2014 Поділитись Опубліковано: 27 листопада 2014 Сам летчик-гражданская авиация. гордость победила Такого по воде накуралесил Потому что в авиационных двигателях все трубочки на гаечках и спрятаны под обшивкой:D 2 Посилання на коментар Поділитися на інших сайтах More sharing options...
dogkiller Опубліковано: 27 листопада 2014 Поділитись Опубліковано: 27 листопада 2014 Потому что в авиационных двигателях все трубочки на гаечках и спрятаны под обшивкой:D тока разбирают его через каждые Н...цать часов работы, об этом он забыл.... 1 Посилання на коментар Поділитися на інших сайтах More sharing options...
belosnezka Опубліковано: 27 листопада 2014 Поділитись Опубліковано: 27 листопада 2014 форумчане всегда подскажут, Белоснежка по моему и в сходках участвует. Один хер как не Белая Брыся электрика себе сделает так Белоснежка отопление Заговор? Чтобы ответить на все мои вопросы - мне лично нужно приставить консультанта, и не одного. Беда в том, что я на форуме уже спрашиваю после, как только попаду в очередную "халепу". В сходках не участвовала, стесняюсь). Добавлено через 38 минут Форумские спецы зажрались, дорогие и очередь. Я лично к форумским сантехникам никогда и не обращалась. Почему - даже не знаю. Наверное, люблю приключения с плохим концом. Добавлено через 4 минуты Правда одним свои наблюдением могу Вас упокоить: мужиков в Вашем положении больше, чем блондинок. Утешили. Иногда мне кажется, что причина всех моих строительных напастей то, что я не мужик, а слабохарактерная дама. Я не умею кричать, командовать и т.д. Посилання на коментар Поділитися на інших сайтах More sharing options...
Toleg Опубліковано: 27 листопада 2014 Поділитись Опубліковано: 27 листопада 2014 Чтобы ответить на все мои вопросы - мне лично нужно приставить консультанта, и не одного. Беда в том, что я на форуме уже спрашиваю после, как только попаду в очередную "халепу". В сходках не участвовала, стесняюсь). Добавлено через 38 минут Я лично к форумским сантехникам никогда и не обращалась. Почему - даже не знаю. Наверное, люблю приключения с плохим концом. Попробуйте. Я обратился - не пожалел. Точнее пожалел, что еще раньше не обратился. 1 Посилання на коментар Поділитися на інших сайтах More sharing options...
B.A.S. Опубліковано: 27 листопада 2014 Поділитись Опубліковано: 27 листопада 2014 belosnezka, у Вас не все так печально(стяжки нет). Прийдеться снять пол над трубами,вырезать все до стояков и переделать(если хотите чтоб было качественно),можно использовать старые трубы(частично). Можете на свой страх и риск впаивать тройники, но учтите, в таком варианте шанс косяка очень велик(особенно если паяльник один) Посилання на коментар Поділитися на інших сайтах More sharing options...
P U M A Опубліковано: 27 листопада 2014 Поділитись Опубліковано: 27 листопада 2014 Из соседней темыссылка устарела) Зато не форумские, эти трубы называют ТЕСЕ:lol:-Это горные трубы ТЕСЕ:lol::lol:belosnezka,всегда все можно исправить,переделать.Главное не опускайте руки. 1 Посилання на коментар Поділитися на інших сайтах More sharing options...
B.S.V. Опубліковано: 27 листопада 2014 Поділитись Опубліковано: 27 листопада 2014 Вірю:" Все буде добре" Все твердотопливные котельни закончены, новые объекты- в работе, прием очереди на установку сантехники заканчивается через 3 дня. Начал подготовку к новому сезону. Посилання на коментар Поділитися на інших сайтах More sharing options...
belosnezka Опубліковано: 27 листопада 2014 Поділитись Опубліковано: 27 листопада 2014 Прийдеться снять пол над трубами,вырезать все до стояков и переделать(если хотите чтоб было качественно),можно использовать старые трубы(частично). Можете на свой страх и риск впаивать тройники, но учтите, в таком варианте шанс косяка очень велик(особенно если паяльник один) __________________ Не все понятно. Зачем снимать пол над трубами, где не будет радиаторов? Там, где они будут, оставлено по 1-2 не прибитой доске. Почему рискованно впаивать тройники в уже лежащие трубы? Посилання на коментар Поділитися на інших сайтах More sharing options...
B.A.S. Опубліковано: 27 листопада 2014 Поділитись Опубліковано: 27 листопада 2014 Не все понятно. Зачем снимать пол над трубами, где не будет радиаторов? По крайней мере до первого радиатора. Там, где они будут, оставлено по 1-2 не прибитой доске. По длине труб? Почему рискованно впаивать тройники в уже лежащие трубы? Чтоб нормально спаять стык,нужен ход трубы на ширину насадки паяльника(это около 6-8см). 1 Посилання на коментар Поділитися на інших сайтах More sharing options...
Toleg Опубліковано: 27 листопада 2014 Поділитись Опубліковано: 27 листопада 2014 По крайней мере до первого радиатора. По длине труб? Чтоб нормально спаять стык,нужен ход трубы на ширину насадки паяльника(это около 6-8см). Либо два паяльника. Посилання на коментар Поділитися на інших сайтах More sharing options...
B.A.S. Опубліковано: 27 листопада 2014 Поділитись Опубліковано: 27 листопада 2014 Либо два паяльника. И 2м свободной трубы. Обламался описывать процесс. Посилання на коментар Поділитися на інших сайтах More sharing options...
B.S.V. Опубліковано: 27 листопада 2014 Поділитись Опубліковано: 27 листопада 2014 Чтоб нормально спаять стык,нужен ход трубы на ширину насадки паяльника(это около 6-8см). + две руки+ возможность вытащить нагреваемые детали с паяльника. Итого 40-45 см. Пайка двумя паяльниками, имхо, решает проблему при одноразовых соединениях. При большом количестве-нежелательно. 1 Посилання на коментар Поділитися на інших сайтах More sharing options...
ОМОН Опубліковано: 27 листопада 2014 Поділитись Опубліковано: 27 листопада 2014 При большом количестве-нежелательно.Просто два человека за просто так замахаютса Посилання на коментар Поділитися на інших сайтах More sharing options...
Сергей_84 Опубліковано: 28 листопада 2014 Поділитись Опубліковано: 28 листопада 2014 Инструмента особо не было. Втихаря пользовались моим дрелем-шуроповертом (аматорским), который лежал в одной из комнат. Я заметила позже, что очень оббит патрон... Они использовали его для выбивания дырок в ракушечнике... . Это самый верный признак того, что это обычные халтурщики , люди временные.. Это все равно что плиточник прийдет класть плитку без плиткореза... 1 Посилання на коментар Поділитися на інших сайтах More sharing options...
ОМОН Опубліковано: 28 листопада 2014 Поділитись Опубліковано: 28 листопада 2014 Музыка ветра для котельщиков.(ссылка устарела) (ссылка устарела) как фыото из гугл плюс вставить в форум Посилання на коментар Поділитися на інших сайтах More sharing options...
Сергей 31 Опубліковано: 1 грудня 2014 Автор Поділитись Опубліковано: 1 грудня 2014 Вот так выглядит ремкомплект для полипропилена. К зиме я теперь готов. Посилання на коментар Поділитися на інших сайтах More sharing options...
naupv Опубліковано: 1 грудня 2014 Поділитись Опубліковано: 1 грудня 2014 К зиме я теперь готов. Зима круглые тоненькие дырочки в ППР не делает. Лучше писать- к ремонту после гипсокартонщиков готов.:D 6 Посилання на коментар Поділитися на інших сайтах More sharing options...
Fuzik Опубліковано: 1 грудня 2014 Поділитись Опубліковано: 1 грудня 2014 Зима круглые тоненькие дырочки в ППР не делает. Лучше писать- к ремонту после гипсокартонщиков готов.:D И после установки плинтусов :D Посилання на коментар Поділитися на інших сайтах More sharing options...
red baron Опубліковано: 1 грудня 2014 Поділитись Опубліковано: 1 грудня 2014 Вот так выглядит ремкомплект для полипропилена. К зиме я теперь готов. если не военная тайна - сколько денег? Посилання на коментар Поділитися на інших сайтах More sharing options...
Сергей 31 Опубліковано: 1 грудня 2014 Автор Поділитись Опубліковано: 1 грудня 2014 если не военная тайна - сколько денег? Штрашени гроши!!!! То что на фото, насадка со стержнями 380 грн. И пакет запасных стержней 100 грн. Посилання на коментар Поділитися на інших сайтах More sharing options...
B.S.V. Опубліковано: 1 грудня 2014 Поділитись Опубліковано: 1 грудня 2014 Лучше писать- к ремонту после гипсокартонщиков готов.:D Завтра еду :D. И фото с рулеткой не помогают 4 Посилання на коментар Поділитися на інших сайтах More sharing options...
Рекомендовані повідомлення
Створіть акаунт або увійдіть у нього для коментування
Ви маєте бути користувачем, щоб залишити коментар
Створити акаунт
Зареєструйтеся для отримання акаунта. Це просто!
Зареєструвати акаунтУвійти
Вже зареєстровані? Увійдіть тут.
Увійти зараз