lavilong Опубліковано: 18 жовтня 2010 Автор Поділитись Опубліковано: 18 жовтня 2010 На одной из предыдущих фотографий был цоколь с пенопластом, а тут уже оштукатурен - как утепляли? Вот фото цоколя: утеплял пенопластом 10-кой 35 плотности, на клей и дюбеля. Далее сетка, армировка СТ 85 и гидроизоляция. Серое - это жидкая гидроизоляция Полимин. Далее будет обложено песчаником. 1 Посилання на коментар Поділитися на інших сайтах More sharing options...
lavilong Опубліковано: 18 жовтня 2010 Автор Поділитись Опубліковано: 18 жовтня 2010 А вот так выглядят фундаментные блоки 1 Посилання на коментар Поділитися на інших сайтах More sharing options...
lavilong Опубліковано: 18 жовтня 2010 Автор Поділитись Опубліковано: 18 жовтня 2010 А вот мой первый урожай (не знаю каким ветром занесло) И соседский огород, который в данный момент прикупаю к своему участку.. и того будет 7 соток в общем. 1 Посилання на коментар Поділитися на інших сайтах More sharing options...
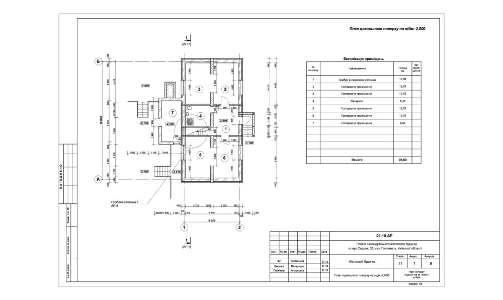
lavilong Опубліковано: 18 жовтня 2010 Автор Поділитись Опубліковано: 18 жовтня 2010 (змінено) Цоколь будет использоваться так - Дальняя половина - предбанник, с/у и 2 комнаты - хозпомещения, мастерская и резервная жилая комната.. незнаю.. мож пыточную из нее сделаю.. а вторая половина, ближе к фасаду - вот для этих наглых рыжих морд, для которых этот дом и строится, по большому счету. Змінено 18 жовтня 2010 користувачем lavilong 5 Посилання на коментар Поділитися на інших сайтах More sharing options...
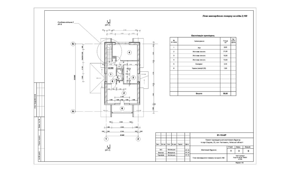
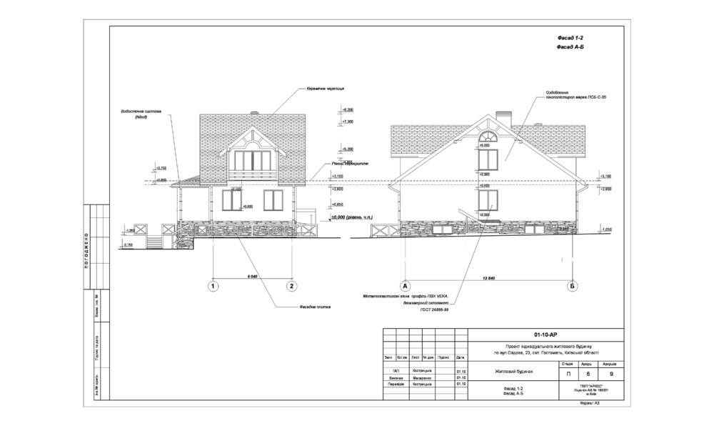
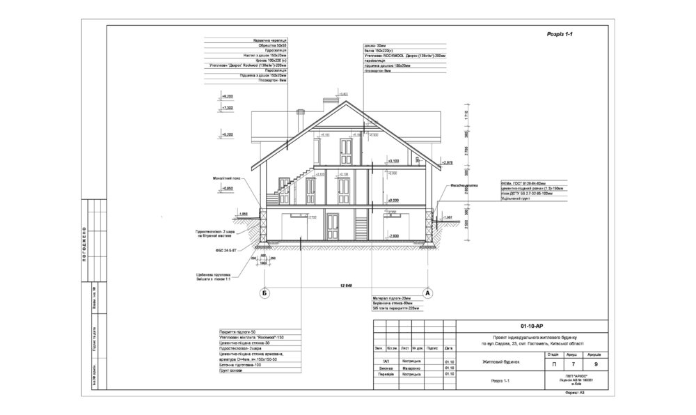
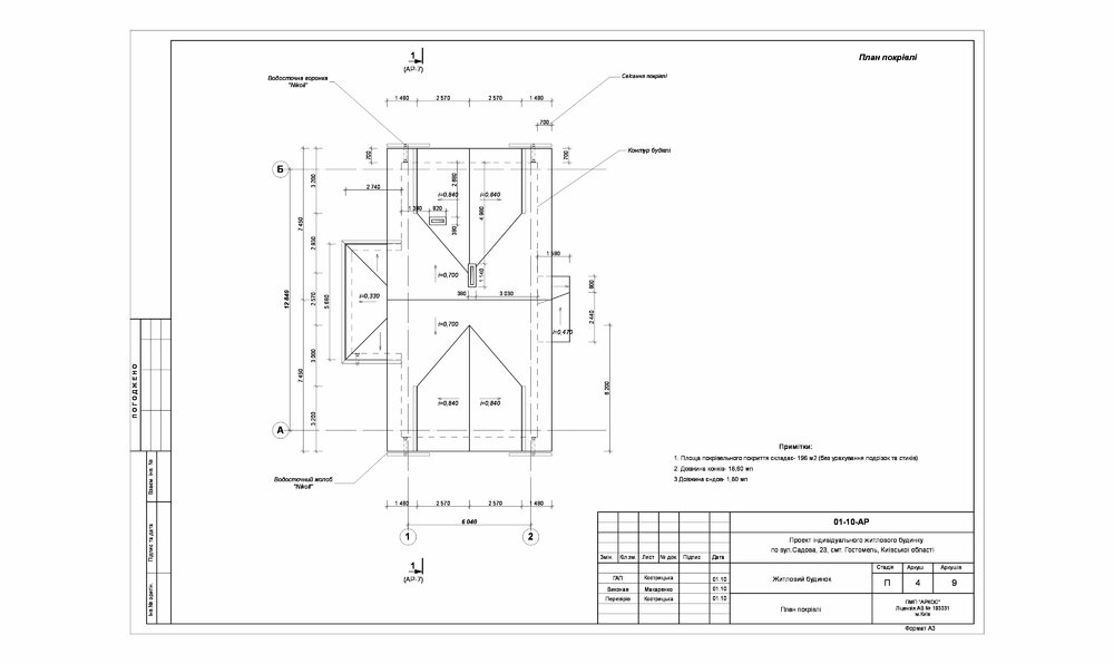
lavilong Опубліковано: 18 жовтня 2010 Автор Поділитись Опубліковано: 18 жовтня 2010 (змінено) Пока работа на стройке ждала весны, после нового закончил с архитектором проект и поехал с соседом в земресурсы Ирпеня чтобы разделить его землю на 2 участка, один из которых он мне согласился продать. Вот планы помещений, как просили, правда без некоторых доработок мелких. Последняя версия у меня только в бумажном варианте. Змінено 18 жовтня 2010 користувачем lavilong 1 Посилання на коментар Поділитися на інших сайтах More sharing options...
lavilong Опубліковано: 18 жовтня 2010 Автор Поділитись Опубліковано: 18 жовтня 2010 (змінено) Вот так выглядела входная груупа из фундаментных блоков. Входная группа пристраивалась к уже существующей каробке, как можно было заметить. Как грится - хорошая мысля приходит опосля. Но в месте примыкания опорной стены и предбанника была специально заблаговременно выпущена из бетона арматура, а также один из углов соеденен с фундаментом забора опорным лучем.. кроме того сам предбанник стоит на монолитной подушке.. никуда он не денется!! СД-мафия бессмертна! На втором плане видна выступающая плита перекрытия. Это и есть та плита, которая сорвалась при монтаже и дала трещину. Лежит на 3-х точках. Змінено 18 жовтня 2010 користувачем lavilong 3 Посилання на коментар Поділитися на інших сайтах More sharing options...
lavilong Опубліковано: 19 жовтня 2010 Автор Поділитись Опубліковано: 19 жовтня 2010 Итак - первые косяки. 1. Когда только начали ложить стены цоколя, забыли что должен быть отдельный вход в цоколь со двора (см. фото). А уже положили 2 ряда по периметру. - решение - взяли обычную ножевку, выпилили и поддели 2 блока. 2 оставшихся получились в связке. Решено было их не трогать и оставить какбы порожек в 20 см.. и думаю это правильно с учетом снежности в последнее время. Внутри пол поднимется минимум на 10 см. Так что небыло бы счастья. Хорошо что приехал проверить.. как жеппой чувствовал. 2. При утеплении фасада не сделали черновую гидроизоляцию по стенам. - решение - здесь www.stroimdom.com.ua/forum/showthread.php?t=35899 3. Когда раскидывали плиты, проем, ведущий из дома в цоколь сдвинулся на 20 см. из-за неправильной раскладки.. -решение - архитектор перемерял и перерисовал чуть-чуть.. в результате чего кухня стала на 1м. больше, а в гостинной добавилась ниша для шкафа-купе.. Посилання на коментар Поділитися на інших сайтах More sharing options...
ХХХХ Опубліковано: 20 жовтня 2010 Поділитись Опубліковано: 20 жовтня 2010 отлично идёте! удачи вам и сил! млин - просто прозрел - что на 3,3 соток можно втиснуть такой дом а если бы сосед огород не продавал - как бы? кстати цена нехилая таки вышла - 25000 за 3,3 сот. = 7500 за сотку если не секрет - во сколько газ и электричество обошлось? и по варшавке вопрос - то что её отсыпали от КП до кладбища - это круто конечно - а как же будут расщирять в бутылочном горлышке перед поворотом в Горенку - слева там забор и нехилый дом, справа - церквушка какято... кого-то сносить будут, что ли? Посилання на коментар Поділитися на інших сайтах More sharing options...
lavilong Опубліковано: 20 жовтня 2010 Автор Поділитись Опубліковано: 20 жовтня 2010 отлично идёте! удачи вам и сил! млин - просто прозрел - что на 3,3 соток можно втиснуть такой дом а если бы сосед огород не продавал - как бы? кстати цена нехилая таки вышла - 25000 за 3,3 сот. = 7500 за сотку если не секрет - во сколько газ и электричество обошлось? и по варшавке вопрос - то что её отсыпали от КП до кладбища - это круто конечно - а как же будут расщирять в бутылочном горлышке перед поворотом в Горенку - слева там забор и нехилый дом, справа - церквушка какято... кого-то сносить будут, что ли? Дык... цена даже на сегодняшний день там нормальная. Плюс все комуникации.. А договоренность у меня с соседом была еше при покупке.. мне тот огород без особой надобности.. это только чтобы собачкам побегать.. Был в европе - у них там такого типа дома на 3 сотках.. или газон перед домом или сад за.. все.. а зачем больше.. к тому же то по документам 3,3.. а реально 4 с хвостиком.. Посилання на коментар Поділитися на інших сайтах More sharing options...
lavilong Опубліковано: 20 жовтня 2010 Автор Поділитись Опубліковано: 20 жовтня 2010 Газ у меня государственная труба.. по границе фасада проходит.. проект и подключение озвучили 2000 грн.. всет уже был.. за переподключение и перенос провода (местные элетрики с какогото перепугу протянули кабель воздушку к соседу по диагонали через мой участок) заплатил 3000 грн.. сделали за 1 день. огород соседский по акту - под строительство.. так что мож сарайчик какой поставлю.. Полюбому что-то сносить будут.. думаю что церквушку.. и не сносить, а скорее всего перенесут ближе к кладбищу.. за огородом начинается овраг - линия ЛЭП и ничейная земля.. в овраге ручей и родник.. дед сосед сделал там копанку .. буду ее облагораживать.. думаю баньку поставить со временем.. так что не все так плохо! А после покупки соседского участка сотка у меня получится по 5800 в общем.. вот такой я жучара))) Документы все собрали. в субботу едем договариваться с нотариусом. Не надо так бояться стоимости земли.. по затратом на строительство дома - это сущий мизер... главное месторасположения и коммуникации. 1 Посилання на коментар Поділитися на інших сайтах More sharing options...
Damiani Опубліковано: 20 жовтня 2010 Поділитись Опубліковано: 20 жовтня 2010 Это мое 1000-ное сообщение и с этого момента пора начать повествование о своей стройке. о, у вас уже ровно полторы тыщи сообщений! Поздравляю))) Посилання на коментар Поділитися на інших сайтах More sharing options...
lavilong Опубліковано: 20 жовтня 2010 Автор Поділитись Опубліковано: 20 жовтня 2010 о, у вас уже ровно полторы тыщи сообщений! Поздравляю))) спасибо.. :drinks: 1 Посилання на коментар Поділитися на інших сайтах More sharing options...
ХХХХ Опубліковано: 20 жовтня 2010 Поділитись Опубліковано: 20 жовтня 2010 ну если всё так радужно по коммуникациям - то тогда цена наверно можно сказать что адекватная... Посилання на коментар Поділитися на інших сайтах More sharing options...
lavilong Опубліковано: 20 жовтня 2010 Автор Поділитись Опубліковано: 20 жовтня 2010 ну если всё так радужно по коммуникациям - то тогда цена наверно можно сказать что адекватная... В добавок еще центральная канализация в 30 метрах от дома. И центральный водопровод Посилання на коментар Поділитися на інших сайтах More sharing options...
ХХХХ Опубліковано: 20 жовтня 2010 Поділитись Опубліковано: 20 жовтня 2010 ну это вообще жирррр!!! рядом никто не продаётся?? :D если не секрет сколько планируете на стройку денег потратить - под финишную отделку и заселение? p/s/ а как кстати ведёт себя свалка в 300м от вас? както проезжал - горела - дыму было!!! наврено и пованивает и воду подпорчивает? Посилання на коментар Поділитися на інших сайтах More sharing options...
lavilong Опубліковано: 20 жовтня 2010 Автор Поділитись Опубліковано: 20 жовтня 2010 Зимой продавали гдето рядом недострой.. но темка заглохла.. наверное продали.. www.stroimdom.com.ua/forum/showthread.php?t=27724&highlight=%CC%EE%F1%F2%FB%F9%E5 Посилання на коментар Поділитися на інших сайтах More sharing options...
lavilong Опубліковано: 20 жовтня 2010 Автор Поділитись Опубліковано: 20 жовтня 2010 ну это вообще жирррр!!! рядом никто не продаётся?? :D если не секрет сколько планируете на стройку денег потратить - под финишную отделку и заселение? хочу уложится в 150.. на сегодняшний день освоено порядка 90 (это вместе с землей) но у меня уже коробка с крышей и окна, а также забор.. 1 Посилання на коментар Поділитися на інших сайтах More sharing options...
lavilong Опубліковано: 20 жовтня 2010 Автор Поділитись Опубліковано: 20 жовтня 2010 Насчет свалки - в планах ее будут засыпать и строить коттеджный городок..к тому же это свалка строительного мусора, а не бытового... На синее озеро я редко езжу.. в основном в пущу на 14-ю линию.. пять минут езды.. А еще возле меня есть ранчо "Родео" с приличными лошадьми.. прямо на берегу синьки.. Есть летний и зимний манеж, а также ресторан и бассеин.. и бани есть.. о!.. пропиарил :D Вода у меня хорошая.. я пока не заводил центральную и не бил скважину.. пользуюсь соседсткой.. Посилання на коментар Поділитися на інших сайтах More sharing options...
tarantulMF Опубліковано: 20 жовтня 2010 Поділитись Опубліковано: 20 жовтня 2010 Цоколь будет использоваться так - Дальняя половина - предбанник, с/у и 2 комнаты - хозпомещения, мастерская и резервная жилая комната.. незнаю.. мож пыточную из нее сделаю.. а вторая половина, ближе к фасаду - вот для этих наглых рыжих морд, для которых этот дом и строится, по большому счету. [ATTACH]73242[/ATTACH][ATTACH]73243[/ATTACH] [ATTACH]73244[/ATTACH][ATTACH]73245[/ATTACH] [ATTACH]73246[/ATTACH][ATTACH]73247[/ATTACH] [ATTACH]73248[/ATTACH] Стока сеттеров Охотой занимаетесь? Посилання на коментар Поділитися на інших сайтах More sharing options...
lavilong Опубліковано: 20 жовтня 2010 Автор Поділитись Опубліковано: 20 жовтня 2010 Стока сеттеров Охотой занимаетесь? Ага.. любитель.. Интересуетесь? Посилання на коментар Поділитися на інших сайтах More sharing options...
tarantulMF Опубліковано: 20 жовтня 2010 Поділитись Опубліковано: 20 жовтня 2010 Ага.. любитель.. Интересуетесь? Не у меня был сеттер, но так для себя. Отличная собака. Посилання на коментар Поділитися на інших сайтах More sharing options...
lavilong Опубліковано: 20 жовтня 2010 Автор Поділитись Опубліковано: 20 жовтня 2010 Не у меня был сеттер, но так для себя. Отличная собака. если надо, обращайтесь.. в начале декабря ждем пополнения.. Посилання на коментар Поділитися на інших сайтах More sharing options...
lavilong Опубліковано: 20 жовтня 2010 Автор Поділитись Опубліковано: 20 жовтня 2010 Итак.. строительный сезон закончился... По затратам мы имеем : земля (с брокерскими и нотариальными)- 210000грн (26250дол) стройка 206120 (25765дол) включительно Материалы 150625 (73,08 процентов) Работа 44285 (21,49 процентов) Прочие расходы 11210 (5,44 прцентов) Проценты-часть затрат относительного общей суммы расходов на строительство. Стоимость метра на данном этапе составляет 937грн (117дол) 1 Посилання на коментар Поділитися на інших сайтах More sharing options...
lavilong Опубліковано: 20 жовтня 2010 Автор Поділитись Опубліковано: 20 жовтня 2010 (змінено) На зиму цоколь накрыл брезентом, пленкой и старыми тентами от фур. Чтобы ветер не сдувал, привязывал к концам вязальной проволоки по кирпичу, стобы они свисали с краев примерно на метр.. Окна и вход в цоколь с первого этажа заварил решеткой из арматуры, вход с улицы в цоколь-дверь, свареная из уголка и той же решетки из арматуры.. сделал подсыпку между опрной стеной и стенами (часть грунта из котлована оставил предусмотрительно на участке, часть через дорогу возле пятиэтажки-недостроя), чтобы земля не промерза и накрыл опорную стену рубероидом... все... отдыхаем.. вернее работаем-ззарабатываем на следующий строительный сезон.. Змінено 20 жовтня 2010 користувачем lavilong 3 Посилання на коментар Поділитися на інших сайтах More sharing options...
lavilong Опубліковано: 20 жовтня 2010 Автор Поділитись Опубліковано: 20 жовтня 2010 Зима выдалась морозная и снежная.. Пока коротал зимние месяцы, все время переживал - как там мои опорные стеночки.. как там цоколь, не рванула ли плита от промерзания.. как там моя бетономешалочка.. скучает наверное.. Мои опасения не оправдались.. все перезимовало.. цоколь был совершенно сухой даже во время Большой Воды.. Посилання на коментар Поділитися на інших сайтах More sharing options...
Рекомендовані повідомлення
Створіть акаунт або увійдіть у нього для коментування
Ви маєте бути користувачем, щоб залишити коментар
Створити акаунт
Зареєструйтеся для отримання акаунта. Це просто!
Зареєструвати акаунтУвійти
Вже зареєстровані? Увійдіть тут.
Увійти зараз