VW2010 Опубліковано: 16 квітня 2011 Автор Поділитись Опубліковано: 16 квітня 2011 Вот в соседней теме выложили проэкт. Как он Вам? Посилання на коментар Поділитися на інших сайтах More sharing options...
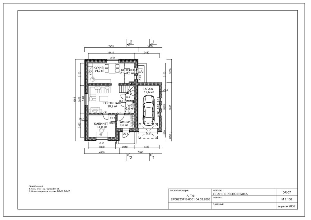
ВладимирГеорг Опубліковано: 16 квітня 2011 Поділитись Опубліковано: 16 квітня 2011 Вот в соседней теме выложили проэкт. Как он Вам? Очень сомнительно размещение туалета непосредственно в гостинной. По крайней мере дверь в туалет не должна открывать обзор его содержимого для гостей Посилання на коментар Поділитися на інших сайтах More sharing options...
VW2010 Опубліковано: 17 квітня 2011 Автор Поділитись Опубліковано: 17 квітня 2011 Согласен с Вами Посилання на коментар Поділитися на інших сайтах More sharing options...
Музей Опубліковано: 17 квітня 2011 Поділитись Опубліковано: 17 квітня 2011 . Может кто поможет ? Или брать понравившиеся планировки мансардного дома, идти к архитектору и пусть он по ним рисует два целых этажа ? Надеюсь Вы меня не оставите без внимания. Спасибо. Вы уже нашли правильное решение. Посилання на коментар Поділитися на інших сайтах More sharing options...
Милка Опубліковано: 17 квітня 2011 Поділитись Опубліковано: 17 квітня 2011 Здравствуйте. У нас таже проблема. 2 полных этажа, не больше 160м2. Приблизительно такой планировки как у Вас. Склоняюсь взять архоновский дом в рододедронах6 (н) и переделать на 2 этажа. Побывала в таком доме, понравилось. Но вот мужу нравится Z500 - Zx24. Как Вам такой дом? Посилання на коментар Поділитися на інших сайтах More sharing options...
VW2010 Опубліковано: 17 квітня 2011 Автор Поділитись Опубліковано: 17 квітня 2011 Мне нравится, но не настолько, чтобы начать строить завтра Посилання на коментар Поділитися на інших сайтах More sharing options...
VW2010 Опубліковано: 17 квітня 2011 Автор Поділитись Опубліковано: 17 квітня 2011 Вы уже нашли правильное решение. Осталось найти правельного архитектора Посилання на коментар Поділитися на інших сайтах More sharing options...
Музей Опубліковано: 18 квітня 2011 Поділитись Опубліковано: 18 квітня 2011 Осталось найти правельного архитектора К слову, это не просто. Посилання на коментар Поділитися на інших сайтах More sharing options...
AMAZONIA Опубліковано: 18 квітня 2011 Поділитись Опубліковано: 18 квітня 2011 Вот знакомтесь: www.ernst.kiev.ua/architektur_ru.html Очень понравилось: www.ernst.kiev.ua/Typ_1_ru.html www.ernst.kiev.ua/Michajlowka_ru.html Молодцы! Посилання на коментар Поділитися на інших сайтах More sharing options...
Рекомендовані повідомлення
Створіть акаунт або увійдіть у нього для коментування
Ви маєте бути користувачем, щоб залишити коментар
Створити акаунт
Зареєструйтеся для отримання акаунта. Це просто!
Зареєструвати акаунтУвійти
Вже зареєстровані? Увійдіть тут.
Увійти зараз